Okenné profily z kompozitného materiálu RAU-FIPRO X od spoločnosti Rehau sú v porovnaní s tradičnými plastovými profilmi mnohonásobne...
Najnovší sortiment stolov pre zariadenie interiérov...
Spojenie moderného dizajnu, funkčnosti a svetla do harmonického architektonického prvku.
Kancelárska budova Baumit v slovinskom Trzine prešla premenou na moderné a udržateľné pracovisko. Architekti kládli dôraz...
Mottom šiesteho ročníku on-line konferencie odborníkov Xella Dialóg je Efektívny návrh budov 2025+: zmeny a riešenia
Robot WLTR predstavuje moderný prístup k murovaným konštrukciám. Vďaka automatizácii dokáže rýchlo, presne a bezpečne realizovať...
Okrem bezpečnosti majú okná aj elegantný vzhľad, pretože nie sú viditeľné žiadne uzamykacie časti kovania.
Dvere MASTER v skrytej zárubni AKTIVE je možné vyrobiť až do výšky 3 700 mm
Internorm stavia na energetickú efektívnosť a inteligentné tieniace riešenia.
Pohľad na moderné prístupy k výrobe s dôrazom na udržateľnosť.
Slovensko vo výbere zastupuje šesť realizácií.
Spoločnosť Internorm odteraz stavia na novej variante tepelnoizolačného skla od AGC, ktorá v produkcii ročne ušetrí 10...
Jubilejný 20. ročník prestížnej medzinárodnej súťaže pre študentov architektúry priniesol...
Otočné a posuvné dvere MASTER od podlahy až po strop, ponúkajú mimoriadnu variabilitu výšky, materiálu a zladenia so skrytými...
Predstavené produkty, spájajú premyslený dizajn, funkčnosť a udržateľnosť. Nábytok Materia vzniká s cieľom podporiť inšpiratívne stretnutia...

Nový mestský úrad v Starej Turej, zrealizovaný podľa návrhu ateliéru pavlech architekti, bol dokončený v lete 2023. Odvtedy budova naplno slúži potrebám mesta.
Realizácia vychádza zo zadania architektonickej štúdie, ktorej cieľom bola konverzia budovy bývalej strednej priemyselnej školy v Starej Turej na Mestský úrad.
Hlavným zámerom bolo zoskupiť všetky oddelenia mestského úradu „pod jednu strechu“, nakoľko pôvodná budova úradu už nemala dostatočné kapacity. Druhým hlavným zámerom bolo vytvorenie klientskeho centra pre styk s občanmi.
V rokoch 2019 - 2021 ateliér pavlech architekti projektoval skôr zrealizovanú novšiu časť bývalej strednej školy. Novšia časť strednej školy našla nové využitie ako mestský dom, v ktorom sídlia mestské organizácie a mestská polícia. Zrekonštruovaním oboch budov sa podarilo vytvoriť lokálne centrum – Mestský úrad a Mestský dom. Občan tak na jednej adrese vybaví všetko potrebné.
Zdá sa, že zastupiteľstvo v Starej Turej uvažuje rozumne nielen v organizačno - investičných záležitostiach, ale naviac prejavilo tiež výborný cit pre výber partnera, ktorý dokázal ich zámery pretaviť do primeranej kultúrnej formy.
Kvalitné realizácie komunálnych investícií sú na Slovensku skôr výnimkou, ako pravidlom. Mestský úrad v Starej Turej je potešiteľným príkladom, ako sa prestavba môže urobiť tak, aby bola jednoduchá, nadčasová, stala sa integrálnou súčasťou verejného priestoru a zároveň dôstojne symbolizovala svoju funkciu.
Urbanistické riešenie a kontext
Stredná priemyselná škola elektrotechnická v Starej Turej bola pomerne známa a vyhľadávaná. Školský areál pozostával zo štyroch častí: stará časť školy - dnes mestský úrad, novšia pristavaná časť - dnes mestský dom, technické učebne s veľkou prednáškovou miestnosťou a budova internátu. Po zrušení školy, celá táto časť mesta postupne chátrala. Budovy boli postupne zdevastované.
Prvým krokom bola spomínaná konverzia školy na mestský dom. Nasledovala premena internátu na bytový dom so sociálnymi bytmi, ďalej konverzia staršej časti školy na mestský úrad a nakoniec premena rozostavanej a nikdy nedokončenej časti školy na bytový dom. Ateliér pavlech architekti navrhoval a projektovali dve zo štyroch častí - mestský dom a neskôr mestský úrad.
Z čiernej diery Starej Turej sa stala nová funkčná časť mesta.
1.NP obsahuje vstupné priestory, klientské centrum so zázemím, foyer a multifunkčnú zasadaciu miestnosť, ktorá je navrhnutá na dve základné funkcie – zasadanie mestského zastupiteľstva a tiež aj ako obradná miestnosť. Foyer slúži tiež ako galerijný priestor. Zvyšok dispozície tvorí kuchynka, toalety, sklad, chodba, schodiskový priestor s výťahom a zázemie pre údržbu a upratovanie.
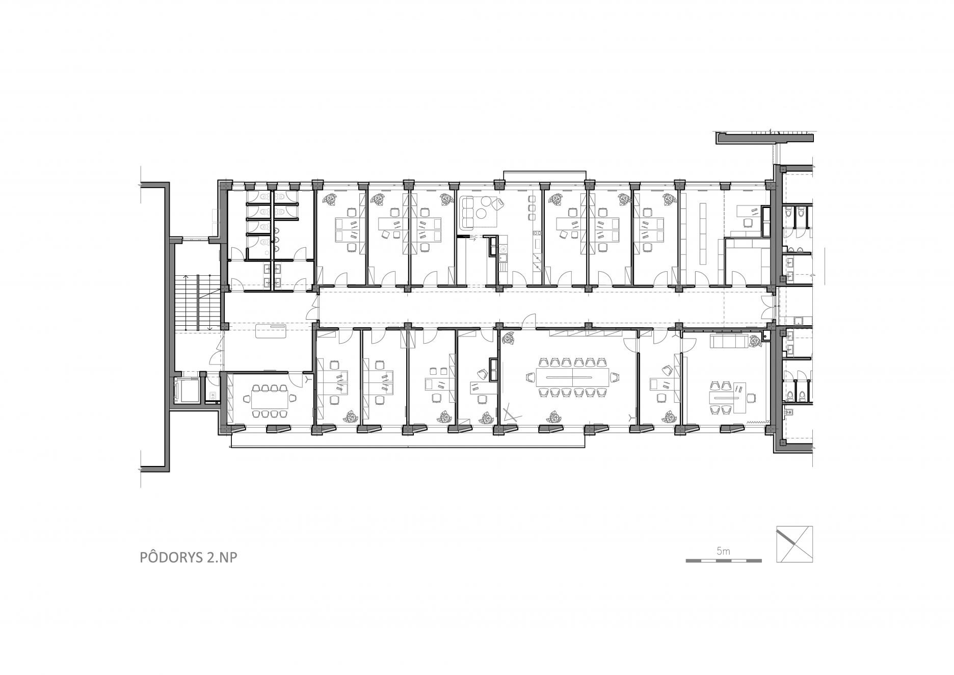
2.NP zastrešuje priestory pre jednotlivé oddelenia mestského úradu, tvorené kanceláriami. Na tomto podlaží sa nachádza kancelária prednostu úradu so zasadacou miestnosťou. Zvyšok dispozície tvorí kuchynka, toalety, archív, server, chodba, schodiskový priestor s výťahom a zázemie pre upratovanie.
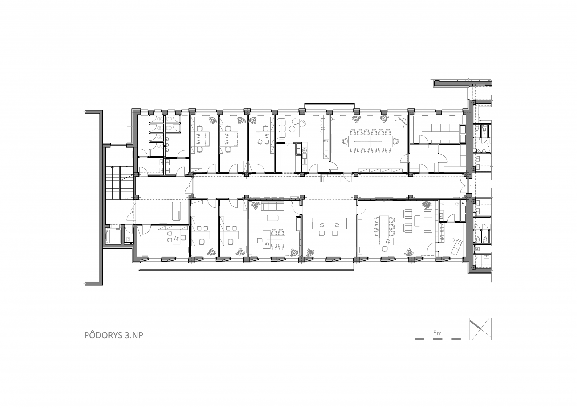
V 3.NP je umiestnená kancelária primátora so zázemím, sekretariát, kancelária zástupcu primátora, ostatné kancelárske priestory a zasadacia miestnosť.
Zvyšok dispozície tvorí, obdobne ako pri prvých dvoch podlažiach, kuchynka, toalety, archív, serverovňa, chodba, schodiskový priestor s výťahom a zázemie pre upratovanie.
V časti strešnej roviny pokračuje komunikačné jadro s novým schodiskom, výťahom a zázemím pre údržbu, ktoré sa nachádza aj na každom podlaží. Pochôdzny segment strechy tvorí dláždená terasa, zvyšok pokrýva vrstva extenzívnej zelene z rôznych druhov rozchodníkov. Na strane budovy vzdialenejšej od schodiska sa nachádza exteriérová strojovňa vzduchotechniky s jednotkami klimatizácie.
Hlavnú uličnú fasádu architekti výrazne pretvorili. Okené otvory pôvodnej školy zúžili a súčasne vybúraním parapetov vytvorili francúzske okná. Zvolený prístup opticky dodal kompozícii výšku. V pôvodných stavebných otvoroch vznikli šikmé plochy, ktoré vytvárajú hru svetla a tieňa. Nový vysunutý výklad dopĺňa schodiskovo - výťahové jadro. Použitím týchto úprav získala budova moderný a reprezentatívny vzhľad.
Fasády charakterizujú omietky so svetlou pieskovcovou farbou. Šikmé okenné plochy sú navyše reliéfne. Schodiskovo - výťahové jadro a predsadený výklad sú zrealizované v kontrastnej tmavosivej farbe. Hlavnú, juhozápadnú fasádu tienia zvislé clony.
Nová technická infraštruktúra objektu po rekonštrukcii zahŕňa centrálnu vzduchotechniku s rekuperáciou, chladenie, výťah, elektricky ovládané tienenie, špeciálne elektroinštalácie určené hlavne pre zasadanie mestského zastupiteľstva, vyvolávací systém klientskeho centra, alebo digitálnu úradnú tabuľu...
Autor a podklady: pavlech architekti
Fotografie: Pavel Kudiváni, pavlech architekti