Moderné strešné okná ponúkajú pohodlné ovládanie aj lepšiu ochranu domácnosti počas celého roka.
Objavte riešenia Dorsis, ktoré spájajú minimalistický vzhľad s vysokou variabilitou, funkčnosťou a spracovaním na mieru.
Súčasné bývanie v prostredí budapeštianskej vilovej štvrte.
Rad interiérových dverí DIVA DOOR od spoločnosti J.A.P. ponúka čistý dizajn a variabilné riešenia pre súčasné interiéry.
REHAU Window Solutions na veľtrhu Fensterbau Frontale 2026
Sortiment Slim Line zahŕňa pestrý výber dekorov a textúr.
Európska značka okien oslavuje jubileum: za 95 rokov sa vyvinula na najväčšiu medzinárodne pôsobiacu okennú značku a inovačného...
Na podujatí sa predstaví až 37 vystavovateľov - popredných dodávateľov stavebných materiálov a inovácií s prezentáciou...
Novotvar v prostredí alpskej obce.
Hansgrohe - prémiová značka kúpeľňových riešení, ponúka nadčasový dizajn, technickú precíznosť a udržateľné inovácie...
Využite špeciálnu akciu Internorm: okná za minuloročné ceny a hliníkový kryt úplne zadarmo. Ponuka je časovo obmedzená!
Sumarizácia najdôležitejších inovácií, ktoré redefinujúcich využitie tohto energetického zdroja.
AMPHIBIA 3000 GRIP 1.3 od spoločnosti ATRO predstavuje modernú hydroizolačnú technológiu, ktorá spája vysokú odolnosť,...
Ambiciózne plány EK narazili na ekonomické možnosti domácností v jednotlivých členských štátoch –...
IDEA DOOR od spoločnosti JAP prináša do interiéru čistý minimalistický vzhľad vďaka bezrámovému riešeniu a precíznej...

Trojtisícová stredočeská obec Zeleneč hľadala návrh novej základnej školy v miestnej časti Mstětice prostredníctvom otvorenej architektonickej súťaže. Zadanie rátalo s novostavbou školy s kapacitou 600 žiakov, vrátane nadväzujúcich spevnených a športových plôch, dopravnej obsluhy a napojenia na technickú infraštruktúru.
Do súťaže bolo odovzdaných 27 návrhov. Zapojili sa kolektívy z Česka, Slovenska, Nórska, Maďarska, Rumunska, Belgicka, Talianska, Španielska a Rakúska.
Dobre sa umiestnili aj slovenské ateliéry. Porota udelila 2. cenu slovenskému ateliéru Machala architekti z Bratislavy (Adela Klčová, Jana Machalová, Martin Machala). V hodnotení vyzdvihla najmä prácu s verejným priestorom v predpolí školy a kompaktné dispozičné riešenie s prehľadne organizovanými klastrami. Slovensko bolo v súťaži zastúpené aj ďalšími bratislavskými kolektívmi - BETWEEN a Nextarchitekti.
Zvíťazil návrh pražského ateliéru Tempo architekti.
V článku predstavujeme všetky súťažné návrhy, ktoré prezentujú zaujímavé pohľady na prostredie modernej vzdelávacej inštitúcie. Viaceré kvalitné realizácie aj súhrnné články z nášho územia, nájdete v závere textu.
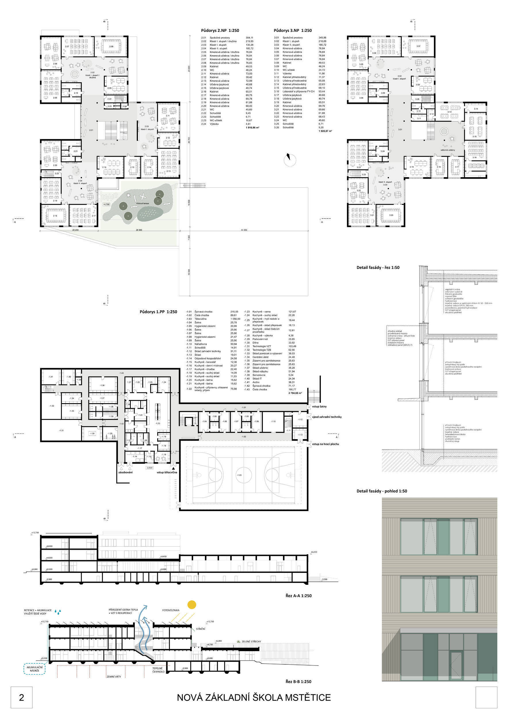
1. cena (1.100.000 Kč – 700.000 Kč – 500.000 Kč – 200.000 Kč) návrh č. 4: Tempo architekti, Praha / ČR
Autori: Josef Choc, Filip Rašek, Jonáš Mikšovský, Natálie Kristýnková, Barbora Lopraisová, Michail Nužnyj, Michaela Hasnedlová, Anna Ladmanová
Hodnotenie poroty:
Návrh je vhodně orientován vůči světovým stranám, velmi dobře reaguje na svažitost terénu řešeného území a citlivě zasazuje hmotové řešení školy do sousedství rezidenční zástavby a vytváří na pozemku školy dostatečné prostory pro veřejná i neveřejná prostranství, sportoviště, či školní zahradu. Hlavní předprostor školy je koncipován jako přehledné veřejné prostranství přirozeně orientované směrem k budoucímu sídlu a vhodně navázaný na parkování K+R, přičemž krajinářské řešení zde uvážlivě kombinuje vzrostlou vegetaci se zpevněnými plochami. Promyšlené krajinářské řešení pak návrh přináší také v dalších částech exteriéru: školní zahradě, sportovních plochách a doplňkových prostorách, vše v logických a funkčních vzájemných vazbách. Prostorové a dispoziční vnitřní uspořádání školní budovy je další vysokou kvalitou návrhu. Dispoziční řešení je logické a kompaktní, klastrové uspořádání párů učeben s důsledným propojením prostor s vnějším prostředím vytváří prostředí s žádoucí kvalitou pro výuku. Návrh nachází optimum mezi komfortem pro výuku i mimovýukové aktivity uživatelů školy a prostorovou úsporností návrhu, přitom respektuje požadovanou využitelnost školní budovy v různých režimech během i mimo vyučovací dobu, včetně zpřístupnění jednotlivých částí pro komunitní potřeby a akce. Porota ocenila navržené konstrukční a materiálové řešení vhodně kombinující masívní železobetonové a dřevěné nosné konstrukce a kvalitní, praktické, udržitelné, přitom esteticky velmi hodnotné materiály vnějšího pláště i vnitřních prostor. Energetická koncepce návrhu je realistická a odpovídá nárokům zadavatele a současné legislativy i praxe. Porota ocenila návrh jako nejlepší odpověď na průřez požadavků zadavatele a místních souvislostí.
2. cena (700.000 Kč) návrh č. 22: Machala architekti, Bratislava / SK
Autori: Adela Klčová, Jana Machalová, Martin Machala
Hodnotenie poroty:
V rámci širšího kontextu návrh vhodně pracuje s odstupem od budoucí zástavby rodinných domů. Veřejný prostor je pečlivě navržen a vybízí ke komfortnímu pobytu ve stínu stromů, jak pro uživatele objektu, tak pro kolemjdoucí. Díky zvolené orientaci navržené hmoty zbývá na pozemku dostatek místa pro školní zahradu. Ta je přístupná z hlavních komunikací, ale lze do ní vstoupit i z jídelny, což porota ocenila. Zahrada navíc poskytuje logické členění. Klastry a společné prostory jsou navrženy přehledně, poskytují žádoucí různorodost a denní světlo. Díky centrální hale jsou pak minimalizovány provozní vzdálenosti. Návrh celkově vykazuje značnou míru propracovanosti na mnoha úrovních, včetně chráněných únikových cest. To v podrobnosti soutěžní studie není samozřejmostí. Jako kultivovaný a realizovatelný spatřovala porota také fasádní plášť včetně elegantního límce nad hlavním vstupem. Příjemné je i předložené barevné schéma řízeně patinované dřevěné fasády, zelených výplní otvorů a mobiliáře v korálovém odstínu. Slabinou projektu je sloučení zásobo-vání gastro provozu a vstupu do tělocvičny pro veřejnost.
3. cena (500.000 Kč) návrh č. 6: Studio Perspektiv, Praha / ČR
Autori: Ján Antal, Natália Korpášová, Martin Křivánek, Samuel Maga, Barbora Kuciaková, Petra Deáková, Ondřej Sejkora
Hodnotenie poroty:
Návrh je velmi dobře propojen se širším územím a logicky navazuje na územní studii Zeleneč, čímž respektuje širší kontext rozvoje obce. Porota pozitivně hodnotí navržený půdorys, který tvoří kompaktní a přehledně organizovaný celek. Vhodné natočení objektu a promyšlené tvarování hmoty umožňuje, aby ze západní strany, otevírající se směrem k novému rozvojovému centru, vedly veřejné vstupy jak do školy, tak do tělocvičny a odborných učeben, čímž vzniká přirozené propojení objektu s veřejným prostranstvím a školní halou, což podporuje intuitivní orientaci a snadný přístup návštěvníků. Naopak vstup do družiny je situován spíše diskrétně, v zahradní části areálu, což odpovídá požadavku na klid a bezpečí dětí. Parkování je soustředěno v jižní části podél silnice, zatímco zóna K+R je umístěna v před prostoru školy, čímž se efektivně eliminuje potřeba velké plochy parkoviště a minimalizuje dopad automobilového provozu na školní prostředí. Mezi silné stránky návrhu patří funkčně řešená celková vnitřní dispozice a jasné provozní vazby jednotlivých částí budovy na školní zahradu, přístupové trasy i zásobovací a obslužné body. Oceňujeme architektonické členění stavby do několika dílčích objemů, které umožňuje zachovat prostornou a funkční školní zahradu. Autoři návrhu skutečně vytvořili veřejně přístupnou školu, která může sloužit jako centrum komunitních a kulturních aktivit. Další silnou stránkou je vnitřní uspořádání klastrů, které jsou strategicky umístěny na konci společných prostor a využívají přirozeného světla, čímž podporují pohodlí žáků a kvalitu výuky.
4. cena (200.000 Kč) návrh č. 2: SOA achitekti, Praha / ČR
Autori: Ondřej Píhrt, Štefan Šulek, Ondřej Laciga, Sarah Sommerová, Petra Valdman, Dalibor Dvořák, Lucia Kráľ, Matěj Střecha, Marie Hojná, Hana Rafajová, Natálie Votavová
Hodnotenie poroty:
V rámci širšího kontextu návrh vhodně pracuje s odstupem od budoucí zástavby rodinných domů. Veřejný prostor je pečlivě navržen a vybízí ke komfortnímu pobytu ve stínu stromů, jak pro uživatele objektu, tak pro kolemjdoucí. Díky zvolené orientaci navržené hmoty zbývá na pozemku dostatek místa pro školní zahradu. Ta je přístupná z hlavních komunikací, ale lze do ní vstoupit i z jídelny, což porota ocenila. Zahrada navíc poskytuje logické členění. Klastry a společné prostory jsou navrženy přehledně, poskytují žádoucí různorodost a denní světlo. Díky centrální hale jsou pak minimalizovány provozní vzdálenosti. Návrh celkově vykazuje značnou míru propracovanosti na mnoha úrovních, včetně chráněných únikových cest. To v podrobnosti soutěžní studie není samozřejmostí. Jako kultivovaný a realizovatelný spatřovala porota také fasádní plášť včetně elegantního límce nad hlavním vstupem. Příjemné je i předložené barevné schéma řízeně patinované dřevěné fasády, zelených výplní otvorů a mobiliáře v korálovém odstínu. Slabinou projektu je sloučení zásobování gastro provozu a vstupu do tělocvičny pro veřejnost.
Ostatné súťažné návrhy:
Návrh č. 1: Jan Hendrych, Uladzislau Sauko, Jakub Zeman / Praha
Návrh č. 3: BergerudUstad+Scheffer / Trondheim, Norsko
Návrh č. 5: AFRY CZ / Josef Kříž, Tereza Šantrůčková, Giulia Casazza, Aleš Nedvídek, Petr Havlena / Praha
Návrh č. 7: OBJEKTOR ARCHITEKTI / Václav Šuba, Jakub Červenka, Markéta Kanyzová, Vojtěch Šaroun, Samuel Cigler, Dmitri Vazhenin / Praha
Návrh č. 8: BETWEEN / Katarina Fejo, Tomáš Hanáček, Nikoleta Mitríková, Zuzana Kačírek, Robo Lipták, Roland Búš / Bratislava, Slovensko
Návrh č. 9: Építész Stúdió / Budapesť, Maďarsko
Návrh č. 10: SZABOLCS EGYED + T.A.P.-THE ARCHITECTURE PARTNERSHIP + GO EAST ARCHITECTS / Szabolcs Egyed, Andrei Mihăescu, Ciprian Ionuț Rășoiu / Miercurea Ciuc, Rumunsko
Návrh č. 11: AOSI + atelier vala + Kolektiff landscape / Autoři návrhu: Ivo Stejskal, Jiří Vala, Vít Šarišský; spolupráce: Björn Bracke, Rostislav Beneš, Suzanne Pietroszová, Silvie Valová / Brno a Ghent, Česko a Belgie
Návrh č. 12: MAVA ARCHI / Martin Vančura, Jakub Neumann / Praha
Návrh č. 13: Mókembé / Marton Komuves, Aron Baki, Mate Gadolla, Akos Takacs, Zsofia Csomay / Budapešť, Maďarsko
Návrh č. 14: OCA architects / Praha
Návrh č. 15: Petr Škoula / Rokycany
Návrh č. 16: Nextarchitekti / Autorř: Igor Koválovský, Anna Juhásová; spolupráce: Jakub Sadloň / Bratislava, Slovensko
Návrh č. 17: META architekti / Lukáš Bílek, Petr Bouřil, Lukáš Radda, Lucie Šimonová, Kateřina Zdvořáková, Barbora Blagoevová, Kateřina Iepur, Veronika Koutníková, Jan Krechler, Viktor Drobný /Sportovní projekty s.r.o./ / Praha
Návrh č. 18: Settanta7 / Milan, Taliansko
Návrh č. 19: ARCHITEKTON / Autor: Jan Hájek, Johana Netrvalová; spolupráce: Jakub Bilan, Martin Holba, Jáchym Šenkýř / Praha
Návrh č. 20: ŽÁROVKA ARCHITEKTI / Jan Ondrák, Kateřina Novotná, Lucia Vlčková, Marek Vlček / Hradec Králové
Návrh č. 21: MAURA / Autoři: Markéta Veselá, Tereza Veselá; spoluautoři: Barbora Jenčková, Tereza Továrková, Gabriela Trojková; spolupráce: Sixten Ditlefsen, David Švanda, Jaroslav Gereg, Jan Baxa, Hana Burgetová / Brno
Návrh č. 23: MACH a Aramé Studio / Barcelona, Španělsko
Návrh č. 24: Vojtěch Vyskočil, Petra Vyskočilová, Jitka Rumlová / Praha
Návrh č. 25: Andrea Ravagnani, Raffaele Ferrandino / Edoardo Scorda, Davide Avantini, Štěpán Beneš, Adam Bujok, Petr Lhoťan; spolupráce: Martina de Gregorio, Iole Corbo; krajinářská konzultace: Karolína Jandáčková; dopravní konzultace: Michal Fott / Řím, Itálie
Návrh č. 26: Architekt Florian Haim + kuck::kunzovahuck / Vídeň, Rakousko
Návrh č. 27: Bohdan Špaček / Praha
Podklady: CCEA MOBA