Využite špeciálnu akciu Internorm: okná za minuloročné ceny a hliníkový kryt úplne zadarmo. Ponuka je časovo obmedzená!
Na podujatí sa predstaví až 37 vystavovateľov - popredných dodávateľov stavebných materiálov a inovácií s prezentáciou...
Sumarizácia najdôležitejších inovácií, ktoré redefinujúcich využitie tohto energetického zdroja.
AMPHIBIA 3000 GRIP 1.3 od spoločnosti ATRO predstavuje modernú hydroizolačnú technológiu, ktorá spája vysokú odolnosť,...
Ambiciózne plány EK narazili na ekonomické možnosti domácností v jednotlivých členských štátoch –...
IDEA DOOR od spoločnosti JAP prináša do interiéru čistý minimalistický vzhľad vďaka bezrámovému riešeniu a precíznej...
Kontinuita riešenia od vonkajšieho obkladu až po kovania a kľučky.
Nástenné nadomietkové armatúry Vitus sú mimoriadne vhodné pre rýchlu a efektívnu...
Okenné profily z kompozitného materiálu RAU-FIPRO X od spoločnosti Rehau sú v porovnaní s tradičnými plastovými profilmi mnohonásobne...
Najnovší sortiment stolov pre zariadenie interiérov...
Spojenie moderného dizajnu, funkčnosti a svetla do harmonického architektonického prvku.
Kancelárska budova Baumit v slovinskom Trzine prešla premenou na moderné a udržateľné pracovisko. Architekti kládli dôraz...
Mottom šiesteho ročníku on-line konferencie odborníkov Xella Dialóg je Efektívny návrh budov 2025+: zmeny a riešenia
Robot WLTR predstavuje moderný prístup k murovaným konštrukciám. Vďaka automatizácii dokáže rýchlo, presne a bezpečne realizovať...
Okrem bezpečnosti majú okná aj elegantný vzhľad, pretože nie sú viditeľné žiadne uzamykacie časti kovania.

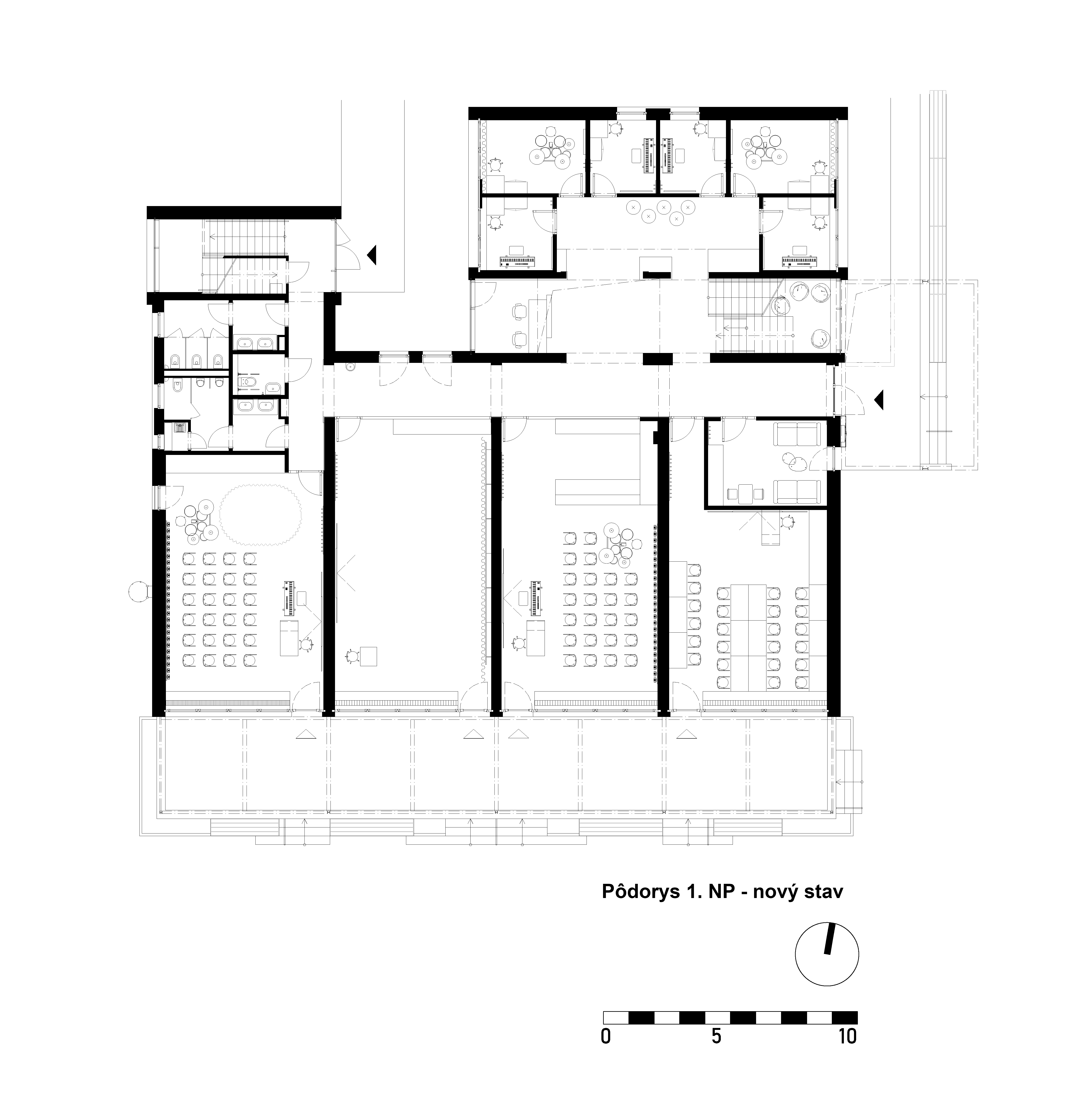
Kreatívne centrum British International School Bratislava z dielne ateliéru FORM A21 pretvára nevyužitú typovú budovu z druhej polovice XX. storočia na otvorené a flexibilné zázemie pre umelecké predmety a mimoškolské aktivity.
Ťažisko konceptu tvorí nanovo prestrešené átrium, fungujúce ako orientačný uzol – okolo ktorého sa odvíja otvorená dispozícia, rozšírená o možnosť výučby v exteriéri. Materialitu prenesenú z exteriéru vo vnútri rozvíja výrazná farebnosť ťažiskového priestoru, na ktorý nadväzujú ateliéry, hudobné a pohybové sály, divadelné štúdio či dielne dizajnu a technológií. Projekt citlivo posúva typovú školskú „kocku“ k súčasným štandardom a vytvára samostatne fungujúci pavilón kreativity.
Realizáciu bližšie predstaví sprievodný text autorov:
Zadaním klienta bolo vytvoriť nové priestory pre výučbu umeleckých a kreatívnych predmetov základnej a strednej školy. Tomuto účelu mala poslúžiť nevyužívaná budova zo 70. rokov minulého storočia v areáli školy.
Jej hlavným znakom bolo vonkajšie átrium, ale aj zložitá dispozícia, v ktorej rokmi nekoncepčných zásahov vznikla spleť malých priestorov. Átrium sa stalo hlavným motívom aj pri prestavbe, po zastrešení svetlíkom a uzatvorení fasádnym systémom funguje ako hlavný orientačný prvok v budove.
Pôvodná dispozícia bola odstránená, po zásahoch do nosných konštrukcií sa priestor zjednodušil a sprehľadnil. Keďže budova nemá priame vnútorné napojenie na hlavnú budovu školy, bola koncepčne vnímaná ako samostatný blok kreatívneho centra s nezávislou prevádzkou a môže slúžiť aj na aktivity po vyučovaní ako samostatná budova ZUŠ. Široké spektrum učební umožňuje deťom rozvíjať kreativitu vo všetkých smeroch (hudba, tanec, divadlo, výtvarné umenie, dizajn a technológie) v skupinových aj individuálnych učebniach.
Budova bola koncipovaná spolu s okolitým parkom ako miesto kreativity a relaxu, čomu zodpovedá aj prepojenie vnútorných priestorov so záhradou prostredníctvom terasy. Tento vzťah interiéru a exteriéru umožňuje prispôsobiť výučbu netradičným spôsobom v exteriéri (amfiteáter a terasa ako priestor pre maľbu, kresbu, divadlo, koncert, performance…) a zároveň využiť vonkajšie prostredie ako prestávkový priestor.
Pred vstupom vznikla vonkajšia piazzetta s krytým koridorom, ktorý prepája hlavnú budovu školy. V nadväznosti na túto plochu je umiestnená aj vrátnica so vstupom do areálu.
Z konštrukčného hľadiska ide o prefabrikovanú stenovú sústavu z nosných stenových pórobetónových panelov v kombinácii so stropnými panelmi typu Spirol. Zásahy do nosných častí pôvodnej konštrukcie sa zabezpečovali prostredníctvoim oceľových rámov. V niektorých miestach, kde došlo k nadmernej degradácii nosných stien, boli použité železobetónové doplnkové konštrukcie, ktoré spevnili pôvodnú sústavu do pevného celku. Nové konštrukcie, ako vstupná markíza, tieniaca pergola alebo prekrytie prepojenia medzi hlavnou budovou a kreatívnym centrom, sú z oceľových otvorených profilov. Základom konštrukcie vrátnice je rovnako oceľový rám v kombinácii so železobetónovou stenou a ľahkým obvodovým plášťom z drevených CLT panelov.
Z exteriérových pohľadov bola zvolená biela, neutrálna farebnosť fasád v kontraste s prírodnou kresbou drevených obkladov uličných fasád. Kresba dreva má v kombinácii s parkovými úpravami okolia vyvolať dojem prírodného ostrova uprostred sídliskovej zástavby zo 70. rokov. Tento kontrast je však iba zdanlivý, keďže areál zo západnej strany hraničí so zástavbou rodinných domov, za ktorými sa dvíha zelený masív Dúbravskej hlavice, a vzniká tak ucelený harmonický obraz s odkazom na prírodné prvky. Prvok dreva sa prenáša aj do interiéru, kde kontrastuje so sivou a bielou farebnosťou chodieb. V mieste átria a hlavného schodiska je použitá žltá farba, ktorá zdôrazňuje hlavný komunikačný uzol budovy a zároveň slúži ako pevný orientačný bod interiéru.
Od začiatku návrhovej fázy klient dbal na to, aby boli v projekte zohľadnené požiadavky a pripomienky učiteľov odborných predmetov. Najmä vo fáze projektu interiéru boli všetko vybavenie a nábytok podrobne konzultované so zreteľom na špecifické požiadavky výučby jednotlivých predmetov. Od uskladnenia hudobných nástrojov a ozvučenia teoretických učební, cez vybavenie divadelného štúdia až po zariadenie dielne pre výučbu dizajnu a technológie mala každá miestnosť svoje parametre na uspokojenie potrieb učiteľov, najmä však na kvalitný rozvoj žiakov.
Vzťah budovy k vonkajšiemu parku prináša nečakané možnosti výučby aj v inom prostredí, ako je interiér. Aj keď je vybavenie učební nadštandardné a umožňuje deťom tímovú prácu aj individuálny rozvoj, možnosť využitia exteriéru to posúva na vyššiu úroveň.
Keďže išlo o prestavbu pôvodnej budovy, počas výstavby sa odhalil žalostný technický stav, ktorý sa nedal v procese návrhu predvídať. Budova bola dlhší čas nepoužívaná a tomu zodpovedal aj zlý technický stav nosných konštrukcií. Počas realizácie bolo potrebné zmeniť niektoré technické riešenia a navrhnúť nové technické opatrenia a zásahy. Našťastie mali tieto úpravy len malý vplyv na pôvodný koncept a na výslednom diele sa to takmer vôbec neprejavilo.
Fotografie východiskového stavu:
Podklady: FORM A21
Fotografie: Dominik Sepp