Na podujatí sa predstaví až 37 vystavovateľov - popredných dodávateľov stavebných materiálov a inovácií s prezentáciou...
Novotvar v prostredí alpskej obce.
Hansgrohe - prémiová značka kúpeľňových riešení, ponúka nadčasový dizajn, technickú precíznosť a udržateľné inovácie...
Využite špeciálnu akciu Internorm: okná za minuloročné ceny a hliníkový kryt úplne zadarmo. Ponuka je časovo obmedzená!
Sumarizácia najdôležitejších inovácií, ktoré redefinujúcich využitie tohto energetického zdroja.
AMPHIBIA 3000 GRIP 1.3 od spoločnosti ATRO predstavuje modernú hydroizolačnú technológiu, ktorá spája vysokú odolnosť,...
Ambiciózne plány EK narazili na ekonomické možnosti domácností v jednotlivých členských štátoch –...
IDEA DOOR od spoločnosti JAP prináša do interiéru čistý minimalistický vzhľad vďaka bezrámovému riešeniu a precíznej...
Kontinuita riešenia od vonkajšieho obkladu až po kovania a kľučky.
Nástenné nadomietkové armatúry Vitus sú mimoriadne vhodné pre rýchlu a efektívnu...
Okenné profily z kompozitného materiálu RAU-FIPRO X od spoločnosti Rehau sú v porovnaní s tradičnými plastovými profilmi mnohonásobne...
Najnovší sortiment stolov pre zariadenie interiérov...
Spojenie moderného dizajnu, funkčnosti a svetla do harmonického architektonického prvku.
Kancelárska budova Baumit v slovinskom Trzine prešla premenou na moderné a udržateľné pracovisko. Architekti kládli dôraz...
Mottom šiesteho ročníku on-line konferencie odborníkov Xella Dialóg je Efektívny návrh budov 2025+: zmeny a riešenia

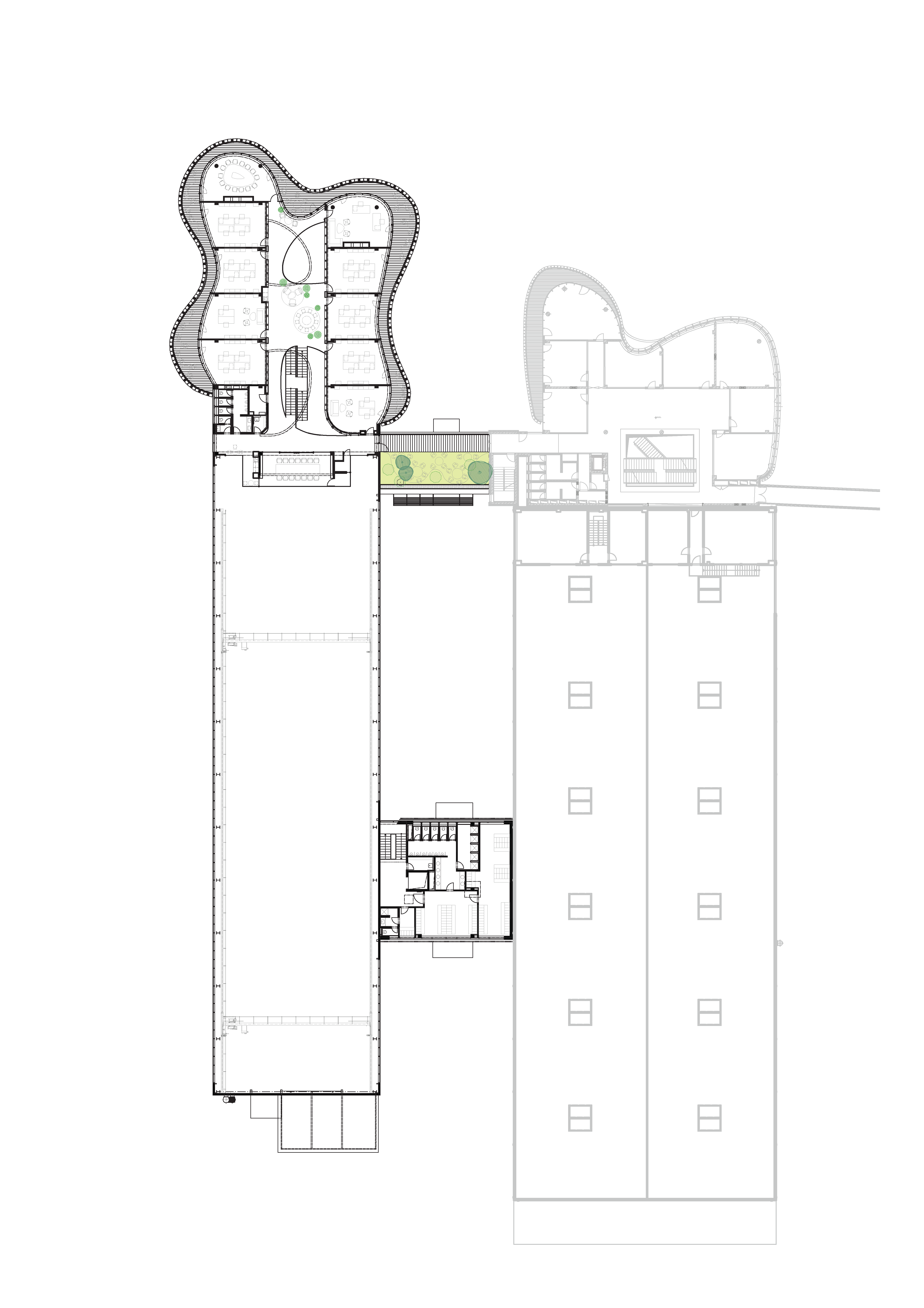
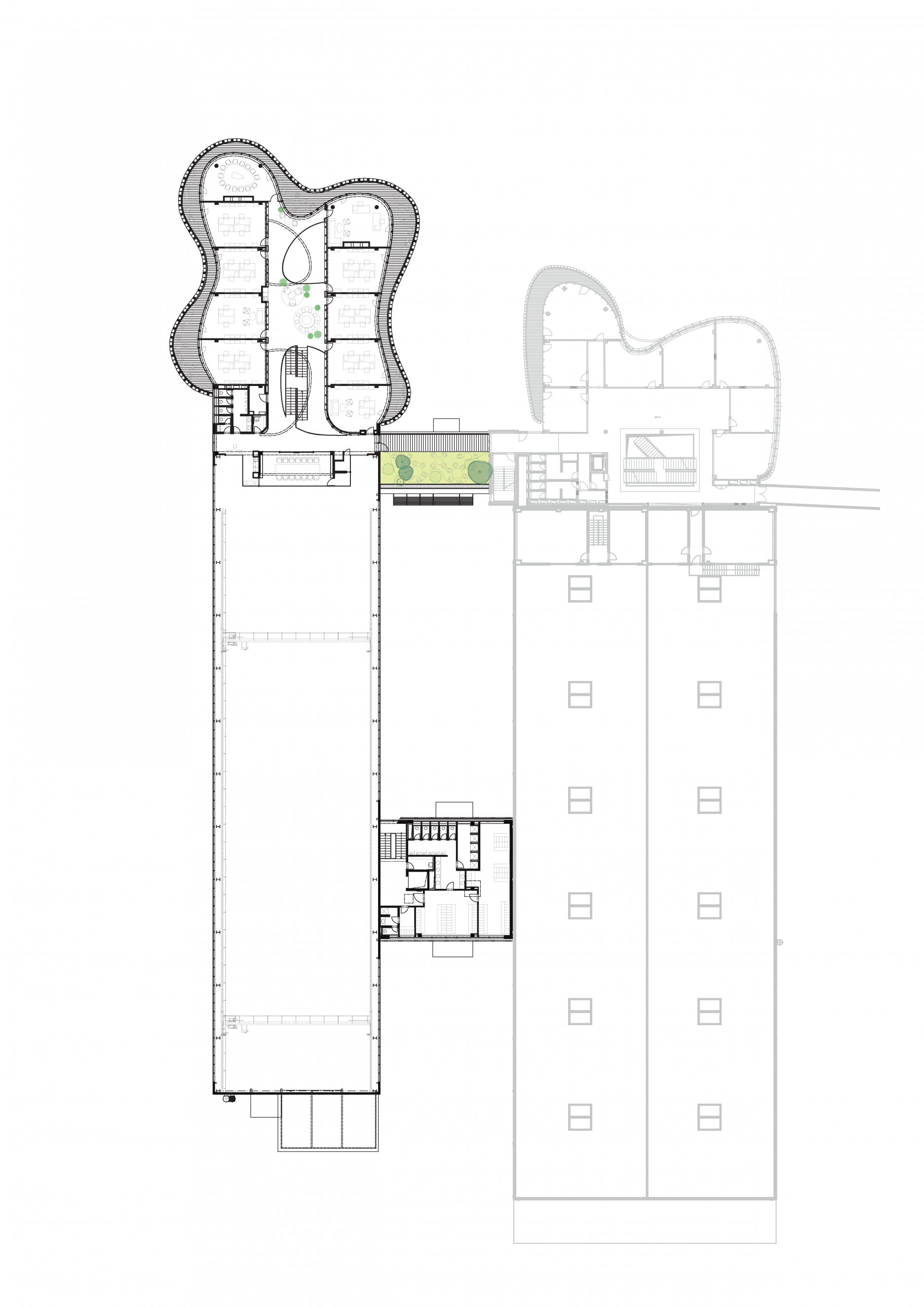
Pred dvomi rokmi sme predstavili kancelársku budovu v malej oravskej obci Krivá, ktorú v rámci priemyselného areálu spoločnosti MTS navrhol ateliér FORM A21. Novostavba nadväzujúca na výrobné haly spoločnosti zaoberajúcej sa produkciou komponentov, komplexných riešení a softvéru pre automatizáciu a výrobné linky bola o niekoľko mesiacov neskôr nominovaná na CE ZA AR v kategórii Občianske a priemyselné budovy. Spolupráca architektov, ktorá vytvorila priestor pre kvalitnú architektúru v nečakanej polohe naďalej pokračuje. Aktuálna realizácia odzrkadľuje hodnoty spoločnosti a formuje jej dlhodobo záväznú tvár voči okoliu.
Nový objekt "H4" je rozdelený na kancelársky a výrobný trakt. Dvojpodlažnú kancelársku časť charakterizuje pôdorys v tvare štvorlístka, ktorý v pohľadoch necháva vyniknúť plasticitu fasády z uličnej strany. Nadväzujúca hala zastrešuje prevýšený otvorený priestor, pohľadovo prepojený s administratívou. Strechu haly tvoria svetlíky, ktoré z bočného pohľadu vykresľujú charakteristický pílový profil. Presklené segmenty, orientované na sever, vnášajú do interiéru kvalitné prirodzené osvetlenie. Celú administratívu z vonkajšej strany lemuje priebežná terasa so zastrešením. drevené konštrukčné prvky tvaru písmena "V" zároveň vytvárajú charakteristickú kresbu fasády.
Tvarovým aj materiálovým východiskom je spomínaná susedná budova B3, ktorá tvorí hlavný objekt celého areálu. "Drevo - hlavný prostriedok - sme zvolili ako charakteristický materiál celého regiónu Oravy. Zvlnený pôdorysný tvar má za cieľ poukázať na blízke prírodné prostredie a splynúť s ním," dopĺňajú na záver autori.
Podklady: FORM A21
Fotografie: Dominik Sepp