Na podujatí sa predstaví až 37 vystavovateľov - popredných dodávateľov stavebných materiálov a inovácií s prezentáciou...
Novotvar v prostredí alpskej obce.
Hansgrohe - prémiová značka kúpeľňových riešení, ponúka nadčasový dizajn, technickú precíznosť a udržateľné inovácie...
Využite špeciálnu akciu Internorm: okná za minuloročné ceny a hliníkový kryt úplne zadarmo. Ponuka je časovo obmedzená!
Sumarizácia najdôležitejších inovácií, ktoré redefinujúcich využitie tohto energetického zdroja.
AMPHIBIA 3000 GRIP 1.3 od spoločnosti ATRO predstavuje modernú hydroizolačnú technológiu, ktorá spája vysokú odolnosť,...
Ambiciózne plány EK narazili na ekonomické možnosti domácností v jednotlivých členských štátoch –...
IDEA DOOR od spoločnosti JAP prináša do interiéru čistý minimalistický vzhľad vďaka bezrámovému riešeniu a precíznej...
Kontinuita riešenia od vonkajšieho obkladu až po kovania a kľučky.
Nástenné nadomietkové armatúry Vitus sú mimoriadne vhodné pre rýchlu a efektívnu...
Okenné profily z kompozitného materiálu RAU-FIPRO X od spoločnosti Rehau sú v porovnaní s tradičnými plastovými profilmi mnohonásobne...
Najnovší sortiment stolov pre zariadenie interiérov...
Spojenie moderného dizajnu, funkčnosti a svetla do harmonického architektonického prvku.
Kancelárska budova Baumit v slovinskom Trzine prešla premenou na moderné a udržateľné pracovisko. Architekti kládli dôraz...
Mottom šiesteho ročníku on-line konferencie odborníkov Xella Dialóg je Efektívny návrh budov 2025+: zmeny a riešenia

Dvojpodlažný objekt občianskej vybavenosti na Ostravskom sídlisku prešiel pod taktovkou miestneho ateliéru studioArk rozsiahlou obnovou. Pôvodné prevádzky obchodného domu a pohostinstva nahradilo sídlo softvérovej spoločnosti.
“Cílem projektu, bylo vytvořit nové kancelářské prostory IT společnosti Raynet, ve kterých bude vládnout hravost a svoboda. Kombinací velkorysých prostor, čistoty nových prvků a hrubosti původní konstrukce, vznikly víceúčelové praktické prostory, rozkládající se na dvou patrech stávající budovy,” približuje zadanie architekt Petr Kundrát.
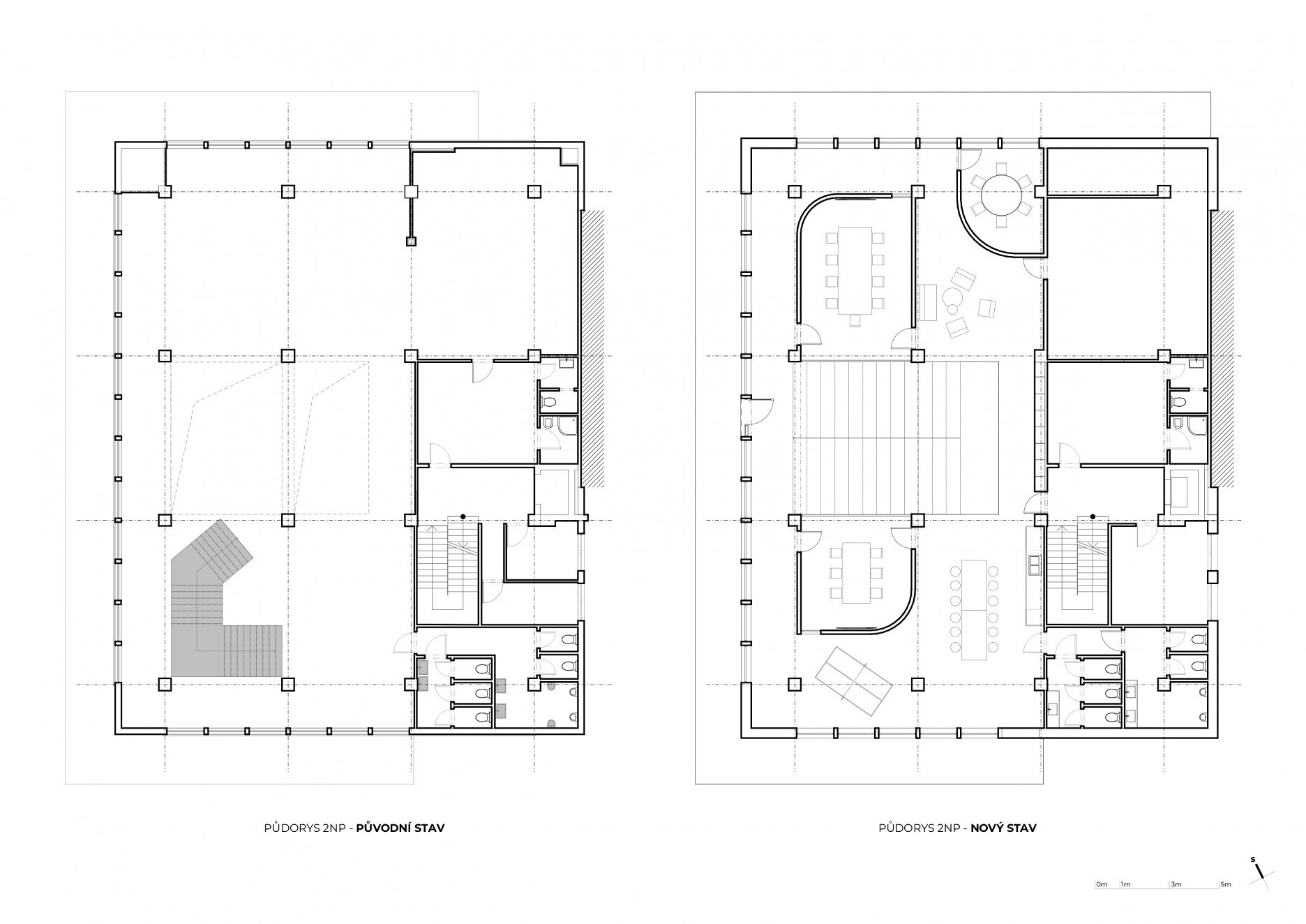
Pôvodný oceľobetónový skelet stavby umožnil flexibilnú úpravu dispozície. Nové priestorové usporiadanie si však vyžiadalo odstránenie pôvodného betónového schodiska. Táto zmena priniesla tiež nutnosť vybudovania nového schodiska, vrátane vyrezania otvorov do železobetónovej stropnej dosky. Nové pobytové schodisko v centre dispozície je riešené ako zváraná oceľová konštrukcia opláštená dreveným doskovým materiálom.
Budova prešla celkovým očistením od nevhodných zásahov, farebným zvýraznením novo umiestneného vstupu a zjednotením okien i povrchu fasády svetlo sivou omietkou. “Ta podtrhuje minimalistické pojetí návrhu a svým přístupem k rekonstrukci se stává novou paralelou k běžnému barevnému řešení zateplení okolních budov,” dopĺňa architekt. Nové výplne fasádnych otvorov tvoria sivé hliníkové rámy s izolačnými trojsklami.
Prevádzku objektu navrhli autori s ohľadom na možnú dostavbu ďalších poschodí. Kľúčom preto bolo oddelenie kancelárií od vstupu a vytvorenie priestoru pre osadenie výťahu a ďalších nutných funkcií.
Nízka vstupná chodba vedie zamestnancov a návštevníkov do veľkorysého priestoru recepcie. Na prízemí sa nachádza hlavné pracovisko, ktoré zahŕňa dve hlavné open office kancelárie. Tie sú navrhnuté pre potreby jednotlivých firemných oddelení - uzavretá a hlučnejšia kancelária pre zákaznícku starostlivosť a naopak otvorená a pokojná kancelária pre vývojárov.
“Obě kanceláře v sobě skrývají stejnou prostorovou hru, která za pomocí betonových podií pozvedá pozice pracovních míst vůči ulici a zároveň u fasádních oken vytváří malé amfiteátry, nabízející možnosti relaxu, malých týmových porad či prezentací,” vysvetľuje Petr Kundrát.
Dominantu na prízemí tvorí pobytové schodisko, ktoré sa ľahko premení na praktické hľadisko pri konaní najrôznejších akcií. Schodisko sa vďaka svojmu využitiu stáva srdcom celej budovy. Práve táto prevýšená otvorená časť, spojená so vstupnou halou, podčiarkuje otvorenú atmosféru pracoviska.
Sústredenú prácu na prízemí strieda o úroveň vyššie komunitná a odpočinková zóna. Nájdeme tu masážne štúdio, posilňovňu, alebo kuchyňu s jedálenským stolom, ktorá vytvára priestor pre priateľské stretnutia zamestnancov. Paletu funkcií dopĺňajú zasadacie miestnosti a fotoateliér. V procese plánovania a príprav je tiež strešná pobytová terasa, vďaka ktorej budú môcť zamestnanci využiť aj vonkajšie priestory na prácu, večierky, alebo prezentácie. Stavba je vykurovaná prostredníctvom teplovodu, vedúceho z centrálneho zdroja mimo objektu.
Podklady: Ark
Fotografie: Alex Shoots Buildings