Advertorial

Hotel Hirschen Spa House, Rakúsko

Novotvar v prostredí alpskej obce.

Vytvorte si kúpeľňu snov: dizajnové riešenie od značky hansgrohe

Hansgrohe - prémiová značka kúpeľňových riešení, ponúka nadčasový dizajn, technickú precíznosť a udržateľné inovácie...

Okná Internorm za minuloročné ceny + hliníkový kryt zdarma!

Využite špeciálnu akciu Internorm: okná za minuloročné ceny a hliníkový kryt úplne zadarmo. Ponuka je časovo obmedzená!

Pozvánka na 2. ročník stavebného veľtrhu BigMarket na Slovensku

Na podujatí sa predstaví až 37 vystavovateľov - popredných dodávateľov stavebných materiálov a inovácií s prezentáciou...

Moderné plynové technológie: Efektivita a inovácie pre 21. storočie

Sumarizácia najdôležitejších inovácií, ktoré redefinujúcich využitie tohto energetického zdroja.

Utesňovanie spodných stavieb pomocou hydro-aktívnej fólie AMPHIBIA.

AMPHIBIA 3000 GRIP 1.3 od spoločnosti ATRO predstavuje modernú hydroizolačnú technológiu, ktorá spája vysokú odolnosť,...

Dekarbonizácia individuálneho vykurovania domácností – Green Deal evolučne a nie revolučne

Ambiciózne plány EK narazili na ekonomické možnosti domácností v jednotlivých členských štátoch –...

Minimalistické dvere IDEA – technická precíznosť a čistota prevedenia

IDEA DOOR od spoločnosti JAP prináša do interiéru čistý minimalistický vzhľad vďaka bezrámovému riešeniu a precíznej...

Dom s výhľadom na údolie, Dlouhý Most (ČR)

Kontinuita riešenia od vonkajšieho obkladu až po kovania a kľučky.

Schell Vitus – osvedčené riešenie pre sprchy a umývadlá vo verejnom sektore s viac ako desaťročnou tradíciou

Nástenné nadomietkové armatúry Vitus sú mimoriadne vhodné pre rýchlu a efektívnu...

Kompozitné okná predstavujú súčasnosť a budúcnosť

Okenné profily z kompozitného materiálu RAU-FIPRO X od spoločnosti Rehau sú v porovnaní s tradičnými plastovými profilmi mnohonásobne...

Myotis - stoly 2025

Najnovší sortiment stolov pre zariadenie interiérov...

Priemyselné sklenené priečky Dorsis Digero: svetelné rozhranie pre moderné interiéry

Spojenie moderného dizajnu, funkčnosti a svetla do harmonického architektonického prvku.

Význam prirodzeného svetla pre moderné a flexibilné pracovné prostredie

Kancelárska budova Baumit v slovinskom Trzine prešla premenou na moderné a udržateľné pracovisko. Architekti kládli dôraz...

Konferencia Xella Dialóg predstaví novinky a trendy v stavebníctve

Mottom šiesteho ročníku on-line konferencie odborníkov Xella Dialóg je Efektívny návrh budov 2025+: zmeny a riešenia

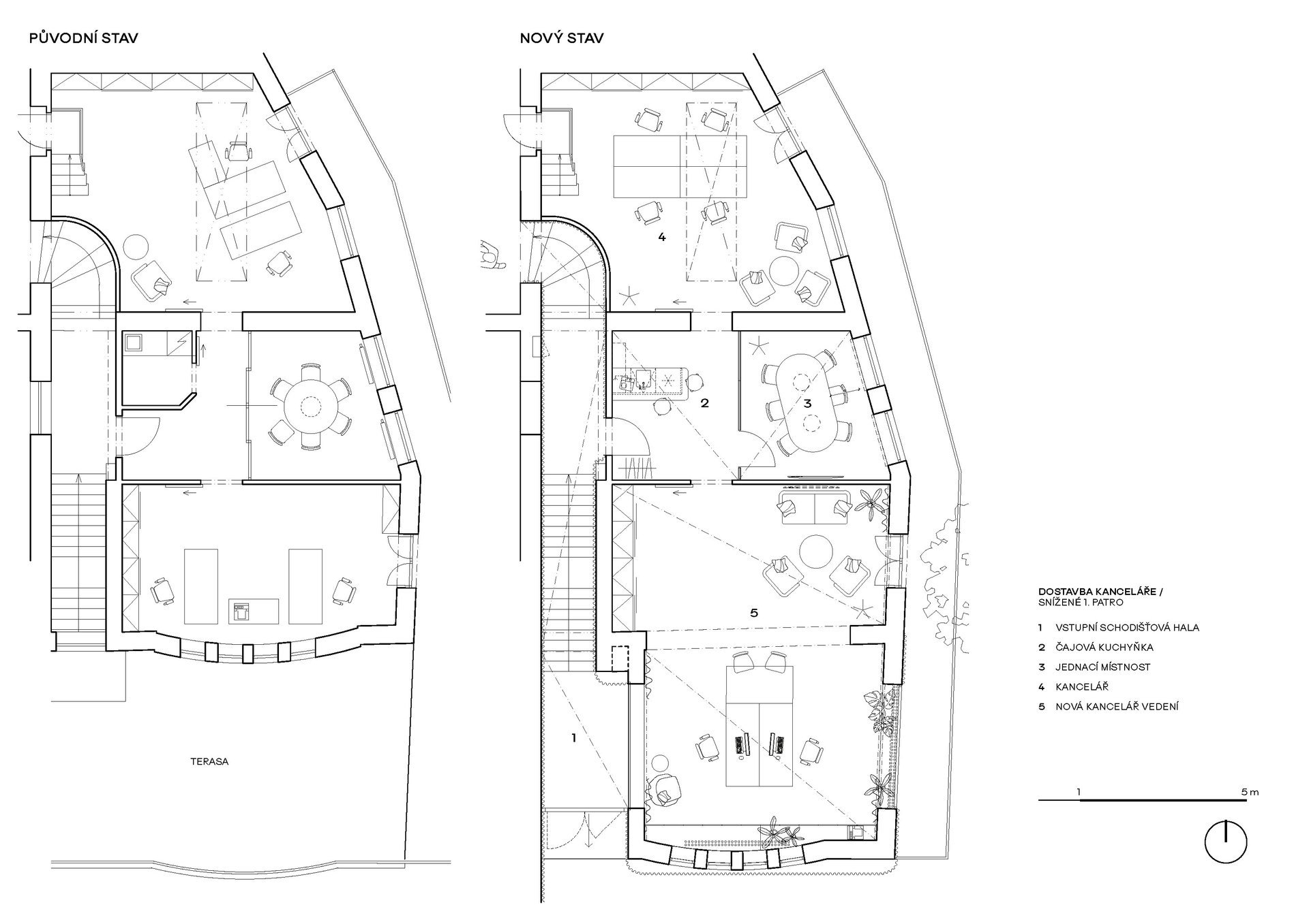
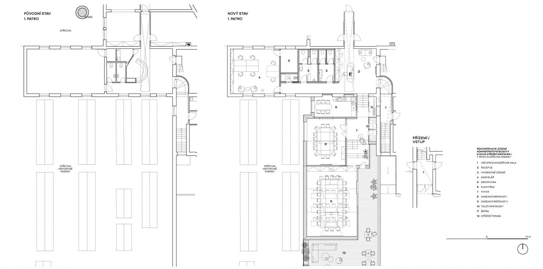
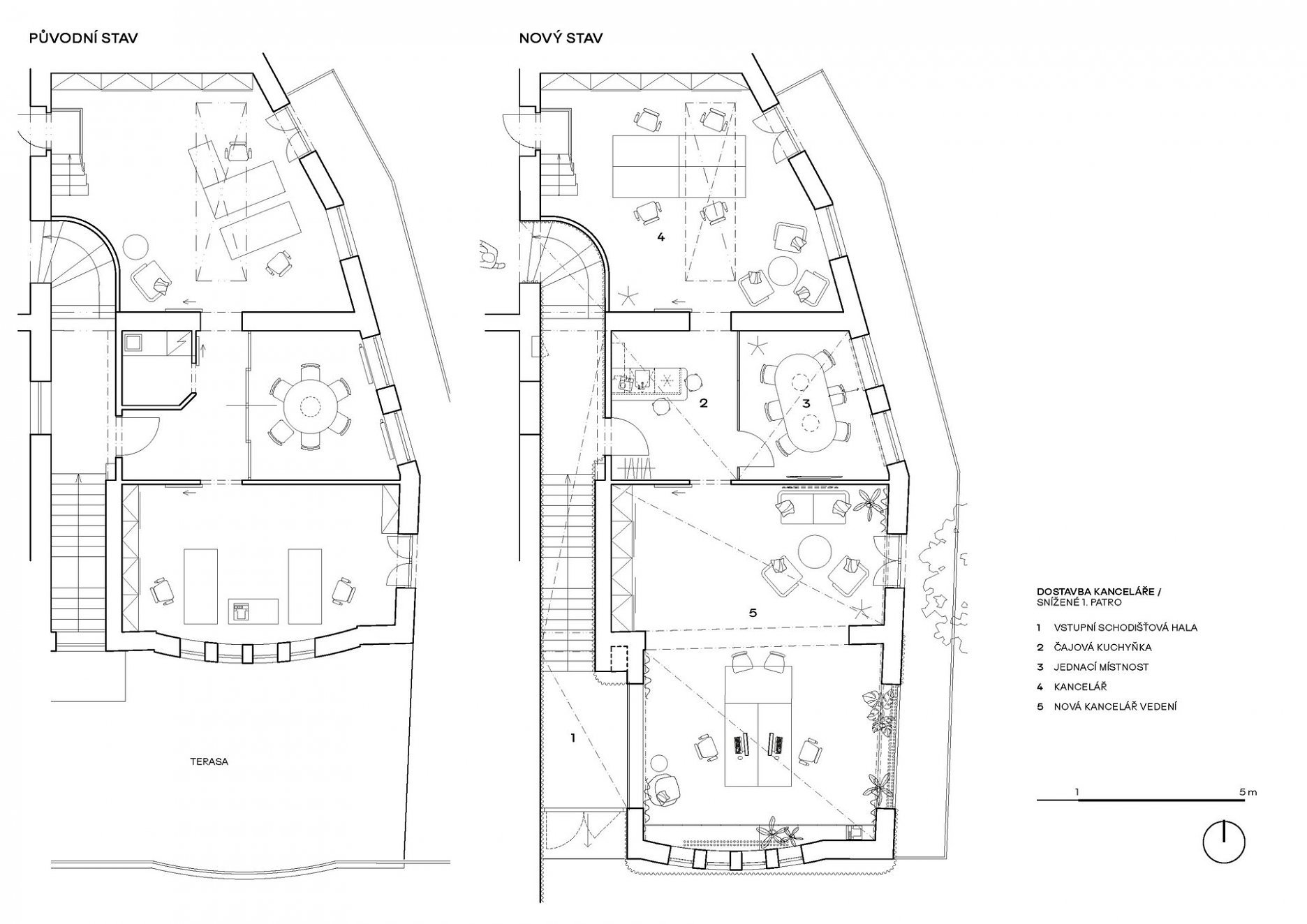
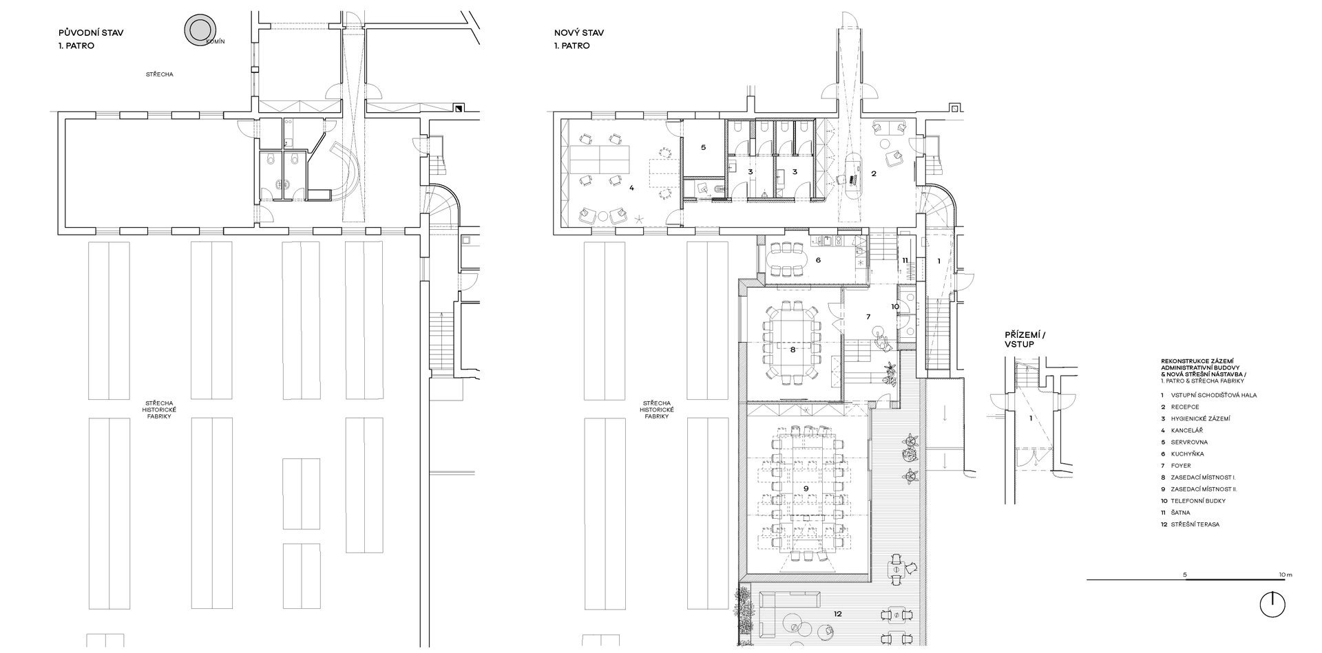
Dostavba administratívnej časti spoločnosti USSPA, Dolní Dobrouč (ČR)

Koncepčný rast a rozšírenie sídla firmy.
Diela
Red 408.06.2023
6210+19
Dostavba administratívnej časti spoločnosti USSPA, Dolní Dobrouč (ČR)
Autori: MgA. Roman Vrtiška, MgA. Vladimír ŽákSpolupráca: Ing. arch. Lucie NěmcováPodlažná plocha: 287 m2Návrh: 2019 - 2020Realizácia: 2021 - 2022Adresa: 384, Dolní Dobrouč , Česká republikaPublikované: 8. jún 2023

Aktuálna realizácia pražského ateliéru Vrtiška & Žák vo východných Čechách rozširuje areál spoločnosti USSPA, ktorá sa zaoberá výrobou bazénov a víriviek.

Projekt, ktorý reagoval na poddimenzované administratívne zázemie firmy, zahŕňa dostavbu administratívneho objektu, zjednotenie vstupnej časti a rekonštrukciu interiéru pôvodnej stavby. Nadstavba na strechy výrobnej haly rozšírila priestory o zasadacie miestnosti, longue zónu, a rozsiahlu pobytovú terasu.

Charakteristickú siluety nadstavby charakterizuje shedová strecha a veľkoplošné výplne z komôrkového polykarbonátu. Výsledkom je vzdušný a presvetlený interiér nadstavby.

Autorský zámer, ktorým bolo jasné odlíšenie nových objektov v areáli, podporuje zvolený obvodový plášť. Autori pracujú s polotransparentnou textúrou perforovaných vlnitých plechov, prostredníctvom ktorých sa snažia pomerne veľké stavebné objemy opticky “odľahčiť”. 

Druhá fáza projektu zahŕňala zväčšenie plochy kancelárie majiteľov. Architekti zároveň rozšírili pôvodný vstup do objektu. Vo vstupnej časti prebieha vlnitý plech z fasády aj do interiéru, lemuje schodisko a pokračuje do priestorov recepcie. “Docílili jsme tak prolnutí exteriéru a interiéru. Koncepčně je interiér dělen na bílou / stávající část a dřevěnou / novou dostavbu.Tím jsme chtěli navigačně rozlišit, ve kterých prostorách se člověk nachází,” vysvetľujú architekti.

Revitalizácia areálu naďalej pokračuje. Ateliér Vrtiška & Žák aktuálne pripravuje úpravu vonkajších plôch, zelene a dostavbu zamestnaneckého wellness.

Autor: Vrtiška & Žák
Autor: Vrtiška & Žák
Autor: Vrtiška & Žák
Autor: Vrtiška & Žák
Autor: Vrtiška & Žák
Autor: Vrtiška & Žák
Foto: Kristina Hrabětová
Foto: Kristina Hrabětová
Foto: Kristina Hrabětová
Foto: Kristina Hrabětová
Foto: Kristina Hrabětová
Foto: Kristina Hrabětová
Foto: Kristina Hrabětová
Foto: Kristina Hrabětová
Foto: Kristina Hrabětová
Foto: Kristina Hrabětová
Foto: Kristina Hrabětová
Foto: Kristina Hrabětová
Foto: Kristina Hrabětová
Foto: Kristina Hrabětová
Foto: Kristina Hrabětová
Foto: Kristina Hrabětová
Foto: Kristina Hrabětová
Foto: Kristina Hrabětová
Foto: Kristina Hrabětová
Foto: Kristina Hrabětová
Foto: Kristina Hrabětová
Foto: Kristina Hrabětová
Foto: Kristina Hrabětová
Foto: Kristina Hrabětová
Foto: Kristina Hrabětová
Foto: Kristina Hrabětová
Foto: Kristina Hrabětová
Foto: Kristina Hrabětová
Foto: Kristina Hrabětová
Foto: Kristina Hrabětová

Podklady: Vrtiška & Žák
Fotografie: Kristina Hrabětová

Poloha diela

MgA. Roman Vrtiška
MgA. Vladimír Žák
Vložené
6. jún 2023
0
621
Hlavný obsahHlavný obsah
Čakajte prosím