Využite špeciálnu akciu Internorm: okná za minuloročné ceny a hliníkový kryt úplne zadarmo. Ponuka je časovo obmedzená!
Na podujatí sa predstaví až 37 vystavovateľov - popredných dodávateľov stavebných materiálov a inovácií s prezentáciou...
Sumarizácia najdôležitejších inovácií, ktoré redefinujúcich využitie tohto energetického zdroja.
AMPHIBIA 3000 GRIP 1.3 od spoločnosti ATRO predstavuje modernú hydroizolačnú technológiu, ktorá spája vysokú odolnosť,...
Ambiciózne plány EK narazili na ekonomické možnosti domácností v jednotlivých členských štátoch –...
IDEA DOOR od spoločnosti JAP prináša do interiéru čistý minimalistický vzhľad vďaka bezrámovému riešeniu a precíznej...
Kontinuita riešenia od vonkajšieho obkladu až po kovania a kľučky.
Nástenné nadomietkové armatúry Vitus sú mimoriadne vhodné pre rýchlu a efektívnu...
Okenné profily z kompozitného materiálu RAU-FIPRO X od spoločnosti Rehau sú v porovnaní s tradičnými plastovými profilmi mnohonásobne...
Najnovší sortiment stolov pre zariadenie interiérov...
Spojenie moderného dizajnu, funkčnosti a svetla do harmonického architektonického prvku.
Kancelárska budova Baumit v slovinskom Trzine prešla premenou na moderné a udržateľné pracovisko. Architekti kládli dôraz...
Mottom šiesteho ročníku on-line konferencie odborníkov Xella Dialóg je Efektívny návrh budov 2025+: zmeny a riešenia
Robot WLTR predstavuje moderný prístup k murovaným konštrukciám. Vďaka automatizácii dokáže rýchlo, presne a bezpečne realizovať...
Okrem bezpečnosti majú okná aj elegantný vzhľad, pretože nie sú viditeľné žiadne uzamykacie časti kovania.

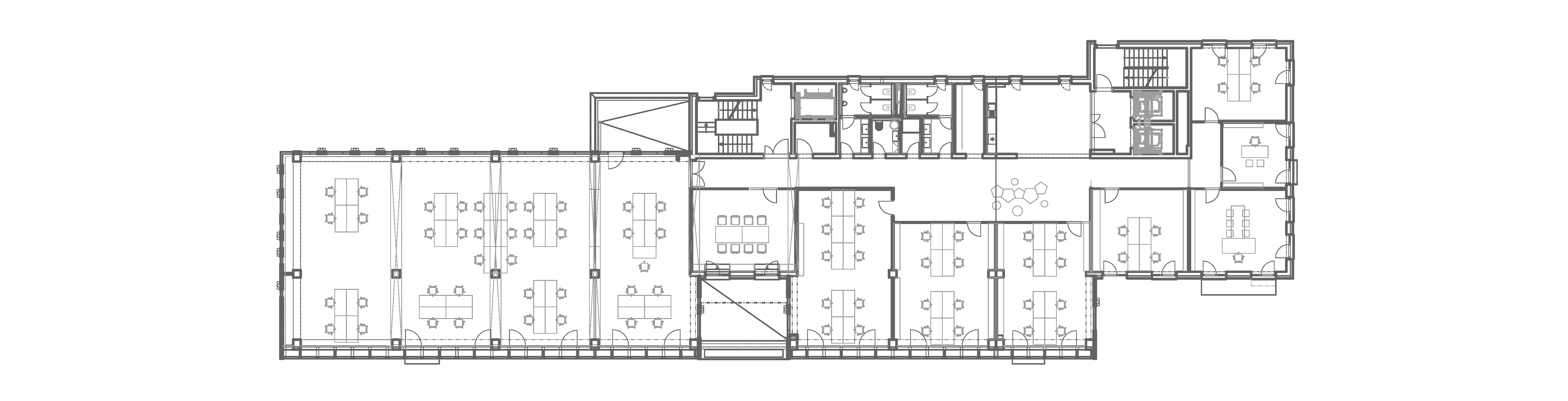
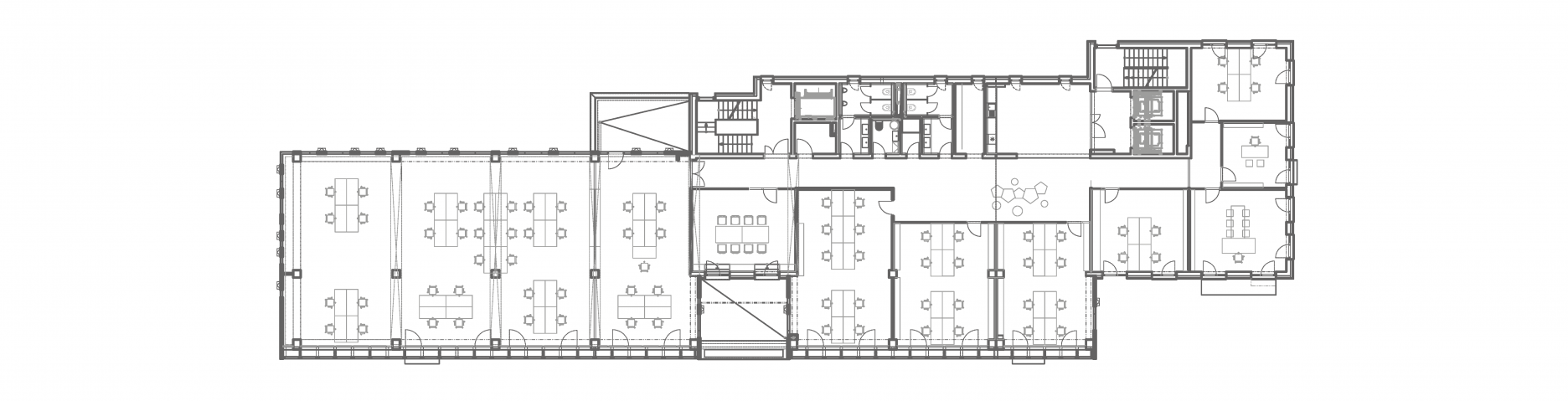
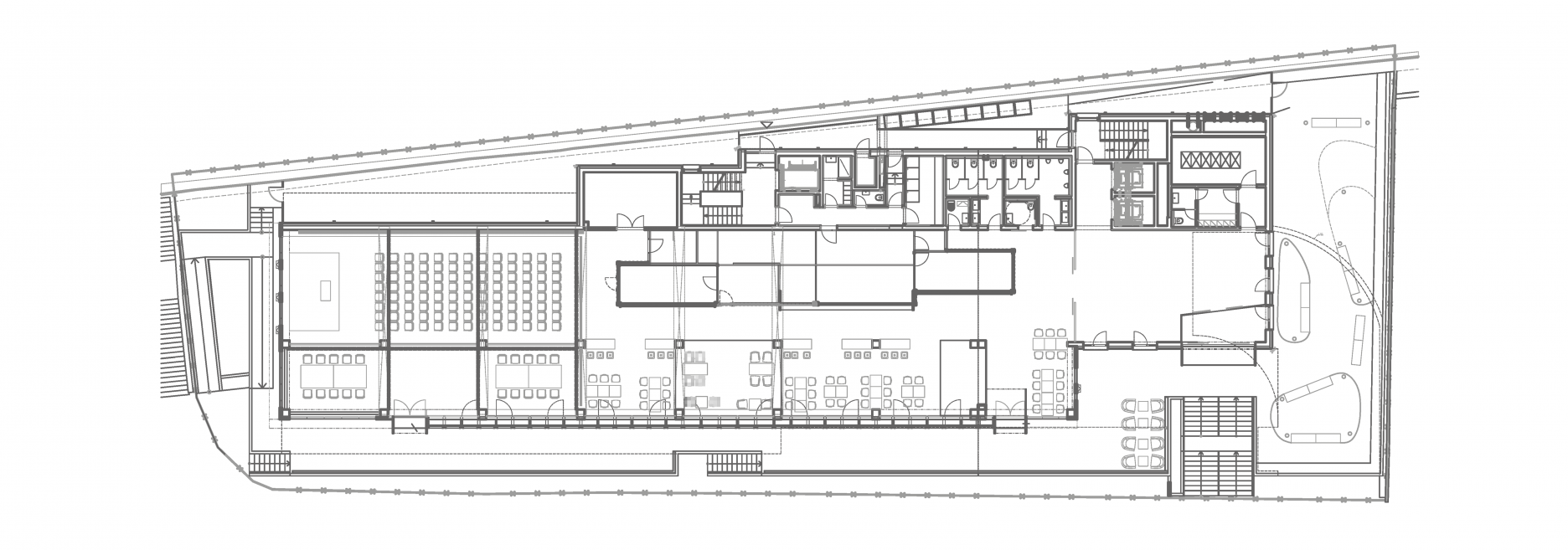
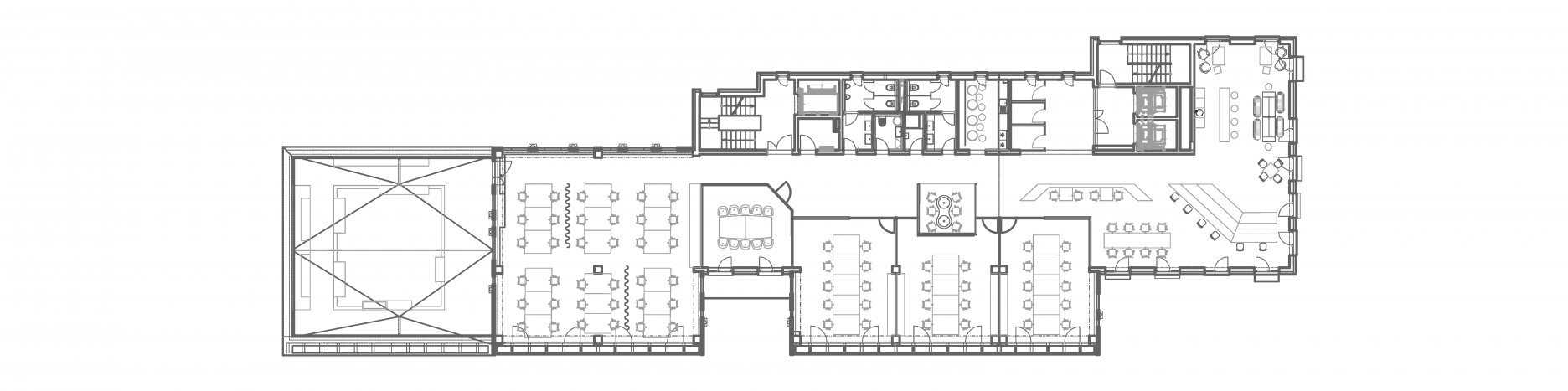
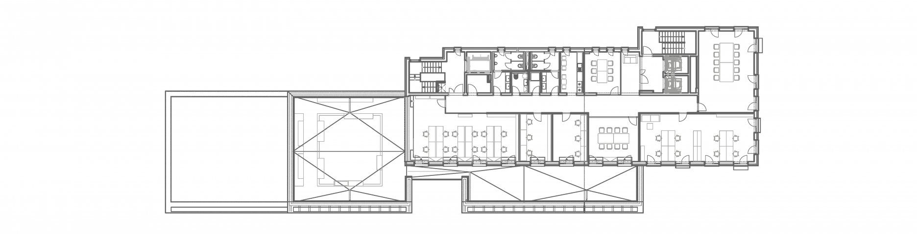
Jeho nájomníkmi sú firmy a organizácie z technologického sektora. Administratívna budova BINARIUM sa nachádza v Mlynskej doline v blízkom kontakte s univerzitným IT campusom. Poloha objektu je z tohto dôvodu strategická. Hlavnú náplň tvorí technologické startup centrum. BINARIUM má charakteristické vlastnosti kancelárskych objektov súčasnosti - od samotného dizajnu budovy, flexibilných veľkopriestorových kancelárií až po nízkoenergetické parametre.
Rudohradskí vstúpili do projektu pred začiatkom realizácie. Po vypočutí požiadaviek nového investora projekt upravili a viedli ho až do ukončenia stavby.
Objekt pozostáva z dvoch prelínajúcich sa hmôt položených na betónovej podnoži. Vyššia štvorposchodová hmota má tmavosivý veľkoformátový betónový obklad. V plášti sú v prísne pravidelnom kroku umiestnené okenné otvory z ktorých plasticky vystupujú farebné šambrány. Nižšia trojposchodová hmota pôsobí ľahšie a subtílnejšie aj vďaka tomu, že je opláštená dvojitou transparentnou fasádou. Odkrýva nosný systém stužidiel podporených červenou farbou.
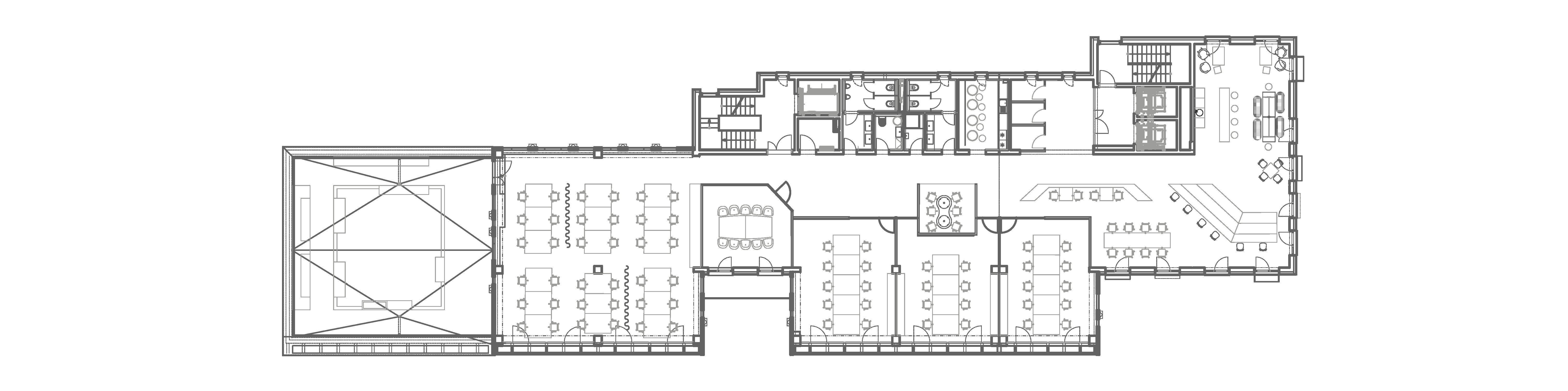
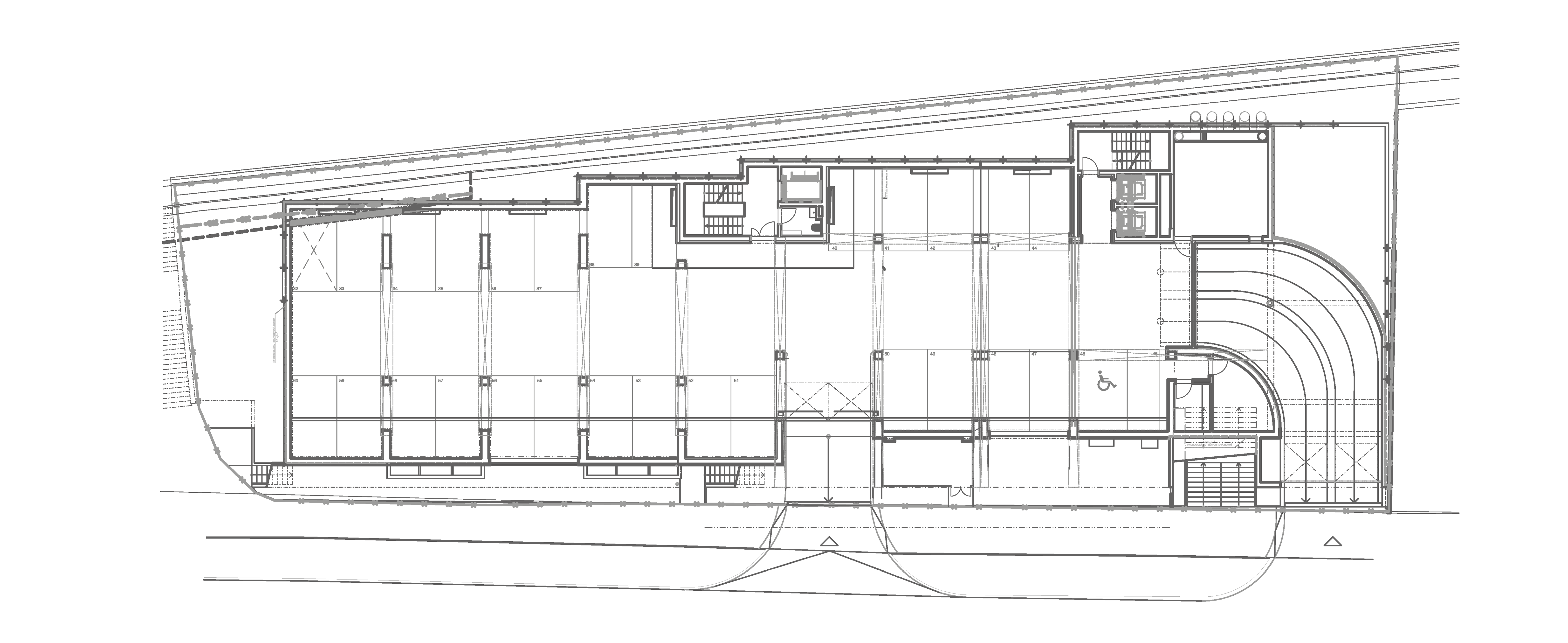
Na prízemí sa nachádzajú priestory reštaurácie, kaviarne a systém veľkopriestorov pre usporiadanie rôznych prednášok či seminárov. V hlavnom vstupe do budovy sa nachádza objektová recepcia. Všetky podlažia sú obsluhované dvoma vertikálnymi komunikačnými jadrami. Hlavné jadro pri objektovej recepcii je vybavené dvojicou výťahov a schodiskom. Vedľajšie jadro slúži pre zásobovanie a je vybavené veľkokapacitným výťahom. Budova má zabezpečené parkovanie v priestoroch dvojpodlažného suterénu.
Kancelárske priestory umožňujú vytvárať kvalitné a variabilné administratívne priestory vďaka dispozičnému rozčleneniu tak, aby sa v priestore nachádzalo, čo možno najmenej konštrukčných prvkov. Preto je tu použitý nosný systém oceľových "deltabox" nosníkov od firmy Peiko s veľkým rozponom. Všetky technologické zariadenia vykurovania a taktiež chladenia a vzduchotechniky sú umiestňované pod stropom tak, aby čo možno najmenej ovplyvňovali prípadné iné dispozičné členenie priestoru.
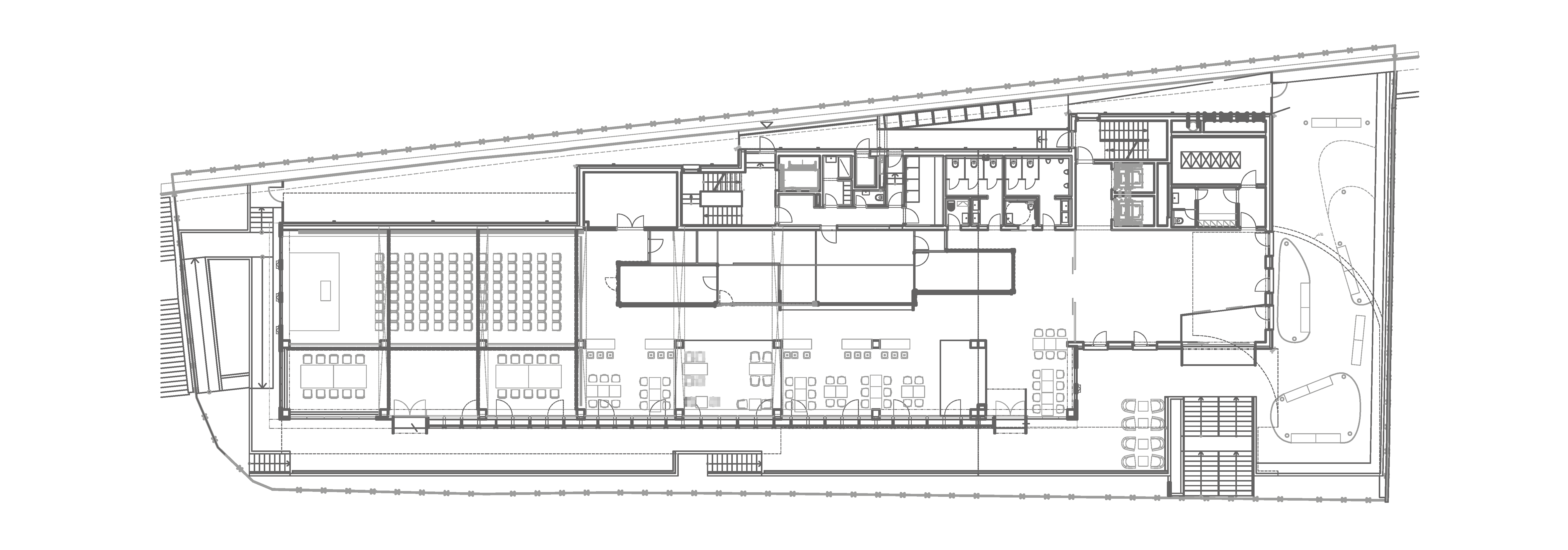
Na južnej fasáde smerom ku komunikácii je navrhnutá dvojitá fasáda ako energeticky nárazový priestor. Vnútorná fasáda tohto celku spĺňa všetky teplotechnické parametre kladené na štandardnú fasádu. Vonkajšia presadená fasáda je tvorená ľahkým bezrámovým zasklením z bezpečnostného skla na nerezové úchyty osadené v medzipriestore. Tienenie je zabezpečené pomocou nastaviteľných horizontálnych žalúzii. Celý systém osvetlenia, tienenia a chladenia je riadený nadradenou reguláciou. Vyhodnocovaný je tak, aby žalúzie zabezpečili dostatočné preslnenie kancelárii a zároveň odrážali slnečné žiarenie a minimalizovali tepelné zisky. Na základe svetelných podmienok sa upravuje intenzita osvetlenia. Výsledkom tejto technológie je úspora energie na svietenie, či chladenie objektu. Konštrukcia predsadenej fasády taktiež zlepšuje akustickú pohodu vnútorných priestorov od hluku z exteriéru.
Požiadavkou investora bolo vytvoriť zelenú budovu nielen čo sa týka energetiky, ale aj formovaním prostredia. Okolie je upravené záhradou a záhonmi. Pri ukončení dvojitej fasády boli v atike osadené kvetináče. Zeleň by časom mala pribudnúť aj do samotnej dvojitej fasády.
Podklady: Rudohradský