Využite špeciálnu akciu Internorm: okná za minuloročné ceny a hliníkový kryt úplne zadarmo. Ponuka je časovo obmedzená!
Na podujatí sa predstaví až 37 vystavovateľov - popredných dodávateľov stavebných materiálov a inovácií s prezentáciou...
Sumarizácia najdôležitejších inovácií, ktoré redefinujúcich využitie tohto energetického zdroja.
AMPHIBIA 3000 GRIP 1.3 od spoločnosti ATRO predstavuje modernú hydroizolačnú technológiu, ktorá spája vysokú odolnosť,...
Ambiciózne plány EK narazili na ekonomické možnosti domácností v jednotlivých členských štátoch –...
IDEA DOOR od spoločnosti JAP prináša do interiéru čistý minimalistický vzhľad vďaka bezrámovému riešeniu a precíznej...
Kontinuita riešenia od vonkajšieho obkladu až po kovania a kľučky.
Nástenné nadomietkové armatúry Vitus sú mimoriadne vhodné pre rýchlu a efektívnu...
Okenné profily z kompozitného materiálu RAU-FIPRO X od spoločnosti Rehau sú v porovnaní s tradičnými plastovými profilmi mnohonásobne...
Najnovší sortiment stolov pre zariadenie interiérov...
Spojenie moderného dizajnu, funkčnosti a svetla do harmonického architektonického prvku.
Kancelárska budova Baumit v slovinskom Trzine prešla premenou na moderné a udržateľné pracovisko. Architekti kládli dôraz...
Mottom šiesteho ročníku on-line konferencie odborníkov Xella Dialóg je Efektívny návrh budov 2025+: zmeny a riešenia
Robot WLTR predstavuje moderný prístup k murovaným konštrukciám. Vďaka automatizácii dokáže rýchlo, presne a bezpečne realizovať...
Okrem bezpečnosti majú okná aj elegantný vzhľad, pretože nie sú viditeľné žiadne uzamykacie časti kovania.

Lokalita
Centrála spoločnosti Würth je súčasťou priemyselného areálu v bratislavskej mestskej časti Rača. Objekt sa nachádza na severozápadnom nároží bloku vymedzenom ulicami Bojnická, Pribylinská a Staviteľská.
Zadanie
Ako základ pre nové sídlo slovenskej centrály poslúžil pôvodný firemný objekt, ktorý prešiel výraznou prestavbou a modernizáciou. Spoločnosť ktorá pôsobí v oblasti stavebníctva (predaj montážneho materiálu, strojov a náradia) mala jasnú predstavu o štandarde novej centrály. “Zadaním bolo vytvoriť reprezentatívne sídlo firmy, ktoré bude spĺňať nároky na modernú budovu úzko spätú s exteriérovou zeleňou. Dôležitý bol aj dôraz na použitie alternatívnych zdrojov energie,” vysvetľujú architekti.
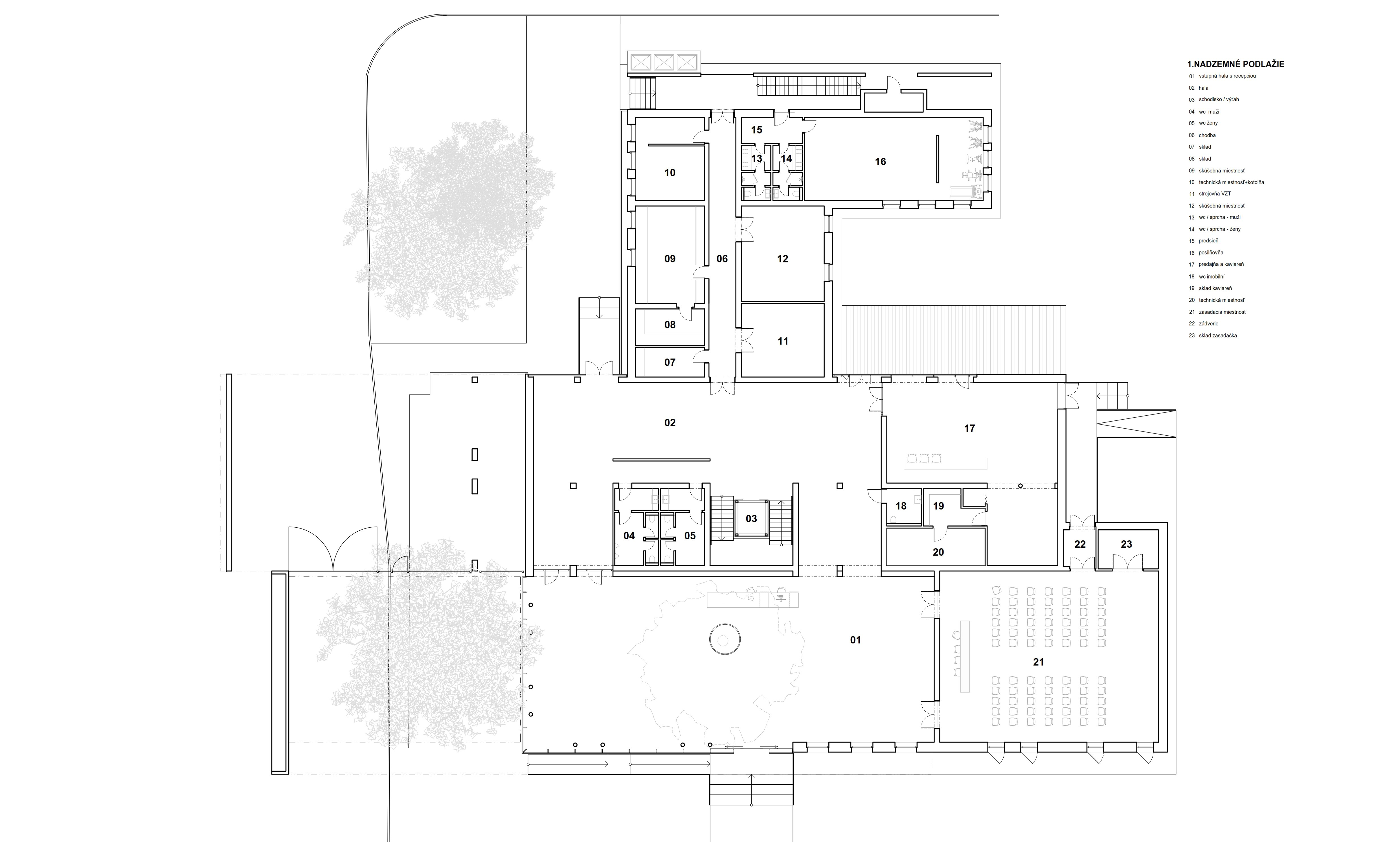
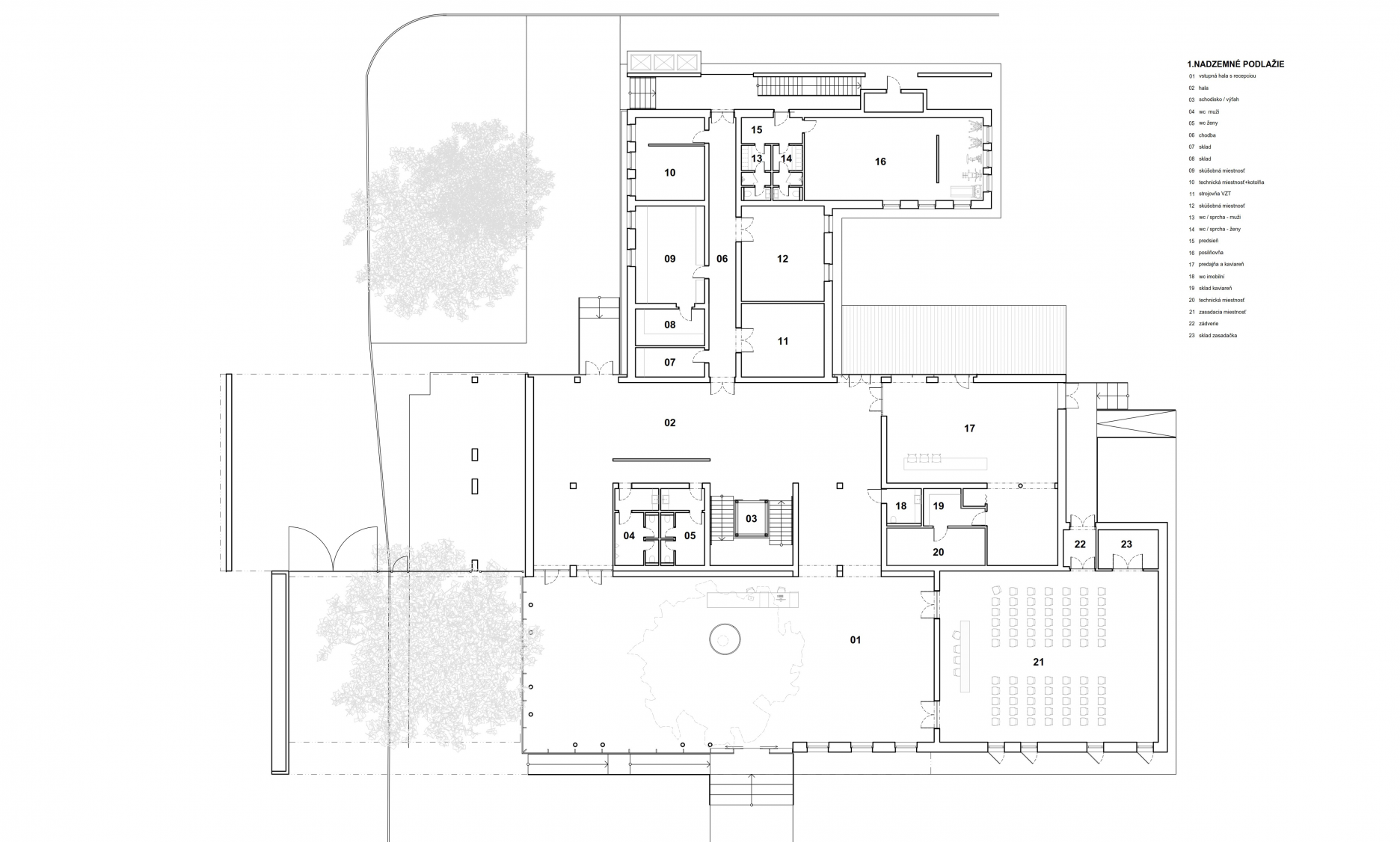
Východiskom pre návrh bol skelet pôvodnej administratívnej budovy z 50. rokov. Nosné steny z dierovaných CDM tehál a prefabrikované železobetónové stropné konštrukcie s neporušenou statikou umožnili rozšírenie a nadstavbu objektu. Doplnenie firemnej budovy o reprezentatívny vstup s galériou umenia, zasadaciu miestnosť pre 100 ľudí, open space kancelárie, riaditeľské podlažie, skúšobne, posilňovňu, či ubytovacie kapacity pre mimobratislavských zamestnancov znamenalo požiadavku na výrazné zväčšenie využiteľnej podlahovej plochy budovy.
Stromy ako súčasť architektúry
Jednou z najväčších výziev pre architektov bolo zachovanie vzrastlých stromov v areáli. “Jediným riešením bolo vyhnúť sa s novými hmotami týmto stromom, respektíve v jednom prípade (platan vo vstupnej hale) nechať strom rásť priamo cez oceľovú prístavbu vstupnej haly. Tento detail bol asi najzložitejšou časťou stavby,” upresňujú. Kmeň stromu je uzavretý v sklenenom tubuse situovanom priamo pred recepciou. Dostatok vlahy zabezpečuje zavlažovanie vedené pod vstupnou halou. Stromy boli pri výstavbe patrične ochránené, aby nedošlo k poškodeniu koreňového systému.
Architektúra, prevádzka a dispozícia
K pôvodnej administratívnej budove pribudla zo severnej strany jednopodlažná prístavba s kombinovanou nosnou konštrukciou (oceľové nosníky a železobetónová stropná doska), ktorá slúži ako nový reprezentačný vstup. Z recepcie je priamo prístupná kongresová hala s kapacitou 100 poslucháčov, ktorá vznikla rozšírením pôvodnej miestnosti.
Na druhom a treťom nadzemnom podlaží sa nachádzajú open space kancelárie, kuchynky a sociálne zariadenie. Na vyšších poschodiach čiastočne nahradili pôvodné murované piliere nové oceľové stĺpy s “I” profilom. Stalo sa tak v miestach, kde bolo možné vybúrať parapet.
Najvyššie podlažie vzniklo ako ľahká oceľová nadstavba na pôvodnom skelete. Kancelárie vedenia spoločnosti striedajú oddychové terasy, ktoré sú pretkané podlažím a tvoria približne 40% jeho celkovej plochy. Vonkajšie terasy sú “uzatvorené” fasádou, takže nenarúšajú ucelenú kompozíciu objektu.
Fasáda s jemnou čipkou
Kongresová hala je opláštená alucobondovým obkladom so "slovenským vzorom", ktorý bol abstrahovaný z tradičnej krížikovej výšivky. Vzor vytvára jemná perforáciou materiálu. Do fasády sú integrované "okenice" ktoré umožňujú presvetlenie kongresovej miestnosti.
Dostatok svetla v kanceláriách
Výplňové murivo nahradila presklená fasáda, ktorá výraznou mierou prispela k zvýšeniu štandardu vnútorných priestorov. Pravidelný raster fasády je oživený farebnými rámami vetracích okienok, na južnej strane je možné celú plochu zatieniť systémom exteriérových žalúzií.
Interiér
Podklady: Expoline / Cubedesign