Advertorial

Pozvánka na 2. ročník stavebného veľtrhu BigMarket na Slovensku

Na podujatí sa predstaví až 37 vystavovateľov - popredných dodávateľov stavebných materiálov a inovácií s prezentáciou...

Hotel Hirschen Spa House, Rakúsko

Novotvar v prostredí alpskej obce.

Vytvorte si kúpeľňu snov: dizajnové riešenie od značky hansgrohe

Hansgrohe - prémiová značka kúpeľňových riešení, ponúka nadčasový dizajn, technickú precíznosť a udržateľné inovácie...

Okná Internorm za minuloročné ceny + hliníkový kryt zdarma!

Využite špeciálnu akciu Internorm: okná za minuloročné ceny a hliníkový kryt úplne zadarmo. Ponuka je časovo obmedzená!

Moderné plynové technológie: Efektivita a inovácie pre 21. storočie

Sumarizácia najdôležitejších inovácií, ktoré redefinujúcich využitie tohto energetického zdroja.

Utesňovanie spodných stavieb pomocou hydro-aktívnej fólie AMPHIBIA.

AMPHIBIA 3000 GRIP 1.3 od spoločnosti ATRO predstavuje modernú hydroizolačnú technológiu, ktorá spája vysokú odolnosť,...

Dekarbonizácia individuálneho vykurovania domácností – Green Deal evolučne a nie revolučne

Ambiciózne plány EK narazili na ekonomické možnosti domácností v jednotlivých členských štátoch –...

Minimalistické dvere IDEA – technická precíznosť a čistota prevedenia

IDEA DOOR od spoločnosti JAP prináša do interiéru čistý minimalistický vzhľad vďaka bezrámovému riešeniu a precíznej...

Dom s výhľadom na údolie, Dlouhý Most (ČR)

Kontinuita riešenia od vonkajšieho obkladu až po kovania a kľučky.

Schell Vitus – osvedčené riešenie pre sprchy a umývadlá vo verejnom sektore s viac ako desaťročnou tradíciou

Nástenné nadomietkové armatúry Vitus sú mimoriadne vhodné pre rýchlu a efektívnu...

Kompozitné okná predstavujú súčasnosť a budúcnosť

Okenné profily z kompozitného materiálu RAU-FIPRO X od spoločnosti Rehau sú v porovnaní s tradičnými plastovými profilmi mnohonásobne...

Myotis - stoly 2025

Najnovší sortiment stolov pre zariadenie interiérov...

Priemyselné sklenené priečky Dorsis Digero: svetelné rozhranie pre moderné interiéry

Spojenie moderného dizajnu, funkčnosti a svetla do harmonického architektonického prvku.

Význam prirodzeného svetla pre moderné a flexibilné pracovné prostredie

Kancelárska budova Baumit v slovinskom Trzine prešla premenou na moderné a udržateľné pracovisko. Architekti kládli dôraz...

Konferencia Xella Dialóg predstaví novinky a trendy v stavebníctve

Mottom šiesteho ročníku on-line konferencie odborníkov Xella Dialóg je Efektívny návrh budov 2025+: zmeny a riešenia

Mezonetový byt, III Veže, Bratislava

Precízny interiér s výhľadmi na panorámu mesta.
Diela
Red 315.11.2024
16050+53
Mezonetový byt, III Veže, Bratislava
Autori: Ing. arch. Branislav Bolco, Ing. arch. Karol Kállay ml., Ing. Radovan ValentaPodlažná plocha: 135 m2Návrh: 2023 - 2023Realizácia: 2023 - 2023Adresa: Bajkalská 12985/9, Bratislava, SlovenskoPublikované: 15. november 2024

Mezonetový bytu v bratislavskom komplexe III Veže charakterizuje voľne plynúca dispozícia a farebne zjednotená podkladová vrstva, na ktorej vynikajú solitérne prvky a materiálové akcenty. Priebežné bloky vstavaného nábytku integrujú nevyhnutné obslužné funkcie a úložné priestory,  pričom uvoľňujú obytnú plochu bytu.

Foto: Tomáš Manina
Foto: Tomáš Manina
Foto: Tomáš Manina

Realizáciu predstavíme prostredníctvom sprievodného textu autorov z ateliéru Cubedesign:

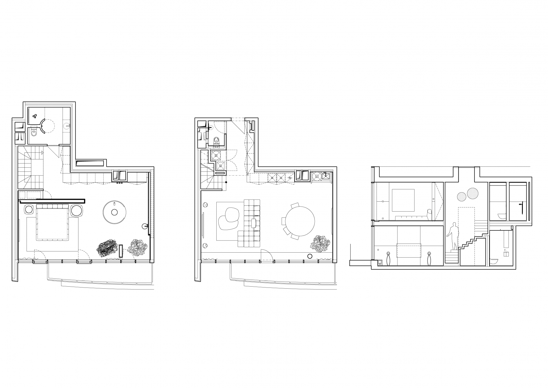
Dvojpodlažný mezonetový byt sa nachádza v bytovom komplexe III Veže v Bratislave. Západná orientácia na mesto predurčila zadanie, ktoré od úvodu kládlo dôraz na minimalistické tvarové a materiálové riešenie. Klinicky biele povrchy slúžia ako vizuálne čistý podklad pre samotný interiér a nechávajú vyznieť prírodné travertínové obklady a jednotlivé nábytkové solitéry.

Vstup do bytu sa nachádza na spodnom z dvoch podlaží, kde zostala dispozícia bez zásahov. Objem vstupnej šatníkovej zostavy plynulo prechádza do vysokej časti kuchynskej linky, čím sa podarilo zakryť objemné vertikálne šachty stavby a priestor sa vizuálne zjednotil. V posledných segmentoch vysokej kuchynskej zostavy sa nachádza kuchynský drez s malou pracovnou plochou, ktorá však po zatvorení dvierok mizne v súvislej bielej vertikálnej stene. Ako pracovná plocha a zároveň zvýšené sedenie sa stáva tvarovo dominantné teleso ostrova kruhového pôdorysného tvaru. Kruh ako tvar bol zvolený pre svoju čistotu, zároveň priestor prísne "kuchynsky" nedefinuje a ponecháva plynulú a nekonfliktnú možnosť pohybu vo svojej bezprostrednej blízkosti. Materiálovú dominant spodného podlažia tvorí travertínová stena, ktorá svojim výrazom priestor oživuje a harmonizuje.

Trojramenným schodiskom sa dostávame na druhé nadzemné podlažie. Vybúraním deliacich priečok pôvodnej dispozície sa vytvoril otvorený priestor, ktorý sme sa rozhodli deliť obchôdznou travertínovou stenou. Táto zabezpečuje intimitu nočnej časti a svojou nepravidelnou kresbou narúša vizuálnu čistotu a strohosť okolitého interiéru. Vzhľadom na veľkorysosť vyčistenej dispozície sa v týchto priestoroch nachádzajú aj prvky hygieny – voľne stojace umývadlo a semi-transparentný sprchovací kút. Svojím kruhovým pôdorysným tvarom nadväzujú na prvky ostrova, prípadne strešných svetlíkov, ktoré komorne presvetľujú vnútorné časti dispozície a umožnili použitie atypického priestorového delenia.

Na druhom podlaží sa tiež nachádza samostatná kúpeľňa, ktorá sa obdobne podriaďuje tvaru kruhu v náväznosti na strešný svetlík. Novonavrhnutá oblúková priečka tak vytvára symetrickú zástenu pre WC a sprchovací kút.

Pôdorysy a rez
Pôdorysy a rezAutor: Cubedesign
Foto: Tomáš Manina
Foto: Tomáš Manina
Foto: Tomáš Manina
Foto: Tomáš Manina
Foto: Tomáš Manina
Foto: Tomáš Manina
Foto: Tomáš Manina
Foto: Tomáš Manina
Foto: Tomáš Manina
Foto: Tomáš Manina
Foto: Tomáš Manina
Foto: Tomáš Manina
Foto: Tomáš Manina

Podklady: Cubedesign
Fotografie: Tomáš Manina

Poloha diela

Ing. arch. Branislav Bolco
Ing. arch. Karol Kállay ml.
Ing. Radovan Valenta
Vložené
12. november 2024
0
1605
Hlavný obsahHlavný obsah
Čakajte prosím