Advertorial

Pozvánka na 2. ročník stavebného veľtrhu BigMarket na Slovensku

Na podujatí sa predstaví až 37 vystavovateľov - popredných dodávateľov stavebných materiálov a inovácií s prezentáciou...

Hotel Hirschen Spa House, Rakúsko

Novotvar v prostredí alpskej obce.

Vytvorte si kúpeľňu snov: dizajnové riešenie od značky hansgrohe

Hansgrohe - prémiová značka kúpeľňových riešení, ponúka nadčasový dizajn, technickú precíznosť a udržateľné inovácie...

Okná Internorm za minuloročné ceny + hliníkový kryt zdarma!

Využite špeciálnu akciu Internorm: okná za minuloročné ceny a hliníkový kryt úplne zadarmo. Ponuka je časovo obmedzená!

Moderné plynové technológie: Efektivita a inovácie pre 21. storočie

Sumarizácia najdôležitejších inovácií, ktoré redefinujúcich využitie tohto energetického zdroja.

Utesňovanie spodných stavieb pomocou hydro-aktívnej fólie AMPHIBIA.

AMPHIBIA 3000 GRIP 1.3 od spoločnosti ATRO predstavuje modernú hydroizolačnú technológiu, ktorá spája vysokú odolnosť,...

Dekarbonizácia individuálneho vykurovania domácností – Green Deal evolučne a nie revolučne

Ambiciózne plány EK narazili na ekonomické možnosti domácností v jednotlivých členských štátoch –...

Minimalistické dvere IDEA – technická precíznosť a čistota prevedenia

IDEA DOOR od spoločnosti JAP prináša do interiéru čistý minimalistický vzhľad vďaka bezrámovému riešeniu a precíznej...

Dom s výhľadom na údolie, Dlouhý Most (ČR)

Kontinuita riešenia od vonkajšieho obkladu až po kovania a kľučky.

Schell Vitus – osvedčené riešenie pre sprchy a umývadlá vo verejnom sektore s viac ako desaťročnou tradíciou

Nástenné nadomietkové armatúry Vitus sú mimoriadne vhodné pre rýchlu a efektívnu...

Kompozitné okná predstavujú súčasnosť a budúcnosť

Okenné profily z kompozitného materiálu RAU-FIPRO X od spoločnosti Rehau sú v porovnaní s tradičnými plastovými profilmi mnohonásobne...

Myotis - stoly 2025

Najnovší sortiment stolov pre zariadenie interiérov...

Priemyselné sklenené priečky Dorsis Digero: svetelné rozhranie pre moderné interiéry

Spojenie moderného dizajnu, funkčnosti a svetla do harmonického architektonického prvku.

Význam prirodzeného svetla pre moderné a flexibilné pracovné prostredie

Kancelárska budova Baumit v slovinskom Trzine prešla premenou na moderné a udržateľné pracovisko. Architekti kládli dôraz...

Konferencia Xella Dialóg predstaví novinky a trendy v stavebníctve

Mottom šiesteho ročníku on-line konferencie odborníkov Xella Dialóg je Efektívny návrh budov 2025+: zmeny a riešenia

Rodinný dom Náves, Konská pri Rajci

Úzky svahovitý pozemok s atraktívnym výhľadom predurčil formu malého drevodomu. Osadenie vyžadovalo minimálne úpravy terénu. Dom Je navrhnutý pre štvorčlennú rodinu s malými nárokmi na priestor, ale s veľkými nárokmi na kvalitu bývania.
Diela
Red 319.06.2017
109260+38
Rodinný dom Náves, Konská pri Rajci
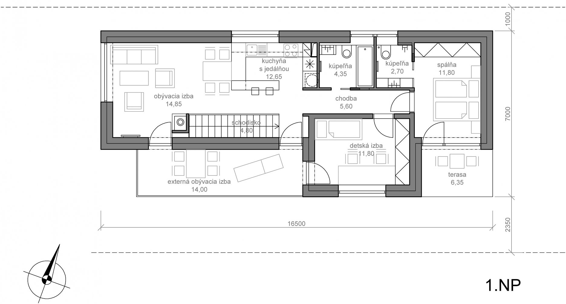
Autori: Ing. Mgr. art. Marek VerešInvestor: Marek Vereš, Eva VerešováPlocha pozemku: 400 m2Zastavaná plocha: 95 m2Podlažná plocha: 95 m2Obostavaný objem: 451 m3Investičný náklad: 83 000€Návrh: 2013 - 2014Realizácia: 2015 - 2016Adresa: Slnečná 528/107 , Konská , SlovenskoPublikované: 19. jún 2017

Dielo predstavuje architekt a zároveň investor Marek Vereš:

Potreba vlastného bývania sa prehĺbila pri očakávaní druhého syna. Vtedy sa nám podarilo nájsť „lacný“ pozemok, ktorý nikto nechcel. Je úzky (10,35 m), je svahovitý, je ďaleko od inžinierskych sietí, ale je krásny a je náš.

Tieto faktory predurčili základný tvar a dispozíciu domu. Už aj tak úzka hmota domu je ustúpená o ďalšie 2 metre, pre získanie kúsku súkromia v prípade že v susedstve vyrastie ďalší dom. Veľké okná sú umiestnené práve v ustúpenej hmote, čím sa dostávame 4,35 m od hranice pozemku a získavame dve terasy – južnú a východnú.

S manželkou máme minimálne nároky na priestor, ale o to vyššie nároky na kvalitu. Domček je malý a každým dňom sa stále viac presviedčame, že nám bohato stačí dokonca aj keď očakávame ďalší prírastok. Keď budeme piati a po čase budú puberťáci chcieť každý svoju izbu, môžu si dorobením dvoch stien na mieste súčasného parkovania vybudovať vlastný priestor.

Konštrukcia je kombinovaná, suterén je betónový a obytné podlažie je drevené s murovanými vnútornými priečkami a betónovými podlahami pre lepšie akumulačné schopnosti. V každej izbe je minimálne jedna stena s hlinenou omietkou najmä pre výbornú reguláciu vlhkosti, na ktorú sú drevostavby citlivé, tiež pre pohlcovanie pachov a v neposlednom rade pre úžasnú prirodzenú farbu hliny. Prírode sme sa snažili priblížiť aj zelenou extenzívnou strechou s vegetáciou lúčnych bylín, ktorá je nad celým obytným podlažím (minulý rok tam vyrástla paradajka, ktorá bola fakt chutná, i keď neviem, kde sa tam zobrala).

Fasáda prezrádza materiál nosnej konštrukcie, drevená časť má drevený obklad, betónová časť má bielosivú omietku. V interiéri pokračuje odhaľovanie konštrukcie – priznané betónové stropy v suteréne a nesmrteľná kombinácia dreva (dub a smrek v prirodzenej farbe) a bielej omietky.

Obvodový plášť je v kvalite pasívneho domu, no pasívny štandard nebolo možné dosiahnuť vďaka malej výmere a hlavne vysokému faktoru tvaru (nekompaktný tvar). Napriek tomu dom spĺňa kritéria kategórie A0 – budovy s takmer nulovou spotrebou energie, o čom svedčia aj mesačné náklady na vykurovanie, ohrev pitnej vody a chladenie = 11,50€/mesačne. V cene je zahrnuté palivo, ktoré je tvorené z 98% drevom a 2% elektrinou, ďalej elektrina potrebná na chod celého systému (obehové čerpadlá, vzduchotechnika atď.).

Počas tohtoročnej tuhej zimy sa nám podarilo spotrebovať len 2,8 m3 dreva.

Zdrojom tepla je teplovodný krb s nominálnym výkonom 8kW, ktorý zabezpečuje ohrev vykurovacej aj úžitkovej vody. Cez leto sa o teplú vodu starajú solárne panely umiestnené na južnej fasáde, ktoré zároveň slúžia ako tienenie letného slnka. O vetranie a rozvod tepla a chladu sa stará centrálna vzduchotechnická jednotka s rekuperáciou tepla. Chladenie je zabezpečené vodou zo studne, ktorá má za každých podmienok 8°C. Za cenu chodu obehového čerpadla so smiešnym príkonom dostaneme chladiaci výkon 1,5 kW, no vďaka kvalitnému zatepleniu, exteriérovému tieneniu a akumulačnej hmote v interiéri bolo chladenie zapnuté len keď som skúšal, či funguje.

Teplovodným krbom sme si urobili kotolňu z obývačky, ale tomu pohľadu na oheň dokáže konkurovať len výhľad z okna.

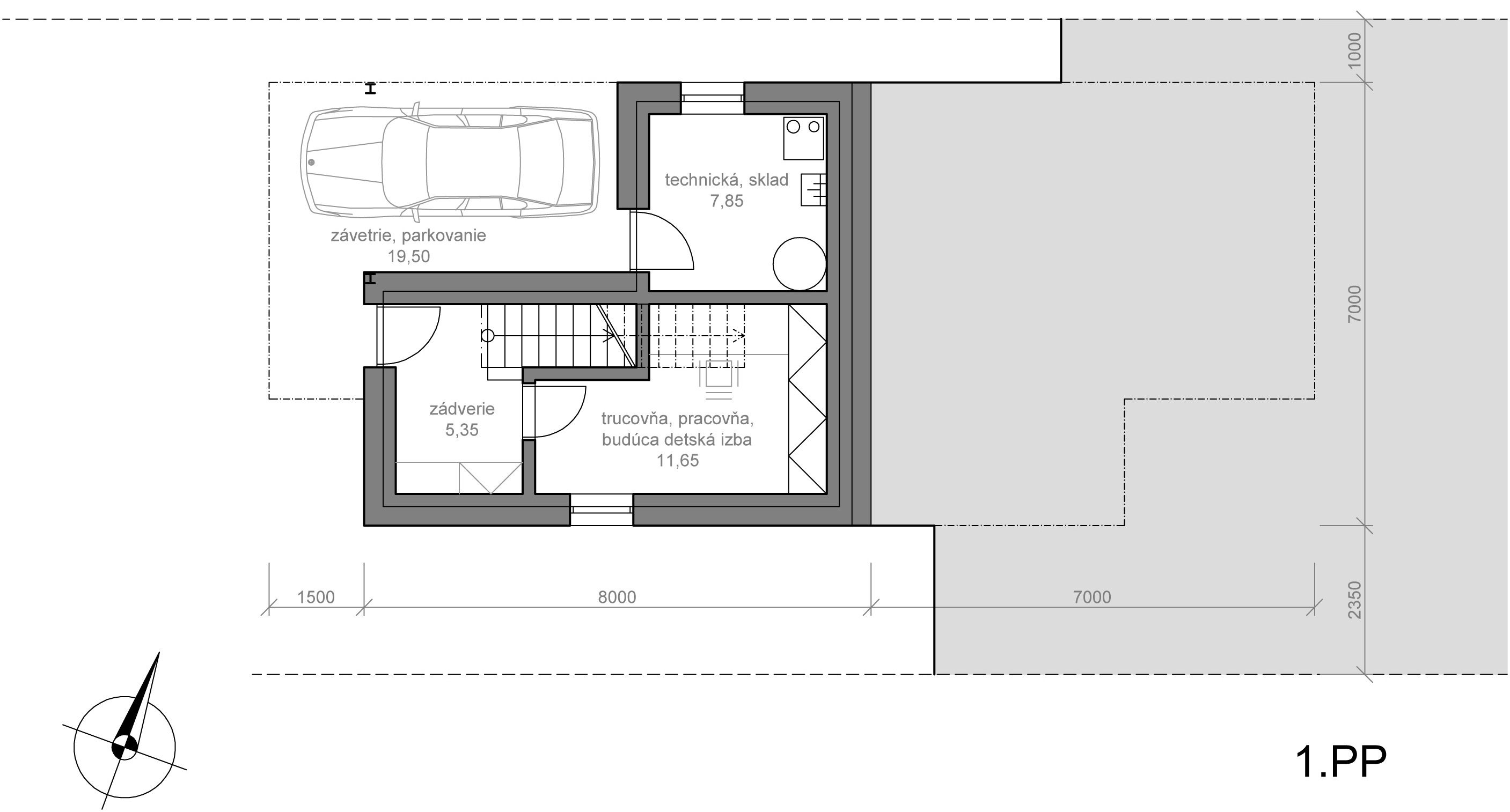
Pôdorys 1. PP
Pôdorys 1. PPAutor: Marek Vereš
Pôdorys 1. NP
Pôdorys 1. NPAutor: Marek Vereš
Rez
RezAutor: Marek Vereš
Detail zelenej strechy
Detail zelenej strechyAutor: Marek Vereš

Fotografie zo stavby:

Text: Marek Vereš 
Foto: Martin Gura, Marek Vereš

Poloha diela

Ing. Mgr. art. Marek Vereš

Súvisiace články

Vložené
14. jún 2017
0
10926
Hlavný obsahHlavný obsah
Čakajte prosím