Advertorial

95 rokov Internorm: 30 miliónov okien a dverí z Rakúska

Európska značka okien oslavuje jubileum: za 95 rokov sa vyvinula na najväčšiu medzinárodne pôsobiacu okennú značku a inovačného...

Pozvánka na 2. ročník stavebného veľtrhu BigMarket na Slovensku

Na podujatí sa predstaví až 37 vystavovateľov - popredných dodávateľov stavebných materiálov a inovácií s prezentáciou...

Hotel Hirschen Spa House, Rakúsko

Novotvar v prostredí alpskej obce.

Vytvorte si kúpeľňu snov: dizajnové riešenie od značky hansgrohe

Hansgrohe - prémiová značka kúpeľňových riešení, ponúka nadčasový dizajn, technickú precíznosť a udržateľné inovácie...

Okná Internorm za minuloročné ceny + hliníkový kryt zdarma!

Využite špeciálnu akciu Internorm: okná za minuloročné ceny a hliníkový kryt úplne zadarmo. Ponuka je časovo obmedzená!

Moderné plynové technológie: Efektivita a inovácie pre 21. storočie

Sumarizácia najdôležitejších inovácií, ktoré redefinujúcich využitie tohto energetického zdroja.

Utesňovanie spodných stavieb pomocou hydro-aktívnej fólie AMPHIBIA.

AMPHIBIA 3000 GRIP 1.3 od spoločnosti ATRO predstavuje modernú hydroizolačnú technológiu, ktorá spája vysokú odolnosť,...

Dekarbonizácia individuálneho vykurovania domácností – Green Deal evolučne a nie revolučne

Ambiciózne plány EK narazili na ekonomické možnosti domácností v jednotlivých členských štátoch –...

Minimalistické dvere IDEA – technická precíznosť a čistota prevedenia

IDEA DOOR od spoločnosti JAP prináša do interiéru čistý minimalistický vzhľad vďaka bezrámovému riešeniu a precíznej...

Dom s výhľadom na údolie, Dlouhý Most (ČR)

Kontinuita riešenia od vonkajšieho obkladu až po kovania a kľučky.

Schell Vitus – osvedčené riešenie pre sprchy a umývadlá vo verejnom sektore s viac ako desaťročnou tradíciou

Nástenné nadomietkové armatúry Vitus sú mimoriadne vhodné pre rýchlu a efektívnu...

Kompozitné okná predstavujú súčasnosť a budúcnosť

Okenné profily z kompozitného materiálu RAU-FIPRO X od spoločnosti Rehau sú v porovnaní s tradičnými plastovými profilmi mnohonásobne...

Myotis - stoly 2025

Najnovší sortiment stolov pre zariadenie interiérov...

Priemyselné sklenené priečky Dorsis Digero: svetelné rozhranie pre moderné interiéry

Spojenie moderného dizajnu, funkčnosti a svetla do harmonického architektonického prvku.

Význam prirodzeného svetla pre moderné a flexibilné pracovné prostredie

Kancelárska budova Baumit v slovinskom Trzine prešla premenou na moderné a udržateľné pracovisko. Architekti kládli dôraz...

Rodinný dom, Bratislava

Dielo z ateliéru MOROCZ_TACOVSKY. Zaujímavé detaily a racionálny koncept.
Diela
Red 423.11.2017
78420+24
Rodinný dom, Bratislava
Autori: Ing. arch. Adrian Mórocz, Ing. arch. Michal Tačovský, Ing. arch. Zuzana Mórocz, Ing. Marián Kamenár, Ing. arch. Helena VojtkováPlocha pozemku: 1 211,24 m2Zastavaná plocha: 240,37 m2Podlažná plocha: 349,45 m2Obostavaný objem: 1277,60 m3Návrh: 2016 - 2016Realizácia: 2016 - 2017Adresa: SlovenskoPublikované: 23. november 2017

Dom je súčasťou novovznikajúcej satelitnej štvrte na západných svahoch Karpát. Dve obytné podlažia dopĺňajú obslužné priestory situované v suteréne. Poschodie je oproti prízemiu ustúpené, čo umožnilo vznik pobytových strešných terás. Použitie plochej strechy bolo tiež podmienené stavebnou reguláciou. 

foto: Martin Žilka
foto: Martin Žilka

Dom je situovaný pozdĺž severovýchodnej hranice pozemku. Hlavná orientácia obytných miestností je juhozápadá a juhovýchodná, smerom do záhrady. Za obývacou časťou je umiestnené zastrešené sedenie s grilom, ktoré komunikuje so záhradou cez drevené tieniace prvky.

foto: Martin Žilka
foto: Martin Žilka

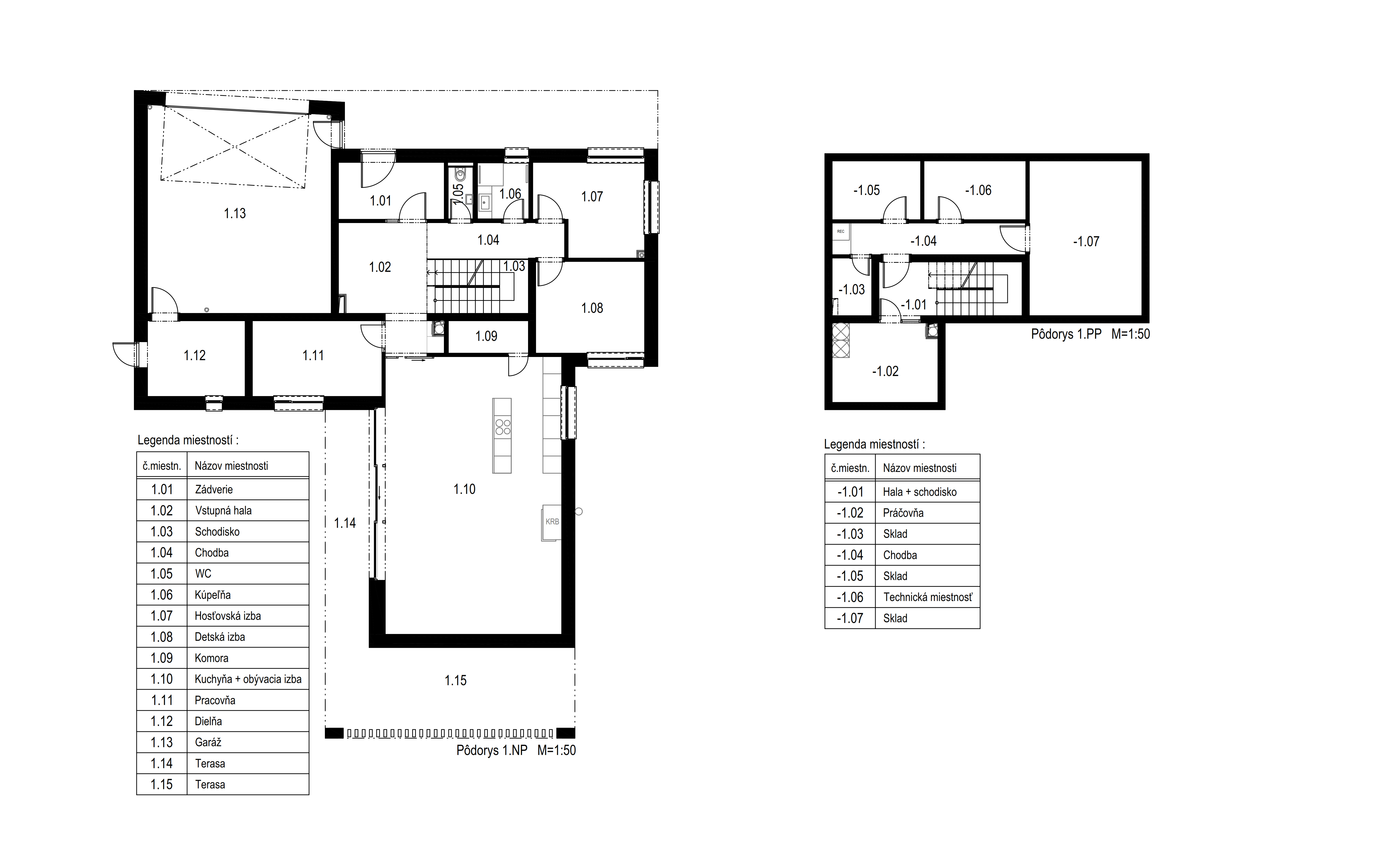
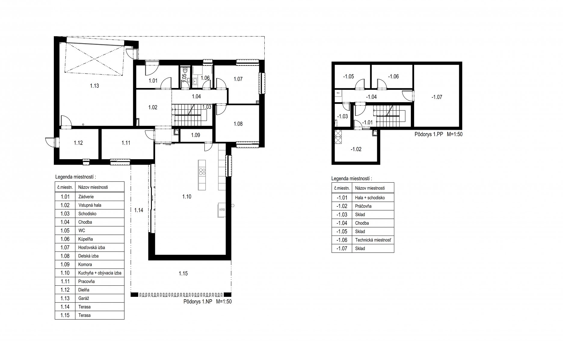
Dispozícia domu odzrkadľuje potreby početnej rodiny. Na otvorený priestor obývacej izby nadväzuje kuchyňa s jedálňou. V dome je päť izieb, dve pracovne a potrebné zázemie (hygiena, šatník, práčovňa, technická miestnosť, sklady, dielňa). Garáž je dimenzovaná pre dve autá. Dom je vybavený rekuperáciou, zaujímavosťou je vírivka s výhľadom, umiestnená na strešnej terase.

Pôdorys 1. NP a 1. PP
Pôdorys 1. NP a 1. PP
Pôdorys 2. NP a strechy
Pôdorys 2. NP a strechy
Priečny rez
Priečny rez
Pozdĺžny rez
Pozdĺžny rez

Na objekte je použitý kontaktný zatepľovací systém s bielou omietkou. Na poschodí tvorí pohľadovú vrstvu omietka, ktorá imituje betónovú štruktúru.

foto: Martin Žilka
foto: Martin Žilka

Garážová brána je precízne zakomponovaná do vstupnej časti domu. Segmenty presne nadväzujú na členenie antracitových fasádnych panelov.

foto: Martin Žilka
foto: Martin Žilka
foto: Martin Žilka
foto: Martin Žilka
foto: Martin Žilka
foto: Martin Žilka
foto: Martin Žilka

Podklady: MOROCZ_TACOVSKY

Poloha diela

Ing. arch. Adrian Mórocz
Ing. arch. Michal Tačovský
Ing. arch. Zuzana Mórocz
Ing. Marián Kamenár
Ing. arch. Helena Vojtková

Súvisiace články

Vložené
15. november 2017
0
7842
Hlavný obsahHlavný obsah
Čakajte prosím