Advertorial

Pozvánka na 2. ročník stavebného veľtrhu BigMarket na Slovensku

Na podujatí sa predstaví až 37 vystavovateľov - popredných dodávateľov stavebných materiálov a inovácií s prezentáciou...

Hotel Hirschen Spa House, Rakúsko

Novotvar v prostredí alpskej obce.

Vytvorte si kúpeľňu snov: dizajnové riešenie od značky hansgrohe

Hansgrohe - prémiová značka kúpeľňových riešení, ponúka nadčasový dizajn, technickú precíznosť a udržateľné inovácie...

Okná Internorm za minuloročné ceny + hliníkový kryt zdarma!

Využite špeciálnu akciu Internorm: okná za minuloročné ceny a hliníkový kryt úplne zadarmo. Ponuka je časovo obmedzená!

Moderné plynové technológie: Efektivita a inovácie pre 21. storočie

Sumarizácia najdôležitejších inovácií, ktoré redefinujúcich využitie tohto energetického zdroja.

Utesňovanie spodných stavieb pomocou hydro-aktívnej fólie AMPHIBIA.

AMPHIBIA 3000 GRIP 1.3 od spoločnosti ATRO predstavuje modernú hydroizolačnú technológiu, ktorá spája vysokú odolnosť,...

Dekarbonizácia individuálneho vykurovania domácností – Green Deal evolučne a nie revolučne

Ambiciózne plány EK narazili na ekonomické možnosti domácností v jednotlivých členských štátoch –...

Minimalistické dvere IDEA – technická precíznosť a čistota prevedenia

IDEA DOOR od spoločnosti JAP prináša do interiéru čistý minimalistický vzhľad vďaka bezrámovému riešeniu a precíznej...

Dom s výhľadom na údolie, Dlouhý Most (ČR)

Kontinuita riešenia od vonkajšieho obkladu až po kovania a kľučky.

Schell Vitus – osvedčené riešenie pre sprchy a umývadlá vo verejnom sektore s viac ako desaťročnou tradíciou

Nástenné nadomietkové armatúry Vitus sú mimoriadne vhodné pre rýchlu a efektívnu...

Kompozitné okná predstavujú súčasnosť a budúcnosť

Okenné profily z kompozitného materiálu RAU-FIPRO X od spoločnosti Rehau sú v porovnaní s tradičnými plastovými profilmi mnohonásobne...

Myotis - stoly 2025

Najnovší sortiment stolov pre zariadenie interiérov...

Priemyselné sklenené priečky Dorsis Digero: svetelné rozhranie pre moderné interiéry

Spojenie moderného dizajnu, funkčnosti a svetla do harmonického architektonického prvku.

Význam prirodzeného svetla pre moderné a flexibilné pracovné prostredie

Kancelárska budova Baumit v slovinskom Trzine prešla premenou na moderné a udržateľné pracovisko. Architekti kládli dôraz...

Konferencia Xella Dialóg predstaví novinky a trendy v stavebníctve

Mottom šiesteho ročníku on-line konferencie odborníkov Xella Dialóg je Efektívny návrh budov 2025+: zmeny a riešenia

Rodinný dom Miko v Ivanke pri Dunaji

Upraviť katalógový projekt, alebo sa pozrieť na problém úplne odznova?
Diela
Red 316.05.2017
49450+15
Rodinný dom Miko v Ivanke pri Dunaji
Autori: Ing. arch. Stanislav Meliš, Ing. arch. Jozef MichalkoPlocha pozemku: 805,00 m²Zastavaná plocha: 143,80 m²Podlažná plocha: 163,46 m² Obostavaný objem: 748 m3Návrh: 2014 - 2014Realizácia: 2015 - 2016Adresa: Ivanka pri Dunaji, SlovenskoPublikované: 16. máj 2017

Na začiatku bol pekný pozemok v Ivanke pri Dunaji. Nasledoval výber čo možno najvhodnejšieho katalógového projektu rodinného domu. Architektov oslovil investor, ktorý je súčasne ich kamarát s prosbou o radu pri návrhu zmien typového domu.

„Napriek tomu že typový projekt do značnej miery vyhovoval požiadavkám investora s rodinou, nebol vhodný pre daný pozemok. O nevhodnosti pozemku sa nám nakoniec podarilo presvedčiť aj investora. Vzhľadom na to, že pozemok bol daný tak sme na podnet/požiadavku investora spracovali návrh podľa jeho požiadaviek a bez kompromisov typového projektu,“ približujú východiská projektu architekti.  

Už po prvej prezentácii bol nový projekt zo strany stavebníka akceptovaný a schválený na ďalšie dopracovanie. “Po čase sme sa rozhodli návrh kompletne prepracovať. Nakoniec nešlo o ’facelift’ projektu, ale o nové riešenie,” dodávajú autori. Budúci užívateľ sa stotožnil aj s prepracovanou verziou projektu. Architekti sa však napriek tomu rozhodli vypracovať tretí - finálny návrh. Prekvapený investor po preštudovaní projektu opäť súhlasil. Spokojné boli obe strany.

Foto: Mgr. art. Katarína Bako

Pre vznik celkovej koncepcie rodinného domu boli určujúcimi faktormi tvar a orientácia pozemku k svetovým stranám. Dvojpodlažná hmota obytnej časti domu je osovo orientovaná v smere západ - východ. Nevyhnutný legislatívny odstup objektu 2m od severnej hranice pozemku umožnil optimalizovať využitie južne orientovanej záhrady. Hlavný vstup do objektu je je situovaný na západnej strane.

Foto: Mgr. art. Katarína Bako

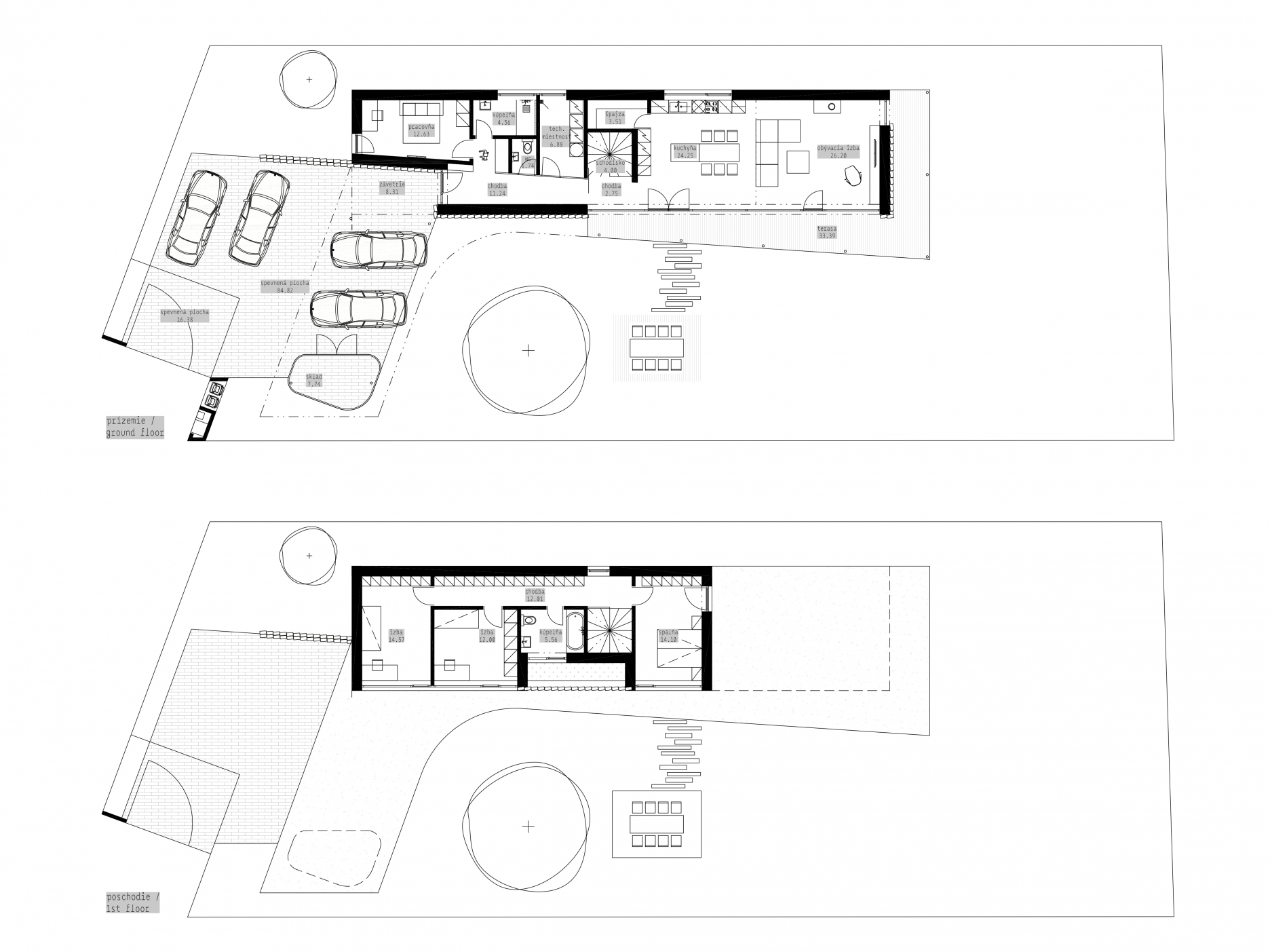
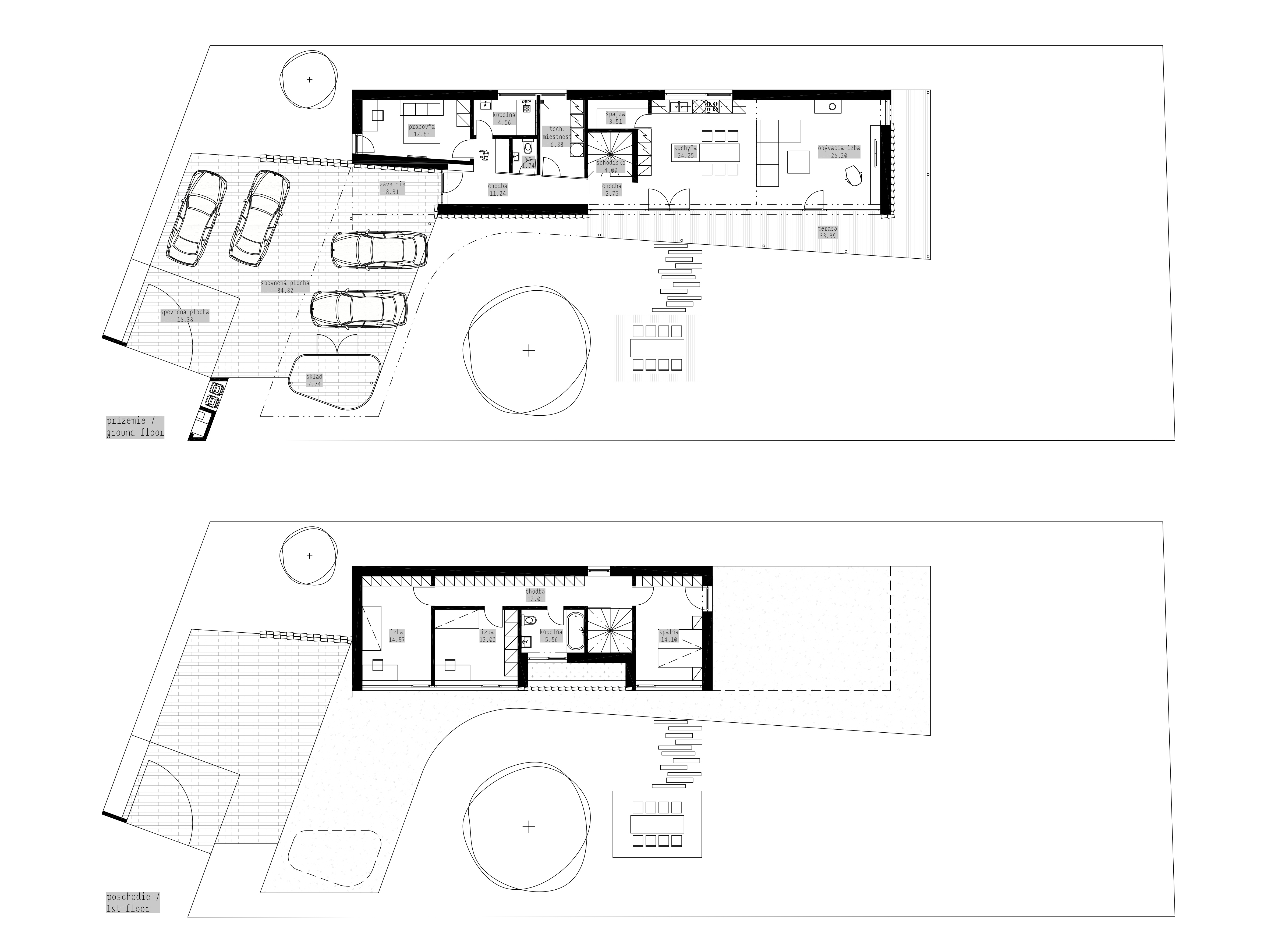
Do domu sa vchádza cez kryté závetrie s prepojením na parkovacie státia. Zo závetria je prístupný aj sklad náradia. Vstupná chodba prepája hosťovskú izbu, kúpeľňu, wc, technickú miestnosť a schodisko. Východná časť domu je tvorená obývacou izbou spojenou s kuchyňou. Z obytnej časti je možný priamy prechod do záhrady cez posuvné časti presklenej steny. Na druhom nadzemnom podlaží sa nachádza nočná časť s troma izbami a kúpeľňou. 

Pôdorysy
PôdorysyAutor: melismichalko

Obvodové nosné konštrukcie sú na oboch podlažiach zhotovené z keramických tvaroviek hrúbky 300 mm, ktoré sú zateplené fasádnym expandovaným polystyrénom hrúbky 150 mm. Vodorovné konštrukcie tvoria betónové monolotické dosky hrúbky 180 a 160 mm. Strecha má minimálny sklon smerom k rímse. Exteriérové prestrešenie skladu, parkovacieho státia a terasy je tvorené kombináciou drevenej a oceľovej konštrukcie. Hlavné vnútorne schodisko je riešené ako samonosné drevené.

Pohľady
PohľadyAutor: melismichalko

Pravouhlé tvary obytnej časti domu sú v horizontálnej rovine prerušené organicky tvarovanou líniou prestrešenia. Drevený obklad použitý na pohľadovej časti prístrešku a na plášti príručného skladu oživuje vstupnú časť domu a dopĺňa monochromatickú farebnosť. Drevo našlo svoje miesto aj v interiéri - dreveným podlahám sekunduje vstavaný nábytok a masívna drevená stena v obytnej časti.

Foto: Mgr. art. Katarína Bako
Foto: Mgr. art. Katarína Bako
Foto: Mgr. art. Katarína Bako
Foto: Mgr. art. Katarína Bako
Foto: Mgr. art. Katarína Bako
Foto: Mgr. art. Katarína Bako
Foto: Mgr. art. Katarína Bako
Foto: Mgr. art. Katarína Bako
Foto: Mgr. art. Katarína Bako
Vizualizácie
Vizualizácie

Podklady: melismichalko

Poloha diela

Ing. arch. Stanislav Meliš
Ing. arch. Jozef Michalko
Vložené
9. máj 2017
0
4945
Hlavný obsahHlavný obsah
Čakajte prosím