Advertorial

Pozvánka na 2. ročník stavebného veľtrhu BigMarket na Slovensku

Na podujatí sa predstaví až 37 vystavovateľov - popredných dodávateľov stavebných materiálov a inovácií s prezentáciou...

Hotel Hirschen Spa House, Rakúsko

Novotvar v prostredí alpskej obce.

Vytvorte si kúpeľňu snov: dizajnové riešenie od značky hansgrohe

Hansgrohe - prémiová značka kúpeľňových riešení, ponúka nadčasový dizajn, technickú precíznosť a udržateľné inovácie...

Okná Internorm za minuloročné ceny + hliníkový kryt zdarma!

Využite špeciálnu akciu Internorm: okná za minuloročné ceny a hliníkový kryt úplne zadarmo. Ponuka je časovo obmedzená!

Moderné plynové technológie: Efektivita a inovácie pre 21. storočie

Sumarizácia najdôležitejších inovácií, ktoré redefinujúcich využitie tohto energetického zdroja.

Utesňovanie spodných stavieb pomocou hydro-aktívnej fólie AMPHIBIA.

AMPHIBIA 3000 GRIP 1.3 od spoločnosti ATRO predstavuje modernú hydroizolačnú technológiu, ktorá spája vysokú odolnosť,...

Dekarbonizácia individuálneho vykurovania domácností – Green Deal evolučne a nie revolučne

Ambiciózne plány EK narazili na ekonomické možnosti domácností v jednotlivých členských štátoch –...

Minimalistické dvere IDEA – technická precíznosť a čistota prevedenia

IDEA DOOR od spoločnosti JAP prináša do interiéru čistý minimalistický vzhľad vďaka bezrámovému riešeniu a precíznej...

Dom s výhľadom na údolie, Dlouhý Most (ČR)

Kontinuita riešenia od vonkajšieho obkladu až po kovania a kľučky.

Schell Vitus – osvedčené riešenie pre sprchy a umývadlá vo verejnom sektore s viac ako desaťročnou tradíciou

Nástenné nadomietkové armatúry Vitus sú mimoriadne vhodné pre rýchlu a efektívnu...

Kompozitné okná predstavujú súčasnosť a budúcnosť

Okenné profily z kompozitného materiálu RAU-FIPRO X od spoločnosti Rehau sú v porovnaní s tradičnými plastovými profilmi mnohonásobne...

Myotis - stoly 2025

Najnovší sortiment stolov pre zariadenie interiérov...

Priemyselné sklenené priečky Dorsis Digero: svetelné rozhranie pre moderné interiéry

Spojenie moderného dizajnu, funkčnosti a svetla do harmonického architektonického prvku.

Význam prirodzeného svetla pre moderné a flexibilné pracovné prostredie

Kancelárska budova Baumit v slovinskom Trzine prešla premenou na moderné a udržateľné pracovisko. Architekti kládli dôraz...

Konferencia Xella Dialóg predstaví novinky a trendy v stavebníctve

Mottom šiesteho ročníku on-line konferencie odborníkov Xella Dialóg je Efektívny návrh budov 2025+: zmeny a riešenia

Rodinný dom vo Svätom Jure

Rodinný dom na úzkom pozemku. Cieľom bolo vytvoriť funkčné riešenie na komplikovanej parcele.
Diela
Red 331.05.2016
30550+18
Rodinný dom vo Svätom Jure
Autori: Ing. arch. Stanislav Meliš, Ing. arch. Jozef MichalkoPlocha pozemku: 775,45 m2Zastavaná plocha: 130,47 m2Podlažná plocha: 189,62 m2Obostavaný objem: 842,70 m3Adresa: Pezinská , Svätý Jur, SlovenskoPublikované: 31. máj 2016

Dielo predstavujú samotní autori:

Spolupráca s klientom bola na diele ukážková. Začala výberom pozemku konzultáciami o jeho usporiadaní. Klient upriamil našu pozornosť na pozemok vo Svätom Jure, ktorý sa mu veľmi páčil no nevedel si predstaviť ako by sa dal zmysluplne využiť. Nachádza sa ochrannom pásme pamiatkovej zóny /PZ/ v uličnej, stabilizovanej zástavbe. V ponuke realitných kancelárií bol cca 2 roky. Pravdepodobne preto, že jeho priemerná šírka bola cca 10,5 m, dĺžka 85 m a bol pozdĺžnou osou orientovaný v smere S-J. Po viacerých obhliadkách sme mu oznámili že pozemok má veľký potenciál a dokážeme na ňom naplniť všetky jeho potreby spojené s bývaním. Potešil sa a dostali sme plnú dôveru.

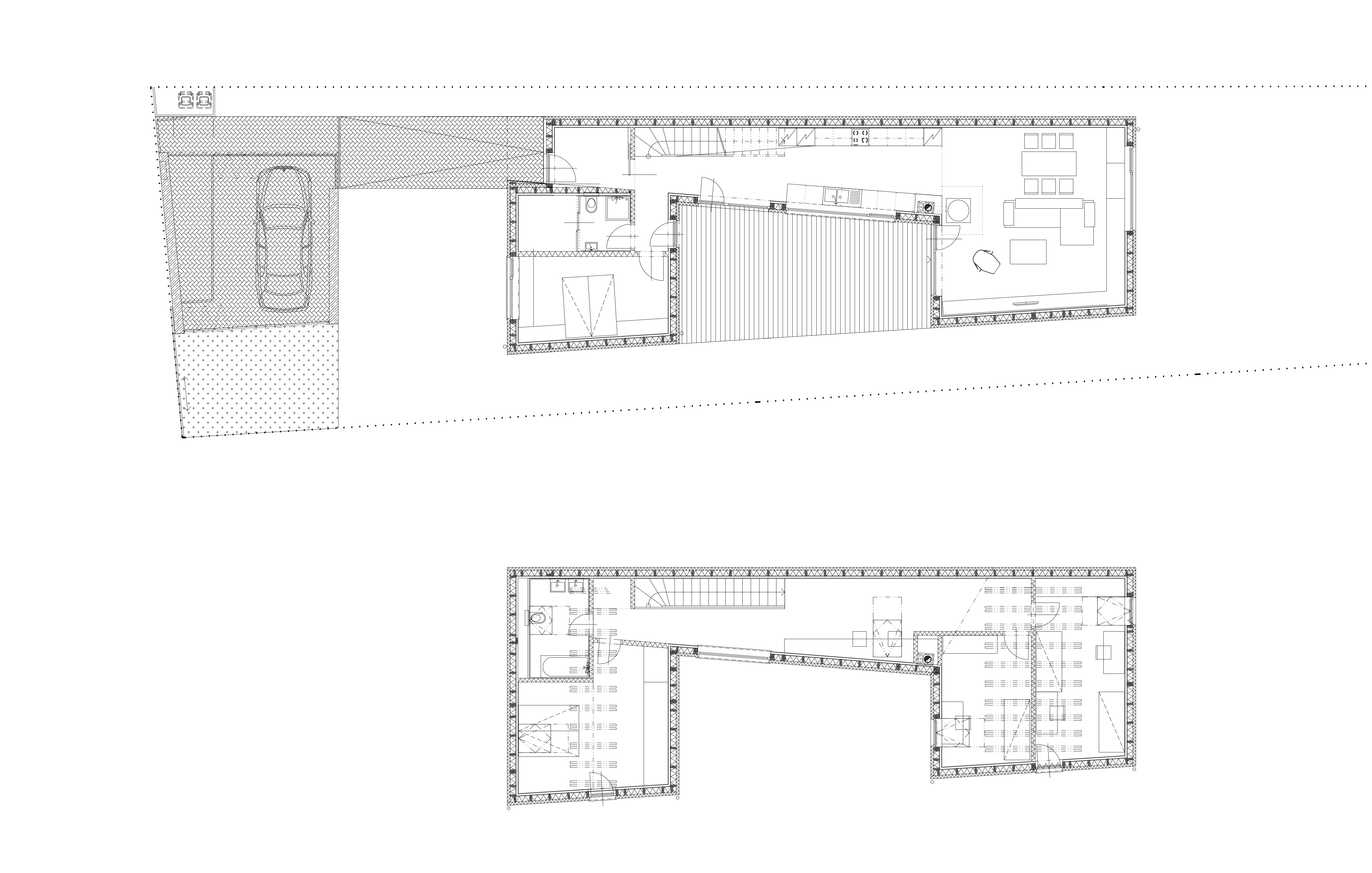
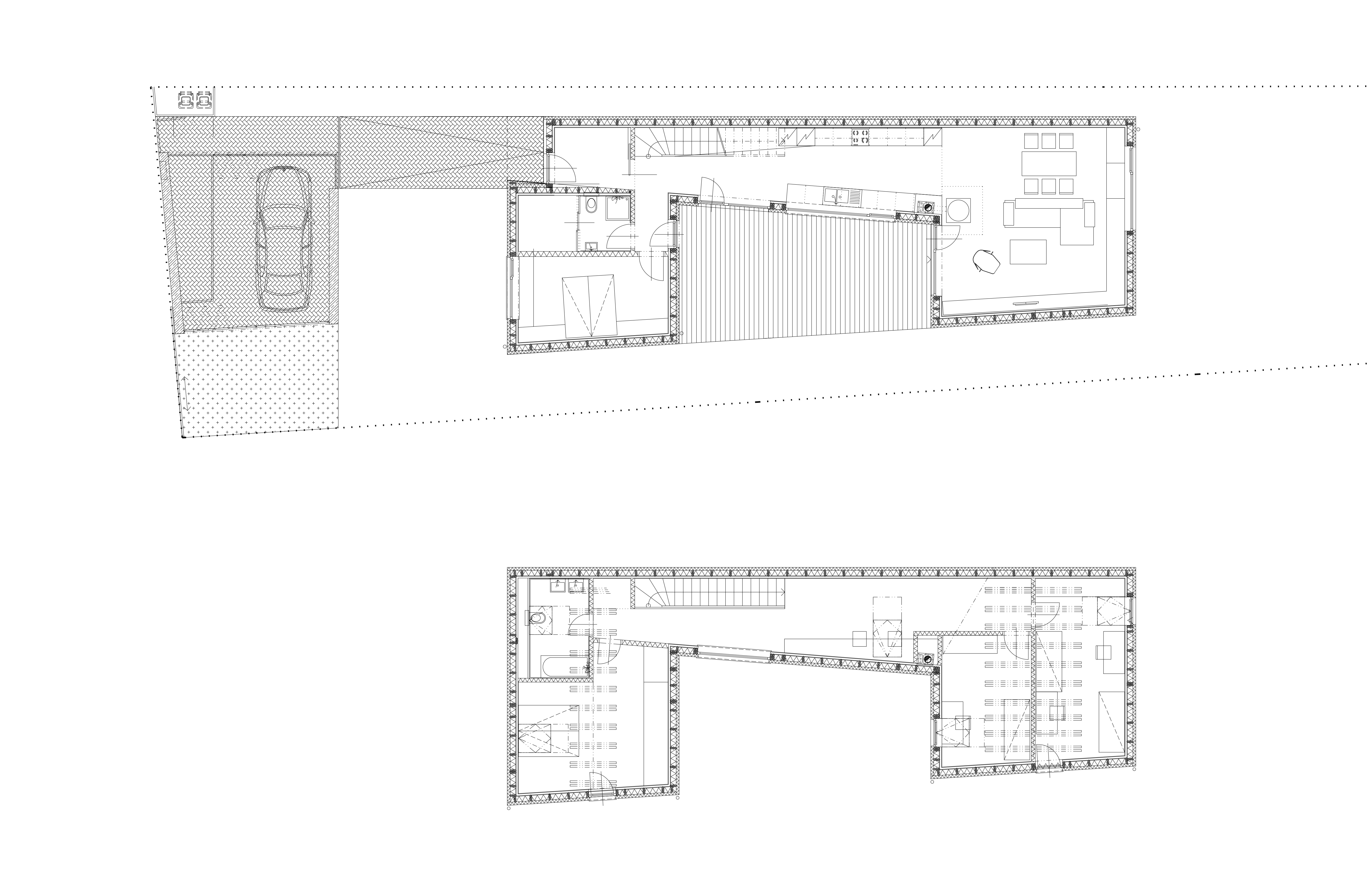
Na úzkej parcele tienenej okolitými budovami, navyše s problematickou orientáciou, bolo hlavnou úlohou dostať do domu svetlo a odhlučniť dom od frekventovaného dopravného ťahu Bratislava - Modra. To viedlo k osadeniu samostatnej garáže na začiatok pozemku a vytvoreniu vnútorného pátia, ktoré rozdeľuje objem domu na dennú a nočnú časť. Obe časti spája postupne sa rozširujúci krčok, kde sa nachádza priechodná kuchyňa, so schodiskom. Na poschodí je v spojovacej časti pracovný kút, ktorý spája detské izby. Do pátia smerujú okná takmer zo všetkých priestorov s cieľom zachytiť čo najviac priameho svetla a stalo sa „nekorunovanou“ najdôležitejšou izbou.

Situácia
SituáciaMelis Michalko
Pôdorysy
PôdorysyMelis Michalko

Geometria a tvarovanie domu vychádza z jeho potrieb, daností pozemku a požiadaviek Pamiatkového úradu. Aby sa neplytvalo objemom strešné roviny majú rôzne výšky a sklony podľa toho, aký priestor zastrešujú.

Pohľady
PohľadyMelis Michalko

Keďže dom sa nachádza v ochrannom pásme PZ boli použité jednoduché materiály charakteristické pre centrálnu zónu: omietka a pálená škridla. Výraz a detail fasáde dodávajú klampiarske prvky. Ďalšiu vrstvu bude v budúcnosti tvoriť porast štítových stien a garáže z paviniča, ktorý odkazuje na vinohradnícku tradíciu v obci.

Celý tento kompilát objemov, členitosti, materiálov, zelene na stiesnenom pozemku robia dom z ulice takmer neviditeľný a zdanlivo malý. Zato však vnútorne bohatý, kde exteriér dodáva domu ďalší rozmer.

Konštrukčne je dom riešený ako drevodom so stĺpikovou konštrukciou v nízkoenergetickom štandarde.

foto: Katarína Bako
foto: Katarína Bako
foto: Katarína Bako
foto: Katarína Bako
foto: Katarína Bako

Vizualizácie:

Uličný pohľad - vizualizácia
Uličný pohľad - vizualizácia
Átrium - vizualizácia
Átrium - vizualizácia
Zadný dvor - vizualizácia
Zadný dvor - vizualizácia

Investor je dnes spokojný, spolupráca sa oplatila a verím, že sa nám podarilo správne uchopiť tento malý priestor s veľkým duchom.

Podklady: melismichalko

Poloha diela

Ing. arch. Stanislav Meliš
Ing. arch. Jozef Michalko
Vložené
30. máj 2016
0
3055
Hlavný obsahHlavný obsah
Čakajte prosím