Na podujatí sa predstaví až 37 vystavovateľov - popredných dodávateľov stavebných materiálov a inovácií s prezentáciou...
Novotvar v prostredí alpskej obce.
Hansgrohe - prémiová značka kúpeľňových riešení, ponúka nadčasový dizajn, technickú precíznosť a udržateľné inovácie...
Využite špeciálnu akciu Internorm: okná za minuloročné ceny a hliníkový kryt úplne zadarmo. Ponuka je časovo obmedzená!
Sumarizácia najdôležitejších inovácií, ktoré redefinujúcich využitie tohto energetického zdroja.
AMPHIBIA 3000 GRIP 1.3 od spoločnosti ATRO predstavuje modernú hydroizolačnú technológiu, ktorá spája vysokú odolnosť,...
Ambiciózne plány EK narazili na ekonomické možnosti domácností v jednotlivých členských štátoch –...
IDEA DOOR od spoločnosti JAP prináša do interiéru čistý minimalistický vzhľad vďaka bezrámovému riešeniu a precíznej...
Kontinuita riešenia od vonkajšieho obkladu až po kovania a kľučky.
Nástenné nadomietkové armatúry Vitus sú mimoriadne vhodné pre rýchlu a efektívnu...
Okenné profily z kompozitného materiálu RAU-FIPRO X od spoločnosti Rehau sú v porovnaní s tradičnými plastovými profilmi mnohonásobne...
Najnovší sortiment stolov pre zariadenie interiérov...
Spojenie moderného dizajnu, funkčnosti a svetla do harmonického architektonického prvku.
Kancelárska budova Baumit v slovinskom Trzine prešla premenou na moderné a udržateľné pracovisko. Architekti kládli dôraz...
Mottom šiesteho ročníku on-line konferencie odborníkov Xella Dialóg je Efektívny návrh budov 2025+: zmeny a riešenia

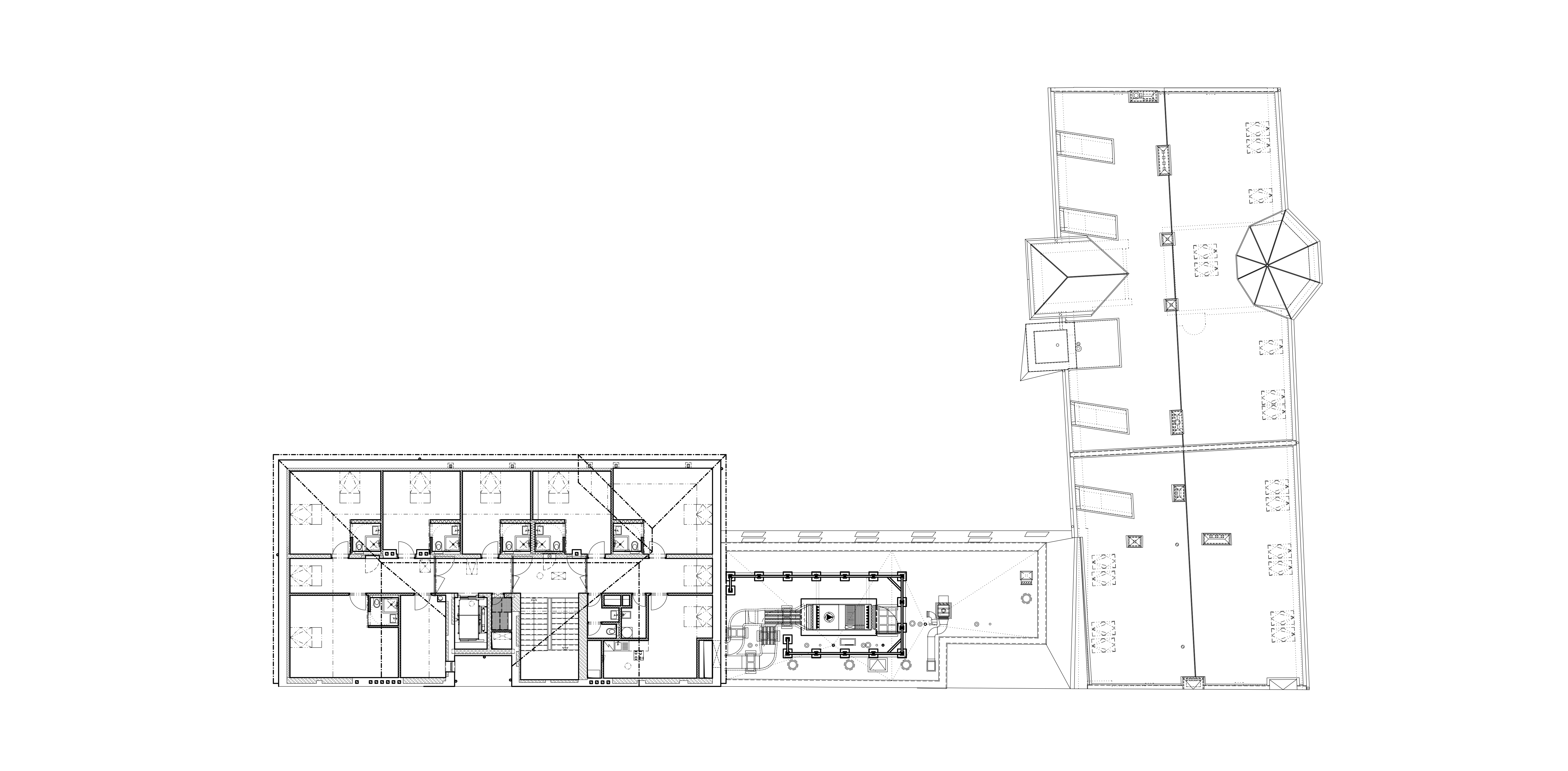
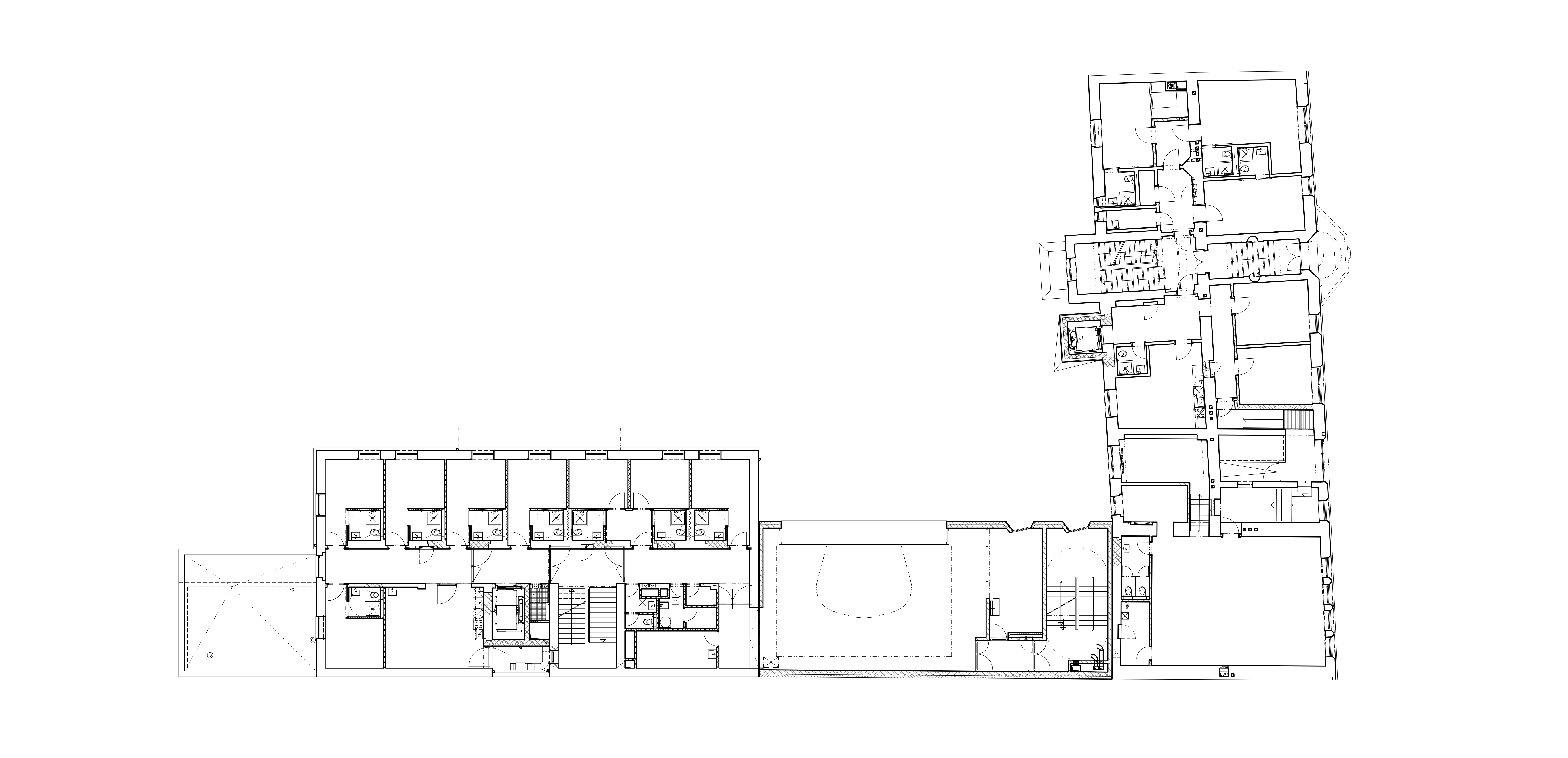
Z urbanistického hľadiska ide o vstavbu štvorpodlažnej novostavby medzi trojpodlažnú hmotu orientovanú do Jakubovho námestia – sídlo Kongregácie s jej neorománskou fasádou akcentovanou arkierom s vežičkou a päťpodlažnú hmotu dvorovej časti orientovanú do Gajovej ulice – zariadenie pre seniorov. Novostavba svojím objemom, farebnosťou, kompozíciou a výtvarným riešením dotvára dvorové krídlo historického objektu Jakubovho námestia. Zároveň ako celok starého s novým vyvažuje podstatne vyššiu hmotu historického objektu zariadenia pre seniorov v dvorovej časti, ktorú i funkčne zastupuje.
Jakubovo námestie na juhovýchodnom okraji historického jadra si zachováva historizujúci ráz vďaka radu domov, patriacich Kongregácii dcér Najsvätejšieho Spasiteľa. Prvú budovu kláštora dala postaviť významná bratislavská mecenáška grófka Helena Szapáry v roku 1914 podľa projektu staviteľa Salzleitnera. Rehoľné sestry v jej priestoroch rozvinuli sociálnu a zdravotnícku činnosť., ale v roku 1949 museli budovy nasilu opustiť. V 70.-80.rokoch v nich sídlilo hlavné veliteľstvo sovietskych okupačných vojsk. V roku 1991 boli budovy vrátené pôvodnému vlastníkovi.
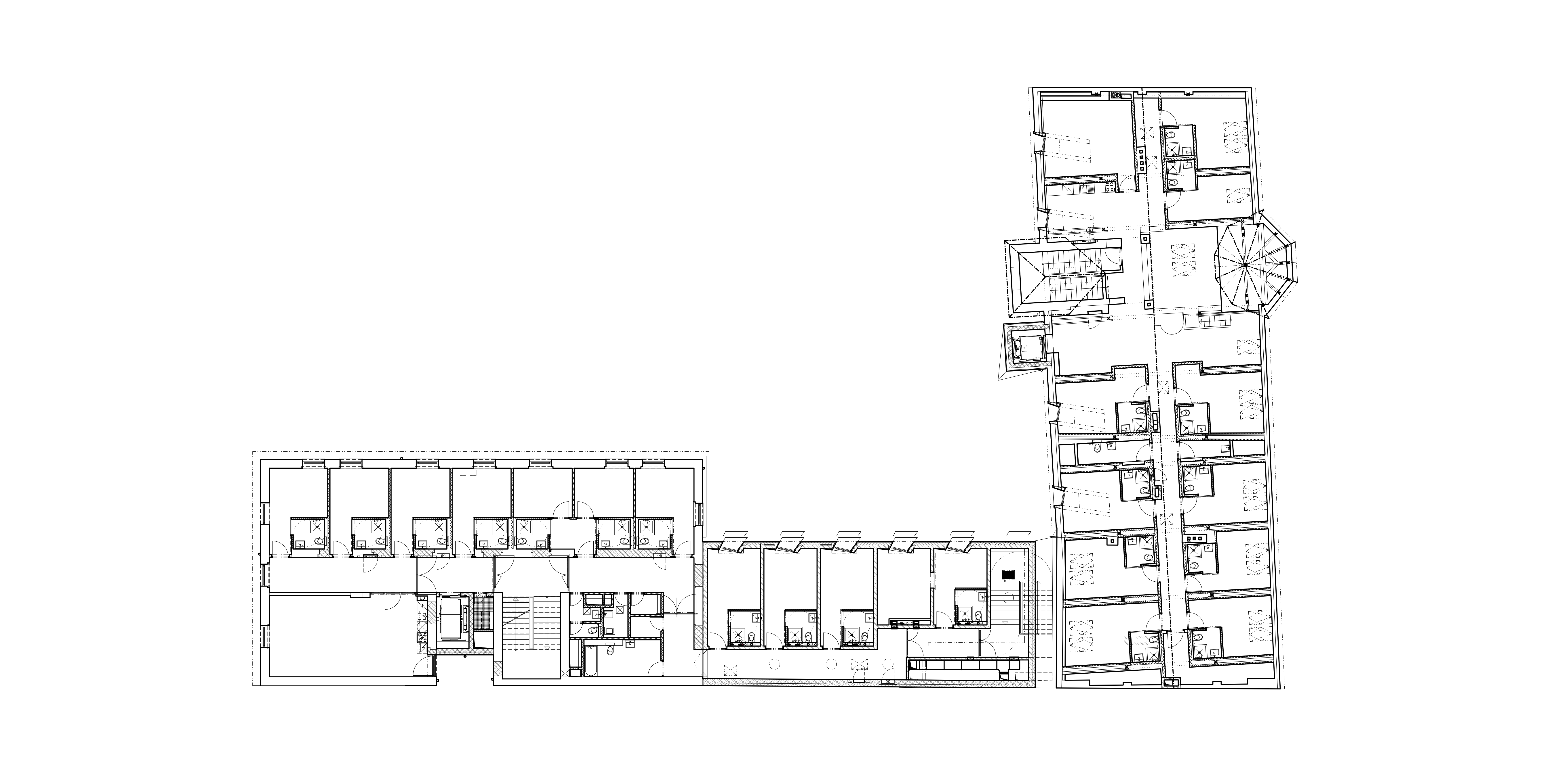
Kláštorný komplex tvoria štýlovo aj hmotovo rôznorodé budovy rozdielnej architektonickej hodnoty. Hlavnou úlohou projektantov autorského kolektívu bolo zosúladiť viaceré funkcie do fungujúceho celku. Do najstaršieho historického objektu č.5 (Dom Márie Gabriely) situovali administratívnu prevádzku provincialátu, trvalé ubytovanie členiek rehoľnej komunity, pod strechou knižnicu a prechodné bývanie so zázemím. Do susedného objektu č.4 (Dom sv.Jozefa) s historickou budovou bývalej nemocnice umiestnili prevádzku domu seniorov a miestnosti prechodného ubytovania. Najatraktívnejšou časťou areálu je novostavba v kúte parcely, ktorou architekti nahradili asanované spojovacie krídlo. Novostavba je vizuálnym, významovým, spoločenským centrom a komunikačným uzlom areálu, v ktorom je situovaná jedáleň a na poschodí kaplnka sv. Jozefa – patróna Kongregácie a dobrej smrti. Historické objekty a nová prístavba predstavujú dva rozdielne svety, ktoré sa autorom podarilo prepojiť niekoľkými vizuálne rafinovanými prienikmi motivických prvkov z novostavby do historickej substancie. Napätie historického a modernistického architektonického jazyka zjemňuje kompatibilné sivé farebné riešenie, ktoré "premosťuje" staré s "novým" a rozhodujúcim spôsobom sa podieľa na citlivom vyznení architektonického riešenia. V polarite vzťahu medzi tradíciou a inováciou, malo pre architektov prioritu nové, ale s rešpektom a úctou voči minulému. Moderná architektúra, bez narušenia historického výrazu architektúry, vyťažila z komplikovaných priestorových vzťahov maximum. Obnova premenila kláštor na Jakubovom námestí na moderné polyfunkčné duchovno-spoločenské centrum, zodpovedajúce požiadavkám modernej doby. Novo založené centrum Salvator sa dostáva do povedomia verejnosti ako miesto ticha uprostred ruchu veľkomesta.
Farebne je novostavba a sídlo Kongregácie riešené v odtieňoch šedej v kombinácií s okennými výplňami vo farbe slonovej kosti. Dvorová časť zariadenia pre seniorov je farebne riešená v pieskovcových tónoch, v duchu pieskovcového balkóna. Výplňové konštrukcie oboch národných kultúrnych pamiatok sú bohato členené „tabuľkovaním“. Materiálovo je novostavba riešená formou omietaných fasád imitujúcich žulu v polohe objektu do Jakubovho námestia a pieskovec v polohe dvorového objektu. Veľkoformátový prevetrávaný obklad na báze cementu vystuženého sklenenými vláknami zaujal svojou povrchovou štruktúrou a podobnosťou v svojej podstate priblížiť sa historickému kontextu. Samotný šparorez určil mieru detailu a jeho harmóniu k jestvujúcej tektonike a tvarosloviu historických fasád. Osovosť si zachováva i fasáda novostavby. Ozvláštnením je tu nakláňanie okenných otvorov orientovaných na spodných dvoch podlažiach do „námestia“ s fontánou – voda ako symbol Kongregácie. V polohe horných dvoch podlaží – ubytovacích kapacít zariadenie pre seniorov je toto nakláňanie „za slnkom“ v opačnom smere.
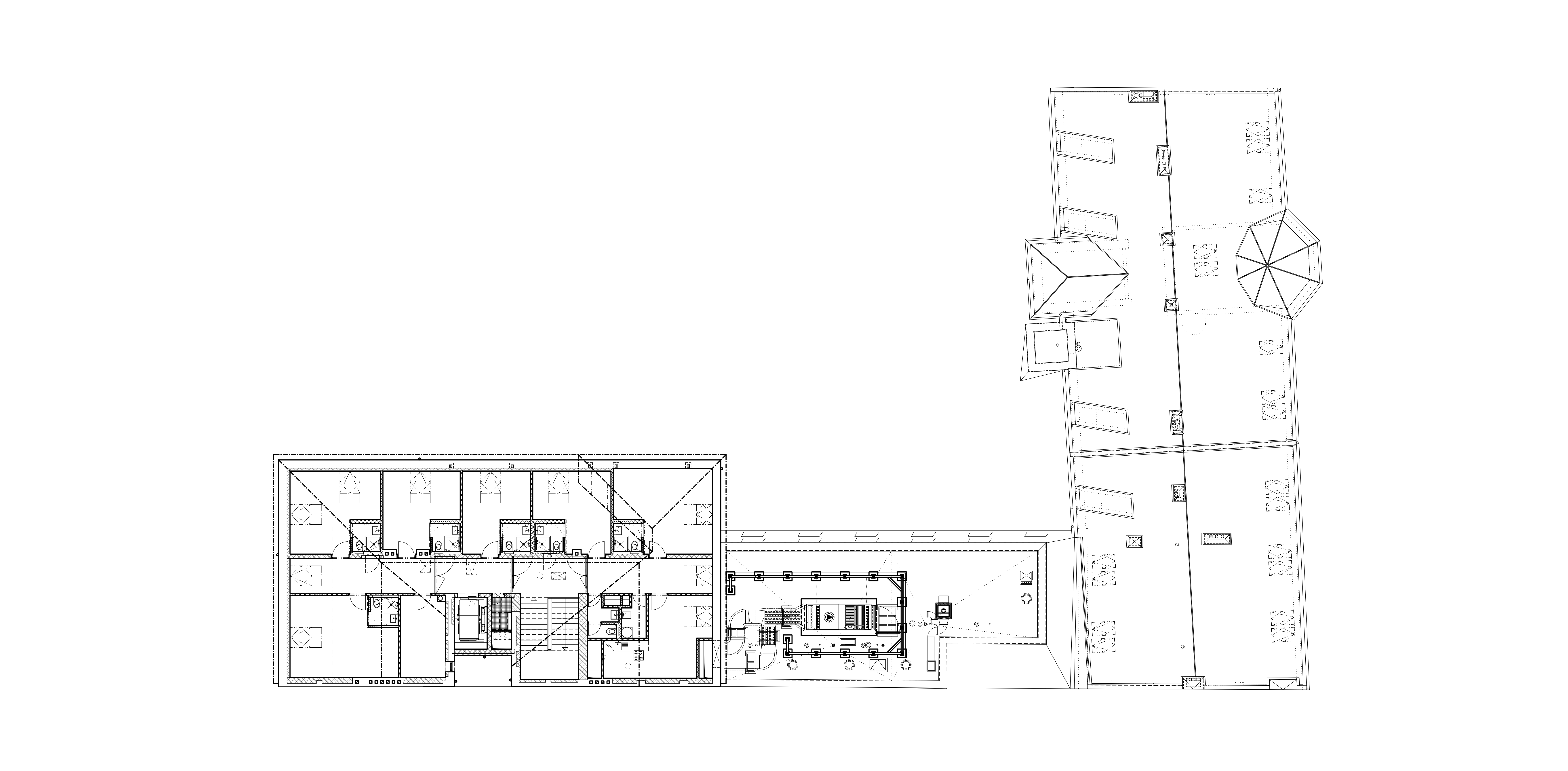
Z dôvodu zjemnenia výšky hmoty novostavby sa horné dve podlažia jemne nakláňajú a taktiež vo väčšom sklone sa schodiskový trakt zužuje a objem novostavby odkláňa od sedlovej strechy historického objektu sídla Kongregácie. Doplnením a podčiarknutím vstupu súčasnej architektúry do historického prostredia je i „socha“ exteriérového výťahu osadená pri dvorovom vstupnom rizalite sídla Kongregácie a štvorica svetlíkov s miernym náklonom vsadených do sedlovej strechy v osiach okenných otvorov. Súčasťou riešenia areálu sú i sadové úpravy vtlačené do komunikačného systému dvorovej časti. Trajektórie chodníkov v “parku“ vychádzajú z kríža Kongregácie – grécky kríž. Vzrastlé stromy sú doplnené enklávou krovového porastu a kvetinovými záhonmi. Zo strany Gajovej ulice je riešené i zásobovanie a parkovanie na spevnenej betónovej ploche. Areál uzatvára oceľové priehľadné oplotenie.
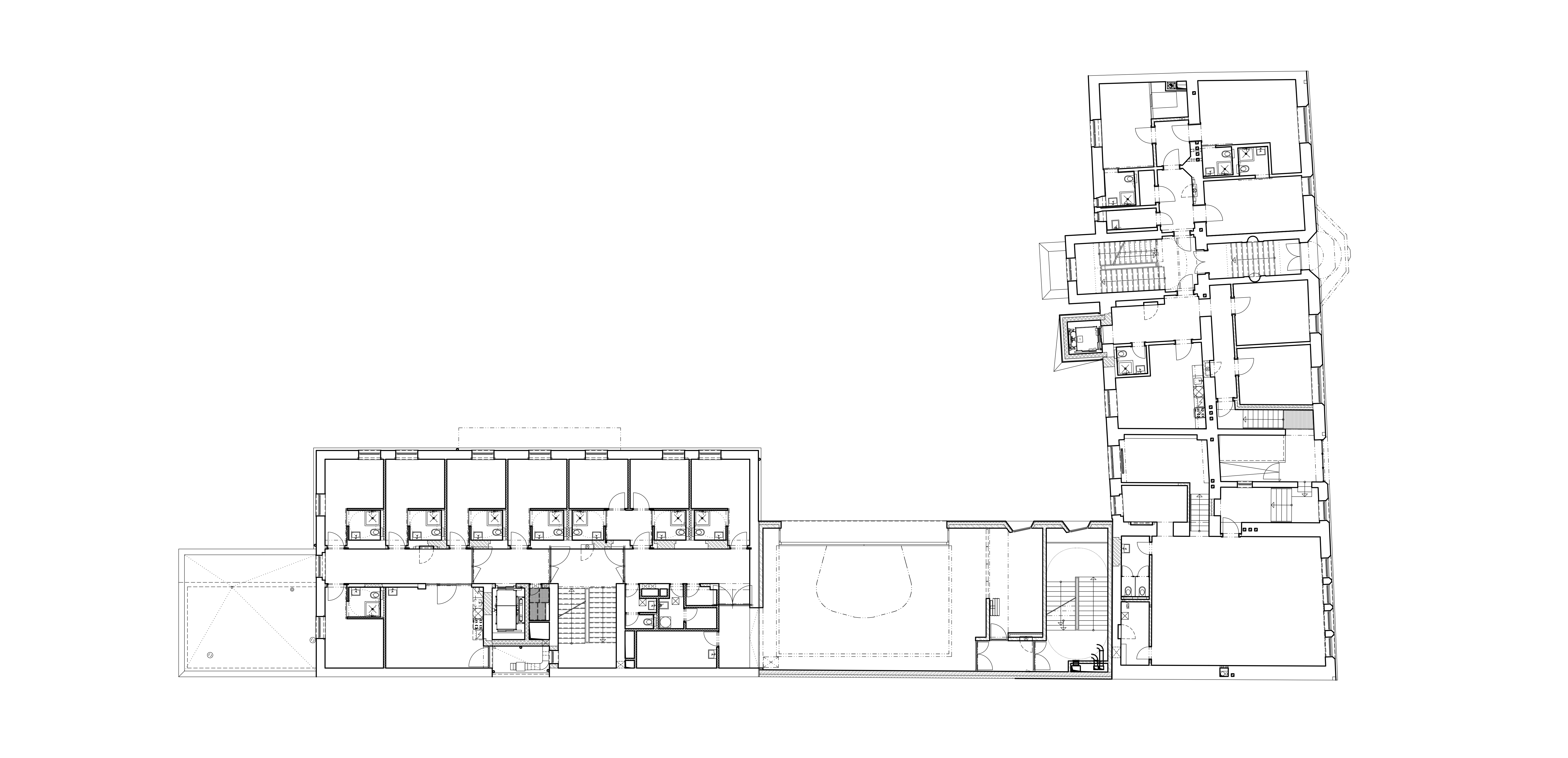
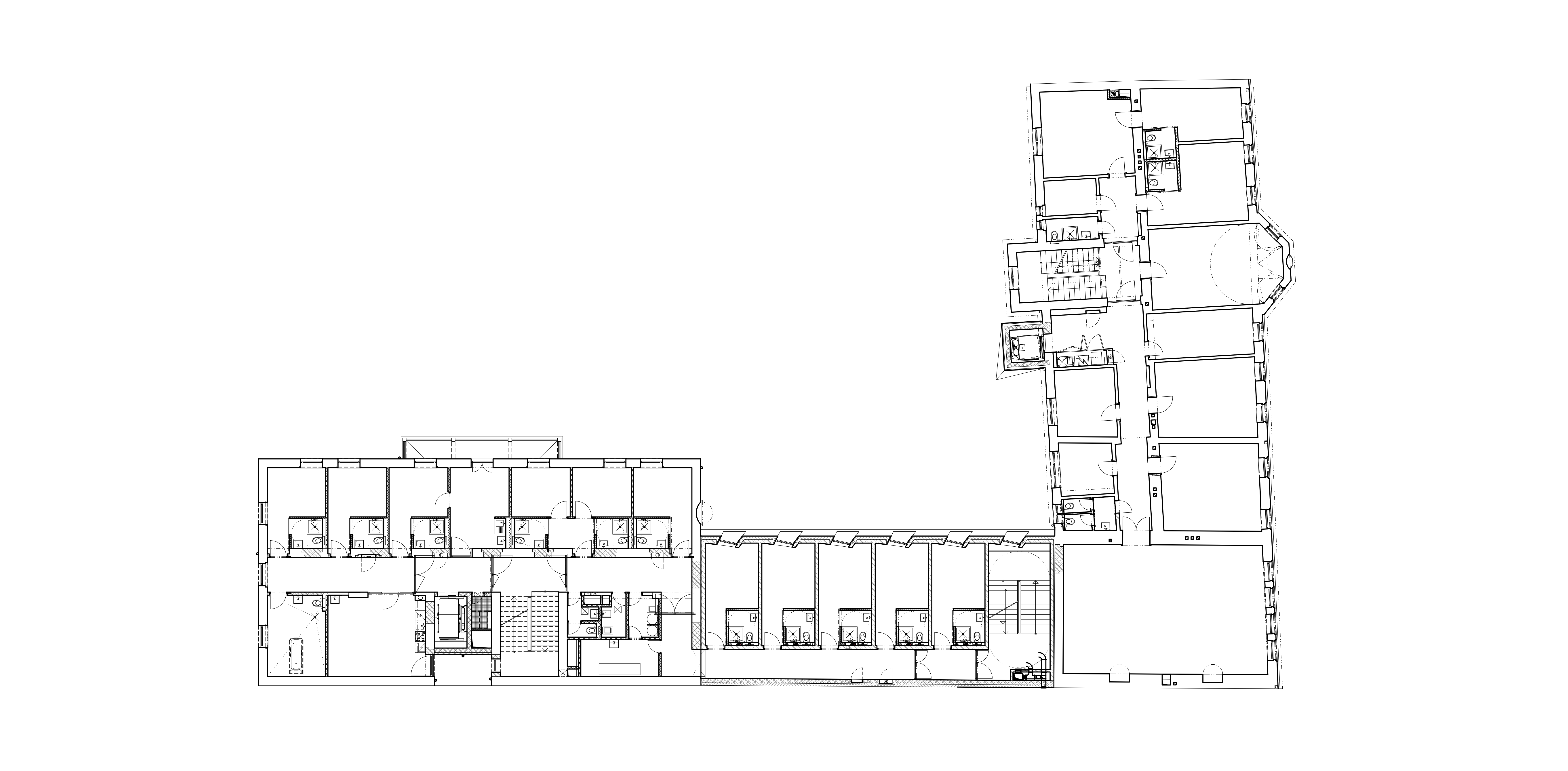
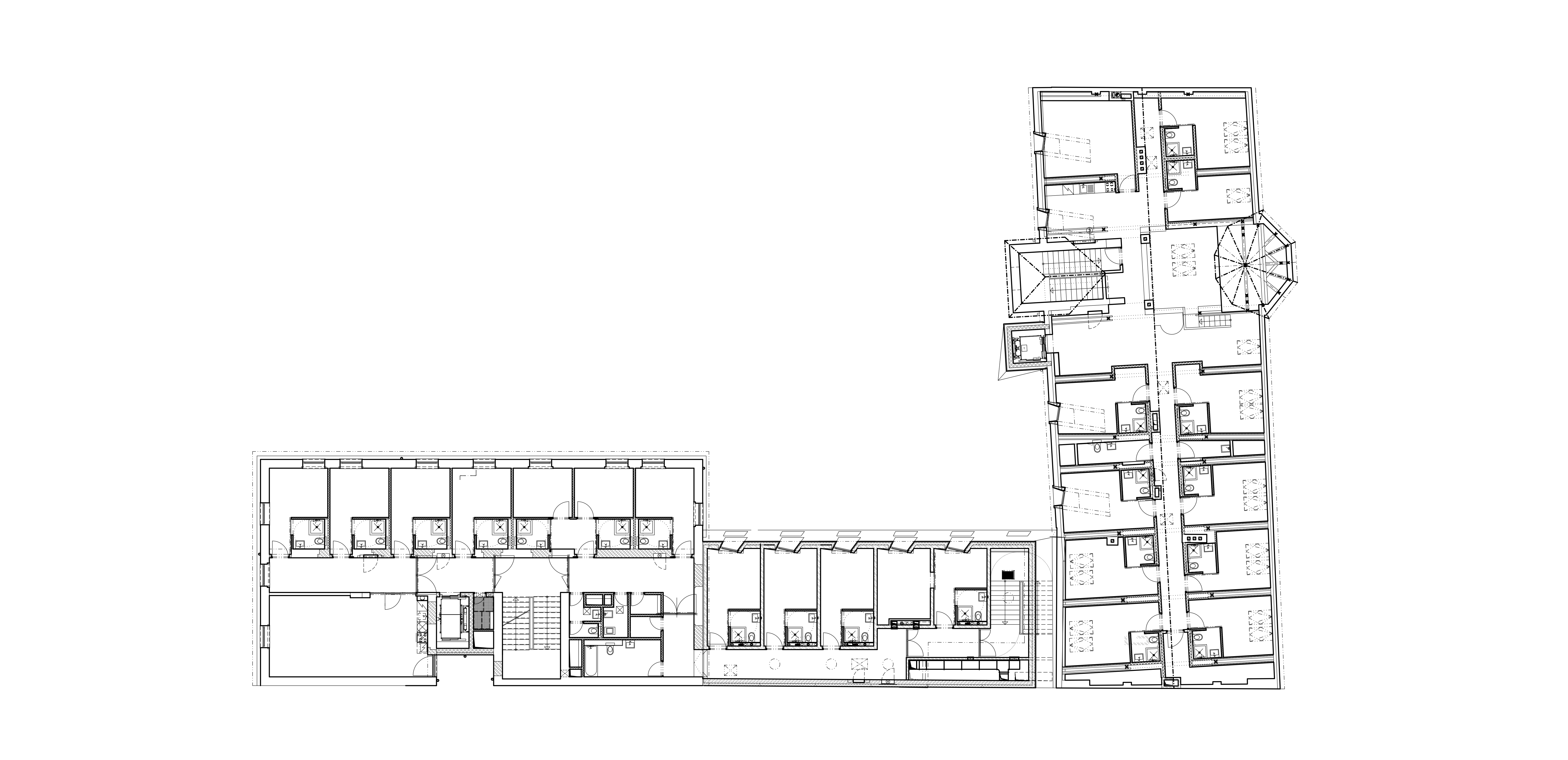
Dispozične je súbor budov riešený v logickom slede na ich funkčné využitie. Sídlo Kongregácie má v suteréne doplnkové priestory knižnice, skladové priestory, sociálne zázemie jedálne a spoločenské priestory. Je tu situovaná strojovňa s kotolňou, vodomerňa, plynomerňa. Z technologického hľadiska môžeme považovať realizáciu tepelnými čerpadlami voda-voda za progresívne, technologicky vyspelé riešenie, zároveň ekologické, nakoľko sa tu využíva voda z Dunaja. Strojovňa je dimenzovaná tak, aby utiahla i ďalšie dva objekty Kongregácie okrem novostavby a historického objektu zariadenia pre seniorov nachádzajúce sa v priamej väzbe na objekt sídla Kongregácie. Prízemie je venované prijímacím miestnostiam, jedálni a dvom izbám vedenia Kongregácie. Je tu i samostatným vstupom z námestia cez podbránie prístupný komerčne prenajímateľný priestor, zároveň i dvor a väzba na jedáleň so sociálnym zázemím. V podbráni je i recepcia. Prvé nadzemné podlažie zahŕňa tri izby vedenia Kongregácie, kaplnku, kapitulnú miestnosť a kancelárie vedenia. V podkroví sa nachádzajú izby s prechodným ubytovaním a knižnica osadená do otvoreného krovu nad vyvýšeným stropom kaplnky.
Novostavba v sebe na prízemí zahŕňa jedáleň s možnosťou prepojenia s exteriérom - sedením na „námestí“ vo dvore. Na prvom nadzemnom podlaží kaplnku venovanú ubytovaným v zariadení pre seniorov. Táto kaplnka je venovaná svätému Jozefovi – patrónovi dobrej smrti a ide o hlavnú kaplnku sídla Kongregácie, jednu z troch kaplniek jednotlivých domov Kongregácie. Na druhom a treťom nadzemnom podlaží sú ubytovacie kapacity.
Hlavná budova zariasenia pre seniorov je na prízemí v trakte do dvora vybavená ubytovaním, no v prevažnej miere je tu v zadnom trakte sústredená kuchyňa zo zázemím. Prvé až tretie nadzemné podlažie je riešené ubytovacími kapacitami zariadenia pre seniorov doplnenými o hygienické a sociálne vybavenie, či pre ubytovaných alebo hosti. Doplnkovými funkciami je priestor sesterne, ošetrovne, hydromasáže a niekoľko spoločenských miestností. V podkroví sa nachádzajú izby s prechodným ubytovaním. Všetky objekty areálu i samotný areál je riešený bezbariérovo s ohľadom na osoby s rôznym druhom postihnutia.
Podklady: Melismichalko, Ing. arch. Michal Lang, PhDr. Magdaléna Kvasnicová, PhD.