Advertorial

Pozvánka na 2. ročník stavebného veľtrhu BigMarket na Slovensku

Na podujatí sa predstaví až 37 vystavovateľov - popredných dodávateľov stavebných materiálov a inovácií s prezentáciou...

Hotel Hirschen Spa House, Rakúsko

Novotvar v prostredí alpskej obce.

Vytvorte si kúpeľňu snov: dizajnové riešenie od značky hansgrohe

Hansgrohe - prémiová značka kúpeľňových riešení, ponúka nadčasový dizajn, technickú precíznosť a udržateľné inovácie...

Okná Internorm za minuloročné ceny + hliníkový kryt zdarma!

Využite špeciálnu akciu Internorm: okná za minuloročné ceny a hliníkový kryt úplne zadarmo. Ponuka je časovo obmedzená!

Moderné plynové technológie: Efektivita a inovácie pre 21. storočie

Sumarizácia najdôležitejších inovácií, ktoré redefinujúcich využitie tohto energetického zdroja.

Utesňovanie spodných stavieb pomocou hydro-aktívnej fólie AMPHIBIA.

AMPHIBIA 3000 GRIP 1.3 od spoločnosti ATRO predstavuje modernú hydroizolačnú technológiu, ktorá spája vysokú odolnosť,...

Dekarbonizácia individuálneho vykurovania domácností – Green Deal evolučne a nie revolučne

Ambiciózne plány EK narazili na ekonomické možnosti domácností v jednotlivých členských štátoch –...

Minimalistické dvere IDEA – technická precíznosť a čistota prevedenia

IDEA DOOR od spoločnosti JAP prináša do interiéru čistý minimalistický vzhľad vďaka bezrámovému riešeniu a precíznej...

Dom s výhľadom na údolie, Dlouhý Most (ČR)

Kontinuita riešenia od vonkajšieho obkladu až po kovania a kľučky.

Schell Vitus – osvedčené riešenie pre sprchy a umývadlá vo verejnom sektore s viac ako desaťročnou tradíciou

Nástenné nadomietkové armatúry Vitus sú mimoriadne vhodné pre rýchlu a efektívnu...

Kompozitné okná predstavujú súčasnosť a budúcnosť

Okenné profily z kompozitného materiálu RAU-FIPRO X od spoločnosti Rehau sú v porovnaní s tradičnými plastovými profilmi mnohonásobne...

Myotis - stoly 2025

Najnovší sortiment stolov pre zariadenie interiérov...

Priemyselné sklenené priečky Dorsis Digero: svetelné rozhranie pre moderné interiéry

Spojenie moderného dizajnu, funkčnosti a svetla do harmonického architektonického prvku.

Význam prirodzeného svetla pre moderné a flexibilné pracovné prostredie

Kancelárska budova Baumit v slovinskom Trzine prešla premenou na moderné a udržateľné pracovisko. Architekti kládli dôraz...

Konferencia Xella Dialóg predstaví novinky a trendy v stavebníctve

Mottom šiesteho ročníku on-line konferencie odborníkov Xella Dialóg je Efektívny návrh budov 2025+: zmeny a riešenia

Kláštor Nový Dvůr (ČR)

Prestavba poľnohospodárskeho statku na kláštor trapistov. Výrazovo minimalistická architektúra s citom a pokorou k miestu a kontextu. Nové objekty rešpektujú kompozičné a funkčné a princípy celku.
Diela
Red 306.11.2016
37210+20
Kláštor Nový Dvůr (ČR)
Autori: John Pawson, Ing. arch. Jan SoukupInvestor: Kláštor Nový Dvůr, rád cisterciánov prísnej observancie (trapisti)Návrh: 1999 - 2014Realizácia: 2000 - 2014Adresa: Klatovská třída 818/11, Plzeň, Česká republikaPublikované: 6. november 2016

Pôvodne poľnohospodársky barokový statok v obci Teplá bol vybudovaný v polovici 18. storočia, pravdepodobne podľa konceptu Kiliána Ignáca Dientzenhofera. V druhej polovici 20. storočia bol využívaný štátnym družstvom a do príchodu mníchov - trapistov v roku 1999 bol úplne zdevastovaný. Autorom návrhu prestavby hospodárskeho dvoru na kláštor je britský architekt John Pawson (laureát ceny RIBA) v spolupráci s plzenským architektom Janom Soukupom a jeho ateliérom. Práce na projekte sa začali v roku 2000, základný kameň kláštora bol položený v roku 2002.

Východné krídlo kláštora
Východné krídlo kláštoraFoto: Gilbert McCarragher
Situácia
Situácia

Koncepcia areálu nadviazala na historickú osovú kompozíciu objektov a stromových alejí so štvorcovým areálom v jeho strede. Hlavná os západ - východ je definovaná stromoradím pozdĺž pôvodnej príjazdovej cesty ku hlavnému vstupu do rezidenčného (západného) krídla. Cesta pokračuje cez rajský dvor k prejazdu východného krídla. Druhá os vedie domom pre hostí na severe a novostavbami hospodárskeho a technického zázemia situovanými južne od kláštora. Pri tvorbe nového kláštora autori vychádzali z cisterciánskej architektonickej tradície jednoduchosti a kultivovanosti detailov. Svojou skladbou sa konventné budovy držia tradičnej schémy kláštornej dispozície. Minimalistická architektúra reflektuje prostý mníšsky život, zároveň je obohatená o priehľady z interiérov do meniacich sa obrazov okolitej krajiny.

Vonkajší pohľad na barokovú rezidenciu
Vonkajší pohľad na barokovú rezidenciuFoto: David Cígler

Kostol bol vysvätený v roku 2004. V roku 2007, kedy sa stal kláštor priorstvom, začala rekonštrukcia bývalého ovčína na dom pre hostí. V roku 2011 bol kláštor povýšený na opátstvo a vtedy sa začali práce na projekte výrobného objektu (výroba horčice podľa starého trapistického receptu), ktorý bol skolaudovaný v decembri 2014. V súčasnosti sa pripravuje projektová dokumentácia novostavby kaplnky v blízkosti domu pre hostí. Kláštor je v súčasnosti plne funkčný, ale v súlade so stáročnou tradíciou tvorby kláštorov bude trvať ešte nejaký čas, než dôjde k jeho dokončeniu.

Pohľad na novú časť s kostolom
Pohľad na novú časť s kostolomFoto: Gilbert McCarragher
Technické budvy - kotolňa a garáže
Technické budvy - kotolňa a garážeFoto: Ondřej Smetana
Dom pre hostí - pôvodne ovčia stajňa
Dom pre hostí - pôvodne ovčia stajňaFoto: Jens Weber
Pohľad na novostavbu výrobne horčice
Pohľad na novostavbu výrobne horčiceFoto: Gilbert McCarragher

Tvarovanie priestorov je podriadené optickým kvalitám pôsobenie svetla a tieňa. Biele steny interiérov odrážajú premenlivosť denného svetla, od neho je odvodená aj hmotnosť či nehmotnosť všetkých konštrukčných prvkov. Svetlo spája pôsobenie starých aj nových častí a je hlavným vyjadrovacím prostriedkom stavby.

Pohľad z krížovej chodby
Pohľad z krížovej chodbyFoto: Jens Weber
Interiér kostola
Interiér kostolaFoto: Jens Weber
Dom pre hostí - interiér predajne
Dom pre hostí - interiér predajneFoto: Jens Weber
Dom pre hostí - chodba na prvom poschodí
Dom pre hostí - chodba na prvom poschodíFoto: Jens Weber
Interiér hosťovskej izby
Interiér hosťovskej izbyFoto: Štěpán Bartoš
Expedičná hala výrobne
Expedičná hala výrobneFoto: Gilbert McCarragher
Kancelária v budove výrobne
Kancelária v budove výrobneFoto: Gilbert McCarragher
Betónové schdisko vo výrobnej budove
Betónové schdisko vo výrobnej budoveFoto: Gilbert McCarragher
Axonometria - stav pred rekonštrukciou
Axonometria - stav pred rekonštrukciou
Axonometria - súčasný stav
Axonometria - súčasný stav
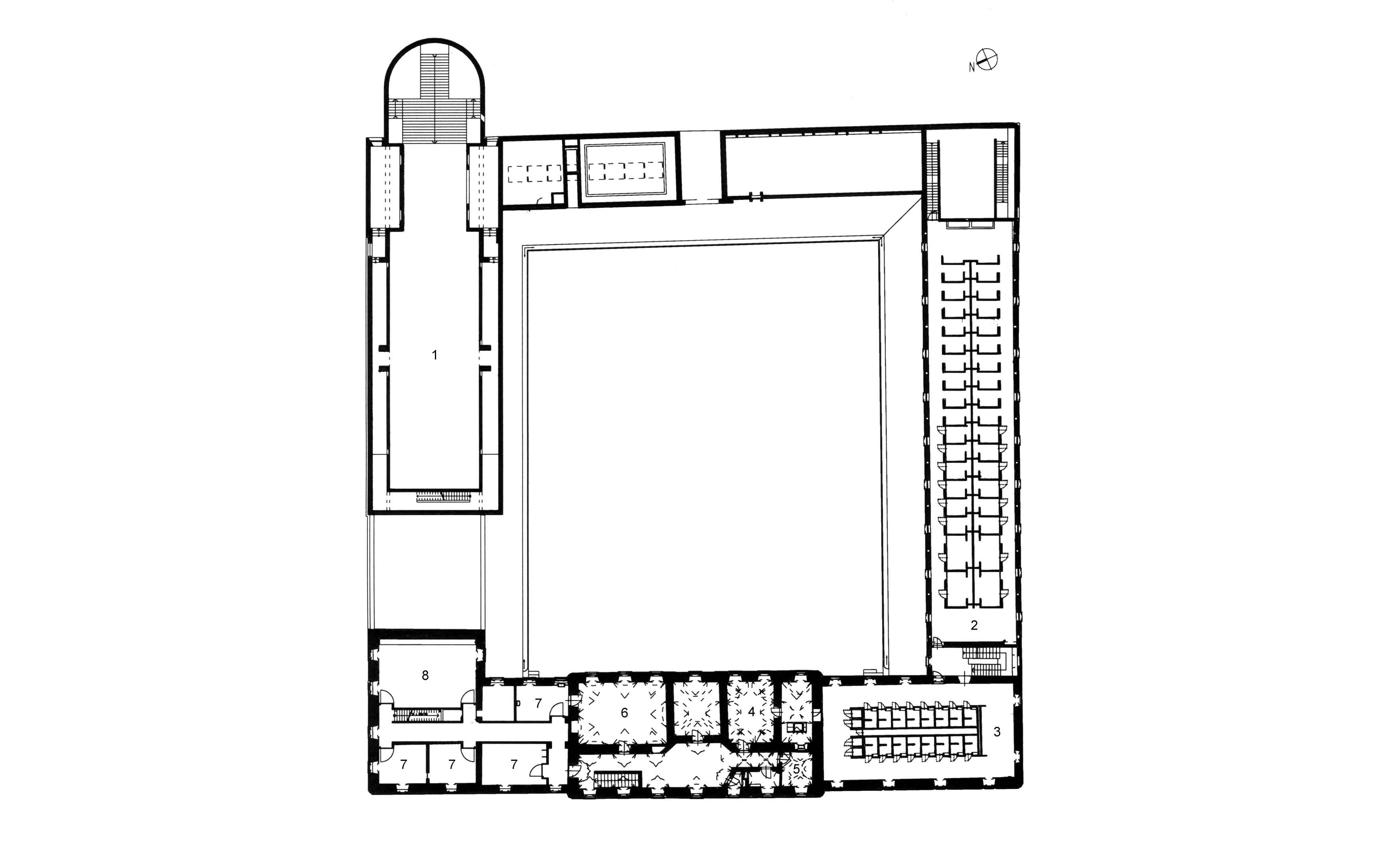
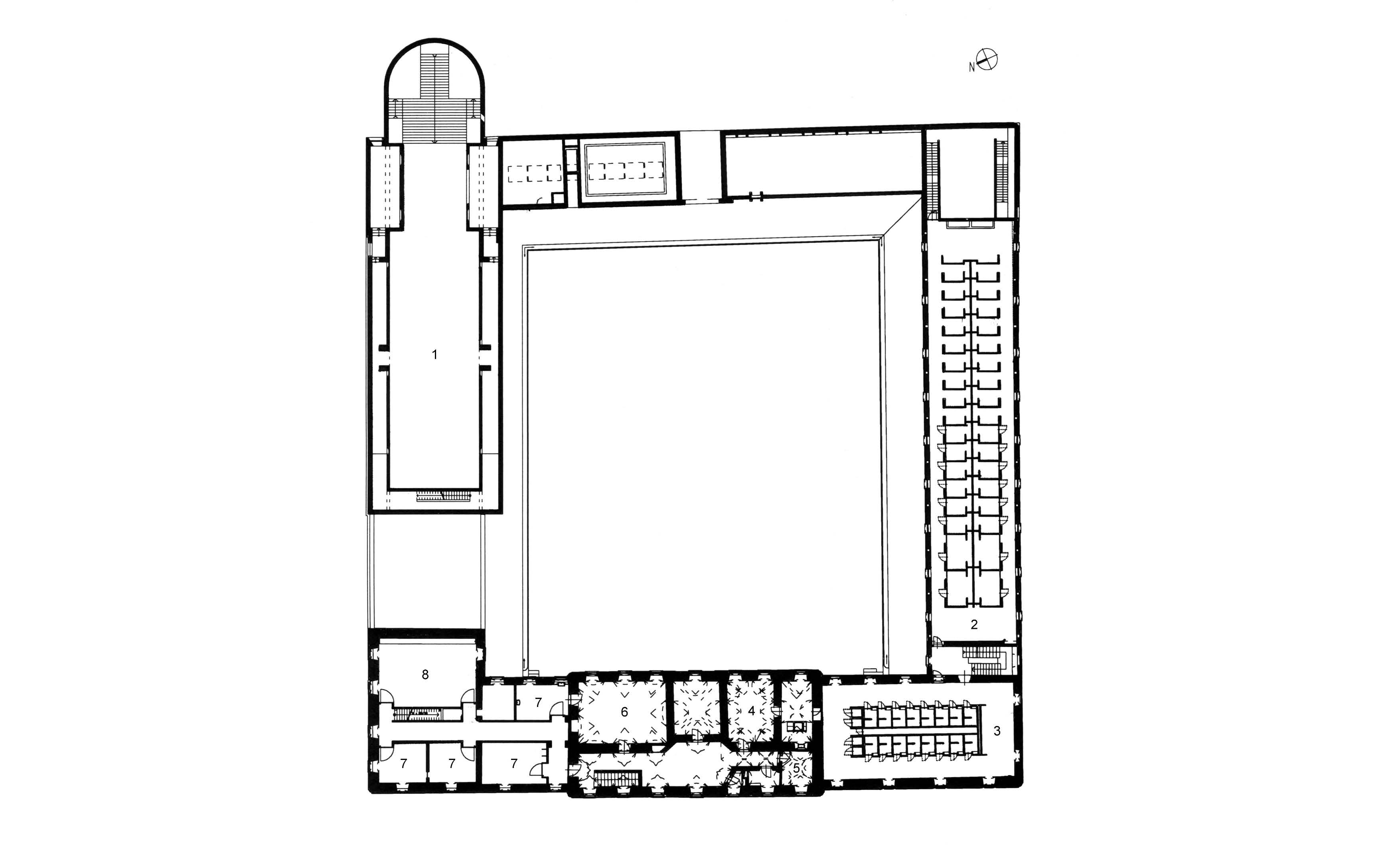
Kláštor - pôdorys 1.NP
Kláštor - pôdorys 1.NP
Kláštor - pôdorys 2.NP
Kláštor - pôdorys 2.NP
Kláštor - rez
Kláštor - rez
Ubytovňa - pôdorys 1.NP
Ubytovňa - pôdorys 1.NP
Ubytovňa - pôdorys 2.NP
Ubytovňa - pôdorys 2.NP
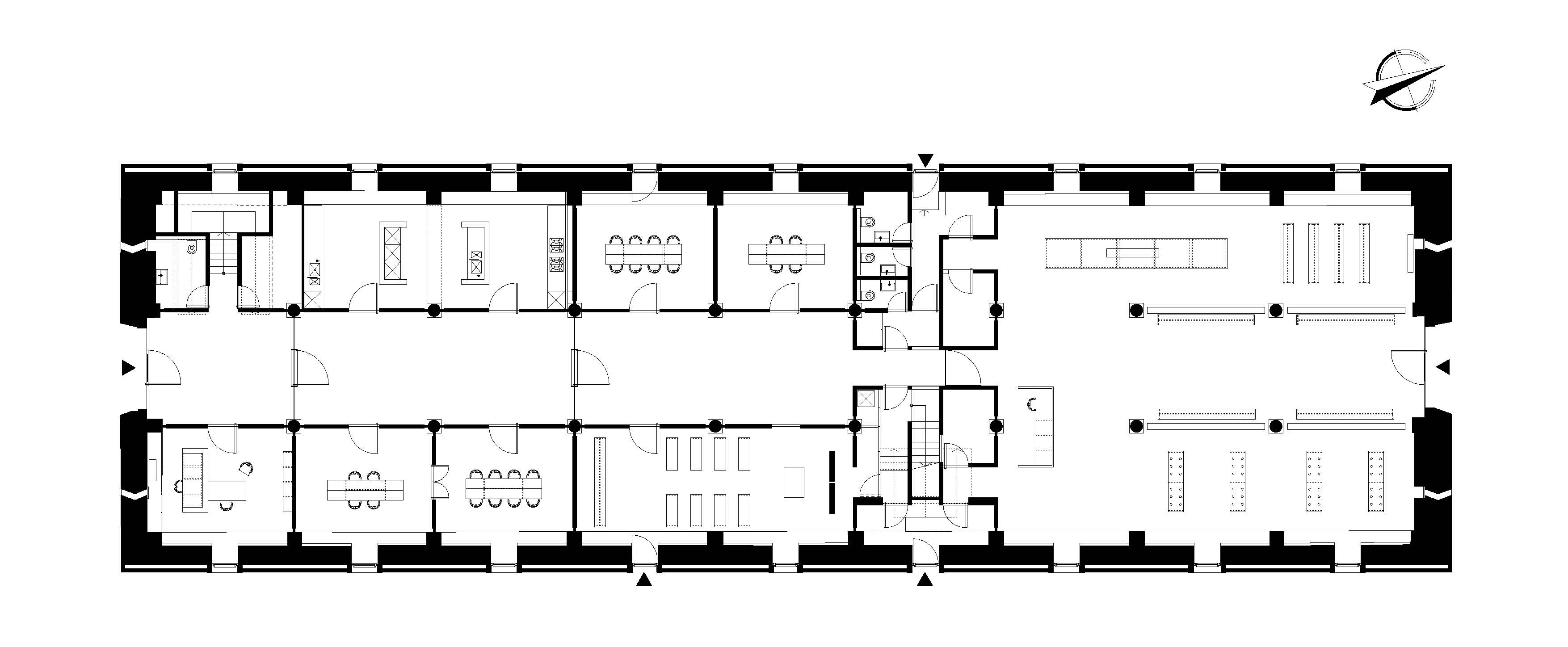
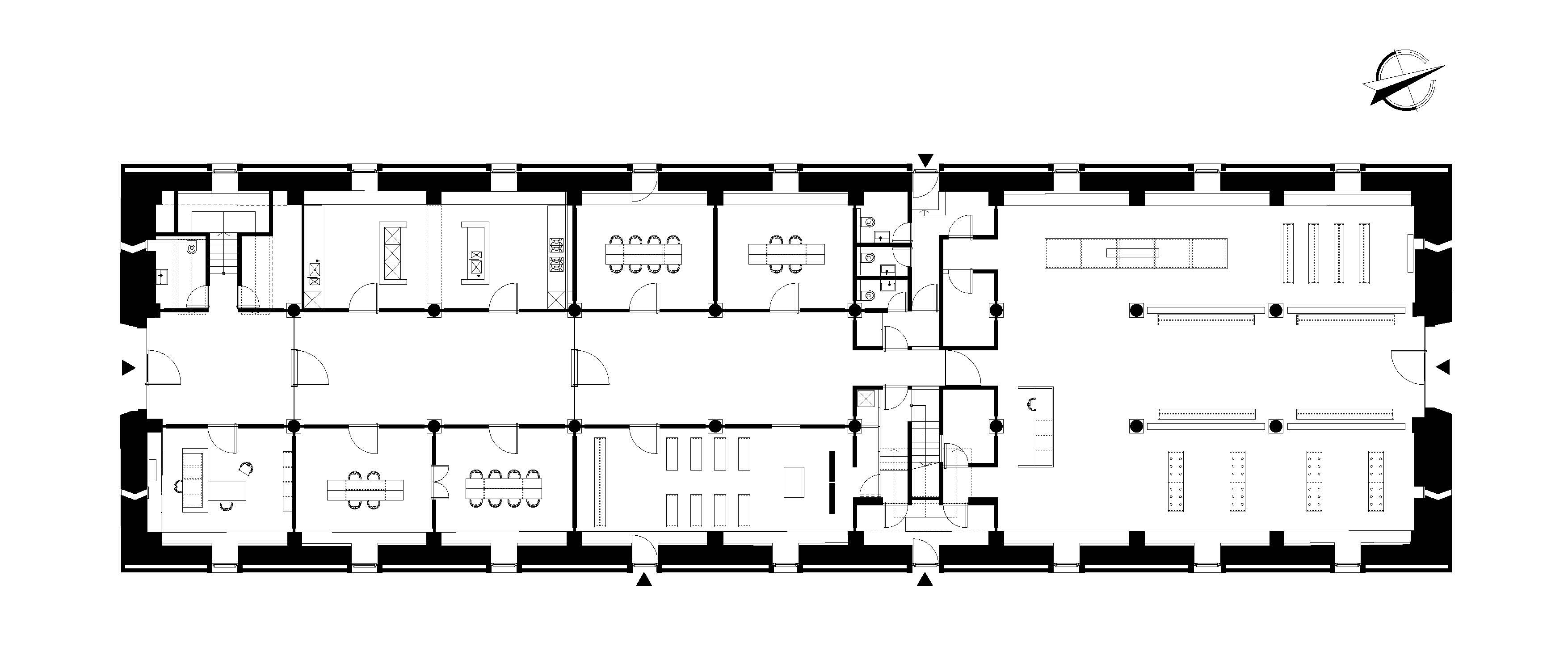
Výrobný objekt - pôdorys 1.NP
Výrobný objekt - pôdorys 1.NP
Výrobný objekt - rez
Výrobný objekt - rez
Model
ModelFoto: Gilbert McCarragher
Model
ModelFoto: Gilbert McCarragher

Poloha diela

John Pawson
Ing. arch. Jan Soukup

Súvisiace články

Vložené
6. november 2016
0
3721
Hlavný obsahHlavný obsah
Čakajte prosím