Novotvar v prostredí alpskej obce.
Hansgrohe - prémiová značka kúpeľňových riešení, ponúka nadčasový dizajn, technickú precíznosť a udržateľné inovácie...
Využite špeciálnu akciu Internorm: okná za minuloročné ceny a hliníkový kryt úplne zadarmo. Ponuka je časovo obmedzená!
Na podujatí sa predstaví až 37 vystavovateľov - popredných dodávateľov stavebných materiálov a inovácií s prezentáciou...
Sumarizácia najdôležitejších inovácií, ktoré redefinujúcich využitie tohto energetického zdroja.
AMPHIBIA 3000 GRIP 1.3 od spoločnosti ATRO predstavuje modernú hydroizolačnú technológiu, ktorá spája vysokú odolnosť,...
Ambiciózne plány EK narazili na ekonomické možnosti domácností v jednotlivých členských štátoch –...
IDEA DOOR od spoločnosti JAP prináša do interiéru čistý minimalistický vzhľad vďaka bezrámovému riešeniu a precíznej...
Kontinuita riešenia od vonkajšieho obkladu až po kovania a kľučky.
Nástenné nadomietkové armatúry Vitus sú mimoriadne vhodné pre rýchlu a efektívnu...
Okenné profily z kompozitného materiálu RAU-FIPRO X od spoločnosti Rehau sú v porovnaní s tradičnými plastovými profilmi mnohonásobne...
Najnovší sortiment stolov pre zariadenie interiérov...
Spojenie moderného dizajnu, funkčnosti a svetla do harmonického architektonického prvku.
Kancelárska budova Baumit v slovinskom Trzine prešla premenou na moderné a udržateľné pracovisko. Architekti kládli dôraz...
Mottom šiesteho ročníku on-line konferencie odborníkov Xella Dialóg je Efektívny návrh budov 2025+: zmeny a riešenia

Červený Kláštor, stredoveký kartuziánsky a neskôr kamaldulský kláštorný komplex na brehu Dunajca, patrí k príkladom toho, ako sa sakrálna architektúra dokáže vyrovnať s tlakom súčasných funkčných požiadaviek.
Historická substancia, zahŕňajúca gotické murivá, barokovú vežu a pozoruhodný súbor samostatných eremítorií, už desaťročia funguje ako múzeum.
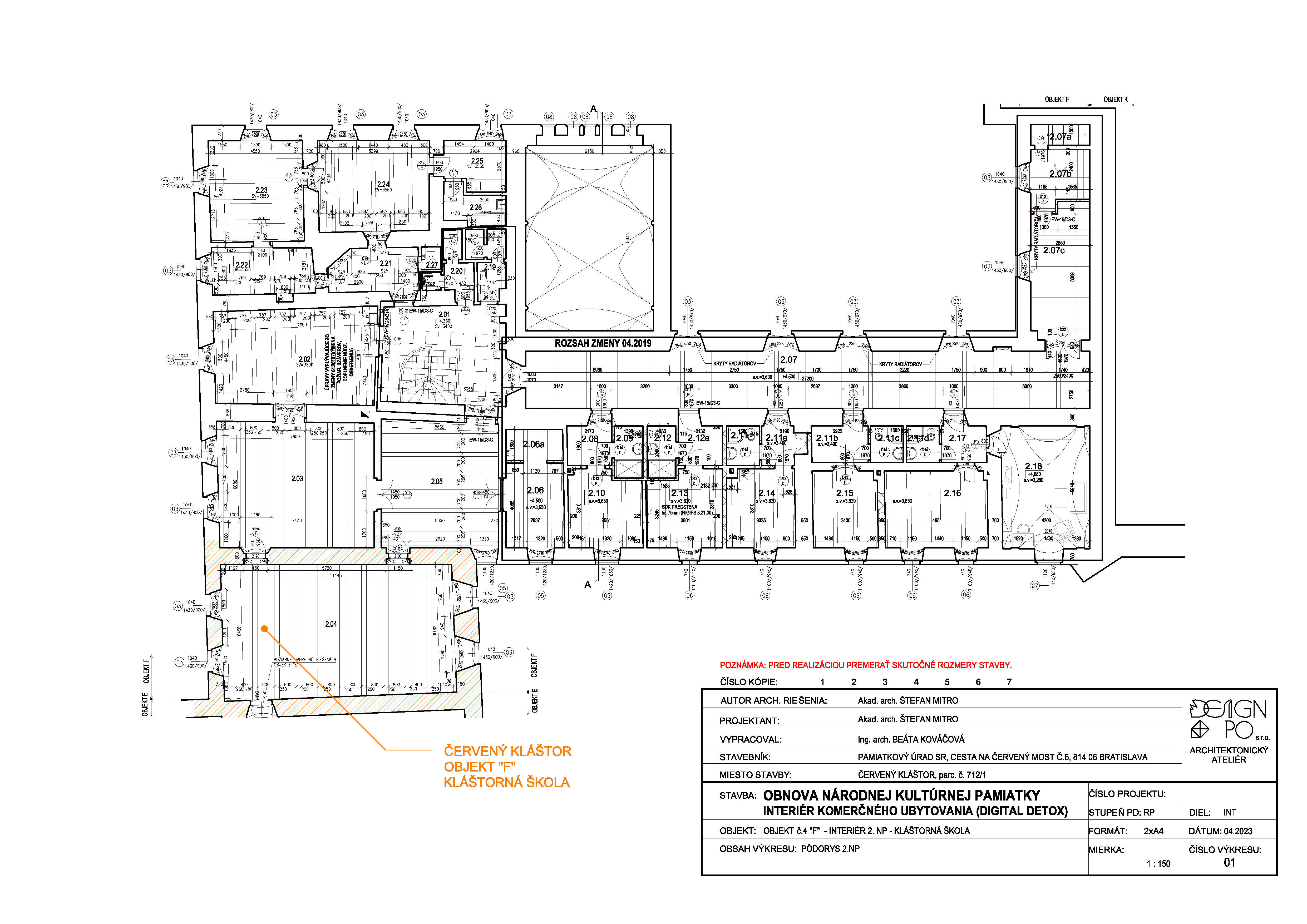
Aktuálna investičná fáza „Červený Kláštor – znovuzrodený“ (2019–2027 - kompletnú časovú os nájdete tu) vnáša do areálu ďalšie funkcie: konvent - „F“ sa mení na ubytovanie pre digitálny detox (dokončené), v rovnakom trakte vzniká kláštorná škola a v Rákociho krídle pivovar s bylinkovou manufaktúrou (objekt bude sprístupnený v letnej sezóne). Autorom projektov pre aktuálne etapy je ateliér architekta Štefana Mitra.
Historické vrstvy a význam stavby
Kláštor založil roku 1319 šľachtic Kokoš Berzeviczy; kartuziáni tu hospodárili do roku 1563. Po viac než storočnej stagnácii zrevitalizovali areál kamalduli (1711–1782), ktorí rozšírili konvent o lekárenské krídlo a drevené pavlače. Po sekularizácii, za cisára Jozefa II. objekty chátrali a tragický požiar v roku 1907 spôsobil rozsiahlu deštrukciu.
Kľúčovým momentom moderných dejín kláštora bola obnova z rokov 1956–1966, ktorú viedol československý Štátny ústav pre rekonštrukciu pamiatkových miest a objektov. Inštitúcia zjednotila rozvoľnený súbor ruín a torzovitých barokových hmôt do kompaktného múzejného celku.
Pod dohľadom SURPMO Praha vznikli nové krovové konštrukcie trojice sedlových striech konventu, dubové vlysové podlahy a ikonické valcovité svietidlá z ohýbanej ocele a skla, ktoré dodnes definujú charakter interiéru objektu "F".
Rekonštrukciu viedol architekt Josef Kaňka so statikom Vladimírom Moťkom; ich práca sa stala ďalšou legitímnou historickou vrstvou.
Objekt „F“: konvent ako laboratórium obnovy
Koncept obnovy architekta Štefana Mitra dôsledne čerpá z povojnových úprav, rešpektuje ich ako „druhú historickú vrstvu“ a stavia na nich nový program.
Ponecháva dubovú vlysovú podlahu, trámový strop s priečnymi trámikmi, aj drevené kryty radiátorov s perforovanou kovovou mriežkou.
Z pohľadu metodiky obnovy ide o autentický princíp: odkrýva šesťdesiate roky ako rovnocennú súčasť príbehu a minimalizuje demolačné zásahy.
Nové inštalácie (elektro, slaboprúd, EPS) sú vedené výhradne v soklových lištách alebo samonosných priečkach, takže historické murivá zostávajú bez drážok. Retro lampy vychádzajú z tvaroslovia pôvodných trubkových svietidiel, no využívajú nízkoenergetické LED zdroje. Všetky nánosy farieb na obkladoch prešli skúškou retušovateľnosti; finálny náter, vápenná lazúra tónovaná miestnou hlinou, zjednocuje rôzne materiálové vrstvy a zlepšuje difúznu rovnováhu povrchov.
Digitálny detox: asketické cely pre hostí
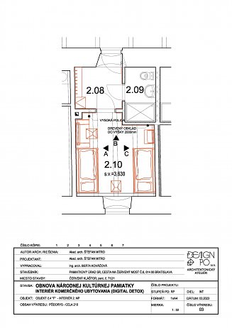
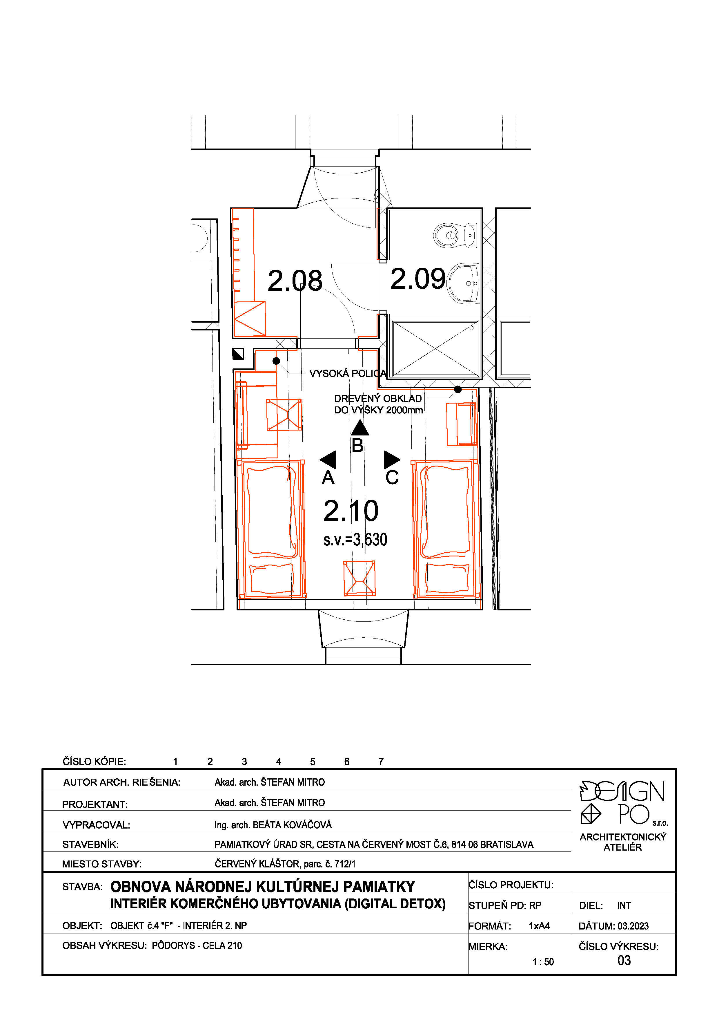
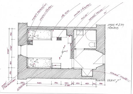
Na prvom podlaží trojice sedlových striech vzniklo päť jednoducho zariadených ciel. Celodrevené postele, stolček a sviečka nahrádzajú obrazovky; signál Wi-Fi aj mobilných sietí je úmyselne odtienený. Pobyt propagovaný ako „Digital Detox Camp“ reprezentuje návrat k monastickej idei ticha a kontemplácie. Architektonické riešenie využíva regulovanú mikroventiláciu a tlmené LED orientačné osvetlenie v sokloch, aby sa zachovala vizuálna jednoduchosť aj bezpečnostné štandardy.
Každá cela má samostatnú kúpeľňu a vstupnú predsieň. Celodrevené postele s ľanovým baldachýnom vytvárajú vizuálne mikropriestory osobnej kartúzy. Drevená stolička s výpletom z konopného povrazu, jednoduchý stôl a drevené klakátko odkazujú na pôvodný účel klauzúry. Stena je do výšky dvoch metrov obložená masívnymi smrekovými doskami, nad ktorými pokračuje 1,6 metra omietky v prirodzenom odtieni vápna. Horizontálne delenie symbolicky prepája „pozemský“ a „duchovný“ život mnícha.
K základnému mobiliáru patrí aj zavesená drevená kazeta nad kľakátkom (ukrýva Bibliu a krížik) a drobné poličky. Odkladací priestor zabezpečujú vstavané police na batožinu a zabudovaná skriňa s vešiakom integrovaným do čelnej steny predsiene.
Materiály zostávajú autentické: smrekové a jedľové rezivo po kefovaní je upravené olejovo-voskovými nátermi; textílie (baldachýn, závesy) sú z ľanovej či bavlnenej metráže v prirodzenej farebnosti.
Kláštorná škola: hands-on expozícia remesiel
O poschodie vyššie, v miestnosti 2.04 (72,31 m²), vzniká interaktívna trieda. Pôvodné trubkové svietidlá zostávajú odhaleným artefaktom modernistickej fázy, sekundárne osvetlenie zabezpečujú repasované drevené rampy so skrytými LED pásmi. Klasicisticky tvarovaná čierna tabuľa sa zasúva pred 90-palcovú interaktívnu plochu. Lavice, kefované borovicové masívy s olejovo-voskovým náterom, integrujú písaciu dosku a sedenie pre dvojicu žiakov, čím reinterpretujú historické zariadenie. V zadnej stene sa reštauruje kamenná nika uzavretá novou kovanou mrežou; slúžiť bude na prezentáciu vzácnych herbárových faksimílií.
Program školy vychádza z požiadaviek správy kláštora: workshopy kaligrafie husím brkom, lekcie spracovania bylín a didaktické ukážky stredovekých tinktúr. Podlahová dispozícia umožňuje rýchlu reorganizáciu, pretože lavice sú kotvené bodovo; miestnosť tak po odsunutí mobiliáru zhostí komorné koncerty či scénické čítania.
Rákociho krídlo (Objekt E): pivovar, medovina, manufaktúra, tvorivé dielne...
Pavlačové barokové krídlo, neformálne nazývané „Rákociho“, je najmladšou časťou komplexu otvorenou verejnosti. Na prvom nadzemnom podlaží vzniká remeselný pivovar s produkčnou kapacitou 400 hl ročne. Nerezové kvasné tanky sú obalené tepaným medeným plechom pripomínajúcim dobové pivovarské náčinie. Súčasťou tohto podlažia je výrobňa medoviny. Druhé nadzemné podlažie hostí „Cypriánovu manufaktúru“, kde sa vyrábajú bylinné čaje, tinktúry, mastičky, mydlá... Na to istom podlaží, v susednej „dvorane“, je priestor na organizovanie tvorivých dielni pre deti a dospelých, kde pod vedením animátorov si účastníci môžu vyrobiť „svoje mydielko“, či namiešať „svoj čaj“. Podkrovie „Rákociho krídla“ obsahuje konferenčnú miestnosť pre odborné semináre a stretnutia pamiatkarov, múzejníkov, architektov, pracovníkov rezortu kultúry.
Metodika zásahov: reverzibilita a striedme materiálové riešenie
Projekt sa riadi princípmi Pamiatkového úradu SR pre sakrálnu architektúru: jasná dokumentácia pôvodného stavu, diagnostika materiálov, zásada „najprv konzervuj, potom doplň“ a reverzibilné vloženie nových funkčných vrstiev. Všetky nové prvky sú preto oddilatované od historických murív, neskrývajú svoju dobovosť a farebne sa podraďujú prirodzenej farebnosti dreva a vápna.
Energetické a prevádzkové parametre
Objekt „F“ bol pôvodne napojený na centrálnu kotolňu. Od roku 2010 sa však jednotlivé objekty postupne odpájali od centrálneho zdroja tepla a získali vlastné menšie plynové kotolne, čím sa odstránili tepelné straty z dlhých rozvodov a zvýšila sa flexibilita vykurovania podľa okamžitej potreby každého objektu. Spotreba elektrickej energie sa po výmene svetelných zdrojov a optimalizácii prevádzky slaboprúdových rozvodov citeľne znížila.
Výsledok obnovy
Červený Kláštor dnes okrem iného slúži aj ako výukové prostredie pre architektov aj pamiatkarov. Ukazuje, že rešpekt k historickým vrstvám sa dá zladiť s novými programovými náplňami, ako digitálny detox, zážitkové vzdelávanie a remeselná výroba, bez toho, aby trpela autenticita objektu. Kľúčové je minimalizovať zásahy do nosnej substancie, priznať mladšie vrstvy ako súčasť príbehu a vkladať nehistorické prvky spôsobom, ktorý ich možno v budúcnosti odstrániť.
Vizualizácie rekonštrukcie mníškych ciel, v objekte konventu:
Vizualizácie interiéru kláštornej školy a v Rákociho krídle:
Výkresová dokumentácia (štúdia z roku 2023):
Dodatočná výkresová dokumentácia:
Podklady: Štefan Mitro / DESIGN PO