Advertorial

95 rokov Internorm: 30 miliónov okien a dverí z Rakúska

Európska značka okien oslavuje jubileum: za 95 rokov sa vyvinula na najväčšiu medzinárodne pôsobiacu okennú značku a inovačného...

Pozvánka na 2. ročník stavebného veľtrhu BigMarket na Slovensku

Na podujatí sa predstaví až 37 vystavovateľov - popredných dodávateľov stavebných materiálov a inovácií s prezentáciou...

Hotel Hirschen Spa House, Rakúsko

Novotvar v prostredí alpskej obce.

Vytvorte si kúpeľňu snov: dizajnové riešenie od značky hansgrohe

Hansgrohe - prémiová značka kúpeľňových riešení, ponúka nadčasový dizajn, technickú precíznosť a udržateľné inovácie...

Okná Internorm za minuloročné ceny + hliníkový kryt zdarma!

Využite špeciálnu akciu Internorm: okná za minuloročné ceny a hliníkový kryt úplne zadarmo. Ponuka je časovo obmedzená!

Moderné plynové technológie: Efektivita a inovácie pre 21. storočie

Sumarizácia najdôležitejších inovácií, ktoré redefinujúcich využitie tohto energetického zdroja.

Utesňovanie spodných stavieb pomocou hydro-aktívnej fólie AMPHIBIA.

AMPHIBIA 3000 GRIP 1.3 od spoločnosti ATRO predstavuje modernú hydroizolačnú technológiu, ktorá spája vysokú odolnosť,...

Dekarbonizácia individuálneho vykurovania domácností – Green Deal evolučne a nie revolučne

Ambiciózne plány EK narazili na ekonomické možnosti domácností v jednotlivých členských štátoch –...

Minimalistické dvere IDEA – technická precíznosť a čistota prevedenia

IDEA DOOR od spoločnosti JAP prináša do interiéru čistý minimalistický vzhľad vďaka bezrámovému riešeniu a precíznej...

Dom s výhľadom na údolie, Dlouhý Most (ČR)

Kontinuita riešenia od vonkajšieho obkladu až po kovania a kľučky.

Schell Vitus – osvedčené riešenie pre sprchy a umývadlá vo verejnom sektore s viac ako desaťročnou tradíciou

Nástenné nadomietkové armatúry Vitus sú mimoriadne vhodné pre rýchlu a efektívnu...

Kompozitné okná predstavujú súčasnosť a budúcnosť

Okenné profily z kompozitného materiálu RAU-FIPRO X od spoločnosti Rehau sú v porovnaní s tradičnými plastovými profilmi mnohonásobne...

Myotis - stoly 2025

Najnovší sortiment stolov pre zariadenie interiérov...

Priemyselné sklenené priečky Dorsis Digero: svetelné rozhranie pre moderné interiéry

Spojenie moderného dizajnu, funkčnosti a svetla do harmonického architektonického prvku.

Význam prirodzeného svetla pre moderné a flexibilné pracovné prostredie

Kancelárska budova Baumit v slovinskom Trzine prešla premenou na moderné a udržateľné pracovisko. Architekti kládli dôraz...

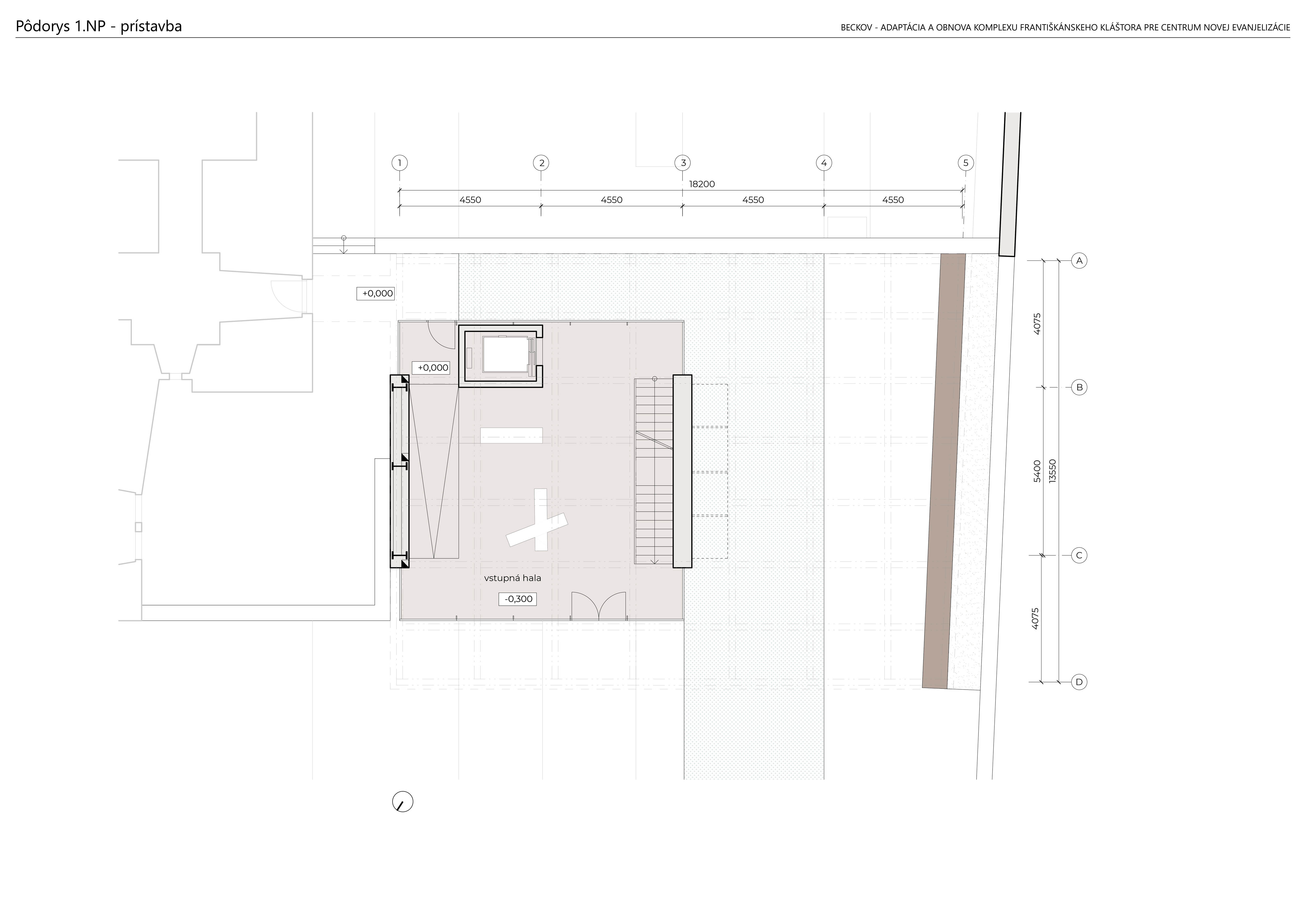
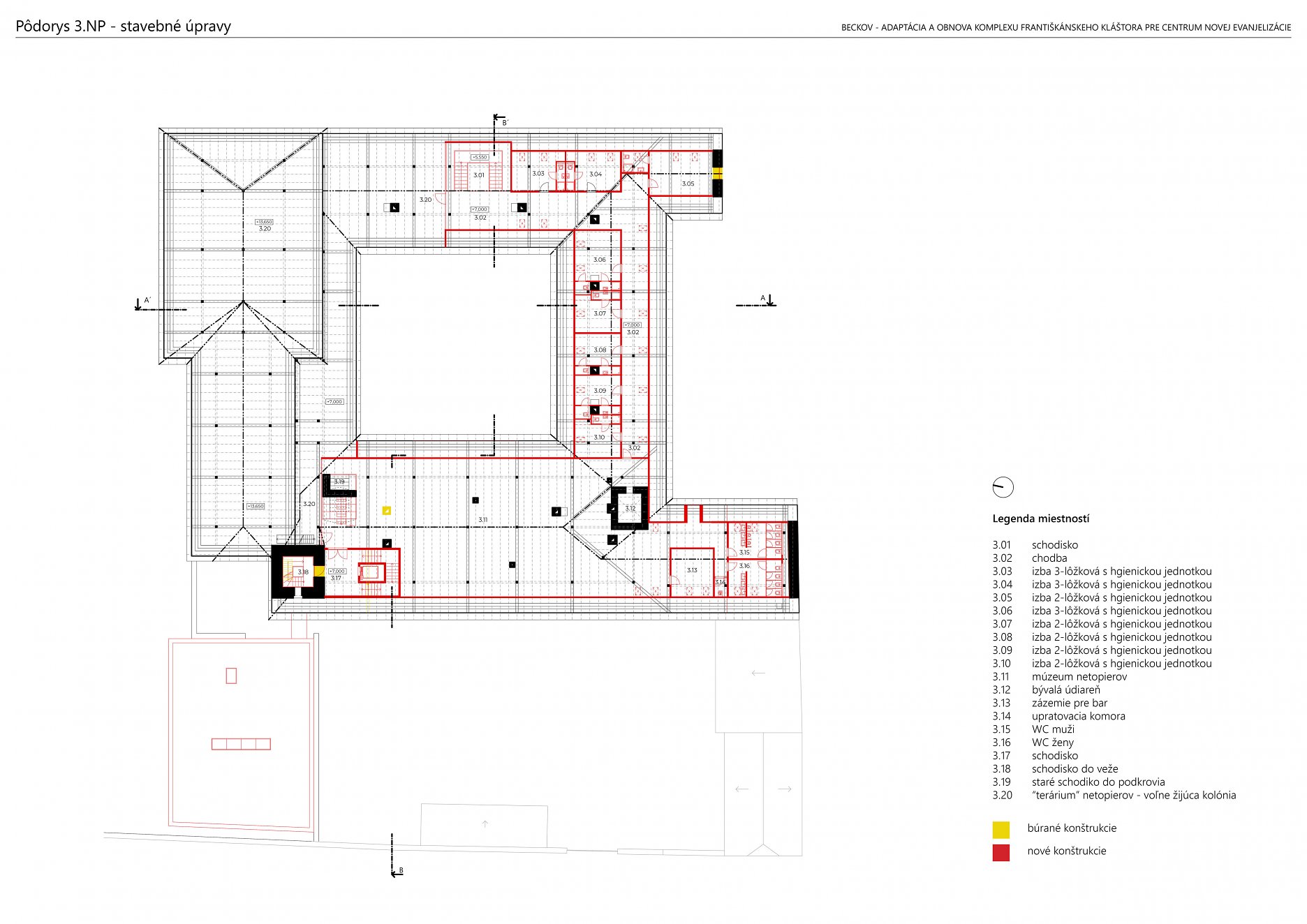
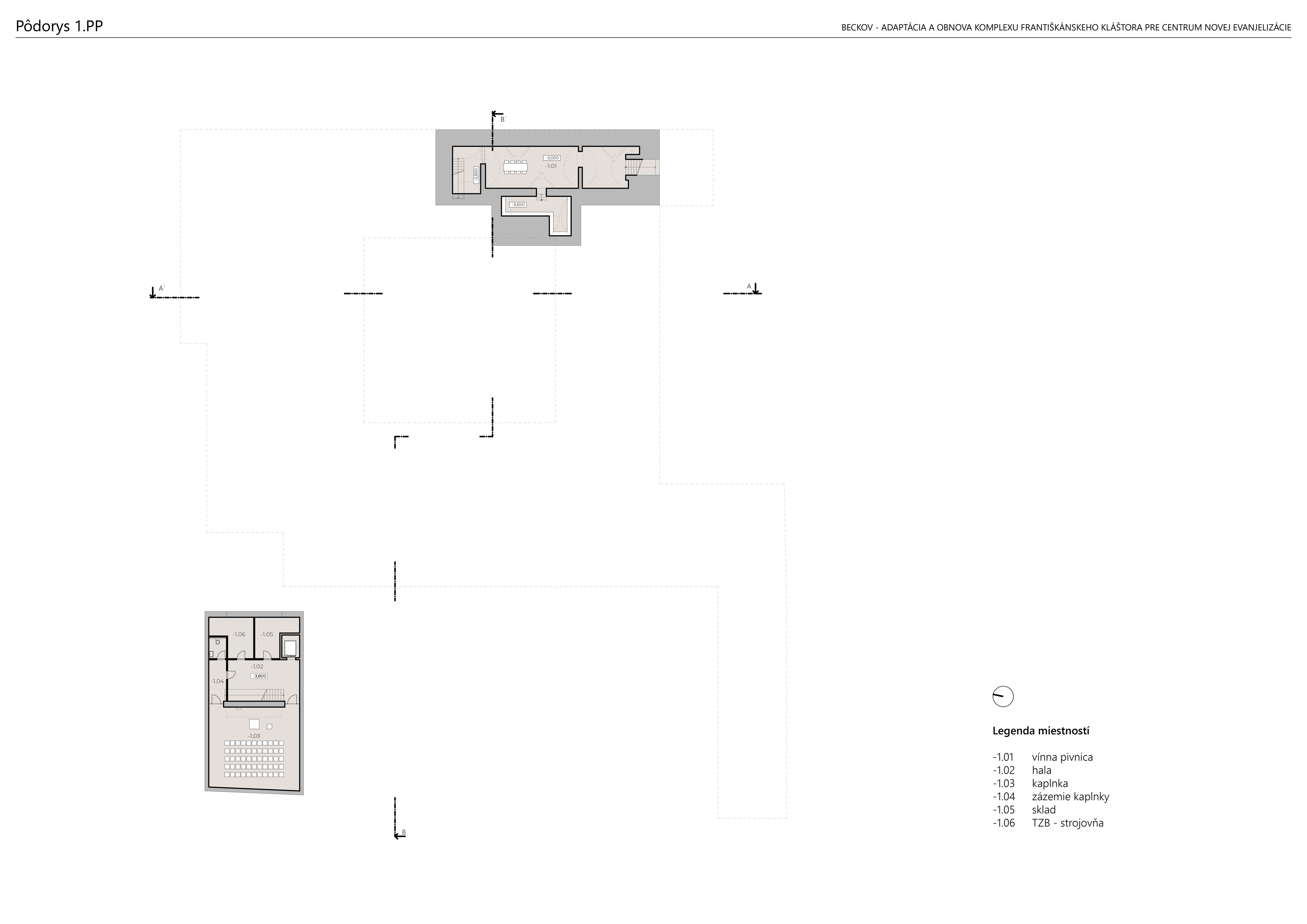
Beckov - Adaptácia a obnova komplexu františkánskeho kláštora pre Centrum novej evanjelizácie: diplomová práca nominovaná na Cenu profesora Jozefa Lacka

Komplexný pohľad na adaptáciu kláštorného súboru v podhradí Beckova.
Diela
Red 323.08.2020
26470+34
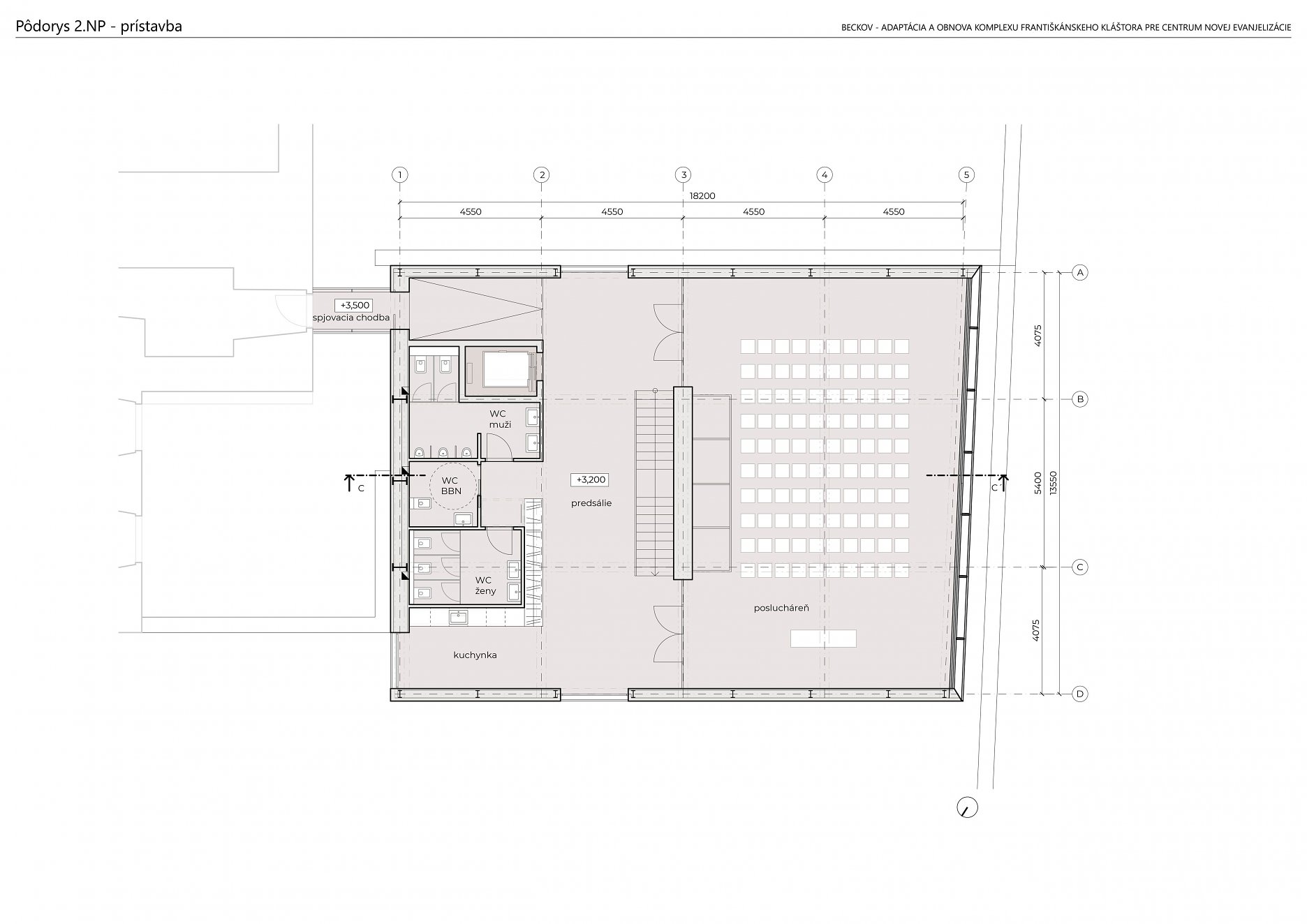
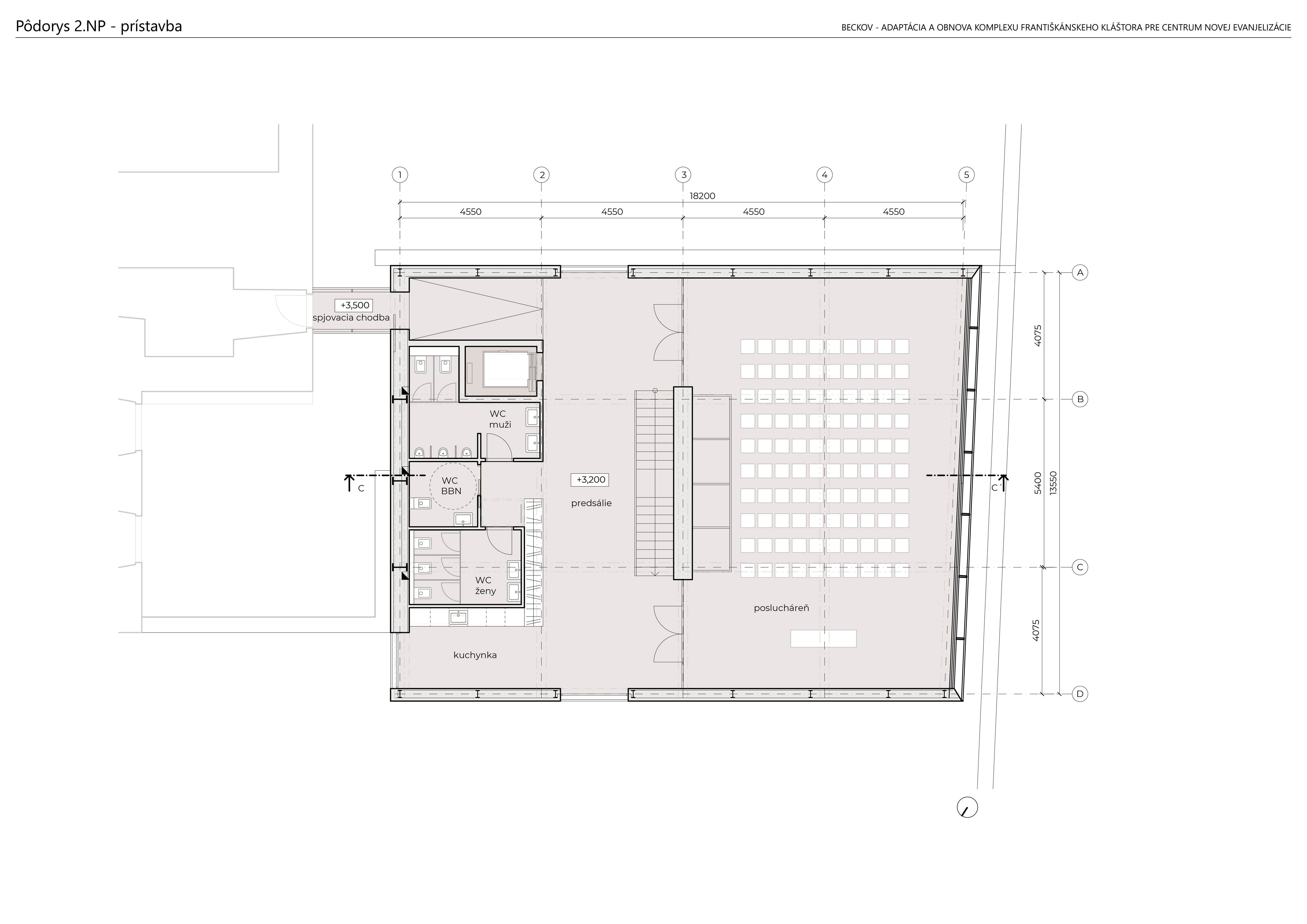
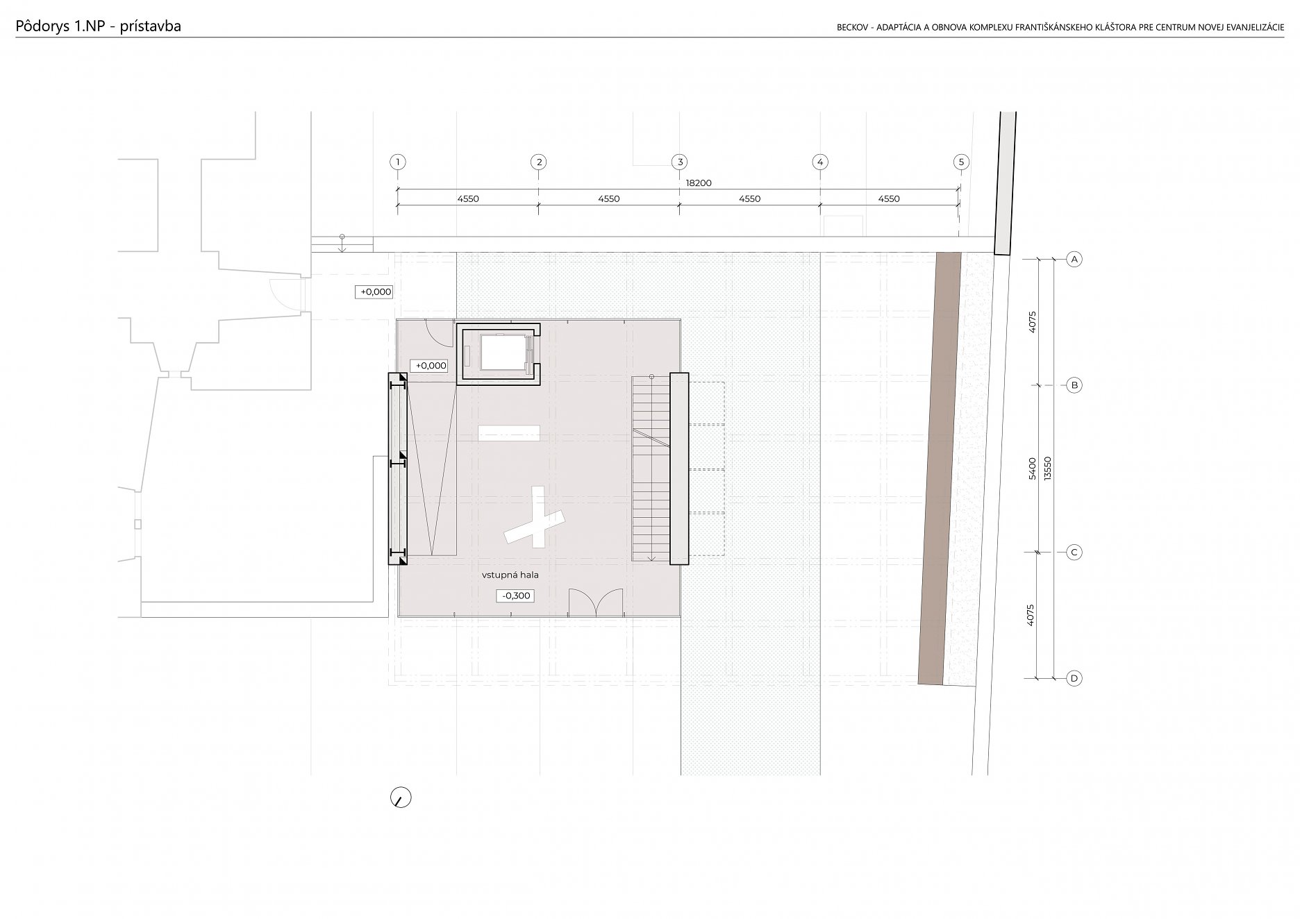
Beckov - Adaptácia a obnova komplexu františkánskeho kláštora pre Centrum novej evanjelizácie: diplomová práca nominovaná na Cenu profesora Jozefa Lacka
Autori: Ing. arch. Ivan KanichSpolupráca: doc. Ing. arch. Mgr. Andrej Botek, PhD.Návrh: 2020 - 2020Adresa: Beckov 1181 /1, SlovenskoPublikované: 23. august 2020

Záverečná práca absolventa Fakulty architektúry STU v Bratislave, nominovaná v rámci Celoštátnej súťaže o najlepšiu diplomovú prácu absolventov architektonických škôl na Slovensku za akademický rok 2019/20.

Skrátený autorský text:

Predmetom diplomovej práce bola obnova a adaptácia komplexu františkánskeho kláštora v Beckove pre funkciu Centra novej evanjelizácie. Ranobarokový kláštorný komplex, s typickou štvorkrídlovou dispozíciou, má dôležité postavenie v urbanizme historického centra obce – priamo pod skalnatým bralom zrúcaniny hradu Beckov. Funkčná náplň Centra novej evanjelizácie zahŕňa ubytovacie kapacity pre hostí, klauzúrne priestory rehoľníkov, stravovanie a spoločenské priestory s posluchárňou. Nová prístavba pojala poslucháreň so samostatným vstupom a menšiu kaplnku. Súčasťou návrhu je zobytnenie podkrovia a vytvorenie múzea netopierov, kde je vyčlenený priestor so zvláštnym ochranným režimom. 

 

Vizualizácie:

Pohľad z ulice
Pohľad z ulice
Kaplnka
Kaplnka
Prednáška
Prednáška
Múzeum
Múzeum
Izba
Izba
Vstup
Vstup

 

Textová časť:

Podklady: Ivan Kanich

Poloha diela

Ing. arch. Ivan Kanich

Súvisiace články

Vložené
10. august 2020
0
2647
Hlavný obsahHlavný obsah
Čakajte prosím