Na podujatí sa predstaví až 37 vystavovateľov - popredných dodávateľov stavebných materiálov a inovácií s prezentáciou...
Novotvar v prostredí alpskej obce.
Hansgrohe - prémiová značka kúpeľňových riešení, ponúka nadčasový dizajn, technickú precíznosť a udržateľné inovácie...
Využite špeciálnu akciu Internorm: okná za minuloročné ceny a hliníkový kryt úplne zadarmo. Ponuka je časovo obmedzená!
Sumarizácia najdôležitejších inovácií, ktoré redefinujúcich využitie tohto energetického zdroja.
AMPHIBIA 3000 GRIP 1.3 od spoločnosti ATRO predstavuje modernú hydroizolačnú technológiu, ktorá spája vysokú odolnosť,...
Ambiciózne plány EK narazili na ekonomické možnosti domácností v jednotlivých členských štátoch –...
IDEA DOOR od spoločnosti JAP prináša do interiéru čistý minimalistický vzhľad vďaka bezrámovému riešeniu a precíznej...
Kontinuita riešenia od vonkajšieho obkladu až po kovania a kľučky.
Nástenné nadomietkové armatúry Vitus sú mimoriadne vhodné pre rýchlu a efektívnu...
Okenné profily z kompozitného materiálu RAU-FIPRO X od spoločnosti Rehau sú v porovnaní s tradičnými plastovými profilmi mnohonásobne...
Najnovší sortiment stolov pre zariadenie interiérov...
Spojenie moderného dizajnu, funkčnosti a svetla do harmonického architektonického prvku.
Kancelárska budova Baumit v slovinskom Trzine prešla premenou na moderné a udržateľné pracovisko. Architekti kládli dôraz...
Mottom šiesteho ročníku on-line konferencie odborníkov Xella Dialóg je Efektívny návrh budov 2025+: zmeny a riešenia

Dôsledná rekonštrukcia za účelom prispôsobenia vnútorného prostredia novej funkcii. Architektonické riešenie rešpektuje pôvodnú podobu a dispozíciu kultúrnej pamiatky v juhočeskej obci Chvalšiny, neďaleko od Českého Krumlova. Počas dva roky trvajúcich prác boli dôsledne sanované hodnotné kamenárske, stolárske a zámočnícke detaily. Súdobý autorský vklad tvorí funkčnú vrstvu, ktorá sa stáva súčasťou novej kapitoly v histórii objektu.
Kontext
Obec Chvalšiny leží medzi vrchom Kleť (najvyšší bod Blanského lesa) a vojenským priestorom Boletice. V roku 1945 bol značná časť obyvateľstva nútená odísť, preto má obec v súčasnosti len 1300 stálych obyvateľov.
Súkromná nadácia Rímskokatolíckej cirkvi kúpila chátrajúci areál fary, ktorý nedokázala malá obec udržiavať. Zriadila v nej ubytovanie pre osoby s poruchami autistického spektra. Cieľom bolo vytvoriť priestor pre týždňové alebo víkendové pobyty pacientov a súčasne zachrániť chátrajúcu kultúrnu pamiatku. Bývalá fara je súčasťou centrálnej zóny obce, spolu s neďalekým gotickým kostolom. Objekt zaberá pôdorys dvojice pôvodných meštianskych domov.
Hlavná fasáda smeruje na námestie, na sever sa fara obracia “slepou” fasádou, obnaženou v 60. rokoch 20. storočia po zbúraní susedného objektu. Pivnica a časť prízemia domu pochádza zo stredoveku, hlavná časť objektu je však baroková, s klasicistickou prestavbou. Novšie časti komplexu boli dostavané v 19. storočí a tridsiatych rokoch minulého storočia.
Stavebný fundus a strechy fary zostali bez veľkých zásahov, na námestí sa prestavba okrem nového farebného riešenia fasády neprejavuje. Architekti zachovali pôvodné vstupy a základné prevádzkové a dispozičné členenie.
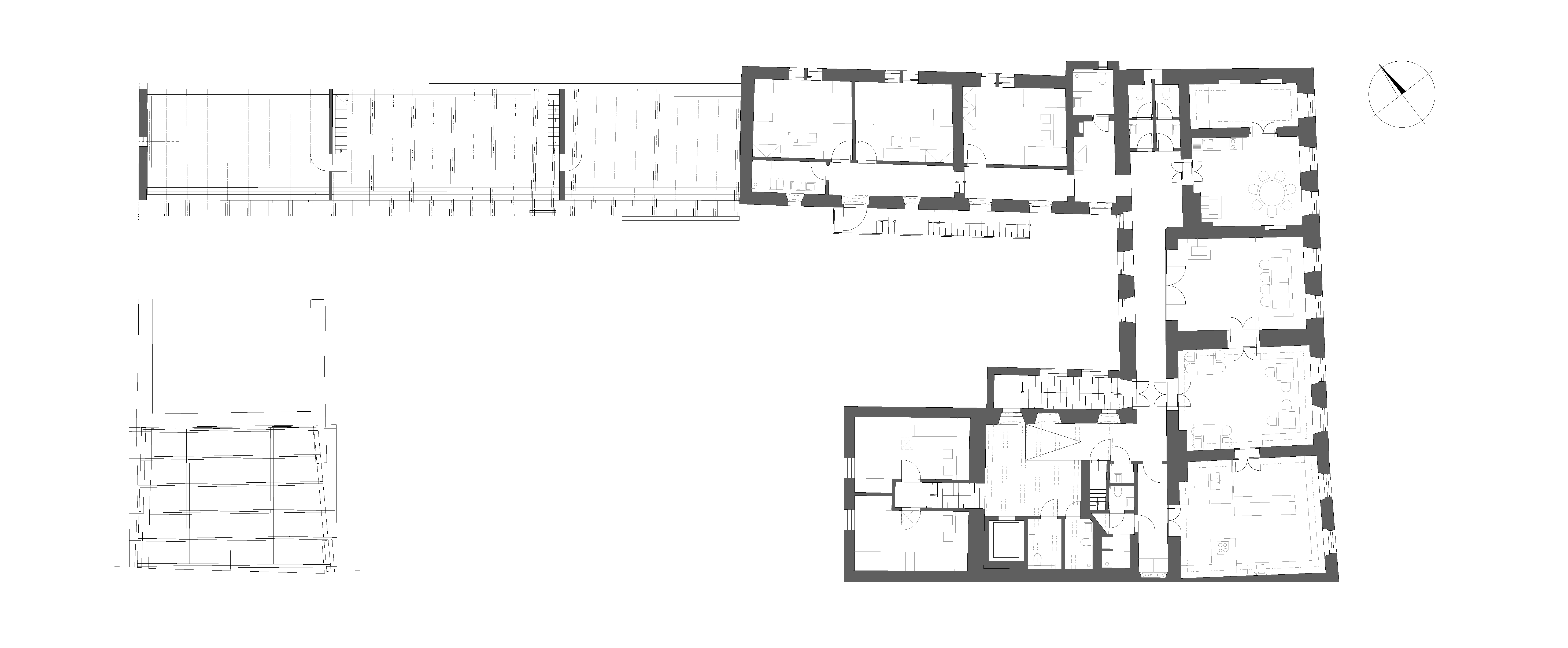
Dispozícia a prevádzka
Na prízemí sa okrem vstupnej časti nachádza samostatný byt a kaplnka. V rámci prestavby pribudol výťah a vonkajšie schodisko. Hlavný trakt na poschodí objektu využíva prepojená spoločenská časť. Pre dosiahnutie potrebnej kapacity (22 lôžok) bolo severné krídlo predĺžené až na úroveň bývalej stodoly. Na mieste bývalých stajní, chlievov a sýpky vznikli ďalšie izby.
V severnom obvodovom múre pribudli nové okná, na prízemí dvojité prevetrávané podlahy. Klenby boli dodatočne spevnené tiahlami, drevené stropy a krovy precízne zreštaurované. Ako pochôdzna vrstva slúžia pôvodné drevené dosky a nová, remeselne vyrábaná, keramická dlažba. Stolárske, zámočnícke a kamenárske detaily boli sanované a doplnené na základe ich dôkladnej inventarizácie. Dôležitú súčasť interiéru tvorí zreštaurovaná historická výmaľba.
Pôvodná výkresová dokumentácia
Fotodokumentácia stavu pred rekonštrukciou:
Nové využitie vdýchlo objektu život a pridalo k celej histórii ďalšiu kapitolu. “Na začátku práce panovala obava, že objekt pro klienty s poruchami autismu není vhodný, že se mohou snažit památkový objekt demolovat a že bude pro ně snadné se v objektu sebepoškozovat. V současné době probíhá zkušební provoz a lze konstatovat, že klienti se v domě cítí dobře a spokojeně,” dopĺňajú na záver autori.
Podklady: 4DS