Advertorial

Pozvánka na 2. ročník stavebného veľtrhu BigMarket na Slovensku

Na podujatí sa predstaví až 37 vystavovateľov - popredných dodávateľov stavebných materiálov a inovácií s prezentáciou...

Hotel Hirschen Spa House, Rakúsko

Novotvar v prostredí alpskej obce.

Vytvorte si kúpeľňu snov: dizajnové riešenie od značky hansgrohe

Hansgrohe - prémiová značka kúpeľňových riešení, ponúka nadčasový dizajn, technickú precíznosť a udržateľné inovácie...

Okná Internorm za minuloročné ceny + hliníkový kryt zdarma!

Využite špeciálnu akciu Internorm: okná za minuloročné ceny a hliníkový kryt úplne zadarmo. Ponuka je časovo obmedzená!

Moderné plynové technológie: Efektivita a inovácie pre 21. storočie

Sumarizácia najdôležitejších inovácií, ktoré redefinujúcich využitie tohto energetického zdroja.

Utesňovanie spodných stavieb pomocou hydro-aktívnej fólie AMPHIBIA.

AMPHIBIA 3000 GRIP 1.3 od spoločnosti ATRO predstavuje modernú hydroizolačnú technológiu, ktorá spája vysokú odolnosť,...

Dekarbonizácia individuálneho vykurovania domácností – Green Deal evolučne a nie revolučne

Ambiciózne plány EK narazili na ekonomické možnosti domácností v jednotlivých členských štátoch –...

Minimalistické dvere IDEA – technická precíznosť a čistota prevedenia

IDEA DOOR od spoločnosti JAP prináša do interiéru čistý minimalistický vzhľad vďaka bezrámovému riešeniu a precíznej...

Dom s výhľadom na údolie, Dlouhý Most (ČR)

Kontinuita riešenia od vonkajšieho obkladu až po kovania a kľučky.

Schell Vitus – osvedčené riešenie pre sprchy a umývadlá vo verejnom sektore s viac ako desaťročnou tradíciou

Nástenné nadomietkové armatúry Vitus sú mimoriadne vhodné pre rýchlu a efektívnu...

Kompozitné okná predstavujú súčasnosť a budúcnosť

Okenné profily z kompozitného materiálu RAU-FIPRO X od spoločnosti Rehau sú v porovnaní s tradičnými plastovými profilmi mnohonásobne...

Myotis - stoly 2025

Najnovší sortiment stolov pre zariadenie interiérov...

Priemyselné sklenené priečky Dorsis Digero: svetelné rozhranie pre moderné interiéry

Spojenie moderného dizajnu, funkčnosti a svetla do harmonického architektonického prvku.

Význam prirodzeného svetla pre moderné a flexibilné pracovné prostredie

Kancelárska budova Baumit v slovinskom Trzine prešla premenou na moderné a udržateľné pracovisko. Architekti kládli dôraz...

Konferencia Xella Dialóg predstaví novinky a trendy v stavebníctve

Mottom šiesteho ročníku on-line konferencie odborníkov Xella Dialóg je Efektívny návrh budov 2025+: zmeny a riešenia

Konverzia barokovej sýpky, Velké Pavlovice

Prerod technickej pamiatky na štvorhviezdičkový hotel.
Diela
Red 406.02.2020
19910+44
Konverzia barokovej sýpky, Velké Pavlovice
Autori: Ing. arch. Zdeněk Eichler, Ing. arch. Eva EichlerováSpolupráca: Ing. arch. Martina Matušková, Ing. arch. Přemysl ValovýInvestor: S.M.K., a.s.Návrh: 2016 - 2016Realizácia: 2017 - 2018Adresa: Dlouhá 1177/69, Velké Pavlovice, Česká republikaPublikované: 6. február 2020

Malé juhomoravské mesto, ktoré je známe najmä kvôli vinohradníckej tradícii, pestovaniu marhúľ, či ľudovej  kultúre, ožíva najmä v letných mesiacoch. Práve rozvoj turizmu bol potrebným impulzom, ktorý prispel k záchrane technickej pamiatky a nastavil model udržateľnej prevádzky. Zmena funkcie objektu si vyžiadala viacero zásadných zmien, napriek tomu však zostávajú pôvodná forma a detaily jasne čitateľné. Prispelo k tomu najmä odčlenenie technického zázemia stavby do samostatného, nízkeho objektu, na ktorého streche je vysadený marhuľový sad.

Stručná história objektu

Monumentálna baroková sýpka v centre juhomoravskej obce Velké Pavlovice bola postavená na konci 18. storočia, za vlády cisára Jozefa II., kedy patrila k miestnemu veľkostatku. Slúžila na zhromažďovanie spoločných zásob obilia pre roky neúrody. V neskorších rokoch sa pre stavbu takejto mierky len ťažko hľadalo využitie. Chátranie významnej technickej pamiatky urýchlil požiar koncom 90. rokov minulého storočia.

Foto: KIVA - Vladimír Novotný

 

Budova je štvorpodlažná, prízemie je zaklenuté nízkou krížovou klenbou v dvojtrakte. Poschodia majú drevené trámové stropy, ktoré na úrovni druhého podlažia spočívajú na kamenných a murovaných stĺpoch. Na treťom podlaží stropy vynášajú strop mohutné vyrezávané stĺpy z dreva. Štvrté podlažie je podkrovné. Priestorový koncept bol pri rekonštrukcií zachovaný, otvorený trakt je rozdelený novými, vloženými konštrukciami.

Foto: KIVA - Vladimír Novotný

Súčasná spoločenská funkcia hotela s reštauráciou a konferenčnou sálou je adekvátna rozmerom a polohe stavby, preto kladie na objekt nové technologické nároky.

Z dôvodu zachovania autenticity historickej stavby a minimálnych zásahov do pôvodných konštrukcií navrhli architekti samostatný objekt s technickým zázemím, ktorý je zapustený do terénu.

Vegetačná strecha nového objektu je využitá ako marhuľový sad. Areál je zo strany exteriéru vymedzený upravenými vonkajšími plochami s vysadenými platanmi, nízkou zeleňou a novou fontánou.

Foto: KIVA - Vladimír Novotný
Foto: KIVA - Vladimír Novotný

Zachované pôvodné stavebné prvky (kamenné ostenia okien, kamenné a drevené stĺpy, kovaná brána, drevené schodisko, spracovanie omietok, či veľkoplošná kamenná dlažba...) vykazujú značnú remeselnú kvalitu. "Výtvarný koncept interiéru stačilo jen vnímat a respektovat. Rozhodli jsme se novými prvky a povrchy nekonkurovat stávajícím, ale podpořit jejich vyznění současnými stavebními a technickými možnostmi," vysvetľujú architekti.

Foto: KIVA - Vladimír Novotný
Foto: KIVA - Vladimír Novotný
Foto: KIVA - Vladimír Novotný
Situácia
Situáciaautor: EA architekti

Prízemie budovy je v čo najväčšej miere otvorené, aby vynikla zrejmá veľkorysosť zaklenutého priestoru. Nachádza sa tu vstupná hala, reštaurácia so zázemím, dve konferenčné sály a potrebné zázemie. "Prosklené stěny s kovanými rámy a vestavba krbu, jež oddělují jednotlivé provozy, osvětlení, objekt recepce a baru, mobiliář, to vše je podřízeno pokračujícímu prostoru," dopĺňajú autori.

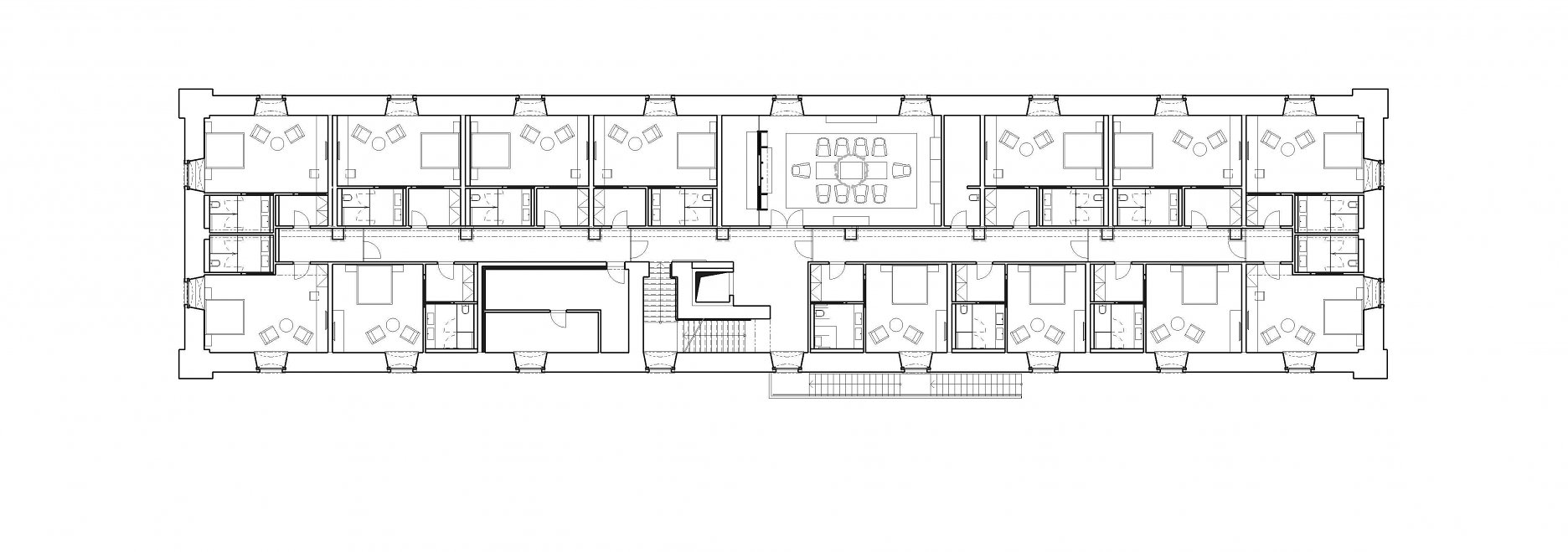
Pôdorys 1.NP
Pôdorys 1.NPautor: EA architekti
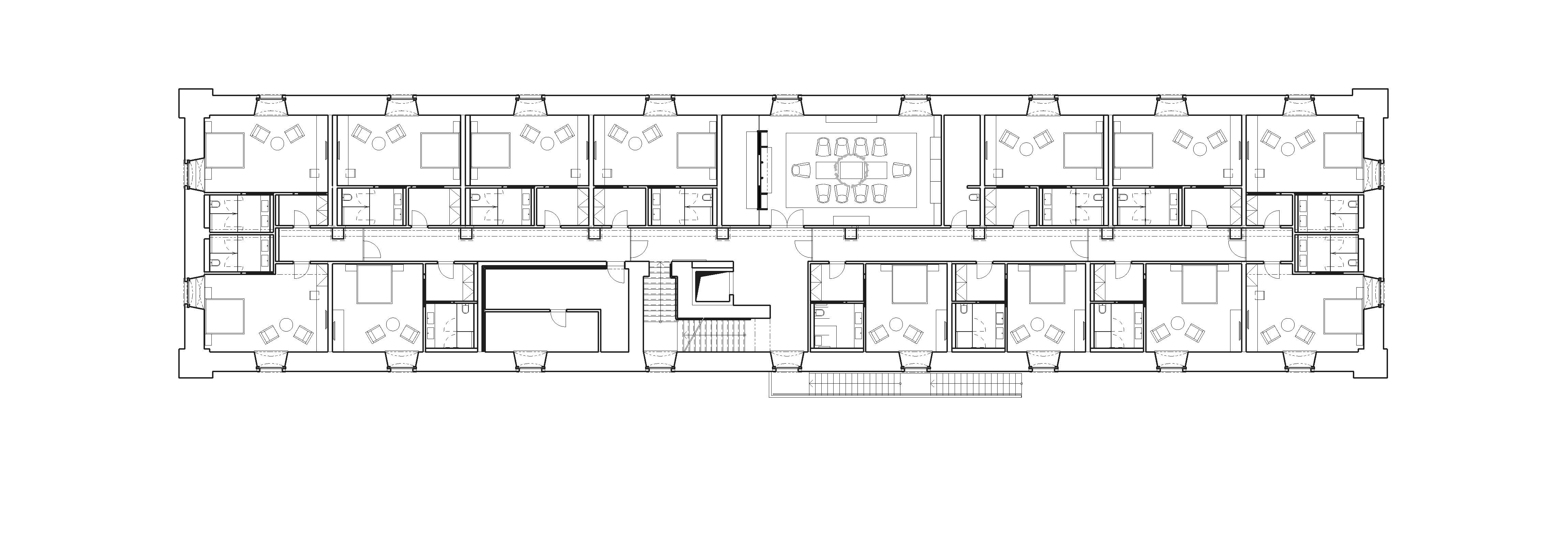
Pôdorys 2.NP
Pôdorys 2.NPautor: EA architekti
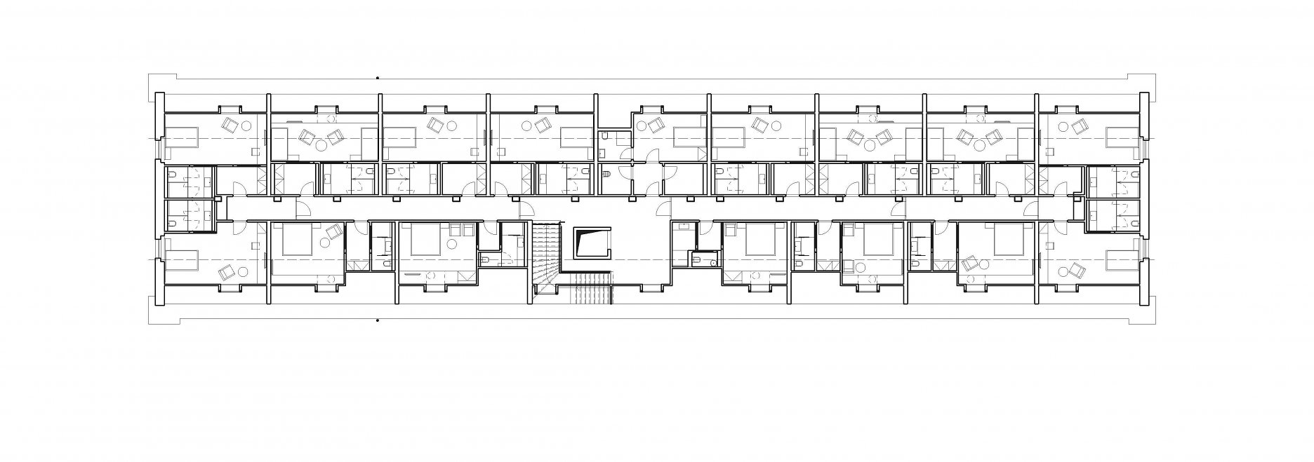
Pôdorys 3.NP
Pôdorys 3.NPautor: EA architekti
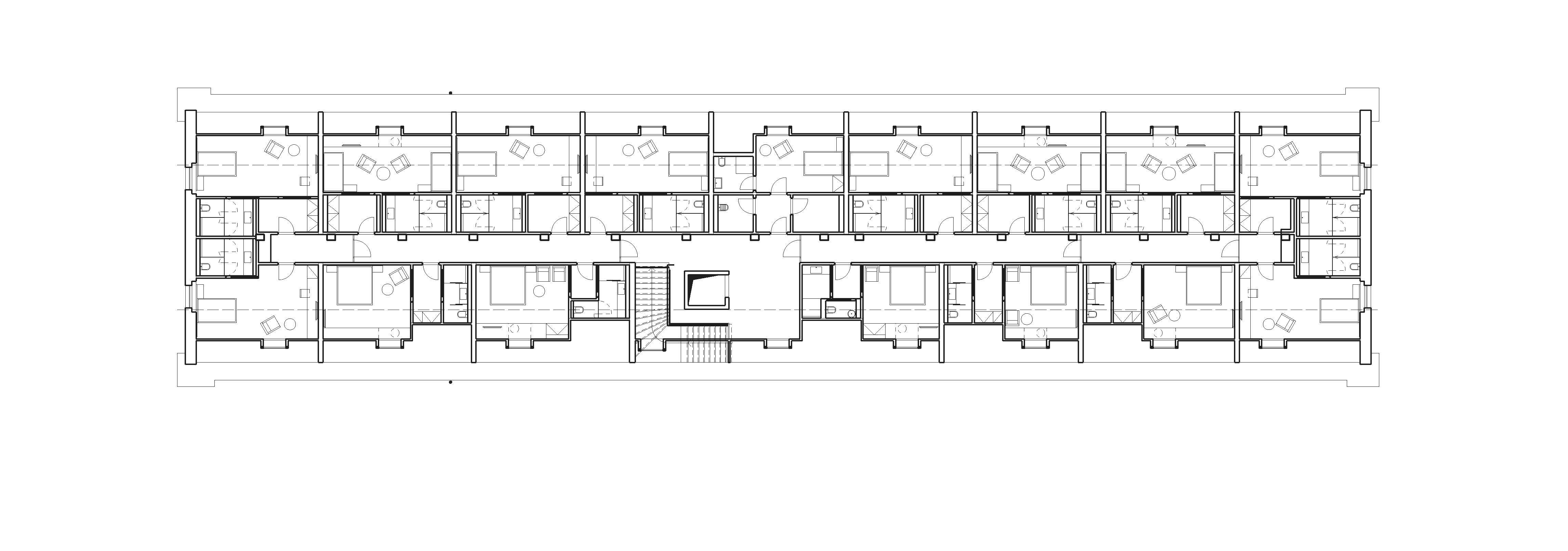
Pôdorys 4.NP
Pôdorys 4.NPautor: EA architekti
Rez priečny
Rez priečnyautor: EA architekti
Pohľad južný
Pohľad južnýautor: EA architekti
Pohľad severný
Pohľad severnýautor: EA architekti
Pohľad východný
Pohľad východnýautor: EA architekti
Pohľad západný
Pohľad západnýautor: EA architekti
Foto: KIVA - Vladimír Novotný
Foto: KIVA - Vladimír Novotný
Foto: KIVA - Vladimír Novotný
Foto: KIVA - Vladimír Novotný
Foto: KIVA - Vladimír Novotný

Na ďalších poschodiach je štyridsaťdva hotelových izieb rôznych kategórií. Skladbu dopĺňajú štyri apartmány, klubový salónik a kancelária správy prevádzky. Priestranné hotelové izby majú drevené podlahy, robustné drevené dvere a masívny vstavaný nábytok. Rozmer okenných výplní umožnil zachovať pôvodné kamenné ostenia. "Jsou však zvětšena proskleným parapetem ve venkovním líci stěny. Z interiéru tak vzniká dojem arkýře, vně sklo se sítotiskem splývá s fasádou. Koupelny jsou ve světlém nebo tmavém velkoplošném obkladu," dodávajú architekti.

Mesto sa nachádza v aktívnej folklórnej oblasti, stále v nej žijú remeselníci a výrobcovia krojov používajúci tradičné postupy. Batikované modré obrazy majú voľnú predlohu v zástere, ktorá je súčasťou ženského kroja. Tradičné výšivky a potlače na textile budú postupne dopĺňať interiér o bohatstvo lokálnej kultúry.

Foto: KIVA - Vladimír Novotný
Foto: KIVA - Vladimír Novotný
Foto: KIVA - Vladimír Novotný
Foto: KIVA - Vladimír Novotný
Foto: KIVA - Vladimír Novotný

Schodiská, chodby, dvere, prevedenie výťahu a posuvných požiarnych dverí svojím charakterom a atmosférou odkazujú na pôvodnú funkciu stavby. Väčšina prvkov bola navrhnutá a vyrobená ako atyp firmami v okolí.

Foto: KIVA - Vladimír Novotný
Foto: KIVA - Vladimír Novotný
Foto: KIVA - Vladimír Novotný
Foto: KIVA - Vladimír Novotný

Podklady: EA architekti

Poloha diela

Ing. arch. Zdeněk Eichler
Ing. arch. Eva Eichlerová
Vložené
14. jún 2019
0
1991
Hlavný obsahHlavný obsah
Čakajte prosím