Advertorial

Pozvánka na 2. ročník stavebného veľtrhu BigMarket na Slovensku

Na podujatí sa predstaví až 37 vystavovateľov - popredných dodávateľov stavebných materiálov a inovácií s prezentáciou...

Hotel Hirschen Spa House, Rakúsko

Novotvar v prostredí alpskej obce.

Vytvorte si kúpeľňu snov: dizajnové riešenie od značky hansgrohe

Hansgrohe - prémiová značka kúpeľňových riešení, ponúka nadčasový dizajn, technickú precíznosť a udržateľné inovácie...

Okná Internorm za minuloročné ceny + hliníkový kryt zdarma!

Využite špeciálnu akciu Internorm: okná za minuloročné ceny a hliníkový kryt úplne zadarmo. Ponuka je časovo obmedzená!

Moderné plynové technológie: Efektivita a inovácie pre 21. storočie

Sumarizácia najdôležitejších inovácií, ktoré redefinujúcich využitie tohto energetického zdroja.

Utesňovanie spodných stavieb pomocou hydro-aktívnej fólie AMPHIBIA.

AMPHIBIA 3000 GRIP 1.3 od spoločnosti ATRO predstavuje modernú hydroizolačnú technológiu, ktorá spája vysokú odolnosť,...

Dekarbonizácia individuálneho vykurovania domácností – Green Deal evolučne a nie revolučne

Ambiciózne plány EK narazili na ekonomické možnosti domácností v jednotlivých členských štátoch –...

Minimalistické dvere IDEA – technická precíznosť a čistota prevedenia

IDEA DOOR od spoločnosti JAP prináša do interiéru čistý minimalistický vzhľad vďaka bezrámovému riešeniu a precíznej...

Dom s výhľadom na údolie, Dlouhý Most (ČR)

Kontinuita riešenia od vonkajšieho obkladu až po kovania a kľučky.

Schell Vitus – osvedčené riešenie pre sprchy a umývadlá vo verejnom sektore s viac ako desaťročnou tradíciou

Nástenné nadomietkové armatúry Vitus sú mimoriadne vhodné pre rýchlu a efektívnu...

Kompozitné okná predstavujú súčasnosť a budúcnosť

Okenné profily z kompozitného materiálu RAU-FIPRO X od spoločnosti Rehau sú v porovnaní s tradičnými plastovými profilmi mnohonásobne...

Myotis - stoly 2025

Najnovší sortiment stolov pre zariadenie interiérov...

Priemyselné sklenené priečky Dorsis Digero: svetelné rozhranie pre moderné interiéry

Spojenie moderného dizajnu, funkčnosti a svetla do harmonického architektonického prvku.

Význam prirodzeného svetla pre moderné a flexibilné pracovné prostredie

Kancelárska budova Baumit v slovinskom Trzine prešla premenou na moderné a udržateľné pracovisko. Architekti kládli dôraz...

Konferencia Xella Dialóg predstaví novinky a trendy v stavebníctve

Mottom šiesteho ročníku on-line konferencie odborníkov Xella Dialóg je Efektívny návrh budov 2025+: zmeny a riešenia

Dom v ruine, Jevíčko (ČR)

Nové a staré. Originálne aj pôvodné.
Diela
Red 314.08.2020
51790+75
Dom v ruine, Jevíčko (ČR)
Autori: Ing. arch. Jan Hora, MgA. Barbora Hora, Ing. arch. Jan VeisserSpolupráca: Ing. arch. Tomáš Pospíšil, Ing. Štěpánka Černá (Krajinné úpravy)Zastavaná plocha: 249,7 m2Podlažná plocha: 248,4 m2 Návrh: 2016 - 2018Realizácia: 2018 - 2020Adresa: Zadní Arnoštov 73, Jevíčko, Česká republikaPublikované: 14. august 2020

Adaptácie starších objektov často umožňujú využiť nenapodobiteľnú priestorovú kvalitu. V novostavbe, ktorá vzniká vo svetle dnešných štandardov a kritérií je otvorený obytný priestor so svetlou výškou sedem metrov len ťažko odôvodniteľný. Znojemský ateliér ORA, ktorý má na konte viaceré zaujímavé prestavby a konverzie (za spomenutie stojí napríklad mikulovský Štajnhaus), využil murovanú obálku bývalej sýpky. Nový, otvorený obytný priestor vymedzujú ľahké vstavané konštrukcie. Hodnotná substancia stavby zo 17. storočia zostáva v maximálnej miere zachovaná, pričom kvalita vnútorného prostredia zodpovedá novostavbe.

 

Viac slovami autorov:

"Projekt je manifestem, jak je možné zacházet se starými domy. Není nezbytně nutné přijít o autenticitu stáří, není nezbytně nutné demolovat, ale ani rekonstruovat dogmaticky památkářsky. Zároveň je možné stavět ekonomicky za použití současných materiálů a dosahovat požadovaných parametrů. Nová struktura se jeví vůči staré lehce posunutá. Okna nesedí úplně přesně na otvory ve staré zdi a místy se stává, že stará zeď je díky tomu přítomná i v interiéru. Dochází k prolínání obou světů."

Foto: BoysPlayNice

Úvodní dilema

Byli jsme osloveni k projektu rekonstrukce fascinujícího objektu. Našli jsme znásilněný dům, bývalou usedlost, která byla za minulého režimu přestavěna na sýpku. Domu byly vyrabovány jeho vnitřnosti a přeorganizovány pro jiný účel. Po prvním ohledání jsme četli spáry, niky a výstupky a objevovali původní formy. 

I takhle osekaný dům, dá se říci abstrahovaný, ale neztratil nic ze své velkoleposti. Právě naopak. Způsob, jak je situovaný, jak se vzpíná k nebi a jak jeho syrová hmota odolává času, se ukázaly jako největší kvality. Byla to ruina ohlodaná až na kost. Z původního domu zbyla jen cihelná obálka se střechou. Společně se stavebníky jsme si kladli otázku, zda se máme kam vracet. Při jakékoliv snaze o tradiční opravu bychom o tenhle charakter ruiny přišli. Relativně brzy jsme proto zavrhli spekulativní rekonstrukci původního stavu, i jakékoliv další imitace. Navrhli jsme zafixovat stávající stav romantické ruiny a vstoupit do domu nově. 

Dům do domu, dům v ruině. 

Foto: BoysPlayNice
Foto: BoysPlayNice
Foto: BoysPlayNice
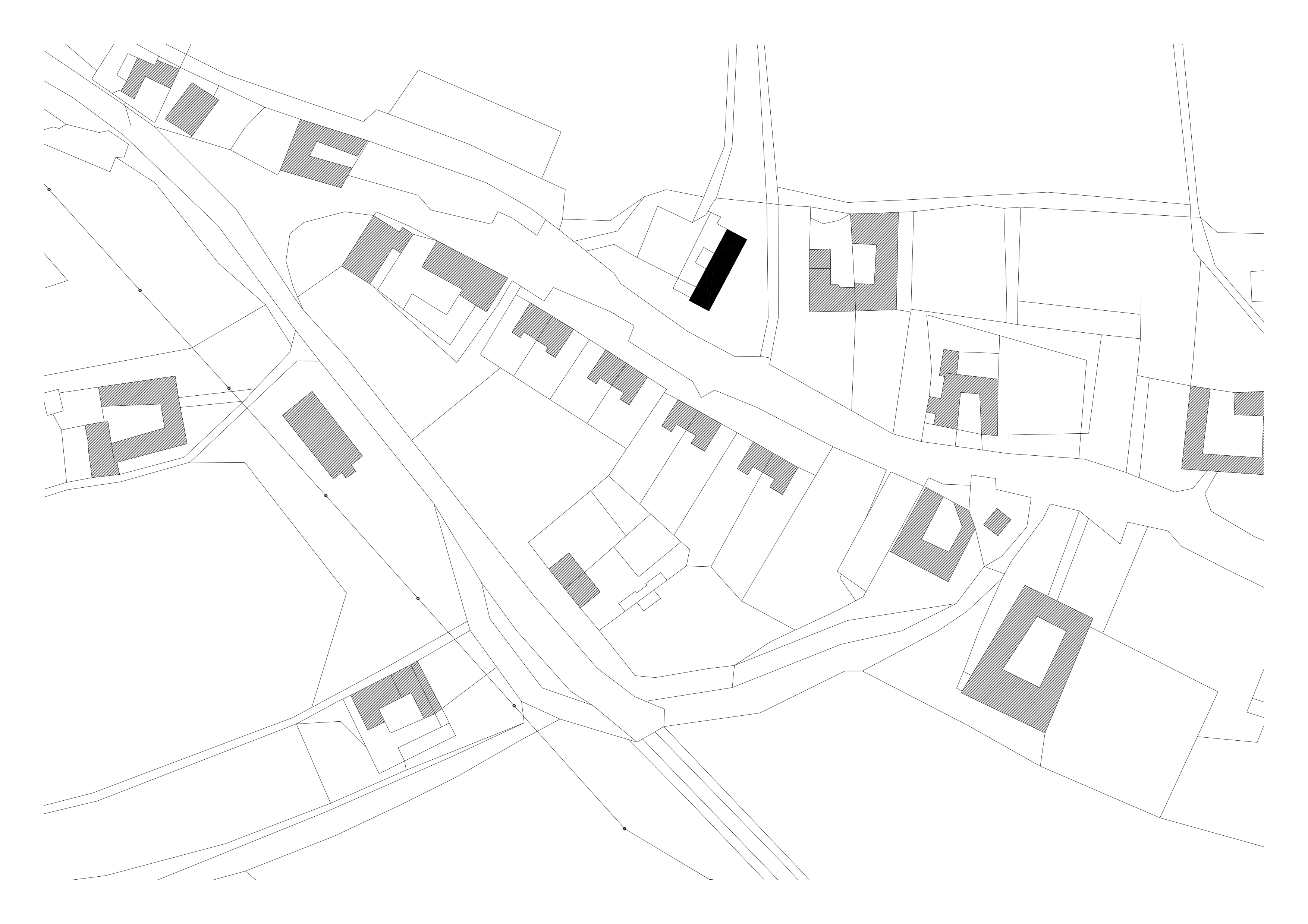
Širšie vzťahy
Širšie vzťahyAutor: ORA (originální regionální architektura)
Situácia
SituáciaAutor: ORA (originální regionální architektura)
Axonometria
AxonometriaAutor: ORA (originální regionální architektura)

Odebírání

Navrhli jsme dům znovu vyvrhnout a místo tří pater mu vrátit patra dvě a s nimi i původní měřítko. 

S tím souvisí i návrat k původnímu dělení fasády. Dle potřeb dispozice jsme ještě otevřeli další velké otvory bez sentimentu tam, kde bylo třeba. 

Přidávání – recyklace

Do stávající kulisy ruiny jsme vystavěli nový izolovaný dům, který díky tomu může splňovat všechny současné energetické standardy. Zdravé druhotně použité dřevěné konstrukce jsme použili zase znova jako konstrukční prvky stropů a výměn v krovu. Většina materiálu na místě zůstala, jen se přeskládala. 

Celek

Dům v sobě spojuje nízké i vysoké. My jsme sem vložili další současnou vrstvu, která se svým účelem liší od všech předešlých. Mezi novou a původní strukturou je udržovaná větraná mezera, konstrukce se nedotýkají. Nová struktura je místy vůči staré lehce posunutá. Okna nesedí úplně přesně na otvory ve staré zdi a stává se, že stará zeď je díky tomu přítomná i v interiéru. Dochází k vizuálnímu prolínání obou světů. Novostavba se skrze otvory ve staré zdi dere ven, naopak stará zeď skrze nová okna vstupuje dovnitř. 

Ekologie

Projekt je naším manifestem, jak je možné zacházet se starými domy. Není nezbytně nutné přijít o autenticitu stáří, není nezbytně nutné demolovat, ale ani rekonstruovat dogmaticky památkářsky. Zároveň je i v takovém případě možné stavět ekonomicky za použití současných materiálů a dosahovat požadovaných parametrů. 

Diagram
DiagramAutor: ORA (originální regionální architektura)
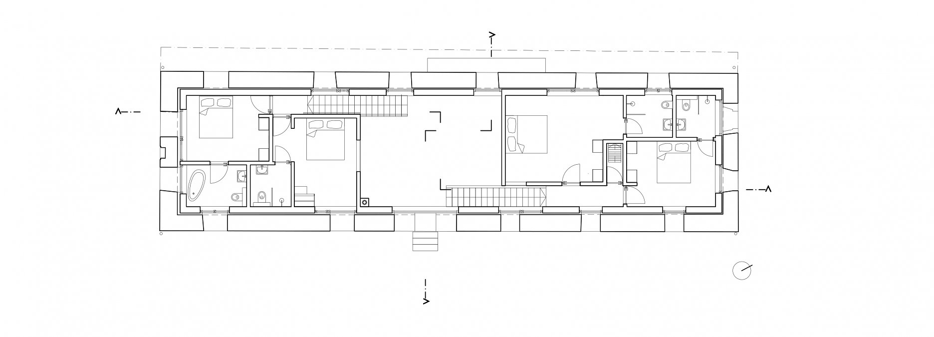
Pôdorys suterénu
Pôdorys suterénuAutor: ORA (originální regionální architektura)
Pôdorys prízemia
Pôdorys prízemiaAutor: ORA (originální regionální architektura)
Pôdorys poschodia
Pôdorys poschodiaAutor: ORA (originální regionální architektura)
Pozdĺžny rez
Pozdĺžny rezAutor: ORA (originální regionální architektura)
Priečny rez
Priečny rezAutor: ORA (originální regionální architektura)
Východný pohľad
Východný pohľadAutor: ORA (originální regionální architektura)
Západný pohľad
Západný pohľadAutor: ORA (originální regionální architektura)
Severný a južný pohľad
Severný a južný pohľadAutor: ORA (originální regionální architektura)
Foto: BoysPlayNice
Foto: BoysPlayNice
Foto: BoysPlayNice
Foto: BoysPlayNice
Foto: BoysPlayNice
Foto: BoysPlayNice
Foto: BoysPlayNice
Foto: BoysPlayNice
Foto: BoysPlayNice
Foto: BoysPlayNice
Foto: BoysPlayNice

 

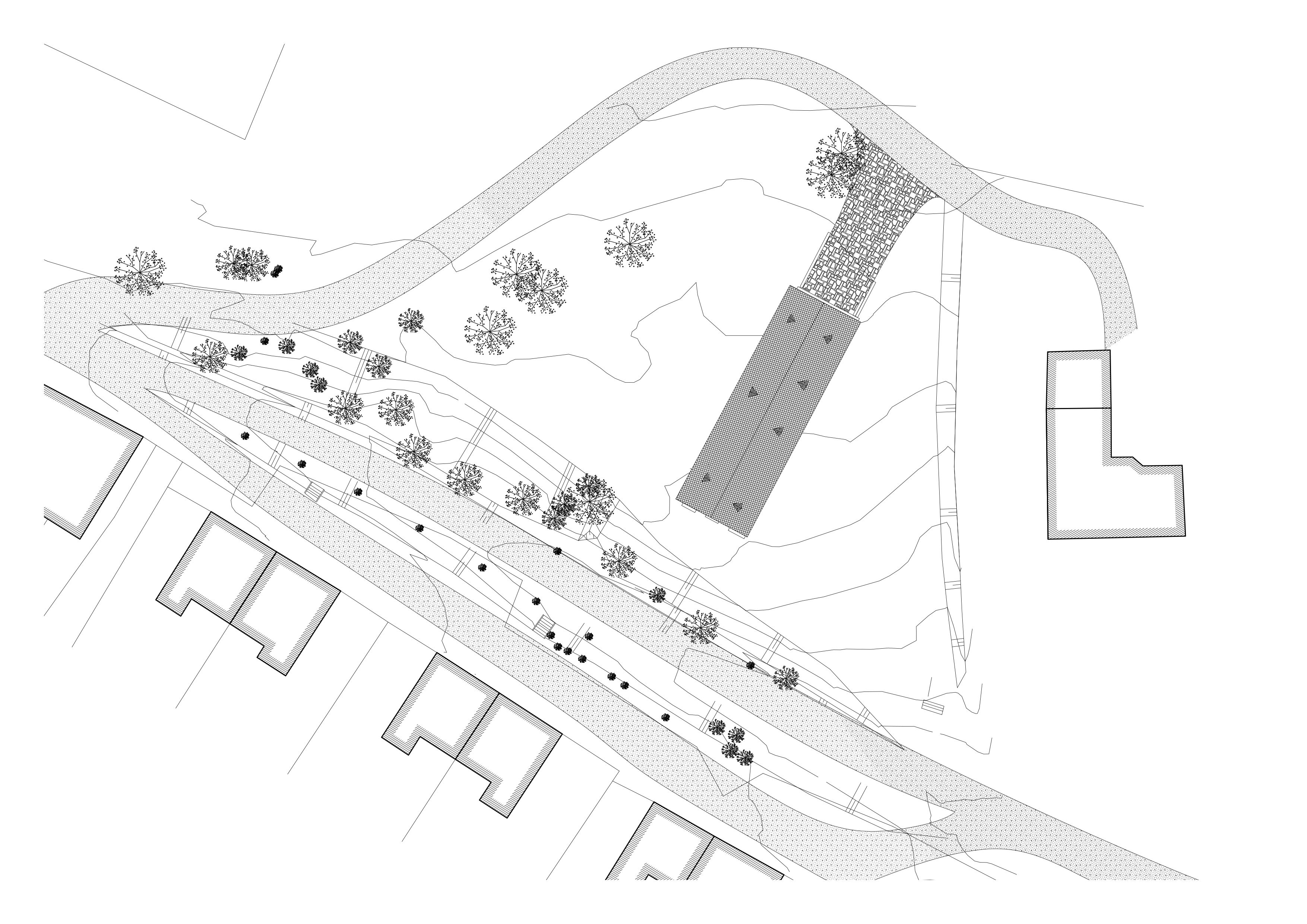
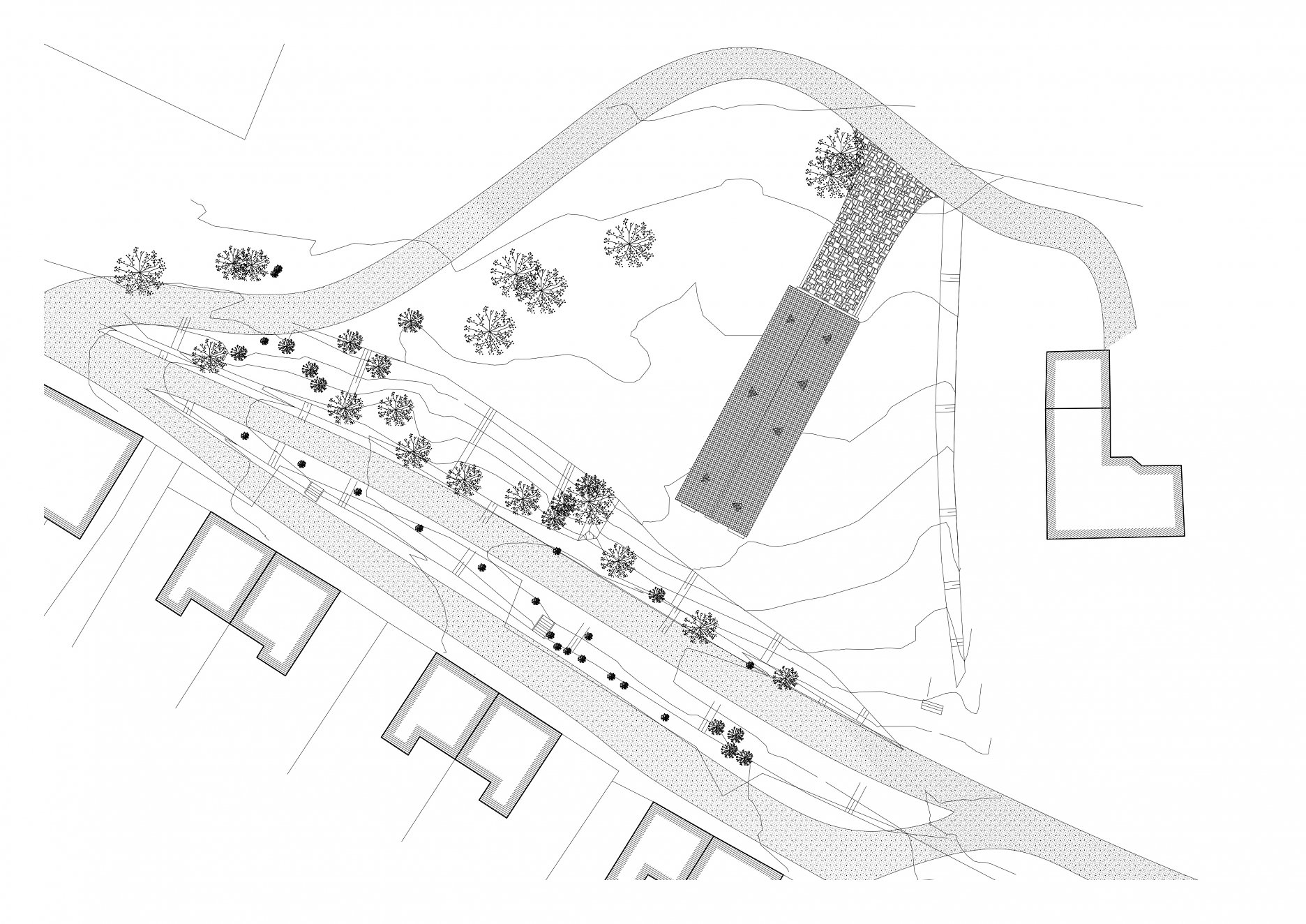
Zahrada

Stejně jako dům respektuje svou historii od doby svého vzniku, i zahrada byla řešena tak, aby se stala přirozenou součástí krajiny. Neexistují zde žádné fyzické hranice. Hranici naznačují pouze fragmenty suchých zídek a cortenová brána. Zahrada navazuje na své okolí. Sad, luční trávník a hlohy jsou jen „vypůjčeny“ z bezprostředního okolí. Před domem vzniká otevřená plocha trávníku, ale to, co spojuje dům, jeho výhled a krajinu, je zahrada.

Foto: BoysPlayNice

Život

Hosté Sýpky Arnoštov se setkávají ve velkorysém obytném prostoru převýšeném přes dvě patra s kachlovými kamny a kuchyní. Nechybí zde vymoženosti moderního bydlení. Schodiště ve velkorysé hale vedou hosty do jednotlivých pokojů se sociálním zařízením. Tam si mohou vychutnat klid a vyhlížet do krajiny skrze masivní staré zdi, které rámují výhledy; nebo se odevzdat tichu, které zde vládne. Kulatý stůl v hale komunikuje s masivním dubovým stolem venku, kam se lze přesunout, když to počasí dovolí a být tak okolní krajině ještě blíž. A znova začít objevovat hvězdy na noční obloze.

Foto: BoysPlayNice
Foto: BoysPlayNice
Foto: BoysPlayNice
Foto: BoysPlayNice

Poloha diela

Ing. arch. Jan Hora
MgA. Barbora Hora
Ing. arch. Jan Veisser

Súvisiace články

Vložené
14. august 2020
0
5179
Hlavný obsahHlavný obsah
Čakajte prosím