Advertorial

Pozvánka na 2. ročník stavebného veľtrhu BigMarket na Slovensku

Na podujatí sa predstaví až 37 vystavovateľov - popredných dodávateľov stavebných materiálov a inovácií s prezentáciou...

Hotel Hirschen Spa House, Rakúsko

Novotvar v prostredí alpskej obce.

Vytvorte si kúpeľňu snov: dizajnové riešenie od značky hansgrohe

Hansgrohe - prémiová značka kúpeľňových riešení, ponúka nadčasový dizajn, technickú precíznosť a udržateľné inovácie...

Okná Internorm za minuloročné ceny + hliníkový kryt zdarma!

Využite špeciálnu akciu Internorm: okná za minuloročné ceny a hliníkový kryt úplne zadarmo. Ponuka je časovo obmedzená!

Moderné plynové technológie: Efektivita a inovácie pre 21. storočie

Sumarizácia najdôležitejších inovácií, ktoré redefinujúcich využitie tohto energetického zdroja.

Utesňovanie spodných stavieb pomocou hydro-aktívnej fólie AMPHIBIA.

AMPHIBIA 3000 GRIP 1.3 od spoločnosti ATRO predstavuje modernú hydroizolačnú technológiu, ktorá spája vysokú odolnosť,...

Dekarbonizácia individuálneho vykurovania domácností – Green Deal evolučne a nie revolučne

Ambiciózne plány EK narazili na ekonomické možnosti domácností v jednotlivých členských štátoch –...

Minimalistické dvere IDEA – technická precíznosť a čistota prevedenia

IDEA DOOR od spoločnosti JAP prináša do interiéru čistý minimalistický vzhľad vďaka bezrámovému riešeniu a precíznej...

Dom s výhľadom na údolie, Dlouhý Most (ČR)

Kontinuita riešenia od vonkajšieho obkladu až po kovania a kľučky.

Schell Vitus – osvedčené riešenie pre sprchy a umývadlá vo verejnom sektore s viac ako desaťročnou tradíciou

Nástenné nadomietkové armatúry Vitus sú mimoriadne vhodné pre rýchlu a efektívnu...

Kompozitné okná predstavujú súčasnosť a budúcnosť

Okenné profily z kompozitného materiálu RAU-FIPRO X od spoločnosti Rehau sú v porovnaní s tradičnými plastovými profilmi mnohonásobne...

Myotis - stoly 2025

Najnovší sortiment stolov pre zariadenie interiérov...

Priemyselné sklenené priečky Dorsis Digero: svetelné rozhranie pre moderné interiéry

Spojenie moderného dizajnu, funkčnosti a svetla do harmonického architektonického prvku.

Význam prirodzeného svetla pre moderné a flexibilné pracovné prostredie

Kancelárska budova Baumit v slovinskom Trzine prešla premenou na moderné a udržateľné pracovisko. Architekti kládli dôraz...

Konferencia Xella Dialóg predstaví novinky a trendy v stavebníctve

Mottom šiesteho ročníku on-line konferencie odborníkov Xella Dialóg je Efektívny návrh budov 2025+: zmeny a riešenia

Vostavba bytu do historickej elektrárne (ČR)

Loftové bývanie na dedine.
Diela
Red 430.03.2018
12000+56
Vostavba bytu do historickej elektrárne (ČR)
Autori: MgA. Svatopluk SládečekSpolupráca: Ing. arch. Lucie Pešáková Surá, Ing. Pavel VeleckýInvestor: Tomáš ReichelZastavaná plocha: 230 m²Obostavaný objem: 1060 m³Adresa: Osada Perná 290, Lysice, Česká republikaPublikované: 30. marec 2018

Nedávno sme písali o prestavbe starých tehlových hál v blízkosti Prahy, pred časom o Elektrárni v Piešťanoch. Tentokrát sa zameriame na citlivú konverziu objektu bývalej dieslovej elektrárne. Na pohľad podobná téma, avšak celkom iná mierka a účel. Elegantný objekt postavený začiatkom 20. storočia dnes slúži ako plnohodnotné rodinné bývanie. Všetky menované prípady spája silná osobná angažovanosť architektov v procese záchrany historického dedičstva.

Foto: Studio TOAST

Prekvapivý je aj kontext. Technická stavba sa nenachádza v priemyselnom areáli, ale stojí uprostred záhrad, medzi rozptýlenou zástavbou. Pôvodný objekt je veľmi zachovalý, snáď i vďaka tomu, že elektráreň bola v prevádzke len veľmi krátko. Elektrifikácia oblasti prišla rýchlejšie, než vtedajší stavitelia, predkovia dnešného majiteľa, očakávali.

Foto: Studio TOAST

Osada Perná sa nachádza v pôvabnej doline pri ceste Brno-Svitavy. Na samote, medzi hlavnou cestou a skupinou niekoľkých domov, ktorých súčasťou je aj bývalá elektráreň, sa rozprestiera ríbezľový sad, asi 450 metrov severozápadne od objektu je rybník.

Foto: Studio TOAST
Foto: Studio TOAST
Foto: Studio TOAST
Foto: Studio TOAST

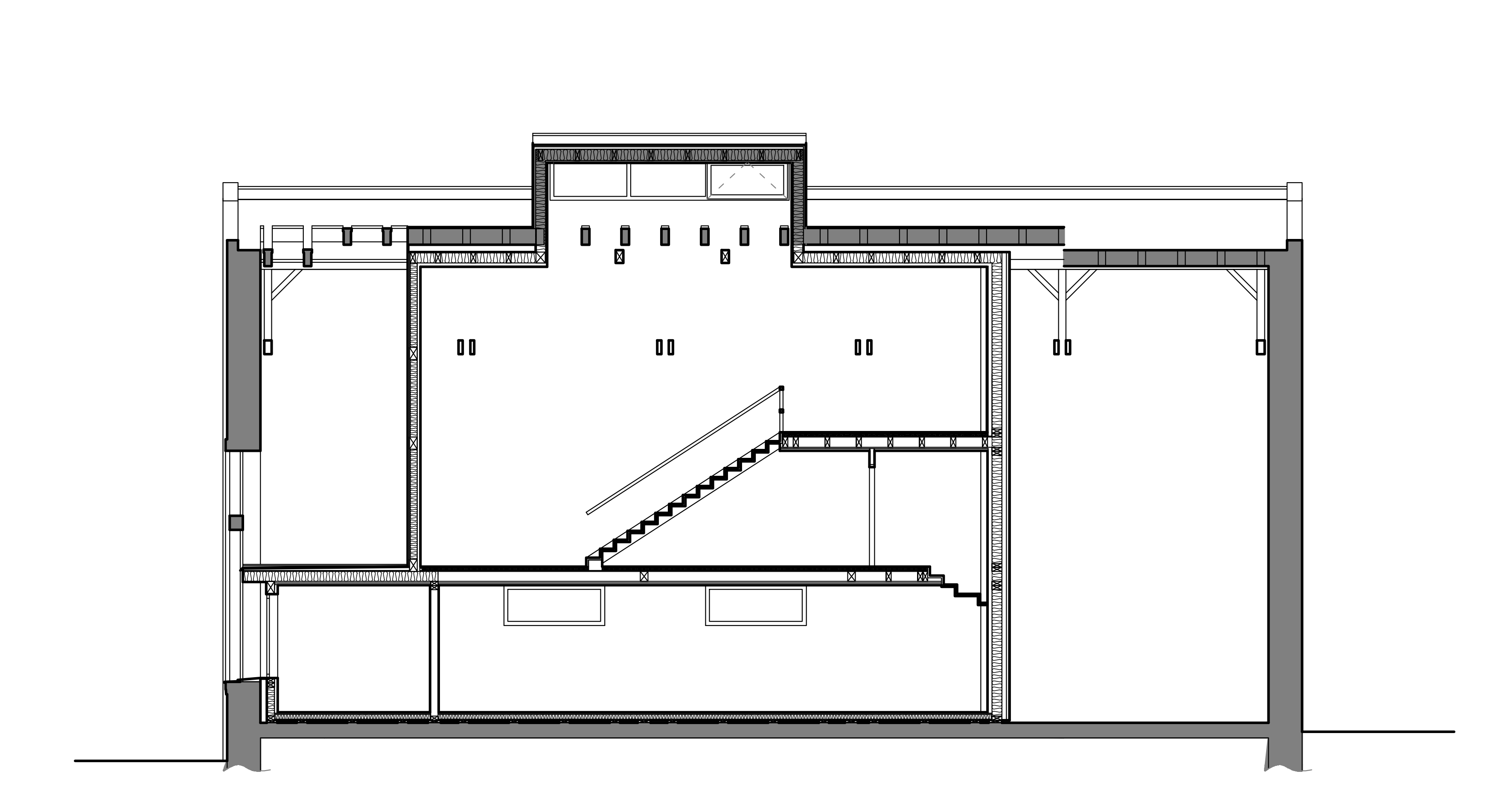
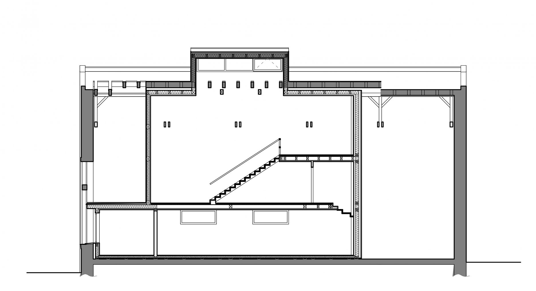
Vostavba pripomína skladačku - architekti vložili, respektíve vbudovali do historického objektu novú drevenú konštrukciu. Vložený objem obytnej časti však nezaberá celý objem elektrárenskej haly. Časť vnútorného priestoru s pôdorysom 20,2 x 11,7 m, ktorý je prestrešený sedlovou strechou ostala otvorená, čo umožňuje nerušené vnímanie pôvodnej proporcie stavby. Tento "medzipriestor", využívaný ako sklad je prístupný cez pôvodný vchod.

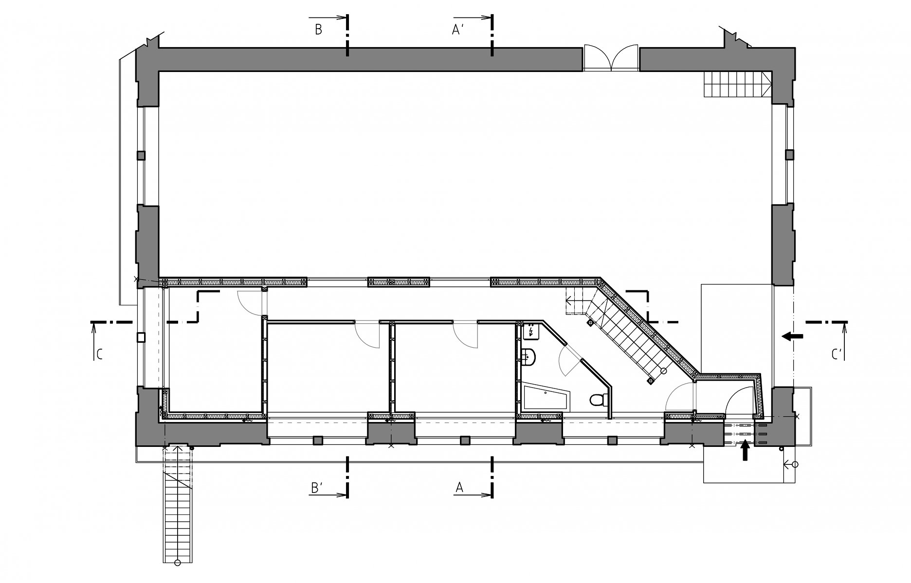
Budova je kratšou "vstupnou" fasádou orientovaná smerom k príjazdovej komunikácii. Dlhšou fasádou nadväzuje na obytné krídlo. Hlavný pobytový priestor záhrady je na opačnej - južnej strane pozemku. Do bytu sa vstupuje samostatne, zo severozápadu.

Schéma
SchémaNew Work

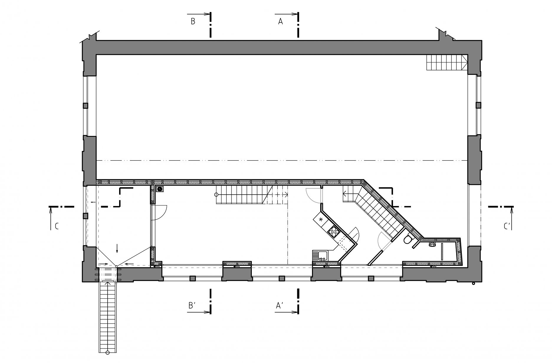
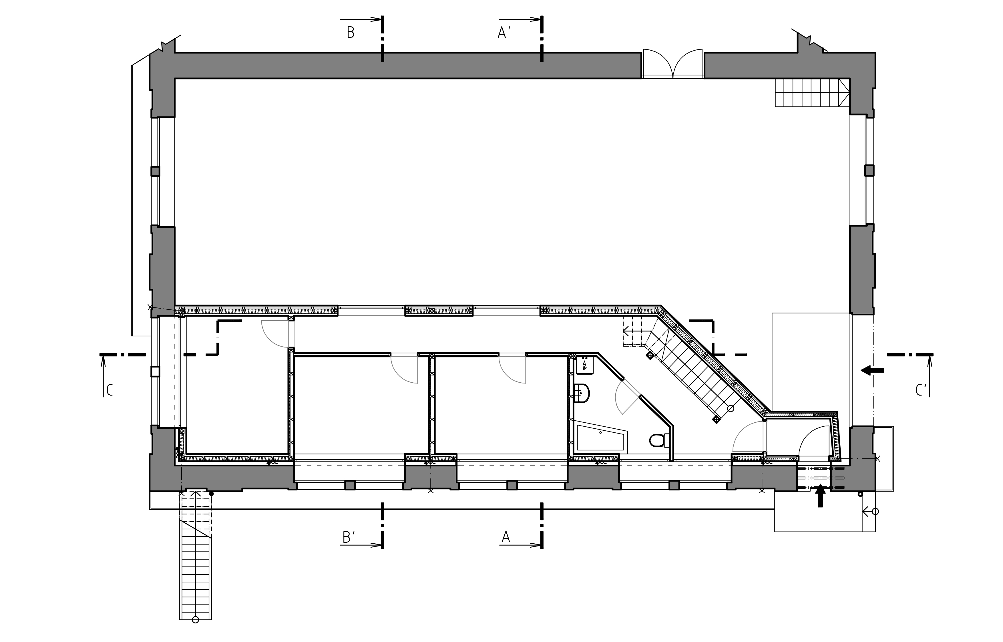
Bytová jednotka je dvojpodlažná, s podkrovnou pracovňou. Prístup do bytu je riešený samostatne z terénu zo severnej strany.  Na prízemí sa nachádzajú izby detí, spálňa rodičov a kúpeľňa. Na poschodí je WC so sprchou a otvorená obývačka nadväzujúca na vonkajšiu terasu, z ktorej zostupujú schody do záhrady. Nad časťou obytného priestoru sa nachádza pracovňa presvetlená dvoma strešnými oknami. Celý priestor je prisvetlený strešným svetlíkom, ktorý zachytáva južné svetlo. Všetky hlavné obytné priestory sú presvetlené pôvodnými veľkorysými okennými otvormi.

Pôdorys 1. NP
Pôdorys 1. NPNew Work
Pôdorys 2. NP
Pôdorys 2. NPNew Work
Priečny rez
Priečny rezNew Work
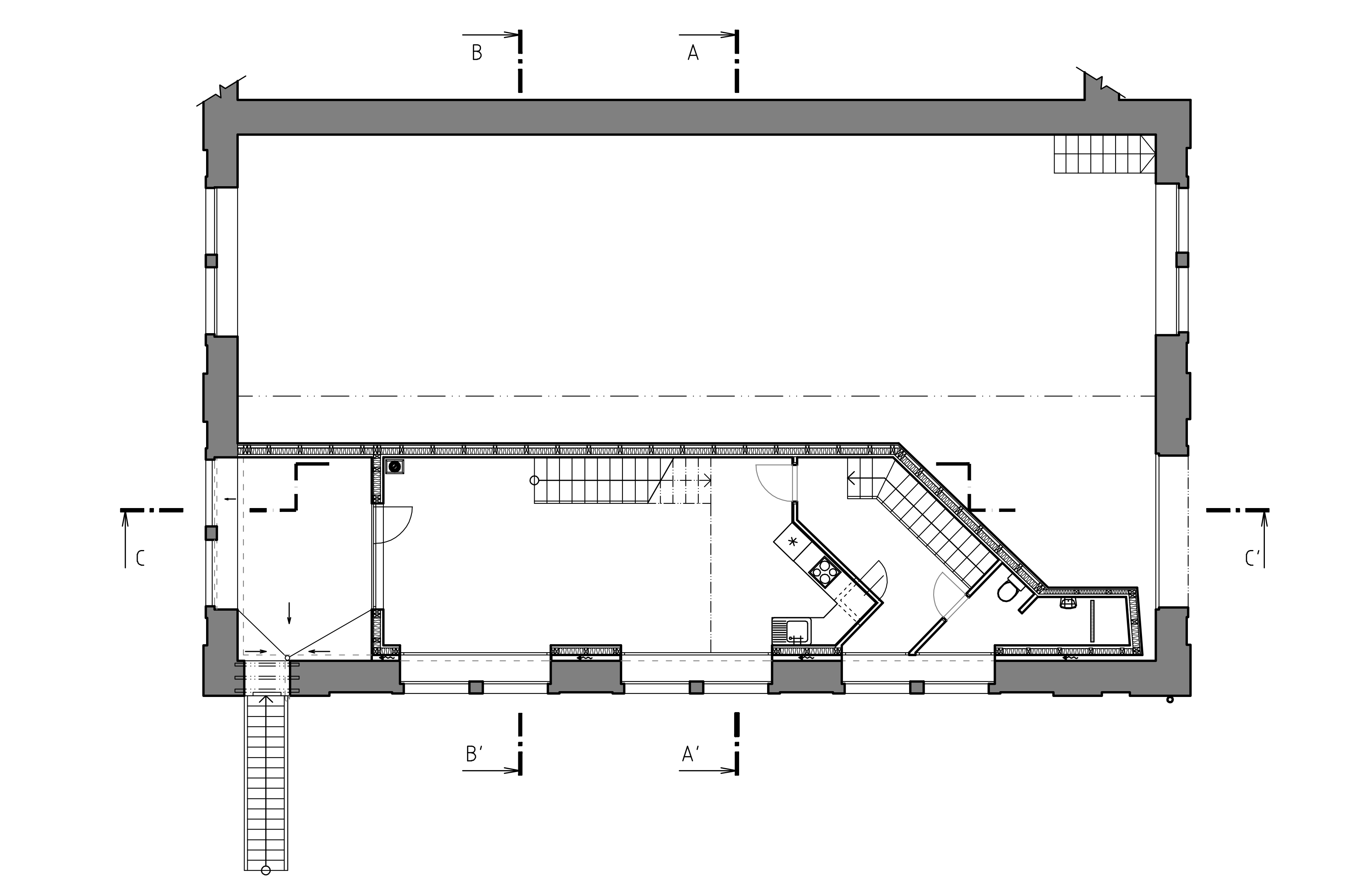
Pozdĺžny rez
Pozdĺžny rezNew Work

Architekti od začiatku pristupovali k pôvodnému objektu s maximálnym citom. Nová hrazdená drevostavba umožnila ponechať vzhľad objektu takmer nezmenený. Vnútorné povrchy sú hladké, biele, dôsledne odlíšené od hrubej materiality obálky.

Foto: Studio TOAST
Foto: Studio TOAST
Foto: Studio TOAST
Foto: Studio TOAST
Foto: Studio TOAST
Foto: Studio TOAST
Foto: Studio TOAST

Podklady: New Work

Poloha diela

MgA. Svatopluk Sládeček
Vložené
17. január 2018
0
1200
Hlavný obsahHlavný obsah
Čakajte prosím