Advertorial

Pozvánka na 2. ročník stavebného veľtrhu BigMarket na Slovensku

Na podujatí sa predstaví až 37 vystavovateľov - popredných dodávateľov stavebných materiálov a inovácií s prezentáciou...

Hotel Hirschen Spa House, Rakúsko

Novotvar v prostredí alpskej obce.

Vytvorte si kúpeľňu snov: dizajnové riešenie od značky hansgrohe

Hansgrohe - prémiová značka kúpeľňových riešení, ponúka nadčasový dizajn, technickú precíznosť a udržateľné inovácie...

Okná Internorm za minuloročné ceny + hliníkový kryt zdarma!

Využite špeciálnu akciu Internorm: okná za minuloročné ceny a hliníkový kryt úplne zadarmo. Ponuka je časovo obmedzená!

Moderné plynové technológie: Efektivita a inovácie pre 21. storočie

Sumarizácia najdôležitejších inovácií, ktoré redefinujúcich využitie tohto energetického zdroja.

Utesňovanie spodných stavieb pomocou hydro-aktívnej fólie AMPHIBIA.

AMPHIBIA 3000 GRIP 1.3 od spoločnosti ATRO predstavuje modernú hydroizolačnú technológiu, ktorá spája vysokú odolnosť,...

Dekarbonizácia individuálneho vykurovania domácností – Green Deal evolučne a nie revolučne

Ambiciózne plány EK narazili na ekonomické možnosti domácností v jednotlivých členských štátoch –...

Minimalistické dvere IDEA – technická precíznosť a čistota prevedenia

IDEA DOOR od spoločnosti JAP prináša do interiéru čistý minimalistický vzhľad vďaka bezrámovému riešeniu a precíznej...

Dom s výhľadom na údolie, Dlouhý Most (ČR)

Kontinuita riešenia od vonkajšieho obkladu až po kovania a kľučky.

Schell Vitus – osvedčené riešenie pre sprchy a umývadlá vo verejnom sektore s viac ako desaťročnou tradíciou

Nástenné nadomietkové armatúry Vitus sú mimoriadne vhodné pre rýchlu a efektívnu...

Kompozitné okná predstavujú súčasnosť a budúcnosť

Okenné profily z kompozitného materiálu RAU-FIPRO X od spoločnosti Rehau sú v porovnaní s tradičnými plastovými profilmi mnohonásobne...

Myotis - stoly 2025

Najnovší sortiment stolov pre zariadenie interiérov...

Priemyselné sklenené priečky Dorsis Digero: svetelné rozhranie pre moderné interiéry

Spojenie moderného dizajnu, funkčnosti a svetla do harmonického architektonického prvku.

Význam prirodzeného svetla pre moderné a flexibilné pracovné prostredie

Kancelárska budova Baumit v slovinskom Trzine prešla premenou na moderné a udržateľné pracovisko. Architekti kládli dôraz...

Konferencia Xella Dialóg predstaví novinky a trendy v stavebníctve

Mottom šiesteho ročníku on-line konferencie odborníkov Xella Dialóg je Efektívny návrh budov 2025+: zmeny a riešenia

Dom pri potoku, Dolní Kounice (ČR)

Malý dom v dvojtisícovom sídle neďaleko Brna.
Diela
Red 302.07.2022
17820+92
Dom pri potoku, Dolní Kounice (ČR)
Autori: Svatopluk Sládeček, Jaroslav Matoušek, Petra Bitaudeau VaškováSpolupráca: Františka PodzimkováInvestor: manželia SigmundovciZastavaná plocha: 61,5 m2Investičný náklad: 121 000 € (vrátane PD a asanácie pôvodného domu)Návrh: 2018 - 2018Realizácia: 2019 - 2019Adresa: Jiráskova 75, Dolní Kounice, Česká republikaPublikované: 2. júl 2022

Úsporné bývanie na hrane súvislej uličnej zástavby. Priestorové a materiálové riešenie umožnilo optimálne využite vstupných nákladov.

Novostavba dopĺňa súvislý pás radových domov v dvojtisícovom meste Dolní Kounice. Pozemok na Jiráskovej ulici z jednej strany ohraničuje vodný kanál, ktorý prerušuje zo západnej strany domu súvislý ráz zástavby. Na mieste novostavby pôvodne stál prízemný dom s klenutou pivnicou. Majitelia sa rozhodli vrchnú stavbu asanovať, zachovali však klenutú pivnicu, nad ktorou postavili nový dom.

Dom rešpektuje uličnú čiaru zástavby a pôvodného zbúraného objektu. Oproti nemu je však kratšia o 2,5 m (záhradnej časti až o 3,5 m).

Architektonické riešenie zohľadňuje charakter okolitej zástavby, na ktorú nadväzuje šikmou časťou strechy. Strecha sa výškovo prispôsobuje rímsou aj hrebeňom. Okrajovú polohu domu reflektuje nárožie s plochou strechou, ktoré ohraničuje začiatok súvislého bloku stavieb.

Do domu sa vchádza cez zádverie, z ktorého vedie chodba do hlavného obytného priestoru. Otvorená obývačka, s prístupom na záhradu, je spojená s kuchyňou a jedálňou. Na zádverie nadväzuje technická miestnosť a WC. 

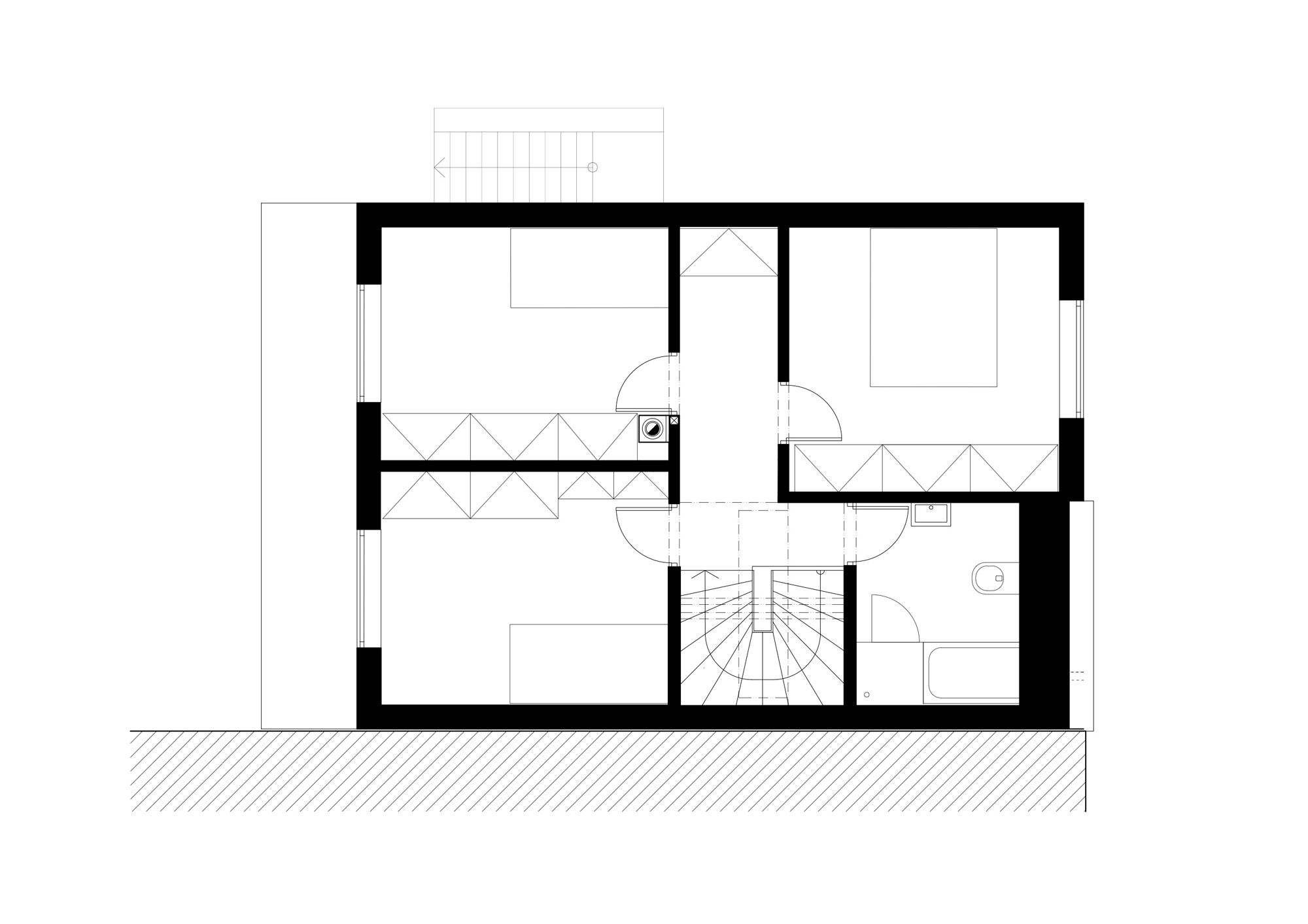
Na poschodie vedie krivočiare schodisko, vložené medzi kuchynskú a pobytovú časť prízemia. Chodba vedie k trom spálňam a samostatnej kúpeľni.

Hrazdená drevená stavba je z vonkajšej strany omietnutá jemnozrnnou silikátovou omietkou. Sivé rámy zasklenia prispievajú k optickému zjednoteniu stavebných otvorov. Pozemok ohraničuje oplotenie z pozinkovaného pletiva upevneného na oceľové stĺpiky.

Situácia
SituáciaAutor: Studio NEW WORK
Pôdorys 1. NP
Pôdorys 1. NPAutor: Studio NEW WORK
Pôdorys 2. NP
Pôdorys 2. NPAutor: Studio NEW WORK
Rez
RezAutor: Studio NEW WORK
Rez
RezAutor: Studio NEW WORK
Rozvinutý uličný pohľad
Rozvinutý uličný pohľadAutor: Studio NEW WORK
Pohľad z ulice
Pohľad z uliceAutor: Studio NEW WORK
Pohľad zo záhrady
Pohľad zo záhradyAutor: Studio NEW WORK

Podklady: Studio NEW WORK

Poloha diela

Svatopluk Sládeček
Jaroslav Matoušek
Petra Bitaudeau Vašková
Vložené
16. máj 2022
0
1782
Hlavný obsahHlavný obsah
Čakajte prosím