Advertorial

Pozvánka na 2. ročník stavebného veľtrhu BigMarket na Slovensku

Na podujatí sa predstaví až 37 vystavovateľov - popredných dodávateľov stavebných materiálov a inovácií s prezentáciou...

Hotel Hirschen Spa House, Rakúsko

Novotvar v prostredí alpskej obce.

Vytvorte si kúpeľňu snov: dizajnové riešenie od značky hansgrohe

Hansgrohe - prémiová značka kúpeľňových riešení, ponúka nadčasový dizajn, technickú precíznosť a udržateľné inovácie...

Okná Internorm za minuloročné ceny + hliníkový kryt zdarma!

Využite špeciálnu akciu Internorm: okná za minuloročné ceny a hliníkový kryt úplne zadarmo. Ponuka je časovo obmedzená!

Moderné plynové technológie: Efektivita a inovácie pre 21. storočie

Sumarizácia najdôležitejších inovácií, ktoré redefinujúcich využitie tohto energetického zdroja.

Utesňovanie spodných stavieb pomocou hydro-aktívnej fólie AMPHIBIA.

AMPHIBIA 3000 GRIP 1.3 od spoločnosti ATRO predstavuje modernú hydroizolačnú technológiu, ktorá spája vysokú odolnosť,...

Dekarbonizácia individuálneho vykurovania domácností – Green Deal evolučne a nie revolučne

Ambiciózne plány EK narazili na ekonomické možnosti domácností v jednotlivých členských štátoch –...

Minimalistické dvere IDEA – technická precíznosť a čistota prevedenia

IDEA DOOR od spoločnosti JAP prináša do interiéru čistý minimalistický vzhľad vďaka bezrámovému riešeniu a precíznej...

Dom s výhľadom na údolie, Dlouhý Most (ČR)

Kontinuita riešenia od vonkajšieho obkladu až po kovania a kľučky.

Schell Vitus – osvedčené riešenie pre sprchy a umývadlá vo verejnom sektore s viac ako desaťročnou tradíciou

Nástenné nadomietkové armatúry Vitus sú mimoriadne vhodné pre rýchlu a efektívnu...

Kompozitné okná predstavujú súčasnosť a budúcnosť

Okenné profily z kompozitného materiálu RAU-FIPRO X od spoločnosti Rehau sú v porovnaní s tradičnými plastovými profilmi mnohonásobne...

Myotis - stoly 2025

Najnovší sortiment stolov pre zariadenie interiérov...

Priemyselné sklenené priečky Dorsis Digero: svetelné rozhranie pre moderné interiéry

Spojenie moderného dizajnu, funkčnosti a svetla do harmonického architektonického prvku.

Význam prirodzeného svetla pre moderné a flexibilné pracovné prostredie

Kancelárska budova Baumit v slovinskom Trzine prešla premenou na moderné a udržateľné pracovisko. Architekti kládli dôraz...

Konferencia Xella Dialóg predstaví novinky a trendy v stavebníctve

Mottom šiesteho ročníku on-line konferencie odborníkov Xella Dialóg je Efektívny návrh budov 2025+: zmeny a riešenia

Rodinný dom - Brno, Palouk

Prestavba polovice staršieho brnianskeho dvojdomu.
Diela
Red 414.07.2019
18010+31
Rodinný dom - Brno, Palouk
Autori: MgA. Svatopluk Sládeček, Ing. arch. Jaroslav Matoušek, Ing. arch. Petra Bitaudeau VaškováZastavaná plocha: 84 m2Obostavaný objem: 897 m3Návrh: 2016 - 2017Realizácia: 2018 - 2019Adresa: Palouk 50/7, Brno, Česká republikaPublikované: 14. júl 2019

Na prvý pohľad neveľké zmeny. Obnovená fasáda, nové lodžie orientované do ulice, obytná plocha rozšírená o malý strešný ateliér... Vo výsledku komplexný autorský vklad. Malé stavebné zásahy výrazne prispeli k lepšiemu využitiu priestoru. Čo bolo dobré ostalo zachované (základná prevádzková schéma, pôvodné terrazzové schodisko...). Zvyšok nahradila nová funkčná a kvalitná vrstva.

Foto: Petr Šmídek
Foto: Petr Šmídek

Dom sa nachádza na západnom okraji zastavaného územia Brna. Vchod je orientovaný do strmej slepej ulice, ktorá končí na okraji lesoparku a prírodnej rezervácie Kamenný vrch. Pozemok sa zvažuje k výhľadom, smerom na východ, vstup je situovaný na južnej strane.

Situácia,
Situácia,autor: NEW WORK

Rekonštrukcia sa týkala polovice staršieho dvojdomu s plochou strechou. Pôdorys objektu neprekročili pôvodnú zastavanú plochu, nové usporiadanie stavebných otvorov pomáha zlepšiť využite vnútorného priestoru. Na najvyššom podlaží pribudla ľahká drevená nadstavba opláštená titánzinkovým plechom.

Foto: Petr Šmídek
Foto: Petr Šmídek
Foto: Petr Šmídek
Foto: Petr Šmídek
Foto: Petr Šmídek
Foto: Petr Šmídek
Foto: Petr Šmídek

Z dôvodu nevyhovujúceho statického riešenia bolo nutné zmeniť priestorové usporiadanie vstupného podlažia. Do ortogonálneho rastra nosných stien boli vložené nové konštrukcie prebiehajúce v šikmom smere od vstupu až po schodisko. Dispozícia domu rešpektuje pôvodný priestorový koncept.

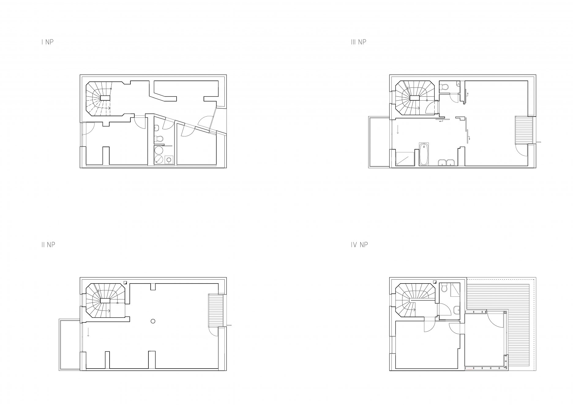
Podlažia sú prepojené  repasovaným terrazzovým schodiskom, ktoré prebieha pozdĺž fasád orientovaných do záhrady. Posunutím vstupných dverí do chodby vzniklo zastrešené závetrie. Na vstupnú halu je napojený sklad, hygiena a technická miestnosť. Najďalej od vstupu je schodisko a pracovňa, cez ktorú sa prechádza na záhradu. Celé prízemie má podlahu z repasovaného terrazza.

Na poschodí je spoločenská časť domu - obývacia izba s kuchynským kútom. Obytný priestor je rozšírený o pôvodný balkón orientovaný do záhrady. Lodžia smerujúca na ulicu vznikla vybúraním nového stavebného otvoru.

Na treťom nadzemnom podlaží sa nachádza nočná zóna. Spálňa so šatníkom a kúpeľňou je doplnená o samostatné WC. Z kúpeľne je prístupný balkón. smerom do ulice opäť vzniká menšia lodžia.

Na najvyššom poschodí je samostatná spálňa, kúpeľňa a WC. Pôvodný obrys stavby je rozšírený o nový  ateliér v drevenej nadstavbe opláštenej titánzinkovým plechom. 

Pôdorysy,
Pôdorysy,autor: NEW WORK
Pohľady,
Pohľady,autor: NEW WORK
Rezy,
Rezy,autor: NEW WORK
Foto: Petr Šmídek
Foto: Petr Šmídek
Foto: Petr Šmídek
Foto: Petr Šmídek
Foto: Petr Šmídek
Foto: Petr Šmídek
Foto: Petr Šmídek
Foto: Petr Šmídek
Foto: Petr Šmídek
Foto: Petr Šmídek
Foto: Petr Šmídek
Foto: Petr Šmídek
Foto: Petr Šmídek
Foto: Petr Šmídek
Foto: Petr Šmídek
Foto: Petr Šmídek

Podklady: NEW WORK

Poloha diela

MgA. Svatopluk Sládeček
Ing. arch. Jaroslav Matoušek
Ing. arch. Petra Bitaudeau Vašková
Vložené
28. máj 2019
0
1801
Hlavný obsahHlavný obsah
Čakajte prosím