Advertorial

Pozvánka na 2. ročník stavebného veľtrhu BigMarket na Slovensku

Na podujatí sa predstaví až 37 vystavovateľov - popredných dodávateľov stavebných materiálov a inovácií s prezentáciou...

Hotel Hirschen Spa House, Rakúsko

Novotvar v prostredí alpskej obce.

Vytvorte si kúpeľňu snov: dizajnové riešenie od značky hansgrohe

Hansgrohe - prémiová značka kúpeľňových riešení, ponúka nadčasový dizajn, technickú precíznosť a udržateľné inovácie...

Okná Internorm za minuloročné ceny + hliníkový kryt zdarma!

Využite špeciálnu akciu Internorm: okná za minuloročné ceny a hliníkový kryt úplne zadarmo. Ponuka je časovo obmedzená!

Moderné plynové technológie: Efektivita a inovácie pre 21. storočie

Sumarizácia najdôležitejších inovácií, ktoré redefinujúcich využitie tohto energetického zdroja.

Utesňovanie spodných stavieb pomocou hydro-aktívnej fólie AMPHIBIA.

AMPHIBIA 3000 GRIP 1.3 od spoločnosti ATRO predstavuje modernú hydroizolačnú technológiu, ktorá spája vysokú odolnosť,...

Dekarbonizácia individuálneho vykurovania domácností – Green Deal evolučne a nie revolučne

Ambiciózne plány EK narazili na ekonomické možnosti domácností v jednotlivých členských štátoch –...

Minimalistické dvere IDEA – technická precíznosť a čistota prevedenia

IDEA DOOR od spoločnosti JAP prináša do interiéru čistý minimalistický vzhľad vďaka bezrámovému riešeniu a precíznej...

Dom s výhľadom na údolie, Dlouhý Most (ČR)

Kontinuita riešenia od vonkajšieho obkladu až po kovania a kľučky.

Schell Vitus – osvedčené riešenie pre sprchy a umývadlá vo verejnom sektore s viac ako desaťročnou tradíciou

Nástenné nadomietkové armatúry Vitus sú mimoriadne vhodné pre rýchlu a efektívnu...

Kompozitné okná predstavujú súčasnosť a budúcnosť

Okenné profily z kompozitného materiálu RAU-FIPRO X od spoločnosti Rehau sú v porovnaní s tradičnými plastovými profilmi mnohonásobne...

Myotis - stoly 2025

Najnovší sortiment stolov pre zariadenie interiérov...

Priemyselné sklenené priečky Dorsis Digero: svetelné rozhranie pre moderné interiéry

Spojenie moderného dizajnu, funkčnosti a svetla do harmonického architektonického prvku.

Význam prirodzeného svetla pre moderné a flexibilné pracovné prostredie

Kancelárska budova Baumit v slovinskom Trzine prešla premenou na moderné a udržateľné pracovisko. Architekti kládli dôraz...

Konferencia Xella Dialóg predstaví novinky a trendy v stavebníctve

Mottom šiesteho ročníku on-line konferencie odborníkov Xella Dialóg je Efektívny návrh budov 2025+: zmeny a riešenia

Vinárstvo Kolby, Pouzdřany (ČR)

Dostavba, kultivácia, zjednotenie.
Diela
Red 311.04.2024
8860+15
Vinárstvo Kolby, Pouzdřany (ČR)
Autori: Ing. arch. Jan Veisser, Ing. arch. Jan Hora, MgA. Barbora HoraSpolupráca: Ing. arch. Maroš Drobňák, Ing. arch. Klára MačkováInvestor: Kolby a. s.Návrh: 2021 - 2022Realizácia: 2022 - 2023Adresa: Česká 51, Pouzdřany, Česká republikaPublikované: 11. apríl 2024

Vinárstvo na okraji malej juhomoravskej obce Pouzdřany nesie názov južne orientovaného svahu na okraji národnej prírodnej pamiatky Pouzdřanská step - Kolby. História pestovania vinnej révy na úbočí Kolby siaha podľa písomných záznamov do obdobia panovania kráľa Přemysla Otakara II. Projekt znojemského ateliéru ORA, ktorý má na konte viaceré kvalitné konverzie (viď. súvisiace články v závere textu), riešil dostavbu a zjednotenie areálu vinárstva. “Facelift” objektov vznikal podľa požiadaviek nového vlastníka, medzi ktorého priority patrí zodpovedné hospodárenie a rešpekt ku krajine.

Areál pozostáva z historickej budovy s rozsiahlymi pivnicami a nedávnej prístavby z druhej dekády 21. storočia. Úlohou architektov bolo navrhnúť nový suchý sklad fliaš a wine bar pre návštevníkov a fanúšikov českého vína.

Pretože celý areál nedávno prešiel transformáciou, nedávalo zmysel do existujúcich objektov výrazne zasahovať. Napriek tomu bolo potrebné zjednotiť výraz stavieb a aktualizovať prevádzkové väzby tak, aby zodpovedali potrebám súčasnej prevádzky podniku. 

Zjednocujúci prvok nových objektov vinárstva tvorí predsadená fasáda z masívneho agátového dreva. Fasáda má dve úrovne - riedku vonkajšiu treláž a organicky plynúci raster vnútorného latovania. Odolné drevo z lokálnych zdrojov zaisťuje dlhú životnosť obkladu.

Najvýraznejším vstupom ateliéru ORA je dostavba suchého skladu v podobe utilitárnej haly, montovanej z prefabrikovaných betónových dielcov. Rozmery stavby maskuje jej čiastočné zapustenie do terénu. K splynutiu objektu s krajinou dopomáha zafarbenie betónu do zemitých odtieňov a predsadená obrastená fasáda, ktorá zároveň bráni prehrievaniu objektu. 

Wine bar využíva priestory v historickej budove vinárstva, ktoré rozširujú rozsiahle podzemné pivnice. Namiesto klasického baru navrhli architekti masívny  centrálny degustačný stôl. Medzi výrazné prvky interiéru patrí cementová dlažba vínovej farby, vyrobená priamo pre tento priestor. Wine bar rozširuje dláždená plocha, prestrešená rozmerným prístreškom. Pôvodnú oceľovú konštrukciu zakryl agátový obklad, charakteristický pre novú podobu vinárstva. 

Foto: BoysPlayNice
Foto: BoysPlayNice
Foto: BoysPlayNice
Foto: BoysPlayNice
Foto: BoysPlayNice
Foto: BoysPlayNice
Foto: BoysPlayNice
Foto: BoysPlayNice
Foto: BoysPlayNice
Foto: BoysPlayNice
Foto: BoysPlayNice
Foto: BoysPlayNice
Foto: BoysPlayNice
Foto: BoysPlayNice
Foto: BoysPlayNice
Foto: BoysPlayNice
Foto: BoysPlayNice
Foto: BoysPlayNice
Foto: BoysPlayNice
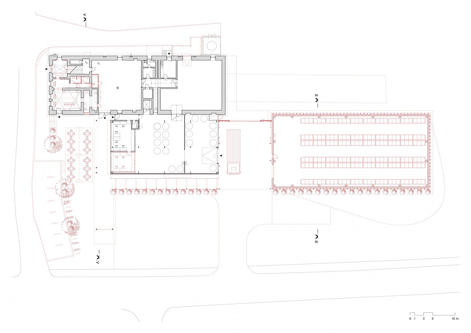
Pôdorys 1. NP
Pôdorys 1. NPAutor: ORA (originální regionální architektura)
Pôdorys 1. PP
Pôdorys 1. PPAutor: ORA (originální regionální architektura)
Rez A-A´
Rez A-A´Autor: ORA (originální regionální architektura)
Rez B-B´
Rez B-B´Autor: ORA (originální regionální architektura)
Severozápadný pohľad
Severozápadný pohľadAutor: ORA (originální regionální architektura)
Juhovýchodný pohľad
Juhovýchodný pohľadAutor: ORA (originální regionální architektura)
Severovýchodný pohľad
Severovýchodný pohľadAutor: ORA (originální regionální architektura)
Juhozápadný pohľad
Juhozápadný pohľadAutor: ORA (originální regionální architektura)
Schodisko
SchodiskoAutor: ORA (originální regionální architektura)
Stôl - axonometria
Stôl - axonometriaAutor: ORA (originální regionální architektura)
Stôl
StôlAutor: ORA (originální regionální architektura)
Foto: BoysPlayNice
Foto: BoysPlayNice
Foto: BoysPlayNice
Foto: BoysPlayNice
Foto: BoysPlayNice
Foto: BoysPlayNice
Foto: BoysPlayNice
Foto: BoysPlayNice
Foto: BoysPlayNice
Foto: BoysPlayNice
Foto: BoysPlayNice
Foto: BoysPlayNice
Foto: BoysPlayNice
Foto: BoysPlayNice
Foto: BoysPlayNice
Foto: BoysPlayNice

Materiály:

  • oceľ - nosné konštrukcie, interiérový mobiliár
  • agátové drevo - vonkajšií obklad a lavice
  • masívny dub - stoly
  • cementová dlažba - podlahy
  • prefabrikované betónové konštrukcie - hala

Autor: ORA
Podklady: Linka

Fotografie: BoysPlayNice

Poloha diela

Ing. arch. Jan Veisser
Ing. arch. Jan Hora
MgA. Barbora Hora

Súvisiace články

Vložené
11. apríl 2024
0
886
Hlavný obsahHlavný obsah
Čakajte prosím