Využite špeciálnu akciu Internorm: okná za minuloročné ceny a hliníkový kryt úplne zadarmo. Ponuka je časovo obmedzená!
Na podujatí sa predstaví až 37 vystavovateľov - popredných dodávateľov stavebných materiálov a inovácií s prezentáciou...
Sumarizácia najdôležitejších inovácií, ktoré redefinujúcich využitie tohto energetického zdroja.
AMPHIBIA 3000 GRIP 1.3 od spoločnosti ATRO predstavuje modernú hydroizolačnú technológiu, ktorá spája vysokú odolnosť,...
Ambiciózne plány EK narazili na ekonomické možnosti domácností v jednotlivých členských štátoch –...
IDEA DOOR od spoločnosti JAP prináša do interiéru čistý minimalistický vzhľad vďaka bezrámovému riešeniu a precíznej...
Kontinuita riešenia od vonkajšieho obkladu až po kovania a kľučky.
Nástenné nadomietkové armatúry Vitus sú mimoriadne vhodné pre rýchlu a efektívnu...
Okenné profily z kompozitného materiálu RAU-FIPRO X od spoločnosti Rehau sú v porovnaní s tradičnými plastovými profilmi mnohonásobne...
Najnovší sortiment stolov pre zariadenie interiérov...
Spojenie moderného dizajnu, funkčnosti a svetla do harmonického architektonického prvku.
Kancelárska budova Baumit v slovinskom Trzine prešla premenou na moderné a udržateľné pracovisko. Architekti kládli dôraz...
Mottom šiesteho ročníku on-line konferencie odborníkov Xella Dialóg je Efektívny návrh budov 2025+: zmeny a riešenia
Robot WLTR predstavuje moderný prístup k murovaným konštrukciám. Vďaka automatizácii dokáže rýchlo, presne a bezpečne realizovať...
Okrem bezpečnosti majú okná aj elegantný vzhľad, pretože nie sú viditeľné žiadne uzamykacie časti kovania.

Realizácia ateliéru Aleša Fialu nominovaná v aktuálnom ročníku Českej ceny za architektúru.
Vinárstvo Gurdau bolo založené roku 2012 na “zelenej lúke”, vysadením prvých viníc vo svahoch nad obcou Kurdějov. Tá patrila historicky k významným dodávateľom vína mikulovským i brnenským mešťanom aj šľachtickým dvorom na Morave. Prevzatím historického názvu obce sa mladé vinárstvo hlási k vinárskemu odkazu lokality.
Už počiatočné idey vinárskeho domu uvažovali s prevádzkovo najefektívnejšou polohou, doslova v centre viníc. Zvolené osadenie, ktoré zároveň otvára výhľady do krajiny, prináša vysoké nároky na začlenenie stavby do prostredia. Stavba na kontext reaguje formou mierneho oblúka - vlny vo vinici. Na okolie stavby so 150 vysadenými stromami a krami plynulo nadväzuje extenzívna zelená strecha.
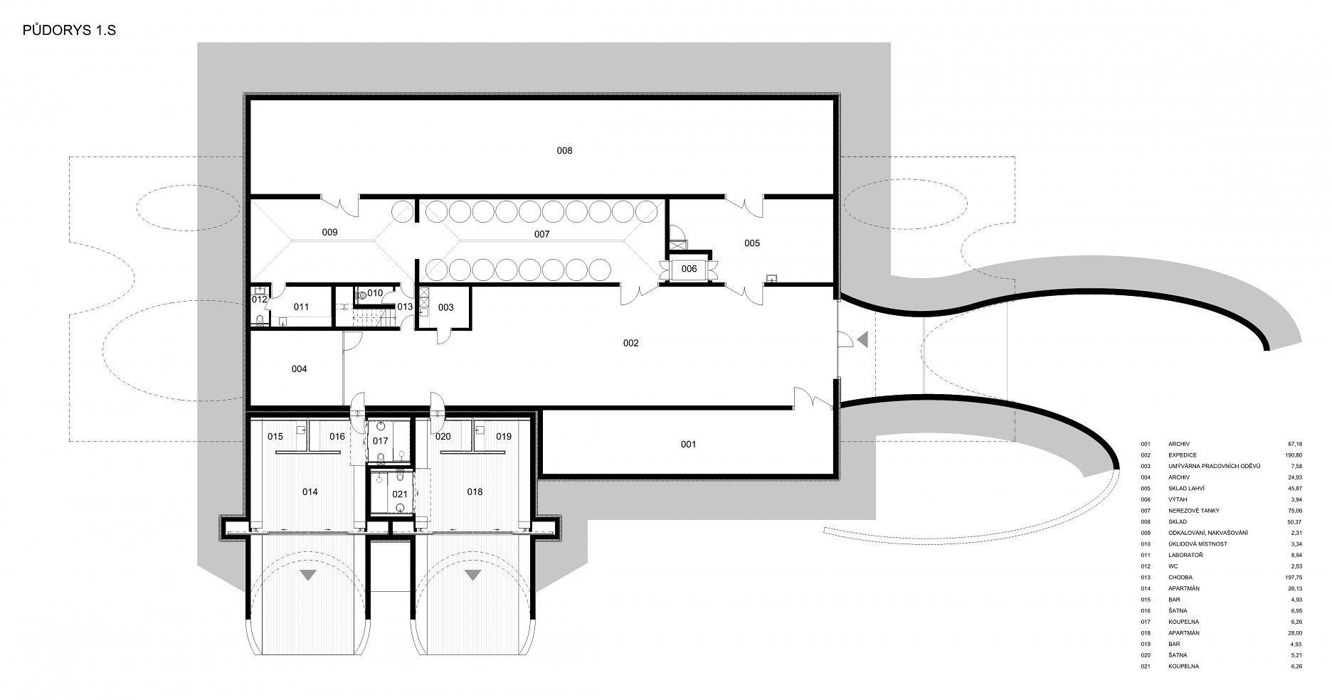
Dvojpodlažná oceľobetónová stavba je prevádzkovo členená na dva celky. V suteréne prebieha výroba, zrenie a archivovanie vína. O úroveň vyššie situovali autori degustačné priestory, posedenie a predajňu. Hostia majú k dispozícii dva apartmány na príležitostné nocovanie.
Architekti zvolili pre stavbu materiály v prirodzenej forme ako pohľadový betón, sklo, kov, dubové a agátové drevo. Kontakt návštevníka s vinohradníckou krajinou umocňujú početné terasy, veľkoplošné zasklenie a v neposlednom rade pochôdzna vyhliadková strecha objektu, odkiaľ sa otvárajú scenérie horizontov Kurdějova, v diaľke sa rysujúcej Pálavy i rovín rozprestierajúcich sa k Rakúsku.
K ekologickej prevádzke stavby, okrem extenzívnej zelenej strechy prispieva kvalitné zasklenie (trojsklá v kombinácii s drevenými predokennými dubovými lamelami, dostatočným presahom oblúkovej strechy a zatienením pergoly pred fasádou plachtami), vykurovanie prostredníctvom tepelného čerpadlo vzduch - voda, alebo opätovné využitie zrážkovej vody z akumulačnej nádrže.
Použité Materiály:
Autor: Aleš Fiala
Podklady: Linka
Fotografie: BoysPlayNice