Advertorial

Pozvánka na 2. ročník stavebného veľtrhu BigMarket na Slovensku

Na podujatí sa predstaví až 37 vystavovateľov - popredných dodávateľov stavebných materiálov a inovácií s prezentáciou...

Hotel Hirschen Spa House, Rakúsko

Novotvar v prostredí alpskej obce.

Vytvorte si kúpeľňu snov: dizajnové riešenie od značky hansgrohe

Hansgrohe - prémiová značka kúpeľňových riešení, ponúka nadčasový dizajn, technickú precíznosť a udržateľné inovácie...

Okná Internorm za minuloročné ceny + hliníkový kryt zdarma!

Využite špeciálnu akciu Internorm: okná za minuloročné ceny a hliníkový kryt úplne zadarmo. Ponuka je časovo obmedzená!

Moderné plynové technológie: Efektivita a inovácie pre 21. storočie

Sumarizácia najdôležitejších inovácií, ktoré redefinujúcich využitie tohto energetického zdroja.

Utesňovanie spodných stavieb pomocou hydro-aktívnej fólie AMPHIBIA.

AMPHIBIA 3000 GRIP 1.3 od spoločnosti ATRO predstavuje modernú hydroizolačnú technológiu, ktorá spája vysokú odolnosť,...

Dekarbonizácia individuálneho vykurovania domácností – Green Deal evolučne a nie revolučne

Ambiciózne plány EK narazili na ekonomické možnosti domácností v jednotlivých členských štátoch –...

Minimalistické dvere IDEA – technická precíznosť a čistota prevedenia

IDEA DOOR od spoločnosti JAP prináša do interiéru čistý minimalistický vzhľad vďaka bezrámovému riešeniu a precíznej...

Dom s výhľadom na údolie, Dlouhý Most (ČR)

Kontinuita riešenia od vonkajšieho obkladu až po kovania a kľučky.

Schell Vitus – osvedčené riešenie pre sprchy a umývadlá vo verejnom sektore s viac ako desaťročnou tradíciou

Nástenné nadomietkové armatúry Vitus sú mimoriadne vhodné pre rýchlu a efektívnu...

Kompozitné okná predstavujú súčasnosť a budúcnosť

Okenné profily z kompozitného materiálu RAU-FIPRO X od spoločnosti Rehau sú v porovnaní s tradičnými plastovými profilmi mnohonásobne...

Myotis - stoly 2025

Najnovší sortiment stolov pre zariadenie interiérov...

Priemyselné sklenené priečky Dorsis Digero: svetelné rozhranie pre moderné interiéry

Spojenie moderného dizajnu, funkčnosti a svetla do harmonického architektonického prvku.

Význam prirodzeného svetla pre moderné a flexibilné pracovné prostredie

Kancelárska budova Baumit v slovinskom Trzine prešla premenou na moderné a udržateľné pracovisko. Architekti kládli dôraz...

Konferencia Xella Dialóg predstaví novinky a trendy v stavebníctve

Mottom šiesteho ročníku on-line konferencie odborníkov Xella Dialóg je Efektívny návrh budov 2025+: zmeny a riešenia

Vinárstvo Obelisk, Valtice, Južná Morava

Pre vinárov je prezentácia produktu častokrát rovnako dôležitá ako kvalita samotného vína. Vinárstvo v krajine v blízkozti Valtíc svedčí o snahe investora.
Diela
Red 419.08.2018
37320+24
Vinárstvo Obelisk, Valtice, Južná Morava
Autori: Ing. arch. Pavel Bainar, Ing. arch. Hana Bainarová, Ing. Martin Klásek, Ing. Pavlína Klubalová, Ing. Jitka NovákováInvestor: Vinařství Obelisk s.r.o.Zastavaná plocha: 2100 m²Podlažná plocha: 3490 m²Návrh: 2015 - 2016Realizácia: 2016 - 2017Adresa: Celňák 1212, Valtice, Česká republikaPublikované: 19. august 2018

V spojitosti s vínom na Slovensku, aj v susednej Českej republike vzniklo mnoho rôznych „château”. I tam, kde tradícia “zámku” nemá historické opodstatnenie. Marketingovo je však jednoduchšie mechanicky kopírovať rôzne romantizujúce cudzie vzory, ako ísť vlastnou cestou. Odzrkadľujúcou miestne špecifiká, osobitosti vinárstva i ľudí, ktorí sú za tým. Prezentovaný príklad ukazuje, že sú miesta, kde sa majitelia a architekti pokúsili ísť svojou vlastnou cestou. Aj keď vo forme určitým spôsobom môžeme nájsť vysoký klasický “rád” a v pozadí možno aj inšpiráciu ďalekou históriou, vyjadrovacie prostriedky, prístup, duch a technológie sú vyslovene súčasné.

Vinárstvo je súdobou interpretáciou klasických foriem začlenených do krajinného kontextu. Kompaktný pavilón stojí na masívnom sokli uprostred novozaložených viníc. Samotná prevádzka je situovaná pod zemou, degustačné a reprezentatívne priestory využívajú rozsiahle presklené poschodie s výhľadmi na Valtice, historickú kolonádu, či panorámu Pálavy s vedutou Mikulova.

Vinárstvo Obelisk stojí na zelenom horizonte, na mieste bývalého postu hraničnej stráže. Obranu štátnych hraníc nahradila starostlivosť o vinohrady a krajinu.

Foto: BoysPlayNice
Foto: BoysPlayNice
Situácia
SituáciaAiD team

“Návrh vinařství čerpá ze stejných tradic a vzorů jakými se inspirovali tvůrci romantických objektů zasazených ve volné krajině Lednicko-valtického areálu. V našem případě je to inspirace antickým chrámkem transformovaná do téměř abstraktní podoby desky podepřené třemi řadami sloupů - takto vytvořený pavilon stojící na pevném soklu jemně doplňuje zelený horizont s vinicemi,” približujú architektonický koncept autori.

Foto: BoysPlayNice
Foto: BoysPlayNice

Otvorené podlubie obkolesuje korténový pavilón s veľkoplošným zasklením. Vizuálne je objekt prepojený s Valticami, a panorámou krajiny Pálavy a Mikulova.

Foto: BoysPlayNice
Foto: BoysPlayNice

Keďže vinárstvo obklopuje rozsiahly krajinársky komplex formovaný v 17. - 20. storočí na panstve rodou Lichtenštajnov, architekti sa snažili zachovať jeho celistvý výraz. Väčšia časť objektu  je preto ukrytá pod zemou, viditeľný pavilón pri pohľade z Valtíc len málo vystupuje zo siluety vinohradov. 

Foto: BoysPlayNice
Foto: BoysPlayNice
Foto: BoysPlayNice
Foto: BoysPlayNice
Foto: BoysPlayNice

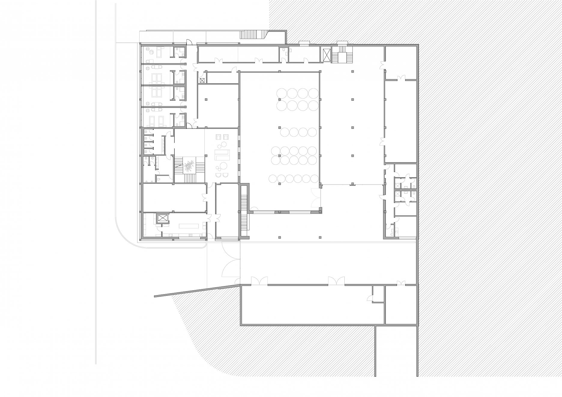
Objekt je rozčlenený na dve základné zóny - výrobné a spracovateľské priestory vinárstva v suteréne a reprezentačnú a spoločenskú časť na najvyššej úrovni s predajňou, halou a degustačnými miestnosťami.

Pôdorys 1. NP
Pôdorys 1. NPAiD team
Pôdorys 1. PP
Pôdorys 1. PPAiD team
Pôdorys 2. PP
Pôdorys 2. PPAiD team
Rez
RezAiD team
Juhovýchodný pohľad
Juhovýchodný pohľadAiD team
Severovýchodný pohľad
Severovýchodný pohľadAiD team
Severozápadný pohľad
Severozápadný pohľadAiD team

Reprezentačné, degustačné a spoločenské priestory sú vizitkou a stelesnením ideí celého vinárstva. “Chápeme je jako pavilon či budoár - prostor se svým specifickým výrazem i atmosférou. Na rozdíl od valtického zámku zde nejsou vystaveny  lovecké trofeje, ale trofeje vinařského umu Vinařství Obelisk,” vysvetľujú architekti.  Barokové a neorenesančné zámocké stropy boli inšpiráciou pre súčasné výtvarné dielo - stropné a nástenné intarzie. Prírodné materiály ako kameň, betón a dubové drevo dopĺňa sklo, oceľ a kortén.

Foto: BoysPlayNice
Foto: BoysPlayNice
Foto: BoysPlayNice
Foto: BoysPlayNice
Foto: BoysPlayNice
Foto: BoysPlayNice
Foto: BoysPlayNice
Foto: BoysPlayNice
Foto: BoysPlayNice
Foto: BoysPlayNice
Foto: BoysPlayNice
Foto: BoysPlayNice
Foto: BoysPlayNice

Výroba je založená na gravitačnom spracovaní hrozna, preto je situovaná na dvoch poschodiach, ktorým dominuje tanková hala obklopená vínnymi pivnicami. Chuť vín charakterizuje terroir miestnych viníc. Najlepšie šarže zrejú v drevených sudoch, ktoré prispievajú k ich hustote a komplexnosti.

Foto: BoysPlayNice
Foto: BoysPlayNice

Poloha diela

Ing. arch. Pavel Bainar
Ing. arch. Hana Bainarová
Ing. Martin Klásek
Ing. Pavlína Klubalová
Ing. Jitka Nováková
Vložené
14. august 2018
0
3732
Hlavný obsahHlavný obsah
Čakajte prosím