Advertorial

Pozvánka na 2. ročník stavebného veľtrhu BigMarket na Slovensku

Na podujatí sa predstaví až 37 vystavovateľov - popredných dodávateľov stavebných materiálov a inovácií s prezentáciou...

Hotel Hirschen Spa House, Rakúsko

Novotvar v prostredí alpskej obce.

Vytvorte si kúpeľňu snov: dizajnové riešenie od značky hansgrohe

Hansgrohe - prémiová značka kúpeľňových riešení, ponúka nadčasový dizajn, technickú precíznosť a udržateľné inovácie...

Okná Internorm za minuloročné ceny + hliníkový kryt zdarma!

Využite špeciálnu akciu Internorm: okná za minuloročné ceny a hliníkový kryt úplne zadarmo. Ponuka je časovo obmedzená!

Moderné plynové technológie: Efektivita a inovácie pre 21. storočie

Sumarizácia najdôležitejších inovácií, ktoré redefinujúcich využitie tohto energetického zdroja.

Utesňovanie spodných stavieb pomocou hydro-aktívnej fólie AMPHIBIA.

AMPHIBIA 3000 GRIP 1.3 od spoločnosti ATRO predstavuje modernú hydroizolačnú technológiu, ktorá spája vysokú odolnosť,...

Dekarbonizácia individuálneho vykurovania domácností – Green Deal evolučne a nie revolučne

Ambiciózne plány EK narazili na ekonomické možnosti domácností v jednotlivých členských štátoch –...

Minimalistické dvere IDEA – technická precíznosť a čistota prevedenia

IDEA DOOR od spoločnosti JAP prináša do interiéru čistý minimalistický vzhľad vďaka bezrámovému riešeniu a precíznej...

Dom s výhľadom na údolie, Dlouhý Most (ČR)

Kontinuita riešenia od vonkajšieho obkladu až po kovania a kľučky.

Schell Vitus – osvedčené riešenie pre sprchy a umývadlá vo verejnom sektore s viac ako desaťročnou tradíciou

Nástenné nadomietkové armatúry Vitus sú mimoriadne vhodné pre rýchlu a efektívnu...

Kompozitné okná predstavujú súčasnosť a budúcnosť

Okenné profily z kompozitného materiálu RAU-FIPRO X od spoločnosti Rehau sú v porovnaní s tradičnými plastovými profilmi mnohonásobne...

Myotis - stoly 2025

Najnovší sortiment stolov pre zariadenie interiérov...

Priemyselné sklenené priečky Dorsis Digero: svetelné rozhranie pre moderné interiéry

Spojenie moderného dizajnu, funkčnosti a svetla do harmonického architektonického prvku.

Význam prirodzeného svetla pre moderné a flexibilné pracovné prostredie

Kancelárska budova Baumit v slovinskom Trzine prešla premenou na moderné a udržateľné pracovisko. Architekti kládli dôraz...

Konferencia Xella Dialóg predstaví novinky a trendy v stavebníctve

Mottom šiesteho ročníku on-line konferencie odborníkov Xella Dialóg je Efektívny návrh budov 2025+: zmeny a riešenia

Kocanda Kravsko II. etapa (ČR)

Druhá etapa konverzie areálu bývalej výrobne keramiky v juhomoravskej obci Kravsko na priestor pre spoločenské akcie a zážitkovú turistiku.
Diela
Red 320.06.2023
15150+39
Kocanda Kravsko II. etapa (ČR)
Autori: MgA. Barbora Hora, Ing. arch. Jan Hora, Ing. arch. Jan Veisser, Ing. arch. Maroš DrobňákSpolupráca: Klára Jordánová (krajinná architektúra)Investor: ITVV spol. s r.o.Plocha pozemku: 6850 m²Návrh: 2018 - 2022Realizácia: 2018 - 2022Adresa: Kravsko 45, Kravsko , Česká republikaPublikované: 20. jún 2023

Znojemský ateliér ORA, ktorý má na konte viaceré kvalitné konverzie (viď. súvisiace články v závere textu), sa s chuťou pustil do obnovy statku v blízkosti Znojma. Prvú etapu projektu, ktorej výsledkom bol citlivo zrekonštruovaný centrálny barokový objekt sme predstavili tu. V ďalšej etape sa dočkali revitalizácie budovy bývalej Sadrovne a Triediarne.

 

Krátky exkurz do histórie

Pôvodne barokový areál vznikol ako zájazdový hostinec na trase Praha-Viedeň. V druhej polovici 19. storočia bol areál transformovaný na známu keramickú továreň, s čím súviselo aj jeho výrazné rozšírenie. Výroba tu fungovala nepretržite, až do obdobia po nežnej revolúcii. Čoskoro ju však stihol osud mnohých iných priemyselných prevádzok - areál menil majiteľov a dlhodobo chátral. Súčasní majitelia, ktorí pochádzajú priamo z Kravska areál postupne prestavujú pre zážitkovú turistiku.

Kocanda je názov, ktorý nesie miesto odjakživa. Mal by pochádzať z nemeckého "Gott sei Dank", slovensky "vďakabohu". Kruh sa uzatvára, objekt sa vracia k svojmu pôvodnému účelu.

 

Miesto

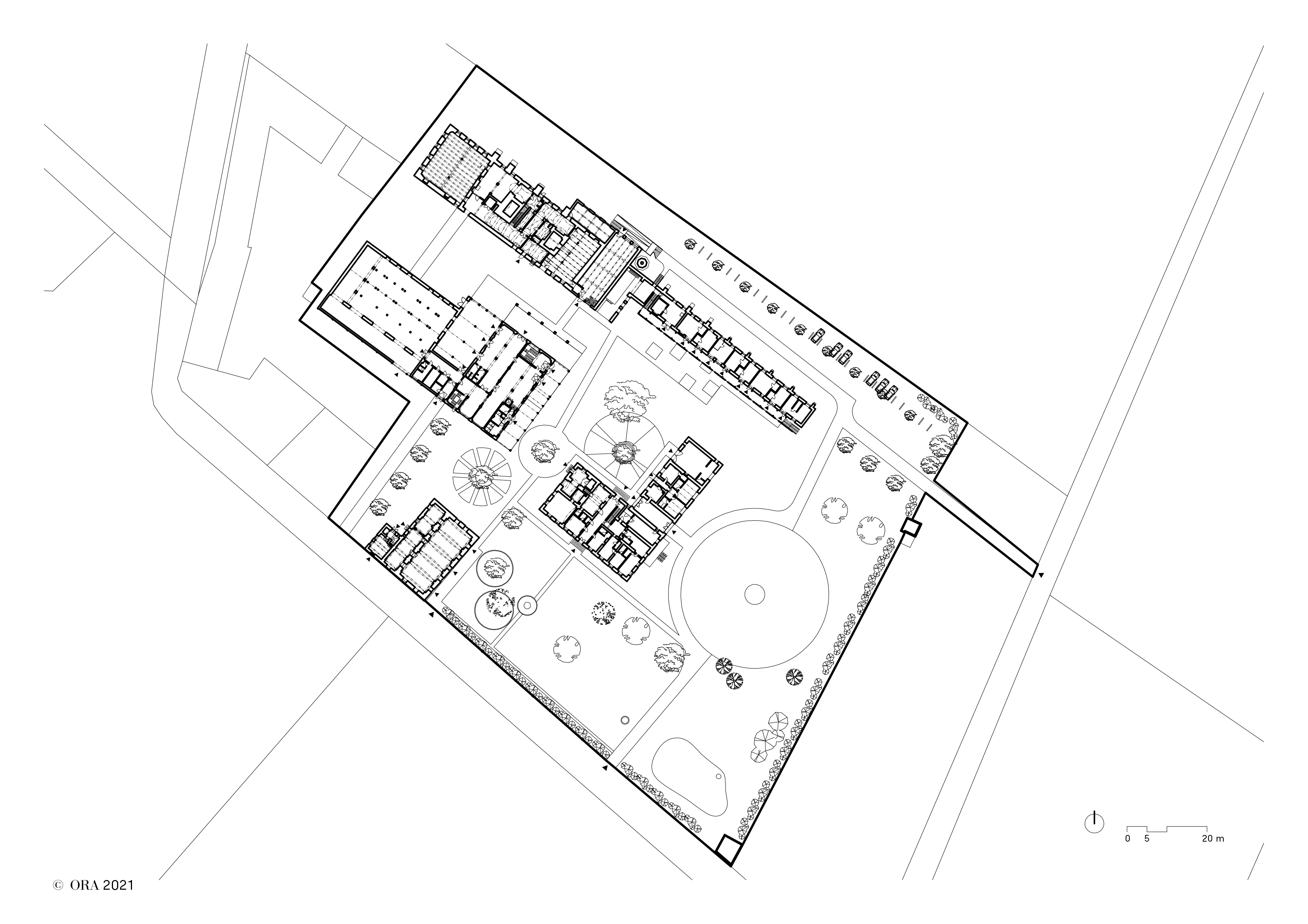
Areál sa nachádza na kopci pri dedine Kravsko, neďaleko Znojma. Pôsobí ako solitér v krajine, vyvýšená poloha súčasne otvára diaľkové výhľady do okolia.

Ako hlavná dominanta pôsobí murovaný továrenský komín, viditeľný už diaľky. Časť pôvodnej fabriky, hneď vedľa komína, po rekonštrukcii slúži ako recepcia a zázemie pre zamestnancov. Do objektu sa vstupuje po rampe z pigmentovaného betónu. Súčasný vstup bol kedysi zadným traktom areálu, preto architekti jasne definovali a akcentovali  nový hlavný vstup.

 

Sadrovňa

Konštrukcia:

Pôvodný trojpodlažný utilitárny sklad sadrových foriem má štíhly obdĺžnikový pôdorys s pomerom strán 1:8. Zaklenuté pivnice sú z juhu zapustené do svahu. Na murovanom prízemí stojí drevená konštrukcia poschodia. Murivo je čiastočne vystavané zo starých sadrových foriem, ktoré sa používali na odlievanie keramiky. Stavalo z toho, čo bolo práve po ruke...

Konverzia:

Projekt rieši premenu bývalého skladu na ubytovacie zariadenia. Vzhľadom na šírku objektu  necelých 6 metrov nebolo možné viesť komunikáciu vo vnútri dispozície. Zvlášť na druhom podlaží by to znamenalo výrazný zásah do zachovaných konštrukcií. Autori sa preto rozhodli pristavať samostatnú pavlač, z južnej strany. Pavlač je zostavená z dubového reziva druhej kvality, ktoré malo pôvodne slúžiť ako palivo.

Izby na prízemí majú vybúrané parapety, vďaka tomu je možné do nich vstúpiť priamo spoza drevenej zásteny. Na severnej fasáde architekti zachovali oceľové rámy bývalých továrenských okien. Nové výplne sú až za nimi. Rámy tvorí mreža, ktorá funguje ako bariéra proti pádu, pretože okná majú nízky parapet. Zároveň ponechávajú otvorom ich pôvodné delenie. Rekonštrukcia objektu zahŕňala pristavanie oporných pilierov k severnej fasáde, ktoré zabezpečili jej stabilizáciu. V izbách na prízemí je však možné vnímať výrazné naklonenie múrov.

Autori sa rozhodli izolovať konštrukcie druhého nadzemného podlažia zvnútra. Vďaka tomu sa im podarilo zachovať patinu pôvodnej drevenej fasády, ktorá je stále zdravá. Najvýraznejšou zmenou prešiel východný štít budovy. Pribudlo výrazné presklenie, ktoré otvára výhľady do krajiny.

Interiér:

Izby na prízemí tvoria jednoduché svetlé priestory, kúpeľne sú oddelené oceľovými rámami s matným zasklením.

Na poschodí môžu hostia obdivovať priznané trámy plných väzieb a pôvodné fošne, ktoré našli využitie ako nová podlaha.

To všetko dopĺňajú sadrové formy - po novom stolíky, tienidlá svietidiel, alebo dekorácie. Formy, ktoré tu pôvodne boli uskladnené, v redukovanom množstve zostávajú na svojom mieste.

 

Triediareň

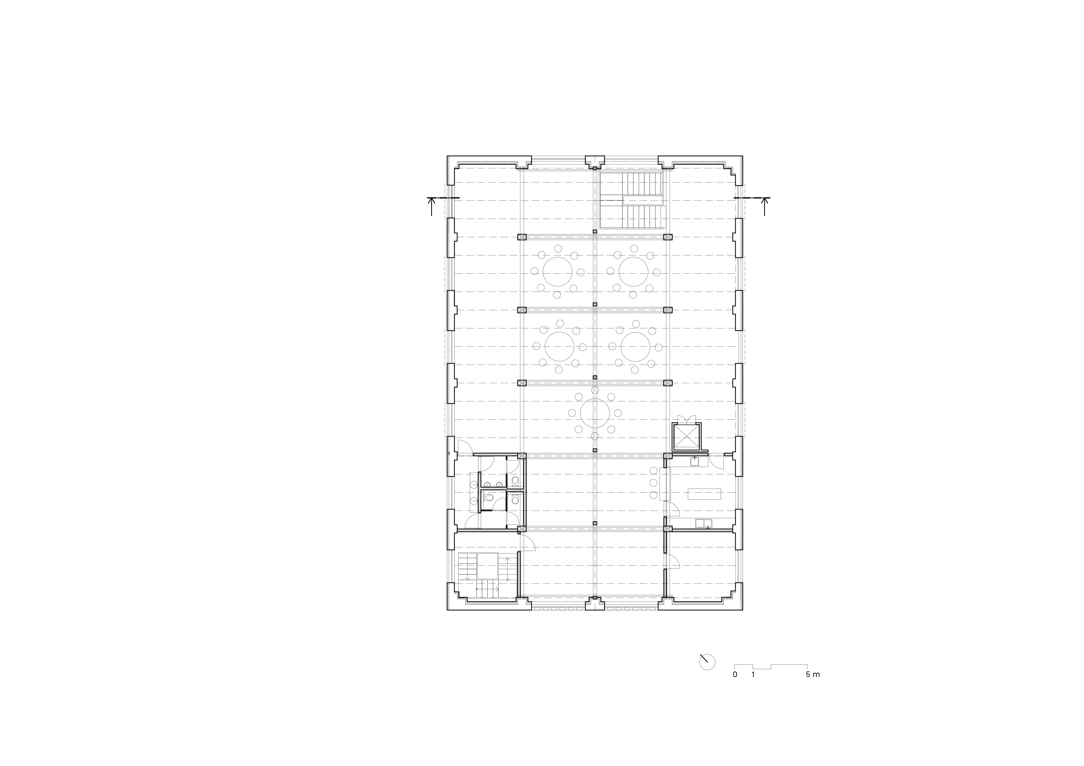
Objekt bývalej triediarne je najmladší z celého areálu. Doba jeho vzniku siaha do polovice minulého storočia. Historicky ide o najmenej cennú stavbu. Napriek tomu však reprezentuje autentický príklad vtedajšej účelnej priemyselnej výstavby. 

Priestor pre oslavy:

Priemyselné stavby vytvárajú ideálny základ pre budúce konverzie. Vďaka svojej otvorenej dispozícii umožňujú relizovať univerzálny priestor pre novú náplň.

Priestory na prízemí využíva reštaurácia s kuchyňou. Na reštauráciu nadväzuje "skleník" -  pôvodná oceľová konštrukcia, ktorú architekti odstrojili a krytinu nahradili sklom. Do podkrovia s rozsiahlou sálou vedie zvárané oceľové schodisko. Všetky nosné konštrukcie sú pôvodné, so zachovanou dobovou patinou.

Foto: BoysPlayNice
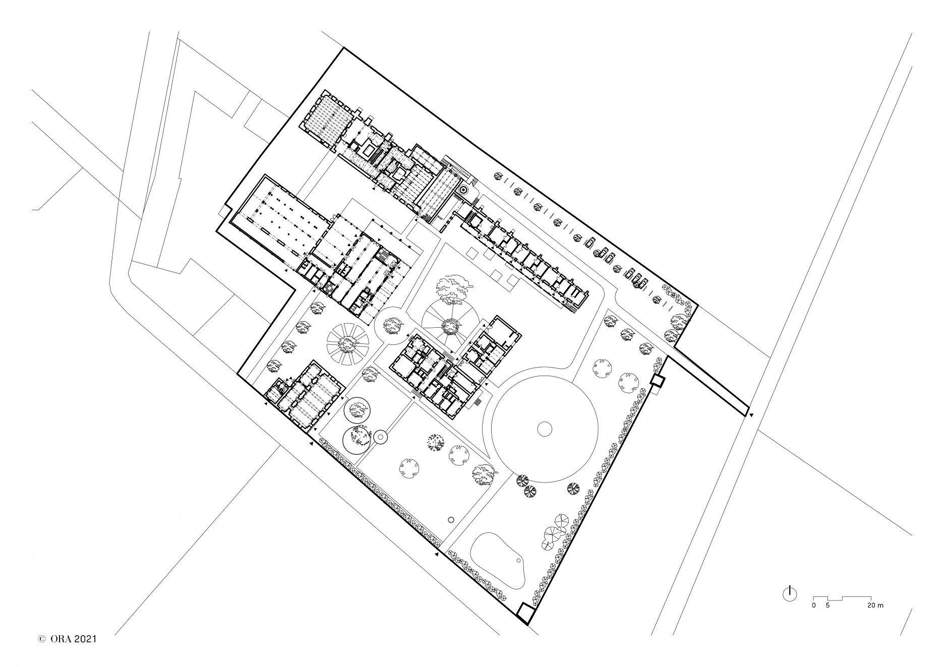
Situácia
SituáciaAutor: ORA (originální regionální architektura)
Sadrovňa - pôdorys 1. PP
Sadrovňa - pôdorys 1. PPAutor: ORA (originální regionální architektura)
Sadrovňa - pôdorys 1. NP
Sadrovňa - pôdorys 1. NPAutor: ORA (originální regionální architektura)
Sadrovňa - pôdorys 2. NP
Sadrovňa - pôdorys 2. NPAutor: ORA (originální regionální architektura)
Sadrovňa - rez
Sadrovňa - rezAutor: ORA (originální regionální architektura)
Sadrovňa - severný pohľad
Sadrovňa - severný pohľadAutor: ORA (originální regionální architektura)
Sadrovňa - južný pohľad
Sadrovňa - južný pohľadAutor: ORA (originální regionální architektura)
Sadrovňa - východný pohľad
Sadrovňa - východný pohľadAutor: ORA (originální regionální architektura)
Sadrovňa - konštrukčná schéma predsadenej pavlače
Sadrovňa - konštrukčná schéma predsadenej pavlačeAutor: ORA (originální regionální architektura)
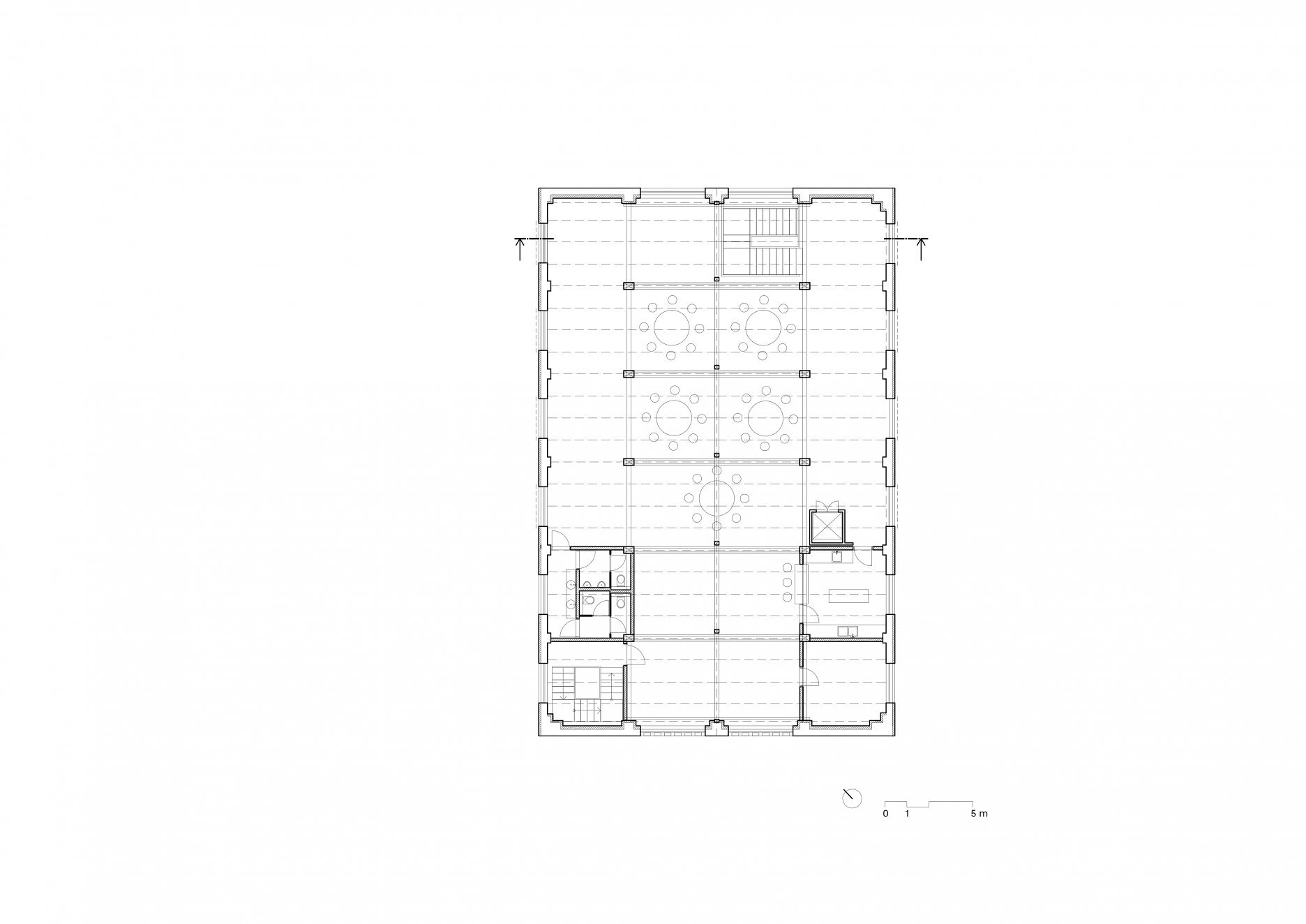
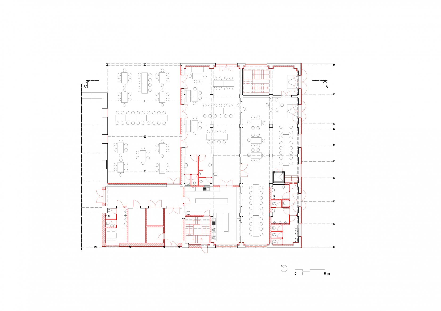
Triediareň - pôdorys 1. NP
Triediareň - pôdorys 1. NPAutor: ORA (originální regionální architektura)
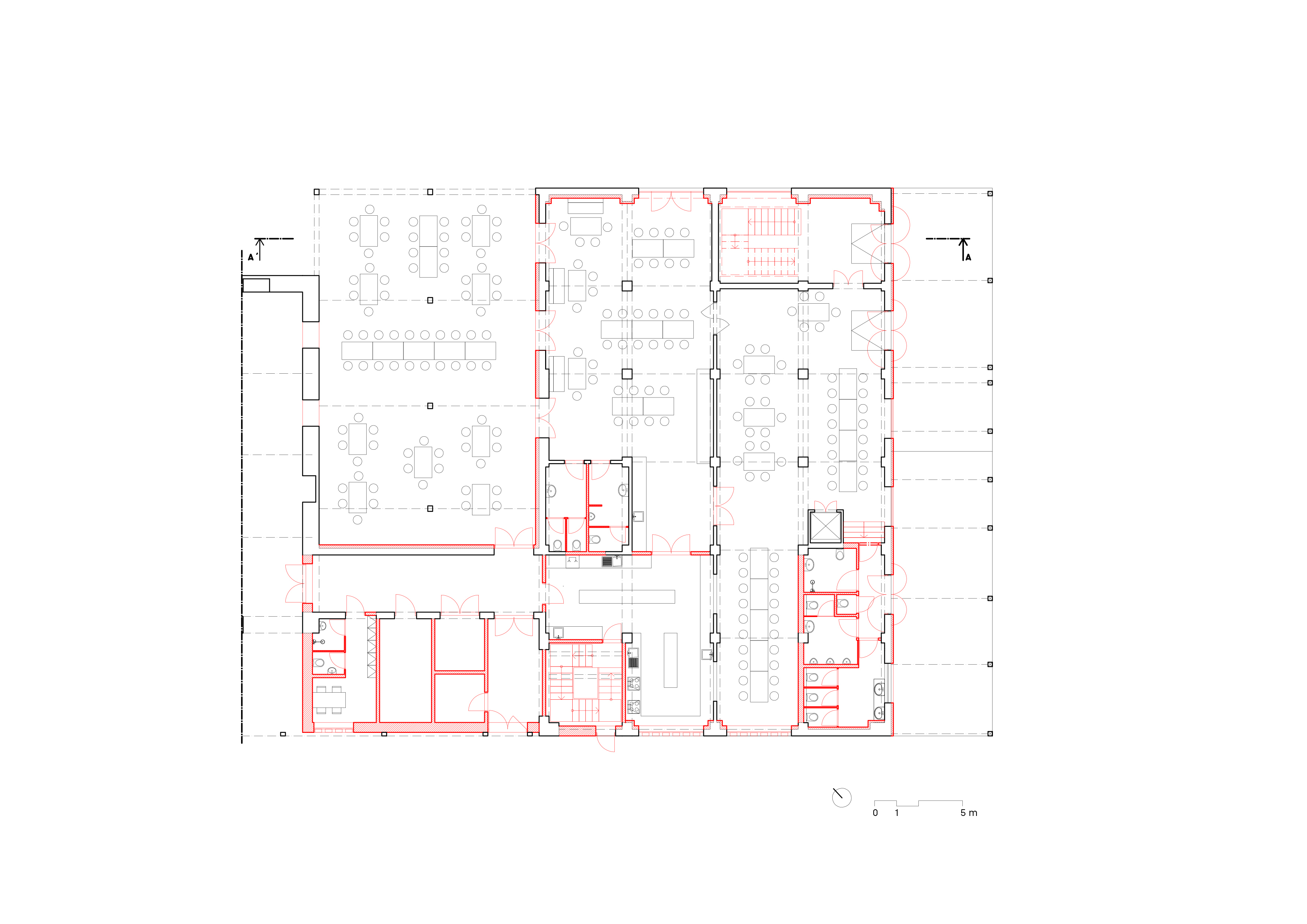
Triediareň - pôdorys 2. NP
Triediareň - pôdorys 2. NPAutor: ORA (originální regionální architektura)
Triediareň - pohľad
Triediareň - pohľadAutor: ORA (originální regionální architektura)
Foto: BoysPlayNice
Foto: BoysPlayNice
Foto: BoysPlayNice
Foto: BoysPlayNice
Foto: BoysPlayNice
Foto: BoysPlayNice
Foto: BoysPlayNice
Foto: BoysPlayNice
Foto: BoysPlayNice
Foto: BoysPlayNice
Foto: BoysPlayNice
Foto: BoysPlayNice
Foto: BoysPlayNice
Foto: BoysPlayNice
Foto: BoysPlayNice
Foto: BoysPlayNice
Foto: BoysPlayNice
Foto: BoysPlayNice
Foto: BoysPlayNice
Foto: BoysPlayNice
Foto: BoysPlayNice
Foto: BoysPlayNice
Foto: BoysPlayNice
Foto: BoysPlayNice

V priestoroch terajšej recepcie v minulosti prebiehalo miešanie hliny. Zastavené miešačky nechávajú autori vo svojich pôvodných pozíciách. Presne tak, ako boli kedysi opustené. Pozdĺž jednej zo stien plynie inštalácia zo sadrových foriem, do ktorých sa odlievali kvetináče.

Foto: BoysPlayNice
Foto: BoysPlayNice
Foto: BoysPlayNice
Foto: BoysPlayNice
Foto: BoysPlayNice
Foto: BoysPlayNice
Foto: BoysPlayNice
Foto: BoysPlayNice
Foto: BoysPlayNice
Foto: BoysPlayNice
Foto: BoysPlayNice
Foto: BoysPlayNice
Foto: BoysPlayNice
Foto: BoysPlayNice
Foto: BoysPlayNice
Foto: BoysPlayNice
Foto: BoysPlayNice
Foto: BoysPlayNice
Foto: BoysPlayNice
Foto: BoysPlayNice
Foto: BoysPlayNice
Foto: BoysPlayNice
Foto: BoysPlayNice
Foto: BoysPlayNice

Materiály:

  • čadičová dlažba
  • cementová dlažba - kúpeľne
  • bobrovka - strecha
  • titánzinkový plech - strecha
  • biele obklady - kúpeľne
  • pavlač z dubového dreva
  • betónová rampa 

Autor: ORA
Podklady: Linka

Fotografie: BoysPlayNice

Poloha diela

MgA. Barbora Hora
Ing. arch. Jan Hora
Ing. arch. Jan Veisser
Ing. arch. Maroš Drobňák

Súvisiace články

Vložené
20. jún 2023
0
1515
Hlavný obsahHlavný obsah
Čakajte prosím