Advertorial

Pozvánka na 2. ročník stavebného veľtrhu BigMarket na Slovensku

Na podujatí sa predstaví až 37 vystavovateľov - popredných dodávateľov stavebných materiálov a inovácií s prezentáciou...

Hotel Hirschen Spa House, Rakúsko

Novotvar v prostredí alpskej obce.

Vytvorte si kúpeľňu snov: dizajnové riešenie od značky hansgrohe

Hansgrohe - prémiová značka kúpeľňových riešení, ponúka nadčasový dizajn, technickú precíznosť a udržateľné inovácie...

Okná Internorm za minuloročné ceny + hliníkový kryt zdarma!

Využite špeciálnu akciu Internorm: okná za minuloročné ceny a hliníkový kryt úplne zadarmo. Ponuka je časovo obmedzená!

Moderné plynové technológie: Efektivita a inovácie pre 21. storočie

Sumarizácia najdôležitejších inovácií, ktoré redefinujúcich využitie tohto energetického zdroja.

Utesňovanie spodných stavieb pomocou hydro-aktívnej fólie AMPHIBIA.

AMPHIBIA 3000 GRIP 1.3 od spoločnosti ATRO predstavuje modernú hydroizolačnú technológiu, ktorá spája vysokú odolnosť,...

Dekarbonizácia individuálneho vykurovania domácností – Green Deal evolučne a nie revolučne

Ambiciózne plány EK narazili na ekonomické možnosti domácností v jednotlivých členských štátoch –...

Minimalistické dvere IDEA – technická precíznosť a čistota prevedenia

IDEA DOOR od spoločnosti JAP prináša do interiéru čistý minimalistický vzhľad vďaka bezrámovému riešeniu a precíznej...

Dom s výhľadom na údolie, Dlouhý Most (ČR)

Kontinuita riešenia od vonkajšieho obkladu až po kovania a kľučky.

Schell Vitus – osvedčené riešenie pre sprchy a umývadlá vo verejnom sektore s viac ako desaťročnou tradíciou

Nástenné nadomietkové armatúry Vitus sú mimoriadne vhodné pre rýchlu a efektívnu...

Kompozitné okná predstavujú súčasnosť a budúcnosť

Okenné profily z kompozitného materiálu RAU-FIPRO X od spoločnosti Rehau sú v porovnaní s tradičnými plastovými profilmi mnohonásobne...

Myotis - stoly 2025

Najnovší sortiment stolov pre zariadenie interiérov...

Priemyselné sklenené priečky Dorsis Digero: svetelné rozhranie pre moderné interiéry

Spojenie moderného dizajnu, funkčnosti a svetla do harmonického architektonického prvku.

Význam prirodzeného svetla pre moderné a flexibilné pracovné prostredie

Kancelárska budova Baumit v slovinskom Trzine prešla premenou na moderné a udržateľné pracovisko. Architekti kládli dôraz...

Konferencia Xella Dialóg predstaví novinky a trendy v stavebníctve

Mottom šiesteho ročníku on-line konferencie odborníkov Xella Dialóg je Efektívny návrh budov 2025+: zmeny a riešenia

Masná 130, Český Krumlov

Apartmán v päťstoročnom dome.
Diela
Red 306.12.2023
28920+46
Masná 130, Český Krumlov
Autori: Ing. arch. Jan Hora, Ing. arch. Jan Veisser, MgA. Barbora Hora, Ing. arch. Klára MačkováInvestor: Petra Hanáková, Radek TechlovskýPodlažná plocha: 80 m²Návrh: 2020 - 2023Realizácia: 2020 - 2023Adresa: Masná 130, Český Krumlov, Česká republikaPublikované: 6. december 2023

Architekti zo znojemského ateliéru ORA majú za sebou viaceré projekty, kde preukázali cit pre prácu s historickým kontextom a pôvodnou stavebnou substanciou. Patria medzi ne mikulovský Štajnhaus, Dom v ruine,, znojemské Vinárstvo Nešetřil, alebo Kocanda Kravsko.

Dnes sa pozrieme na realizáciu v pamiatkovej rezervácii na adrese Masná 130, v Českom Krumlove (v historickom centre mesta na zozname Svetového kultúrneho dedičstva UNESCO).

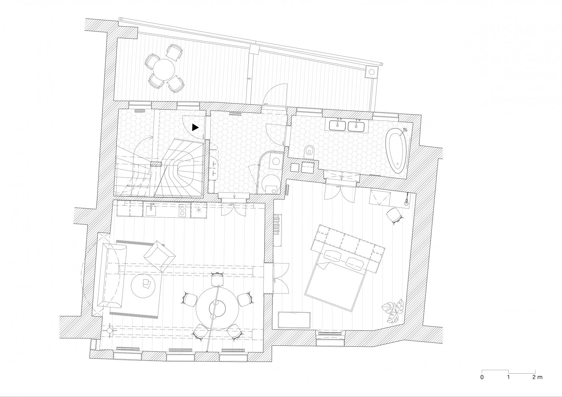
Architekti vbúraním priečky oslobodili pôvodný priestor - salón s vyrezávaným renesančným stropom. Zároveň odhalili sýtokarmínové výmaľby a fragmenty povrchov v spálni.  Jan Hora, Jan Veisser, Barbora Hora a Klára Mačková pristupujú k tvorbe interiéru ako ku koláži motívov. Nábytok tvorí samostatné objekty, ktoré si od dobových konštrukcií držia odstup. Kuchyňa funguje ako sekretár, ktorý ukrýva všetko potrebné. Posteľ spojená so skriňou, stojí uprostred miestnosti a natáča sa k svetlu a k pôvodným výmaľbám...

 

Slovo investora

Masná 130 je více než 500 let starý dům v centru Českého Krumlova. Našel si nás vlastně shodou náhod, když jsme hledali projekt, který by po letech strávených prací pro firmy a instituce byl jenom náš. Dům byl v žalostném stavu, my v něm ale viděli potenciál, tušili jsme, že ta zanedbanost znamená i původní podlahy, dlažby a výmalby. Neměli jsme romantickou představu, že to bude snadné. I tak jsme ale postupně zjišťovali, že vzít si na starost i maličkou památku hraničí s šílenstvím. Dům byl po povodních staticky narušený, nebyl napojený na kanalizaci, střecha byla v havarijním stavu a krov historicky mnohem cennější, než kdokoliv tušil. Za pochodu jsme zjišťovali, co vše bude třeba opravit, učili jsme se domu naslouchat a sami získávali znalosti starých řemesel.

Chtěli jsme zachovat co nejvíce historických prvků, ale zároveň jsme si přáli dům otevřít současnému životu a doplnit historické interiéry něčím, co nás charakterizuje - záliba v současném designu a v minimalistickém stylu. Nechtěli jsme vytvářet historizující "muzejní" interiér, ani showroom designu, přáli jsme si historickou a současnou vrstvu organicky propojit.

Začali jsme přízemím, kde do té doby fungoval bar s dost špatnou pověstí. Během prvních dvou let jsme prostor opravili s cílem ho pronajmout pro kavárnu nebo bistro. Další shodou náhod jsme nakonec kavárnu pod názvem Masná 130 otevřeli sami, i když jsme s provozem podobného podniku neměli zkušenosti. Další patro a podkroví jsme pak začali upravovat pro bydlení. Věděli jsme, že pro udržitelnost projektu bude muset patro sloužit i k pronájmu, ale nechtěli jsme dům dělit na hotelové pokoje. Rozhodli jsme se zachovat prostor celistvý, jak jej obývaly generace před námi a jak bychom ho rádi obývali i my sami.

Koncept Masné jde naproti "pomalému" návštěvníkovi města, který jej nechce jen rychle proběhnout jako historický skanzen. Kavárna v přízemí se za pět let své existence stala živým místem setkávání. Snažíme se budovat místní komunitu, pořádáme v ulici sousedské slavnosti, hledáme možnosti, jak spolupracovat s blízkými podniky i s destinačními organizacemi města. Apartmán považujeme za svůj domov a jen občasně jej nabízíme pronájmu hostům, kteří si spojení historie a současnosti chtějí užít. Hodně přemýšlíme o udržitelnosti a zátěži, kterou overturismus pro město představuje. Hledáme rovnováhu.

 

Slovo architekta

Hned od začátku nám učaroval přístup investorů ke svému domu. Známe to velmi dobře, ten pocit když se zamilujete do starého domu a sžijete se s ním. Také s ním zápasíte a zjišťujete, co by mu bylo milé. Staré domy mají své nálady. I nám naladění domu učarovalo. Zadání bylo vyřešit adaptaci prvního patra domu pro bydlení, v průběhu návrhu pro ubytování. Řešení proto vychází ze životního stylu majitelů.

Stavebně bylo cílem zachovat a odhalit původnost domu. Apartmánu dominuje hlavní obytný prostor, salon s vyřezávaným renesančním stropem. Místnost byla druhotně rozdělená příčkou. Příčku jsme zbourali a osvobodili tím původní prostor v jeho celkovosti. Odhalili jsme původní výmalby, které mají sytě karmínovou barevnost. Určující je zde tmavost povrchů. Trámový strop i výmalby mají temné syté tóny. Tmavé prostory člověka objímají, jeví se blížeji než světlé.

Druhým pokojem je ložnice, kde ponecháváme jen fragment původních výmaleb. Zbytek prostoru uklidňuje krémová výmalba.

Třetím neméně důležitou místností je prostor pro hygienu. Nejsvětlejší prostor z domu. Proto se zde uchylujeme k chladným tónům. Atmosféra salonu doléhá, atmosféra koupelny nadnáší.

K interiéru přistupujeme jako ke koláži motivů. Nábytek vkládáme jako samostatné objekty, které si drží odstup. Kuchyně je jako sekretář, který ukrývá vše potřebné. Postel spojená se skříní, stojí vprostřed místnosti a natáčí se ke světlu a k původním výmalbám. Spáč je směřován k pozorování detailů povrchu. V posteli se nezbytně nutně pouze nespí, taky se zde čte. A to je možné díky lampičkám přímo pro čtení stvořeným.

Většina nábytku je vyrobená na míru z temně mořené březové překližky, mosazné nohy zrcadlí okolí, splývají s ním a ještě podporují separaci objektů. Svítidlo nad stolem, které je vynesené konzolou, aby se nevrtalo do stropu, stůl s integrovanými mísami, mosazné poličky, které vystavují knihy.

Foto: BoysPlayNice
Foto: BoysPlayNice
Foto: BoysPlayNice
Foto: BoysPlayNice
Foto: BoysPlayNice
Foto: BoysPlayNice
Foto: BoysPlayNice
Foto: BoysPlayNice
Foto: BoysPlayNice
Foto: BoysPlayNice
Foto: BoysPlayNice
Foto: BoysPlayNice
Foto: BoysPlayNice
Foto: BoysPlayNice
Foto: BoysPlayNice
Foto: BoysPlayNice
Foto: BoysPlayNice
Foto: BoysPlayNice
Foto: BoysPlayNice
Foto: BoysPlayNice
Foto: BoysPlayNice
Pôdorys - pôvodný stav
Pôdorys - pôvodný stavAutor: ORA (originální regionální architektura)
Pôdorys  - návrh
Pôdorys - návrhAutor: ORA (originální regionální architektura)
Prehĺbenie - kúpeľňa
Prehĺbenie - kúpeľňaAutor: ORA (originální regionální architektura)
Prehĺbenie - stôl
Prehĺbenie - stôlAutor: ORA (originální regionální architektura)

Autor: ORA
Podklady: Linka
Fotografie: BoysPlayNice

Poloha diela

Ing. arch. Jan Hora
Ing. arch. Jan Veisser
MgA. Barbora Hora
Ing. arch. Klára Mačková

Súvisiace články

Vložené
6. december 2023
0
2892
Hlavný obsahHlavný obsah
Čakajte prosím