Advertorial

Hotel Hirschen Spa House, Rakúsko

Novotvar v prostredí alpskej obce.

Vytvorte si kúpeľňu snov: dizajnové riešenie od značky hansgrohe

Hansgrohe - prémiová značka kúpeľňových riešení, ponúka nadčasový dizajn, technickú precíznosť a udržateľné inovácie...

Okná Internorm za minuloročné ceny + hliníkový kryt zdarma!

Využite špeciálnu akciu Internorm: okná za minuloročné ceny a hliníkový kryt úplne zadarmo. Ponuka je časovo obmedzená!

Pozvánka na 2. ročník stavebného veľtrhu BigMarket na Slovensku

Na podujatí sa predstaví až 37 vystavovateľov - popredných dodávateľov stavebných materiálov a inovácií s prezentáciou...

Moderné plynové technológie: Efektivita a inovácie pre 21. storočie

Sumarizácia najdôležitejších inovácií, ktoré redefinujúcich využitie tohto energetického zdroja.

Utesňovanie spodných stavieb pomocou hydro-aktívnej fólie AMPHIBIA.

AMPHIBIA 3000 GRIP 1.3 od spoločnosti ATRO predstavuje modernú hydroizolačnú technológiu, ktorá spája vysokú odolnosť,...

Dekarbonizácia individuálneho vykurovania domácností – Green Deal evolučne a nie revolučne

Ambiciózne plány EK narazili na ekonomické možnosti domácností v jednotlivých členských štátoch –...

Minimalistické dvere IDEA – technická precíznosť a čistota prevedenia

IDEA DOOR od spoločnosti JAP prináša do interiéru čistý minimalistický vzhľad vďaka bezrámovému riešeniu a precíznej...

Dom s výhľadom na údolie, Dlouhý Most (ČR)

Kontinuita riešenia od vonkajšieho obkladu až po kovania a kľučky.

Schell Vitus – osvedčené riešenie pre sprchy a umývadlá vo verejnom sektore s viac ako desaťročnou tradíciou

Nástenné nadomietkové armatúry Vitus sú mimoriadne vhodné pre rýchlu a efektívnu...

Kompozitné okná predstavujú súčasnosť a budúcnosť

Okenné profily z kompozitného materiálu RAU-FIPRO X od spoločnosti Rehau sú v porovnaní s tradičnými plastovými profilmi mnohonásobne...

Myotis - stoly 2025

Najnovší sortiment stolov pre zariadenie interiérov...

Priemyselné sklenené priečky Dorsis Digero: svetelné rozhranie pre moderné interiéry

Spojenie moderného dizajnu, funkčnosti a svetla do harmonického architektonického prvku.

Význam prirodzeného svetla pre moderné a flexibilné pracovné prostredie

Kancelárska budova Baumit v slovinskom Trzine prešla premenou na moderné a udržateľné pracovisko. Architekti kládli dôraz...

Konferencia Xella Dialóg predstaví novinky a trendy v stavebníctve

Mottom šiesteho ročníku on-line konferencie odborníkov Xella Dialóg je Efektívny návrh budov 2025+: zmeny a riešenia

"Bývanie v skrini", Praha - Žižkov

Interiér minimálneho bytu navrhnutý na mieru. Víkendové bývanie pre štvorčlennú rodinu, spanie ukryté vo vstavanom nábytku.
Diela
Red 304.08.2022
19300+37
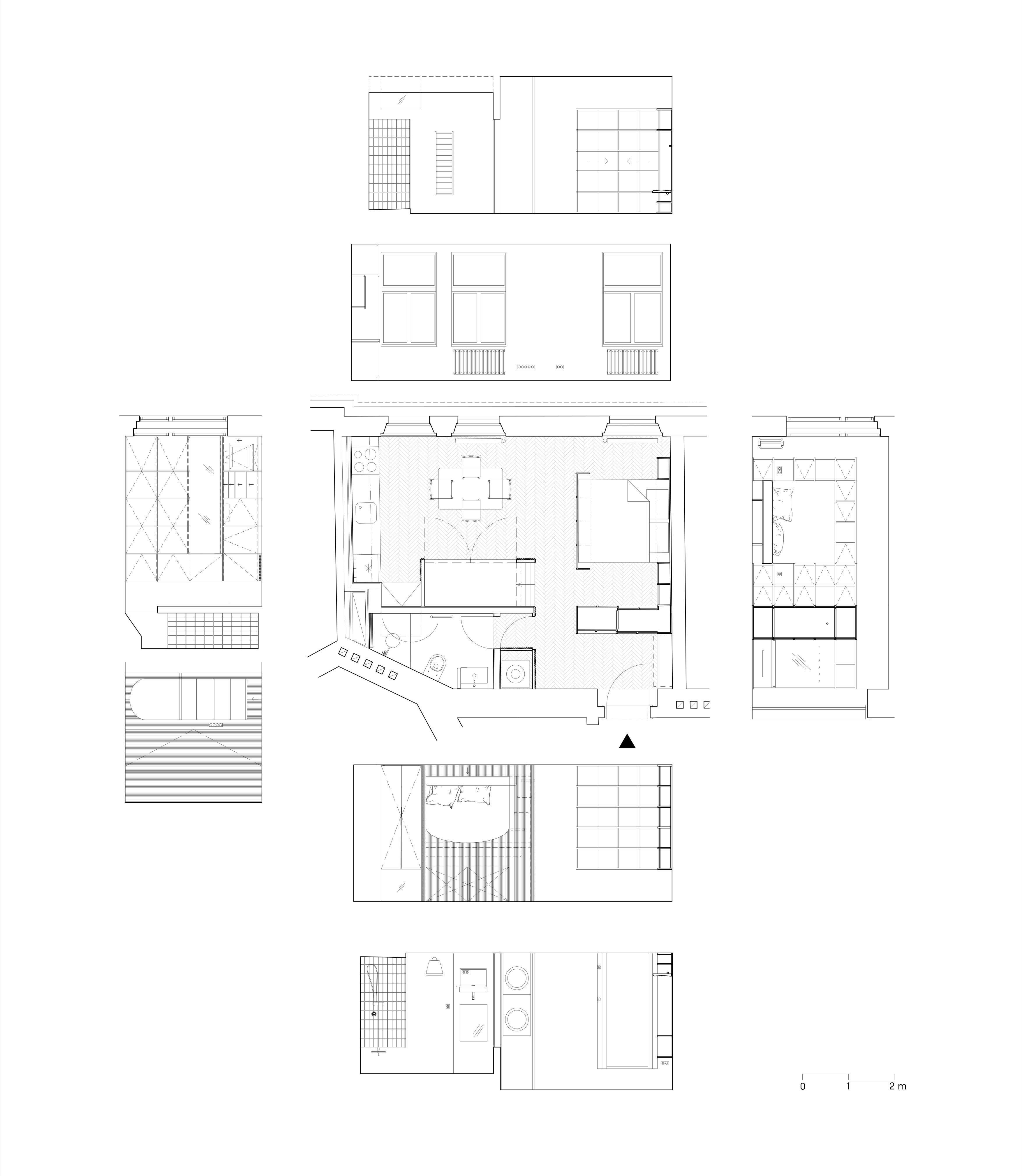
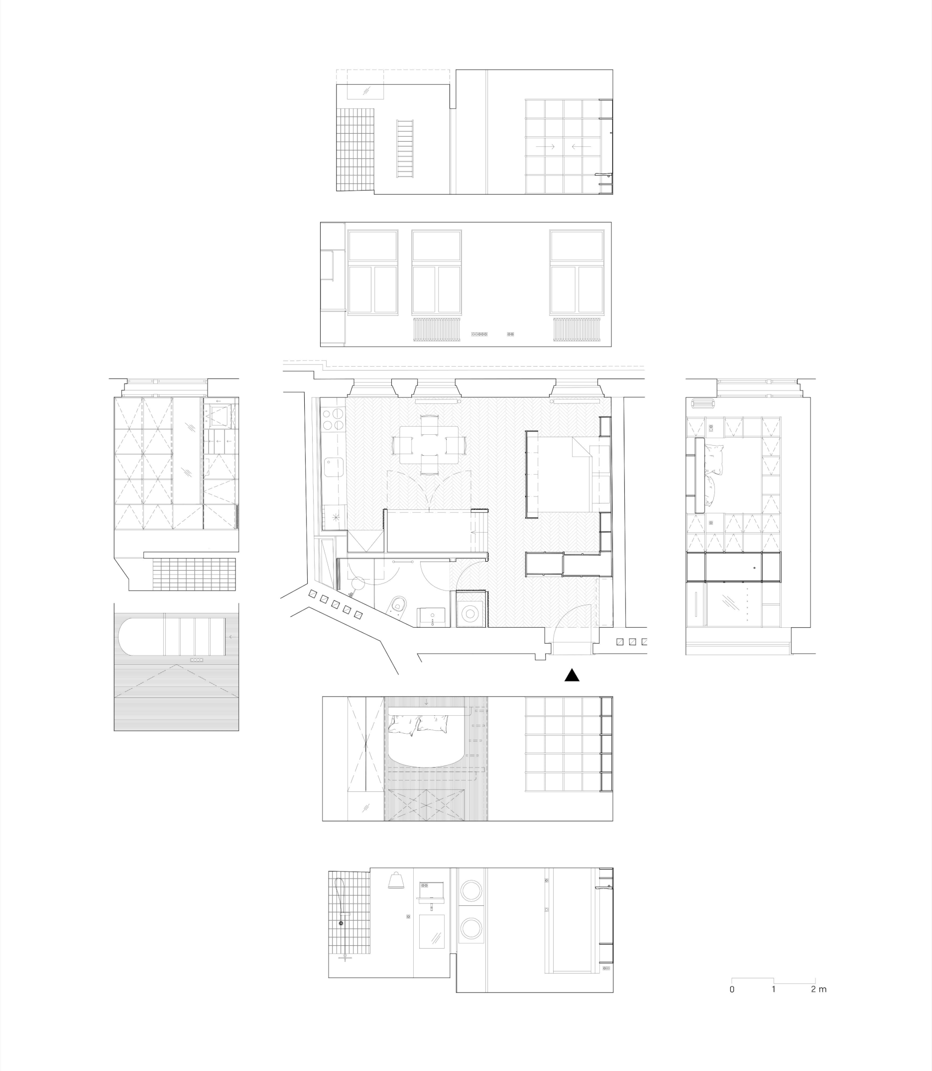
"Bývanie v skrini", Praha - Žižkov
Autori: Ing. arch. Jan Hora, Ing. arch. Jan Veisser, MgA. Barbora HoraSpolupráca: Ing. arch. Barbora Ochotná (spoluautorka)Podlažná plocha: 36 m²Návrh: 2019 - 2020Realizácia: 2022 - 2022Adresa: Praha Žižkov, SlovenskoPublikované: 4. august 2022

Byt, ktorý vznikol rozdelením pôvodnej väčšej jednotky má necelých 37 metrov štvorcových. Na tejto výmere developer pôvodne navrhol dispozíciu 2 + kk, ktorá by sa v praxi takmer nedala zariadiť - pohyb by bol obmedzený iba na úzke priechody medzi nábytkom.

Investori oslovili architektov z ateliéru ORA ešte v procese výstavby, vďaka čomu mali možnosť do dispozície zasiahnuť. Odstránili priečky a a vytvorili garsónku. V pôvodnej forme ostala zachovaná iba kúpeľňa. 

...ako umiestniť štyroch ľudí na 36 m2 ?...

Z disponibilného priestoru bolo treba vyčleniť miesto na spanie. Autori podľa vlastných slov hľadajú inšpiráciu v stredovekých skriňových posteliach. Posteľ rodičov je vsunutá medzi dva regály, čo v rámci možností zaisťuje ich súkromie a zároveň umožňuje využiť maximum priestoru na skladovanie. “Pakliže si chce spáč rozšířit obzor, nebo osvobodit své dlouhé končetiny, vyklopí si dvířka u nohou,” dopĺňajú s nadhľadom autori.

 Spanie detí je situované do poschodového boxu, pričom spodná posteľ v nike cez deň slúži ako gauč. Vrchná posteľ je skrytá za dvierkami. Box je obložený dubovými latami, ktoré postupne prechádzajú aj na stenu oddeľujúcu kúpeľňu. Tá vďaka tomu splýva so vstavaným nábytkom. Vďaka dverám, ktoré dosahujú až k stropu na svoju prítomnosť neupozorňuje.

Interiér zjednocuje prevládajúci materiál - dubový masív a dyha. Rôzne morenia nábytkových prvkov definujú jednotlivé zóny - svetlú kuchyňu, prírodnú obývačku, tmavú nočnú zónu a zázemie bytu. 

Materiály:

  • dubové parkety
  • dubová dyha s rôznym morením
  • dubové laty
  • nerezová doska v kuchyni
  • cementová stierka
  • keramický obklad
Pôdorys
PôdorysAutor: ORA
Axonometria
AxonometriaAutor: ORA
Foto: BoysPlayNice
Foto: BoysPlayNice
Foto: BoysPlayNice
Foto: BoysPlayNice
Foto: BoysPlayNice
Foto: BoysPlayNice
Foto: BoysPlayNice
Foto: BoysPlayNice
Foto: BoysPlayNice
Foto: BoysPlayNice
Foto: BoysPlayNice
Foto: BoysPlayNice
Foto: BoysPlayNice
Foto: BoysPlayNice
Foto: BoysPlayNice
Foto: BoysPlayNice

Autor: ORA
Podklady: Linka
Fotografie: BoysPlayNice

Poloha diela

Ing. arch. Jan Hora
Ing. arch. Jan Veisser
MgA. Barbora Hora

Súvisiace články

Vložené
2. august 2022
0
1930
Hlavný obsahHlavný obsah
Čakajte prosím