Novotvar v prostredí alpskej obce.
Hansgrohe - prémiová značka kúpeľňových riešení, ponúka nadčasový dizajn, technickú precíznosť a udržateľné inovácie...
Využite špeciálnu akciu Internorm: okná za minuloročné ceny a hliníkový kryt úplne zadarmo. Ponuka je časovo obmedzená!
Na podujatí sa predstaví až 37 vystavovateľov - popredných dodávateľov stavebných materiálov a inovácií s prezentáciou...
Sumarizácia najdôležitejších inovácií, ktoré redefinujúcich využitie tohto energetického zdroja.
AMPHIBIA 3000 GRIP 1.3 od spoločnosti ATRO predstavuje modernú hydroizolačnú technológiu, ktorá spája vysokú odolnosť,...
Ambiciózne plány EK narazili na ekonomické možnosti domácností v jednotlivých členských štátoch –...
IDEA DOOR od spoločnosti JAP prináša do interiéru čistý minimalistický vzhľad vďaka bezrámovému riešeniu a precíznej...
Kontinuita riešenia od vonkajšieho obkladu až po kovania a kľučky.
Nástenné nadomietkové armatúry Vitus sú mimoriadne vhodné pre rýchlu a efektívnu...
Okenné profily z kompozitného materiálu RAU-FIPRO X od spoločnosti Rehau sú v porovnaní s tradičnými plastovými profilmi mnohonásobne...
Najnovší sortiment stolov pre zariadenie interiérov...
Spojenie moderného dizajnu, funkčnosti a svetla do harmonického architektonického prvku.
Kancelárska budova Baumit v slovinskom Trzine prešla premenou na moderné a udržateľné pracovisko. Architekti kládli dôraz...
Mottom šiesteho ročníku on-line konferencie odborníkov Xella Dialóg je Efektívny návrh budov 2025+: zmeny a riešenia

Realizácia ateliéru Studio OBJEKTOR nominovaná v aktuálnom ročníku Českej ceny za architektúru.
Začiatkom roku 2017 vyhlásila mestská časť Praha-Suchdol súťaž na architektonicko-krajinársky návrhu vymedzenia verejného priestoru s novým cintorínom a sadom v okolí kaplnky sv. Václava, v prírodnej rezervácii Údolí Únětického potoka. Na jeseň boli známe výsledky. Zvíťazil pražský kolektív Studio OBJEKTOR. Návrh, ktorý obsadil 1. miesto, podľa slov poroty "citlivě reaguje na krajinnou situaci i širší urbanistické vazby a uměřeným způsobem je akcentuje a zhodnocuje."
Pozn. red.: Viaceré príklady "architektúry smútku", vrátane cintorína, koncipovaného ako verejný park, alebo miesta poslednej rozlúčky, ktorého podoba vzišla z architektonickej súťaže nájdete medzi súvisiacimi článkami v závere príspevku. Podobné zadanie ako v Suchdole riešili súťažiaci pred dvomi rokmi v Brezne. Na výsledok si však ešte musíme počkať.
Aktuálnu pražskú realizáciu predstavíme prostredníctvom sprievodného textu autorov:
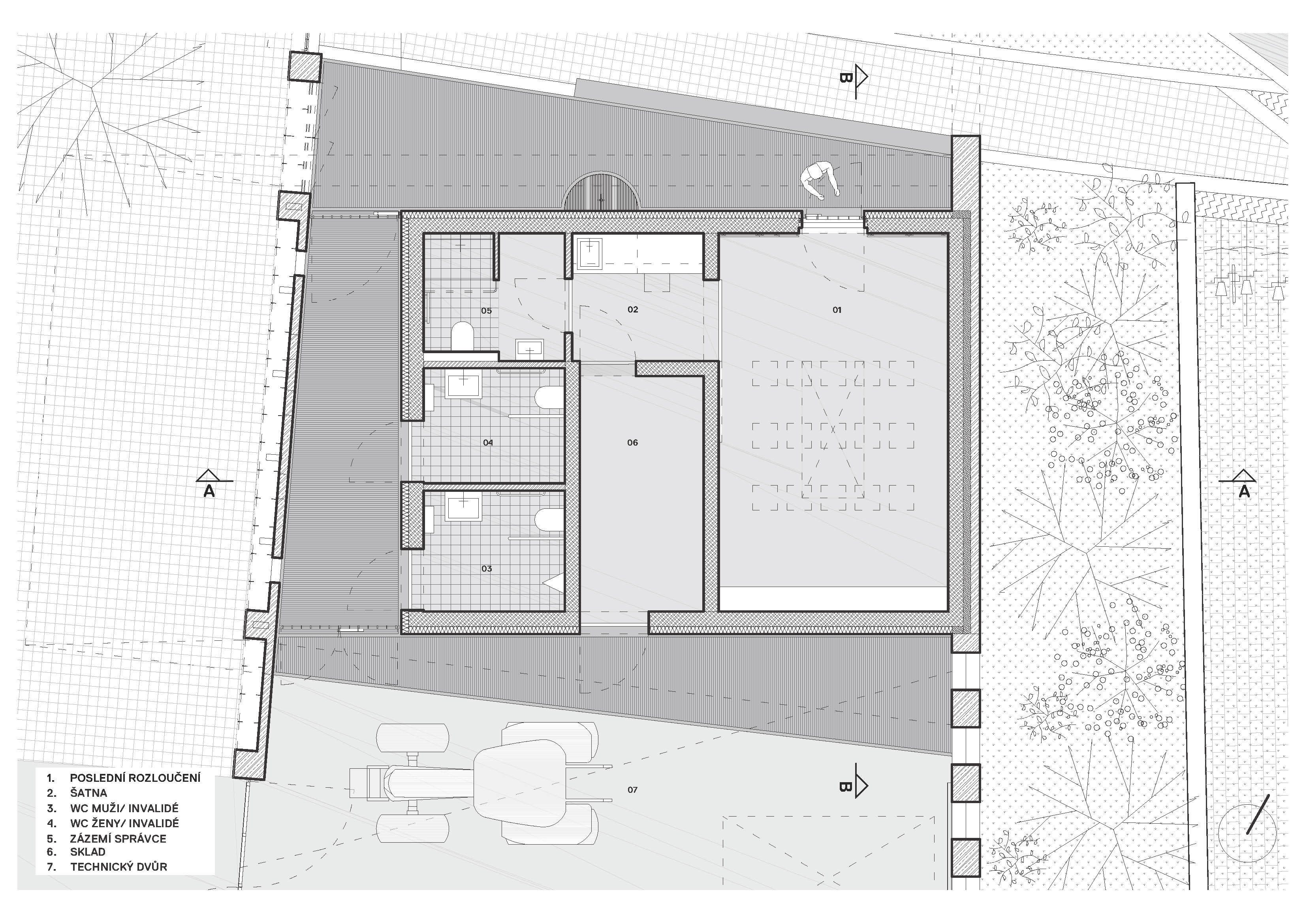
Vítězný soutěžní návrh nového hřbitova se odvíjí od stávajících kvalit území - korun vzrostlých stromů, horizonty polního lánu, ohradní zdi, kaple sv. Václava a hlavní osy stezky s alejí pokračující k výhledu z Kozích hřbetů. Definujeme areál pomocí struktur, principů a materiálů. Rozdělení území pomocí systémové mřížky hřbitovních zdí a cest umožňuje snazší přizpůsobování růstu hřbitova aktuálním kapacitním požadavkům při zachování konceptu celku. Stávající krajinu regulujeme a necháváme jí prostor pro přirozený vývoj v čase. U vstupu vzniká novostavba zázemí správce hřbitova s veřejným WC a parkováním. Kapli sv. Václava otevíráme všem příchozím jako úkryt před okolním světem. Lesní porost za kaplí vyhrazujeme pro alternativní způsoby pohřbívání a rozptyl na loučce.
Horizontalita, destigmatizace hřbitovního místa, zrušení klasické hřbitovní zdi, průhledy, plynulé napojení areálu hřbitova do volné krajiny - to jsou hlavní témata nově vzniklého veřejného prostoru.
Součástí návrhu je vytvoření grafického manuálu náhrobních desek a orientačního systému.
Autor: Studio OBJEKTOR
Foto: PKučera Photography