Advertorial

Pozvánka na 2. ročník stavebného veľtrhu BigMarket na Slovensku

Na podujatí sa predstaví až 37 vystavovateľov - popredných dodávateľov stavebných materiálov a inovácií s prezentáciou...

Hotel Hirschen Spa House, Rakúsko

Novotvar v prostredí alpskej obce.

Vytvorte si kúpeľňu snov: dizajnové riešenie od značky hansgrohe

Hansgrohe - prémiová značka kúpeľňových riešení, ponúka nadčasový dizajn, technickú precíznosť a udržateľné inovácie...

Okná Internorm za minuloročné ceny + hliníkový kryt zdarma!

Využite špeciálnu akciu Internorm: okná za minuloročné ceny a hliníkový kryt úplne zadarmo. Ponuka je časovo obmedzená!

Moderné plynové technológie: Efektivita a inovácie pre 21. storočie

Sumarizácia najdôležitejších inovácií, ktoré redefinujúcich využitie tohto energetického zdroja.

Utesňovanie spodných stavieb pomocou hydro-aktívnej fólie AMPHIBIA.

AMPHIBIA 3000 GRIP 1.3 od spoločnosti ATRO predstavuje modernú hydroizolačnú technológiu, ktorá spája vysokú odolnosť,...

Dekarbonizácia individuálneho vykurovania domácností – Green Deal evolučne a nie revolučne

Ambiciózne plány EK narazili na ekonomické možnosti domácností v jednotlivých členských štátoch –...

Minimalistické dvere IDEA – technická precíznosť a čistota prevedenia

IDEA DOOR od spoločnosti JAP prináša do interiéru čistý minimalistický vzhľad vďaka bezrámovému riešeniu a precíznej...

Dom s výhľadom na údolie, Dlouhý Most (ČR)

Kontinuita riešenia od vonkajšieho obkladu až po kovania a kľučky.

Schell Vitus – osvedčené riešenie pre sprchy a umývadlá vo verejnom sektore s viac ako desaťročnou tradíciou

Nástenné nadomietkové armatúry Vitus sú mimoriadne vhodné pre rýchlu a efektívnu...

Kompozitné okná predstavujú súčasnosť a budúcnosť

Okenné profily z kompozitného materiálu RAU-FIPRO X od spoločnosti Rehau sú v porovnaní s tradičnými plastovými profilmi mnohonásobne...

Myotis - stoly 2025

Najnovší sortiment stolov pre zariadenie interiérov...

Priemyselné sklenené priečky Dorsis Digero: svetelné rozhranie pre moderné interiéry

Spojenie moderného dizajnu, funkčnosti a svetla do harmonického architektonického prvku.

Význam prirodzeného svetla pre moderné a flexibilné pracovné prostredie

Kancelárska budova Baumit v slovinskom Trzine prešla premenou na moderné a udržateľné pracovisko. Architekti kládli dôraz...

Konferencia Xella Dialóg predstaví novinky a trendy v stavebníctve

Mottom šiesteho ročníku on-line konferencie odborníkov Xella Dialóg je Efektívny návrh budov 2025+: zmeny a riešenia

Rodinný dom zo storočného humna, Veličná

Citlivá konverzia, s dôrazom na zachovanie pôvodnej identity objektu.
Diela
Red 301.07.2021
202100+167
Rodinný dom zo storočného humna, Veličná
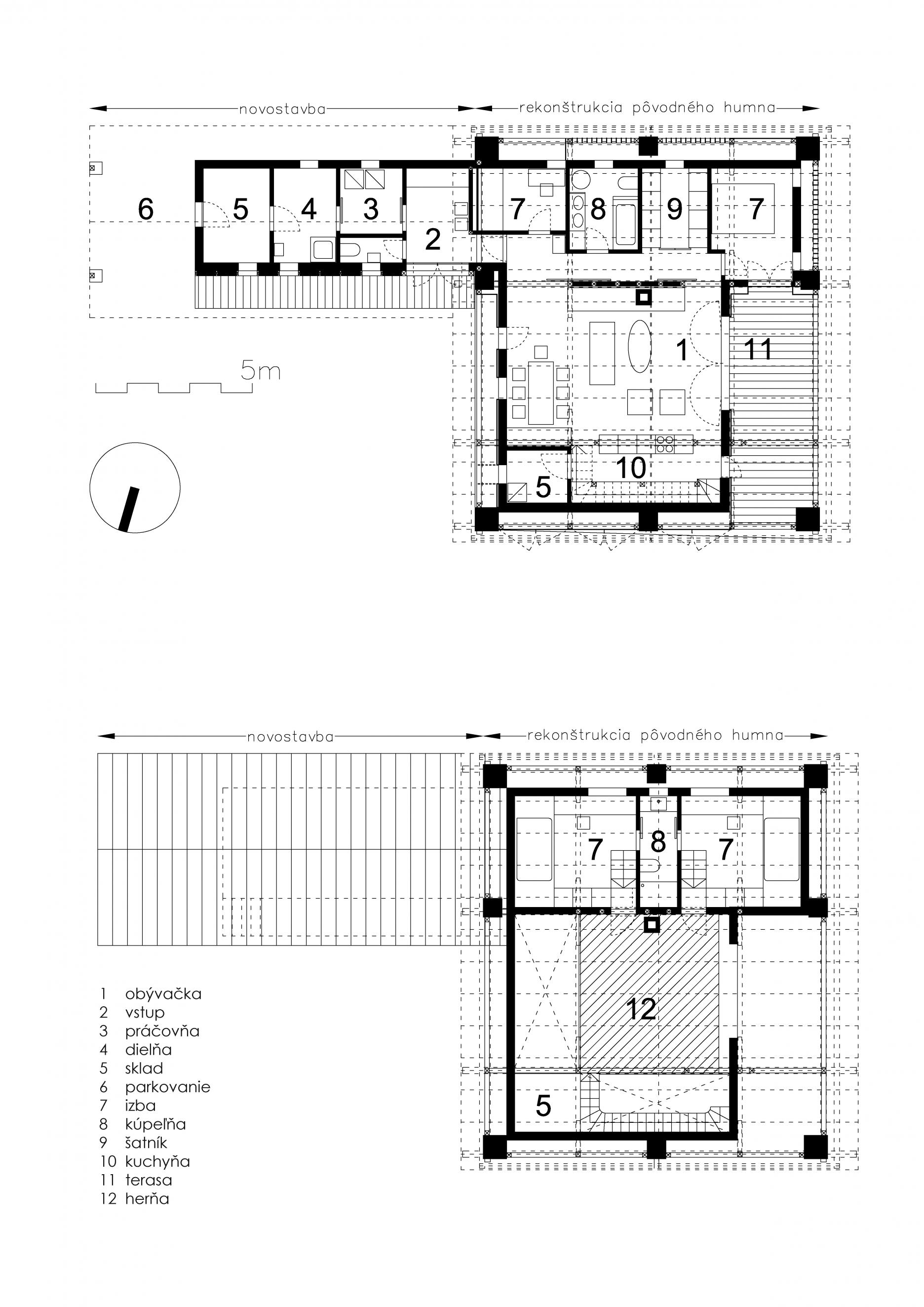
Autori: Ing.arch. Eliška Turanská, Ing. Margaréta ŠuvadováPlocha pozemku: 4752 m2Zastavaná plocha: 126,3 m2Podlažná plocha: 191 m2Obostavaný objem: 764 m3Návrh: 2016 - 2017Realizácia: 2017 - 2021Adresa: Veličná, SlovenskoPublikované: 1. júl 2021

Realizácia využíva obálku pôvodnej hospodárskej stavby. Otvorený obytný priestor vymedzujú nové vstavané konštrukcie. Originálne prvky storočnej stavby zostávajú zachované, pričom kvalita vnútorného prostredia sa blíži novostavbe. Konverzia humna vo Veličnej patrí medzi stále ojedinelé príklady využitia podobných objektov.

Humno, spoločne s ďalšími hospodárskymi stavbami je dedičstvom investora na rozľahlom rovinatom pozemku uprostred obce Veličná. Konverzia stavby, pre bývanie jeho rodiny, mala v čo najväčšej miere zachovať pozostalosť a zároveň výrazne neukrojiť zo štandardov moderného bývania. Dôležitý bol pre neho aj materiálový súlad s pôvodnou stavbou, preto padlo rozhodnutie využiť pri rekonštrukcii výlučne prírodné stavebné materiály.

Situácia
Situácia

“Hoci bolo humno v zachovalom stave, pre uchovanie jeho pôvodného vzhľadu sme pristúpili ku novostavbe ako statickému novotvaru, vsadenému do stodoly na vlastných základoch. Z humna sa stal jej obal,” vysvetľuje architektka Eliška Turanská

Pôvodná hospodárska stavba vo vedľajšom krídle musela byť asanovaná. Materiál však našiel uplatnenie pri výstavbe.

Drevený obklad humna ostal v niektorých častiach zachovaý v pôvodnej pozícii, inde bol prenesený smerom dovnútra a stal sa fasádou novej vostavby. V miestach s väčším ustúpením vznikla krytá terasa. 

Pôvodnú storočnú krytinu dopĺňajú pracne získané kusy starých sklenených škridiel. Denné svetlo sa do interiéru vniká cez vysoké presklenie a priesvitné fasády, ktoré vznikli perforáciou dreveného obkladu, alebo natočením obkladových dosiek.

Priestorové riešenie definuje pôvodná stavba humna. Nielen vonkajším obalom, ale aj konštrukčnými prvkami, ktoré cez objekt prechádzajú. “Neodstránili sme ani jeden pôvodný prvok. Nerealizovali sme tiež žiadnu výmenu. Zvolený prístup determinoval svetlú výšku v centrálnom priestore a netypické radenie priestorov,” dopĺňa architektka.

Pôdorysy
Pôdorysy
Rez
Rez
Rez
Rez

Fotografie pôvodného stavu:

Z procesu rekonštrukcie:

Poloha diela

Ing.arch. Eliška Turanská
Ing. Margaréta Šuvadová

Súvisiace články

Vložené
30. jún 2021
0
20210
Hlavný obsahHlavný obsah
Čakajte prosím