Advertorial

Pozvánka na 2. ročník stavebného veľtrhu BigMarket na Slovensku

Na podujatí sa predstaví až 37 vystavovateľov - popredných dodávateľov stavebných materiálov a inovácií s prezentáciou...

Hotel Hirschen Spa House, Rakúsko

Novotvar v prostredí alpskej obce.

Vytvorte si kúpeľňu snov: dizajnové riešenie od značky hansgrohe

Hansgrohe - prémiová značka kúpeľňových riešení, ponúka nadčasový dizajn, technickú precíznosť a udržateľné inovácie...

Okná Internorm za minuloročné ceny + hliníkový kryt zdarma!

Využite špeciálnu akciu Internorm: okná za minuloročné ceny a hliníkový kryt úplne zadarmo. Ponuka je časovo obmedzená!

Moderné plynové technológie: Efektivita a inovácie pre 21. storočie

Sumarizácia najdôležitejších inovácií, ktoré redefinujúcich využitie tohto energetického zdroja.

Utesňovanie spodných stavieb pomocou hydro-aktívnej fólie AMPHIBIA.

AMPHIBIA 3000 GRIP 1.3 od spoločnosti ATRO predstavuje modernú hydroizolačnú technológiu, ktorá spája vysokú odolnosť,...

Dekarbonizácia individuálneho vykurovania domácností – Green Deal evolučne a nie revolučne

Ambiciózne plány EK narazili na ekonomické možnosti domácností v jednotlivých členských štátoch –...

Minimalistické dvere IDEA – technická precíznosť a čistota prevedenia

IDEA DOOR od spoločnosti JAP prináša do interiéru čistý minimalistický vzhľad vďaka bezrámovému riešeniu a precíznej...

Dom s výhľadom na údolie, Dlouhý Most (ČR)

Kontinuita riešenia od vonkajšieho obkladu až po kovania a kľučky.

Schell Vitus – osvedčené riešenie pre sprchy a umývadlá vo verejnom sektore s viac ako desaťročnou tradíciou

Nástenné nadomietkové armatúry Vitus sú mimoriadne vhodné pre rýchlu a efektívnu...

Kompozitné okná predstavujú súčasnosť a budúcnosť

Okenné profily z kompozitného materiálu RAU-FIPRO X od spoločnosti Rehau sú v porovnaní s tradičnými plastovými profilmi mnohonásobne...

Myotis - stoly 2025

Najnovší sortiment stolov pre zariadenie interiérov...

Priemyselné sklenené priečky Dorsis Digero: svetelné rozhranie pre moderné interiéry

Spojenie moderného dizajnu, funkčnosti a svetla do harmonického architektonického prvku.

Význam prirodzeného svetla pre moderné a flexibilné pracovné prostredie

Kancelárska budova Baumit v slovinskom Trzine prešla premenou na moderné a udržateľné pracovisko. Architekti kládli dôraz...

Konferencia Xella Dialóg predstaví novinky a trendy v stavebníctve

Mottom šiesteho ročníku on-line konferencie odborníkov Xella Dialóg je Efektívny návrh budov 2025+: zmeny a riešenia

Dom sklárskeho majstra, České Milovy

Pocta dedičstvu sklárskej výroby na Vysočine.
Diela
Red 327.01.2024
11170+32
Dom sklárskeho majstra, České Milovy
Autori: Ing. arch. Aleš Papp, Ing. arch. Magdaléna PappováSpolupráca: Ing. arch. Ondřej Zavřel, Ing. arch. Filip KándlZastavaná plocha: 427 m2Návrh: 2010 - 2011Realizácia: 2010 - 2022Adresa: České Milovy 32, Křižánky - České Milovy, Česká republikaPublikované: 27. január 2024

V roku 1835 vyrástla na okraji lesa pod skalnými útvarmi Čtyři palice milovská sklárska huta. Práca miestnych sklárov sa čoskoro preslávila a milovské sklo putovalo do Európy aj do zámoria. Okolo sklárskej výroby postupne vznikla celá nová osada. Koncom 19 storočia však huta aj kvôli svojej polohe mimo železnice nedokázala konkurovať severočeským podnikom. V roku 1886 zatvorila svoje brány a do dnešných dní sa zachoval iba murovaný dom sklárskeho majstra. Do jeho obnovy sa pred štrnástimi rokmi pustil pražský ateliér CUBOID ARCHITEKTI.

Návrh architektov Aleša Pappa a Magdaleny Pappovej vychádza zo zachovaných dobových plánov. Podľa nich obnovili symetrickú kompozíciu stavby, postupovali pri stvárnení fasád a doplnili zaniknutú zvoničku. Do obnovy všetkých zachovaných prvkov sa pustili miestni remeselníci. “Díky velkorysosti klienta jsme měli možnost vytvořit komplexní architektonické dílo, od sanace stavby, až po detailní návrh jednotlivých prvků jejího interieru. Budova tak byla přestavěna na pohodlné obytné stavení, a protože její majitel je sběratel užitného skla, součástí stavby bude v blízké budoucnosti i veřejná galerie jeho sbírky,” vysvetľujú architekti.

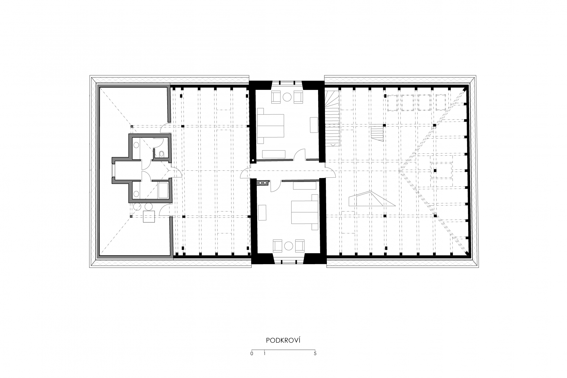
Vstupná hala na prízemí rozdeľuje dispozíciu na dve časti. Východná časť domu je obytná, s obývacou izbou, priestrannou kuchyňou, saunou, spálňou a hygienickým a prevádzkovým zázemím. Západný, pôvodne hospodársky trakt, dnes slúži ako galéria sklárskych výrobkov a vináreň. Podkrovie obsahuje dva apartmány a priestor pre organizovanie spoločenských akcií. V klenutej pivnici nájdeme sklad a archív vína. Stavba je vykurovaná tepelným čerpadlom, napojeným na geotermálne vrty.

Foto: Lukáš Žentel
Foto: Lukáš Žentel
Foto: Lukáš Žentel
Foto: Lukáš Žentel
Foto: Lukáš Žentel
Foto: Lukáš Žentel
Foto: Lukáš Žentel
Foto: Lukáš Žentel
Foto: Lukáš Žentel
Situácia
SituáciaAutor: CUBOID ARCHITEKTI
Pôdorys suterénu
Pôdorys suterénuAutor: CUBOID ARCHITEKTI
Pôdorys prízemia
Pôdorys prízemiaAutor: CUBOID ARCHITEKTI
Pôdorys podkrovia
Pôdorys podkroviaAutor: CUBOID ARCHITEKTI
Pozdĺžny rez
Pozdĺžny rezAutor: CUBOID ARCHITEKTI
Priečny rez
Priečny rezAutor: CUBOID ARCHITEKTI
Západná fasáda
Západná fasádaAutor: CUBOID ARCHITEKTI
Severná fasáda
Severná fasádaAutor: CUBOID ARCHITEKTI
Východná fasáda
Východná fasádaAutor: CUBOID ARCHITEKTI
Južná fasáda
Južná fasádaAutor: CUBOID ARCHITEKTI
Foto: Lukáš Žentel
Foto: Lukáš Žentel
Foto: Lukáš Žentel
Foto: Lukáš Žentel
Foto: Lukáš Žentel
Foto: Lukáš Žentel
Foto: Lukáš Žentel
Foto: Lukáš Žentel
Foto: Lukáš Žentel
Foto: Lukáš Žentel
Foto: Lukáš Žentel
Foto: Lukáš Žentel
Foto: Lukáš Žentel
Dobová výkresová dokumentácia
Dobová výkresová dokumentácia

Podklady: CUBOID ARCHITEKTI
Fotografie: Lukáš Žentel

Poloha diela

Ing. arch. Aleš Papp
Ing. arch. Magdaléna Pappová
Vložené
24. január 2024
0
1117
Hlavný obsahHlavný obsah
Čakajte prosím