Na podujatí sa predstaví až 37 vystavovateľov - popredných dodávateľov stavebných materiálov a inovácií s prezentáciou...
Novotvar v prostredí alpskej obce.
Hansgrohe - prémiová značka kúpeľňových riešení, ponúka nadčasový dizajn, technickú precíznosť a udržateľné inovácie...
Využite špeciálnu akciu Internorm: okná za minuloročné ceny a hliníkový kryt úplne zadarmo. Ponuka je časovo obmedzená!
Sumarizácia najdôležitejších inovácií, ktoré redefinujúcich využitie tohto energetického zdroja.
AMPHIBIA 3000 GRIP 1.3 od spoločnosti ATRO predstavuje modernú hydroizolačnú technológiu, ktorá spája vysokú odolnosť,...
Ambiciózne plány EK narazili na ekonomické možnosti domácností v jednotlivých členských štátoch –...
IDEA DOOR od spoločnosti JAP prináša do interiéru čistý minimalistický vzhľad vďaka bezrámovému riešeniu a precíznej...
Kontinuita riešenia od vonkajšieho obkladu až po kovania a kľučky.
Nástenné nadomietkové armatúry Vitus sú mimoriadne vhodné pre rýchlu a efektívnu...
Okenné profily z kompozitného materiálu RAU-FIPRO X od spoločnosti Rehau sú v porovnaní s tradičnými plastovými profilmi mnohonásobne...
Najnovší sortiment stolov pre zariadenie interiérov...
Spojenie moderného dizajnu, funkčnosti a svetla do harmonického architektonického prvku.
Kancelárska budova Baumit v slovinskom Trzine prešla premenou na moderné a udržateľné pracovisko. Architekti kládli dôraz...
Mottom šiesteho ročníku on-line konferencie odborníkov Xella Dialóg je Efektívny návrh budov 2025+: zmeny a riešenia

Ucelené dielo s mnohými vrstvami formoval spletitý príbeh rekonštrukcie. Výsledkom je úplne nová, svojbytná podoba letohrádku. Proces trvajúci 11 rokov viedol k vykryštalizovaniu súčasnej podoby.
Historický stavebný základ dopĺňa nová autorská vrstva s množstvom detailov...
Tie sú v niektorých prípadoch zámerne nadsadené a nadväzujú na hravý až divadelný charakter pôvodného letohrádku.
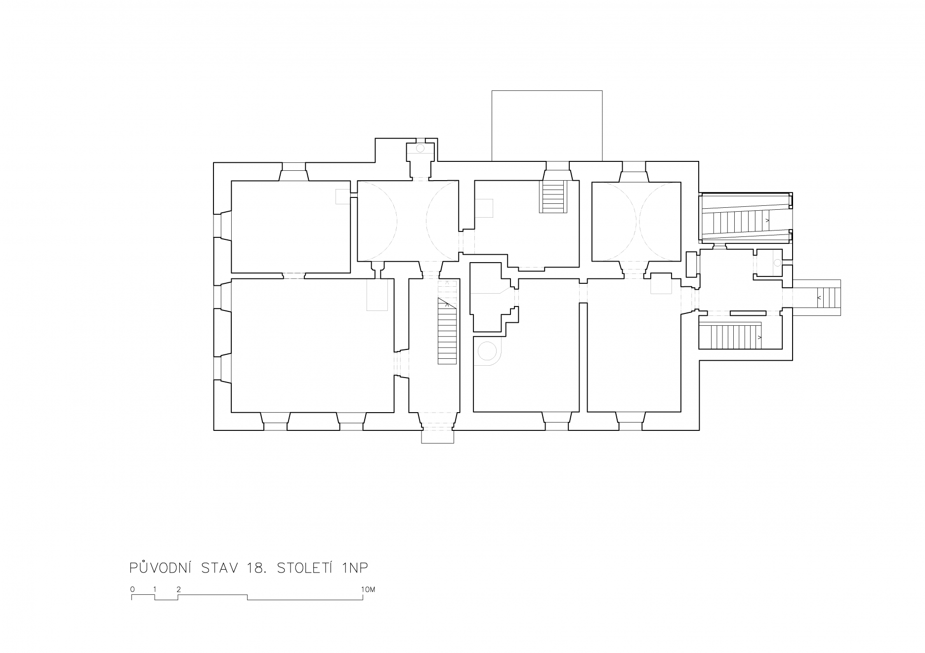
História letohrádku
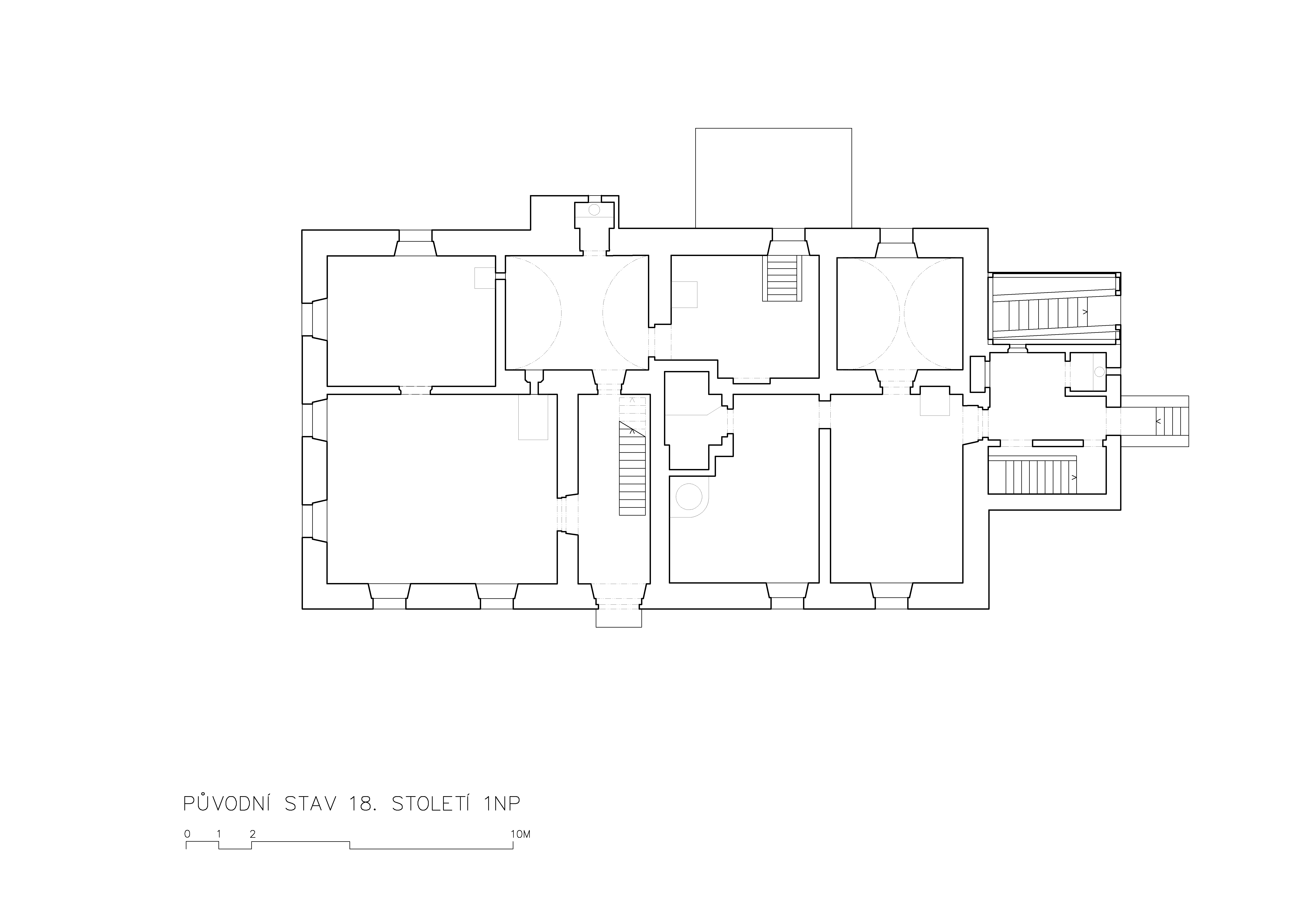
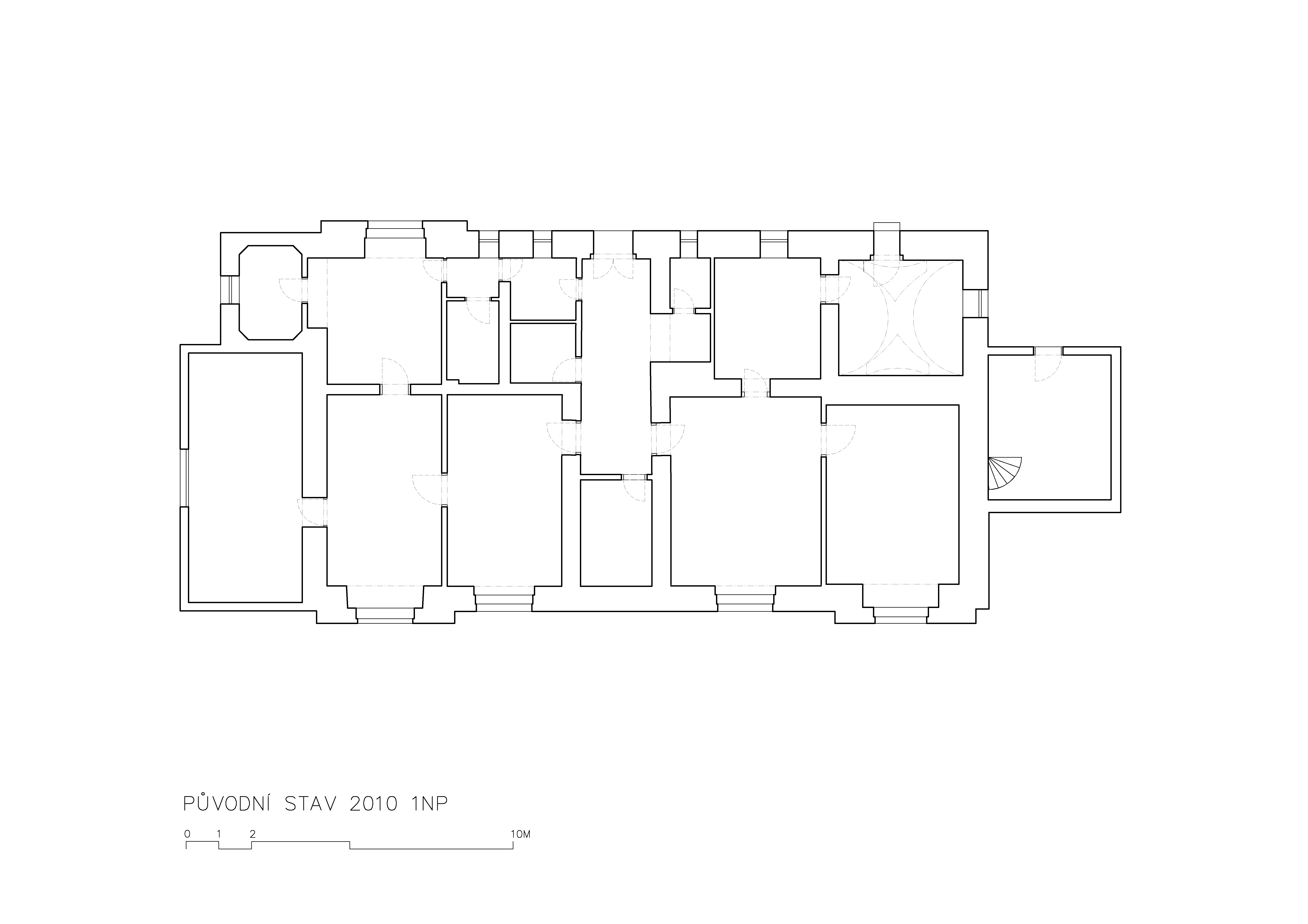
Bývalý letohrádok patriaci v minulosti rodu Buqoyovcov má bohatú stavebnú históriu. Pôvodne barokový záhradníkov domček najprv prestavali v neogotickom štýle na tzv. cottage s členitou strechou ozdobenou dominantnými iluzívnymi komínmi. Tá svojim majiteľom slúžila ako miesto meditácie a odpočinku, v spojení s krásnou prírodou novozaloženého anglického parku zvaného Bažantnice. V tejto podobe sa objekt zachoval až do roku 1948, kedy prešiel pod správu zoštátnených lesov a stal sa obydlím pre jej zamestnancov. Vtedy došlo k výmene celej strechy, zmene dispozičného riešenia budovy i fasády. Dom úplne stratil svoj charakteristický vonkajší vzhľad. Pred rokom 2010, kedy ho kúpil architektov mladší brat, bol objekt nejaký čas neobývaný a chátral.
Realizačný zámer
Investor požadoval kvalitné bývanie a zároveň obdivoval niekdajšieu expresívnu neogotickú podobu stavby. Práce započaly pátraním v archívoch, rešeršami podobných historických stavieb a odhaľovaním zachovaných pôvodných vrstiev a detailov priamo na stavbe. Výsledkom tohto procesu bol projekt čo najvernejšej obnovy neogotického exteriéru. Ten dopĺňal interiér prispôsobený súdobým nárokom na bývanie. Krátko po začatí hrubej stavby však investor od celého zámeru ustúpil a rozhodol sa objekt predať.
Nasledovalo však príjemné prekvapenie. Investor sa po nejakom čase rozhodol k projektu vrátiť. Pre prílišnú finančnú náročnosť sa však rozhodol opustiť koncept vonkajšej repliky historickej stavby. Projekt sa tak vrátil na začiatok. Nadviazal však na niektoré už zrealizované časti hrubej stavby, napríklad posunuté časti vnútorných nosných stien alebo doplnenie čelných rizalitov malými prístavkami. Zásadnú finančnú úsporu prinieslo rozhodnutie zachovať krov z roku 1948. To znamenalo nutnosť akceptovať podobu domu, ktorej dominuje mohutná a len málo členitá strecha. A práve tá - s citlivo navrhnutými detailmi komínov a vikierov - bola podstatou prapôvodnej barokovej tváre stavby. Postupné obrábanie historických vrstiev domu, spoločne s prísadou spletitého príbehu rekonštrukcie a investorových prianí a plánov, dalo vzniknúť úplne novej svojbytnej podobe letohrádku. Podobe, ktorá všetko integruje do jedného homogénneho celku.
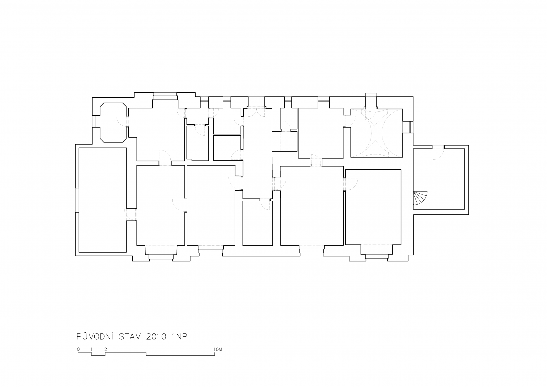
Hľadanie symbiózy starého s novým
Strechu kaštieľa pokrýva drevený šindeľ, odkazujúci na jeho najstaršiu históriu. Nový lunetový vikier a masívny komín so subtílnou hlavicou dotvárajú vo vzájomnej kompozícii záhradné priečelie. Neogotickú ornamentálnosť pripomínajú tieniace drevené žalúzie s predsadeným krytom a vodiacimi lištami. Vstupná aj záhradná fasáda sú po novom pojaté ako rovnocenné a reprezentatívne. Jednotné francúzske okná, vedúce do záhrady, dodávajú na tejto strane fasády potrebný rád a umocňujú prepojenie interiéru s okolím domu. To potvrdzuje aj obnovenie všetkých troch vstupov do domu - prevádzkového k technickej miestnosti, hlavného v čelnej fasáde a doplnkového vedúceho priamo zo salónu do malého zákutia záhrady.
Riešenie priľahlého pozemku je postavené na protiklade medzi upravenou záhradou na vyvýšenej rovine a divokou vegetáciou lužného lesa s pôvodným močiarnym meandrom riečky Stropnice. Rozhranie tvorí zalamovaný oporný múr zakončený altánkom a umelý pahorok s ovocným sadom. Reprezentatívnej hornej záhrade dominanuje priehľadová os, vedúca medzi pahorkom a kúpacím jazierkom. Tá pokračuje až k starému dubu, rastúcemu na susednom pozemku.
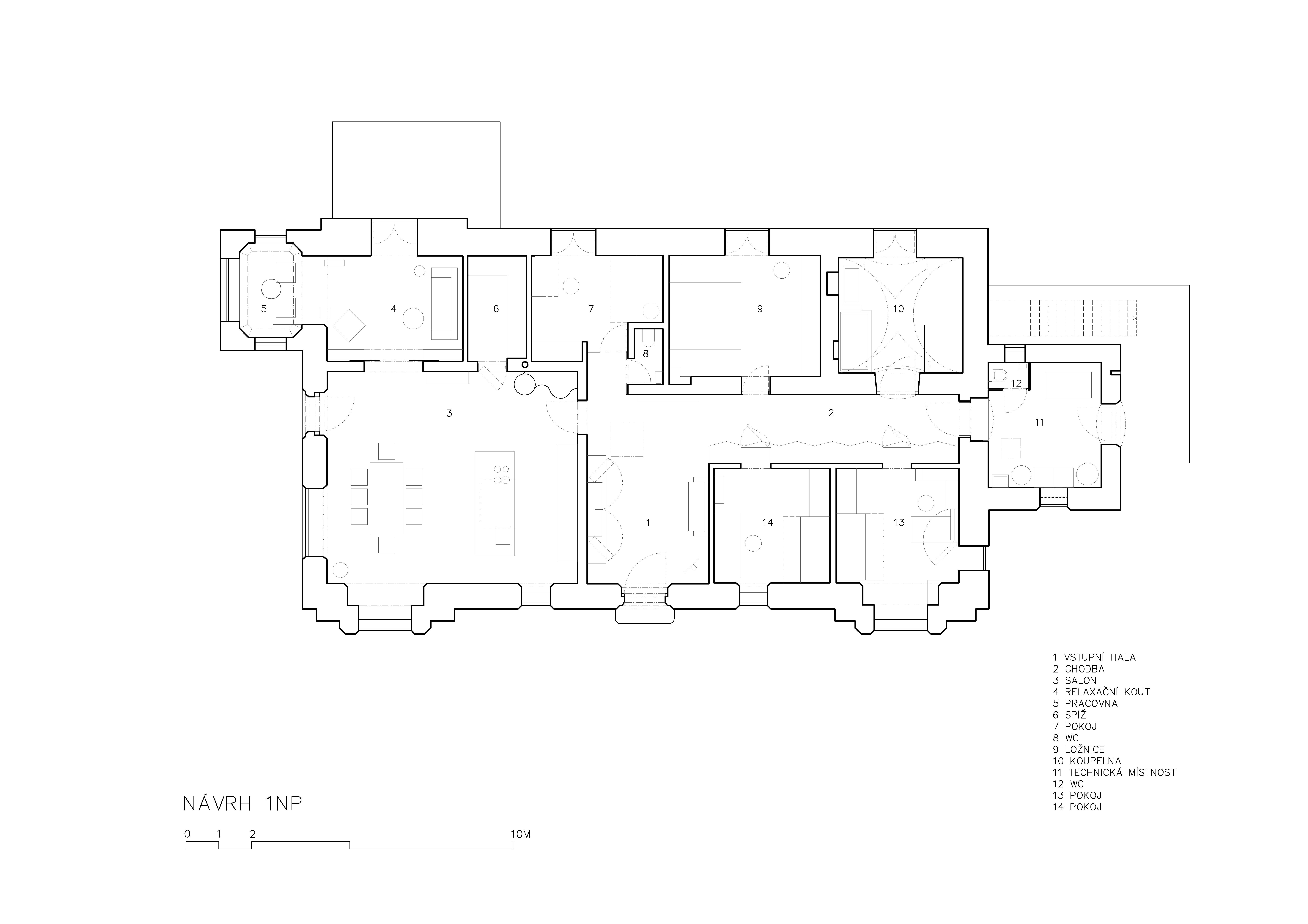
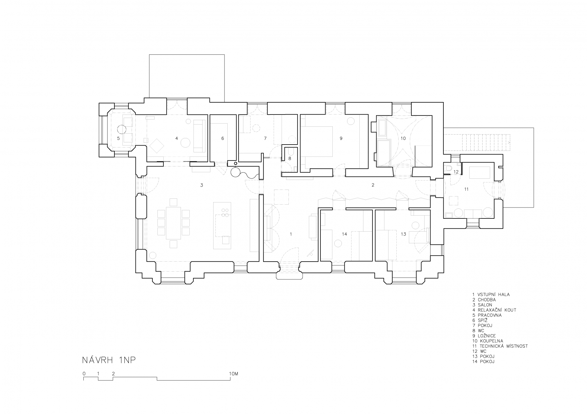
Vnútorná dispozícia domu v jeho dennej časti zachováva s drobnou korekciou pôvodný dvojtrakt. Nočná časť sa vložením chodby zmenila na trojtrakt. Otvárajú sa tak nové priečne a pozdĺžne priehľady domom. Vchod z hlavného priečelia vedie do obnovenej a rozšírenej vstupnej haly. Naproti vstupu návštevníkov domu upúta autorská tapiséria z dielne výtvarníčky Evy Tomešovej. Priestor haly oživuje svetlík - ťažisko celého pôdorysu, okolo ktorého voľne rotujú nárožia hlavných dispozičných blokov. Funkciu kuchyne a veľkorysej jedálne v sebe spája salón. Rovnako, ako kedysi aj dnes predstavuje hlavný reprezentatívny a spoločenský priestor domu. Rozšírenie salónu okolo pozdĺžneho priechodu prinieslo majiteľom lepšie možnosti jeho zariadenia. Posunutá vnútorná nosná stena ho následne oddeľuje od špajze a relaxačného zákutia s knižnicou. Nadväzujúca pracovňa sa nachádza v pôvodnom výklenku s panoramatickým oknom.
Nočnou časťou domu prechádza dlhá chodba s kúpeľňou a spálňou na jednej strane a detskými izbami na strane druhej. Opticky ju člení lomená skriňová stena. Tá okrem úložných priestorov integruje aj skryté dvere do detských izieb. Ich útulné domácke a farebné poňatie dopĺňajú hrubšie detaily na mieru navrhnutého nábytku. Ďalšie autorské solitérne kusy nábytku - uzatvárateľná predsieňová stena, box na drevo, alebo čalúnená lavica v hale - spolu so zvlnenými murovanými kachľami či lamelovými posuvnými dverami medzi salónom a pracovňou sú zámerným nadsadením a nadväzujú na hravý až divadelný charakter pôvodného letohrádku.
Podklady: DEBYT