Advertorial

Pozvánka na 2. ročník stavebného veľtrhu BigMarket na Slovensku

Na podujatí sa predstaví až 37 vystavovateľov - popredných dodávateľov stavebných materiálov a inovácií s prezentáciou...

Hotel Hirschen Spa House, Rakúsko

Novotvar v prostredí alpskej obce.

Vytvorte si kúpeľňu snov: dizajnové riešenie od značky hansgrohe

Hansgrohe - prémiová značka kúpeľňových riešení, ponúka nadčasový dizajn, technickú precíznosť a udržateľné inovácie...

Okná Internorm za minuloročné ceny + hliníkový kryt zdarma!

Využite špeciálnu akciu Internorm: okná za minuloročné ceny a hliníkový kryt úplne zadarmo. Ponuka je časovo obmedzená!

Moderné plynové technológie: Efektivita a inovácie pre 21. storočie

Sumarizácia najdôležitejších inovácií, ktoré redefinujúcich využitie tohto energetického zdroja.

Utesňovanie spodných stavieb pomocou hydro-aktívnej fólie AMPHIBIA.

AMPHIBIA 3000 GRIP 1.3 od spoločnosti ATRO predstavuje modernú hydroizolačnú technológiu, ktorá spája vysokú odolnosť,...

Dekarbonizácia individuálneho vykurovania domácností – Green Deal evolučne a nie revolučne

Ambiciózne plány EK narazili na ekonomické možnosti domácností v jednotlivých členských štátoch –...

Minimalistické dvere IDEA – technická precíznosť a čistota prevedenia

IDEA DOOR od spoločnosti JAP prináša do interiéru čistý minimalistický vzhľad vďaka bezrámovému riešeniu a precíznej...

Dom s výhľadom na údolie, Dlouhý Most (ČR)

Kontinuita riešenia od vonkajšieho obkladu až po kovania a kľučky.

Schell Vitus – osvedčené riešenie pre sprchy a umývadlá vo verejnom sektore s viac ako desaťročnou tradíciou

Nástenné nadomietkové armatúry Vitus sú mimoriadne vhodné pre rýchlu a efektívnu...

Kompozitné okná predstavujú súčasnosť a budúcnosť

Okenné profily z kompozitného materiálu RAU-FIPRO X od spoločnosti Rehau sú v porovnaní s tradičnými plastovými profilmi mnohonásobne...

Myotis - stoly 2025

Najnovší sortiment stolov pre zariadenie interiérov...

Priemyselné sklenené priečky Dorsis Digero: svetelné rozhranie pre moderné interiéry

Spojenie moderného dizajnu, funkčnosti a svetla do harmonického architektonického prvku.

Význam prirodzeného svetla pre moderné a flexibilné pracovné prostredie

Kancelárska budova Baumit v slovinskom Trzine prešla premenou na moderné a udržateľné pracovisko. Architekti kládli dôraz...

Konferencia Xella Dialóg predstaví novinky a trendy v stavebníctve

Mottom šiesteho ročníku on-line konferencie odborníkov Xella Dialóg je Efektívny návrh budov 2025+: zmeny a riešenia

Rekreačný objekt Ošelín

Revitalizácia opusteného hospodárskeho statku v českom pohraničí.
Diela
Red 304.09.2017
22710+17
Rekreačný objekt Ošelín
Autori: Ing. arch. Jan Alex ŘezáčZastavaná plocha: 177 m2Obostavaný objem: 973 m3Návrh: 2011 - 2012Realizácia: 2012 - 2013Adresa: 19, Ošelín , Česká republikaPublikované: 4. september 2017

Dielo sa dostalo do užšieho výberu v aktuálnom ročníku českej ceny za architektúru.

Na území pretkanom históriou, nedaľeko bývalej obchodnej cesty Praha - Norimberg, medzi mestami Stříbro a Tachov sa nachádza pôvodne nemecká obec Ošelín. Hospodárska usadlosť čp. 19 predstavovala najväčší grunt, ktorý ostal po druhej svetovej vojne neobývaný. Starý statok pred viac ako 70 rokmi zaspal a ostal opustený, zastavil sa tu čas. 

Uličný pohľad na hospodársku usadlosť čp.19
Uličný pohľad na hospodársku usadlosť čp.19Foto: Martin Kocich

Nemecký investor hľadal na českej dedine v blízkosti hraníc zaujímavý objekt s históriou, kde by sa mohol v starobe usadiť. Spolu s architektom našiel v obci opustenú hospodársku usadlosť. V objektoch sa našli medzivojnové noviny a ďaľšie artefakty doby, genius loci je neopísateľný.

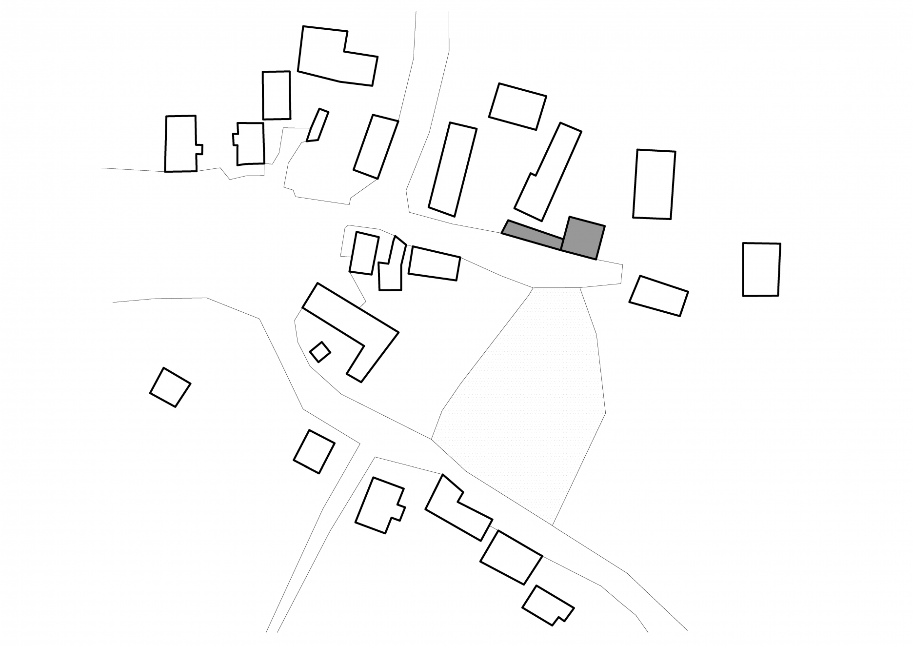
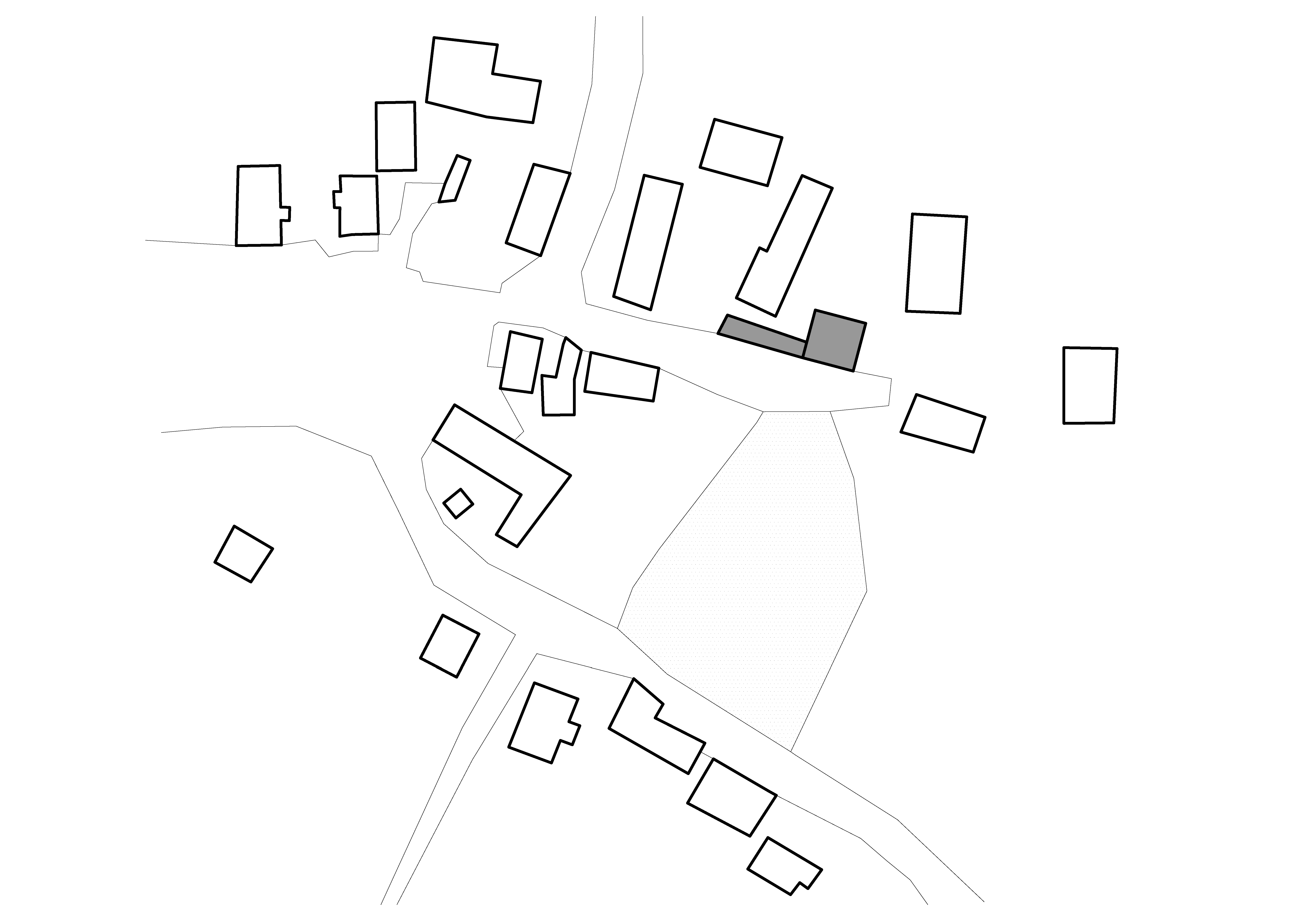
Situácia
SituáciaAutor: Modulora

Návrh:

Autori rešpektujú a zároveň chránia hodnoty v území, storočné duby, zachovanú architektúru... Aj napriek tomu, že zachované budovy boli v dezolátnom stave, predstavovali historickú hodnotu, ktorá ostala zachovaná a boli tradičným spôsobom zrekonštruované.  

Projekt zviditeľňuje kontrast a vytvára napätie medzi starou a novou architektúrou. Kontrast formy je jasný a čitateľný. Nový objekt je vložený medzi pôvodné objemy bývalej hospodárskej usadlosti - stodolu a obytný dom - a uzatvára pozemok z južnej strany od príjazdovej komunikácie. 

Exaktná kubická hmota nového objektu je jasne odlíšená od dedinskej archetypálnej zástavby.
Exaktná kubická hmota nového objektu je jasne odlíšená od dedinskej archetypálnej zástavby.Foto: Martin Kocich
Prízemná horizontálna hmota so saunou vytvára krytý vstup, vjazd a zároveň je prepojená s hmotou poschodia, kde sa nachádzajú apartmány.
Prízemná horizontálna hmota so saunou vytvára krytý vstup, vjazd a zároveň je prepojená s hmotou poschodia, kde sa nachádzajú apartmány.Foto: Martin Kocich
Nový objekt je situovaný medzi bývalú hospodársku usadlosť, stodolu a obytný dom. Uzatvára pozemok z južnej strany s príjazdovou komunikáciou.
Nový objekt je situovaný medzi bývalú hospodársku usadlosť, stodolu a obytný dom. Uzatvára pozemok z južnej strany s príjazdovou komunikáciou.Foto: Martin Kocich
Exteriérové plochy sú dláždené rulou, získanou priamo z pozemku, ktorý leží čiastočne na zvetranej skale.
Exteriérové plochy sú dláždené rulou, získanou priamo z pozemku, ktorý leží čiastočne na zvetranej skale.Foto: Martin Kocich

Prízemná horizontálna hmota so saunou vytvára krytý vstup, vjazd a zároveň je prepojená s hmotou poschodia, kde sa nachádzajú apartmány. Dva identické apartmány nad sebou s veľkosťou 3 + kk sú prístupné cez kryté vonkajšie schodisko. Exaktná kubická hmota prístavby kontrastuje s vidieckou zástavbou, ktorú predstavuje archetyp domu so sedlovou strechou. Novostavba, ktorá vznikla v prvej etape výstavby slúži ako zázemie pre rodinu a plánovanú rekonštrukciu  stodoly a domu s chlievom.  

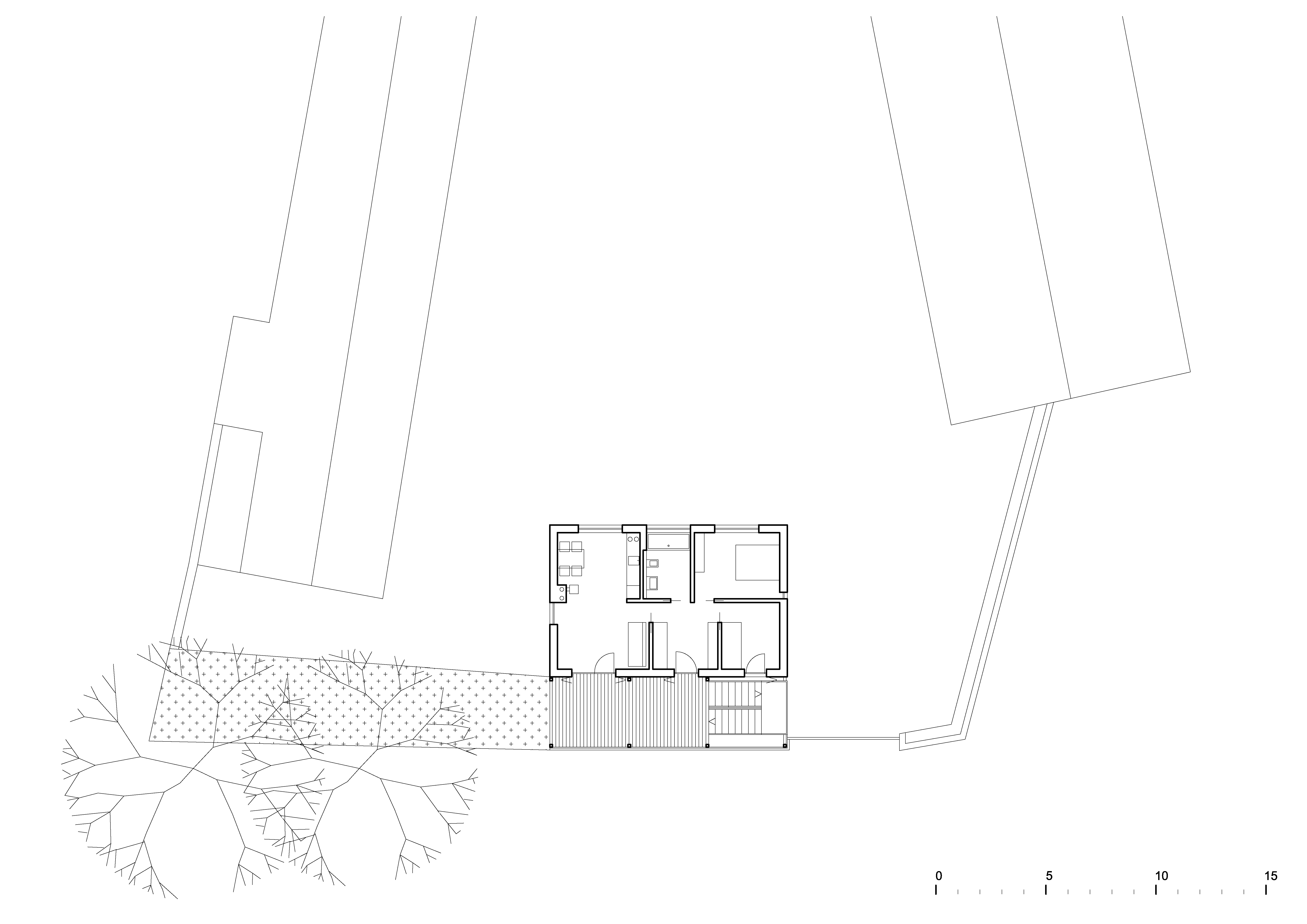
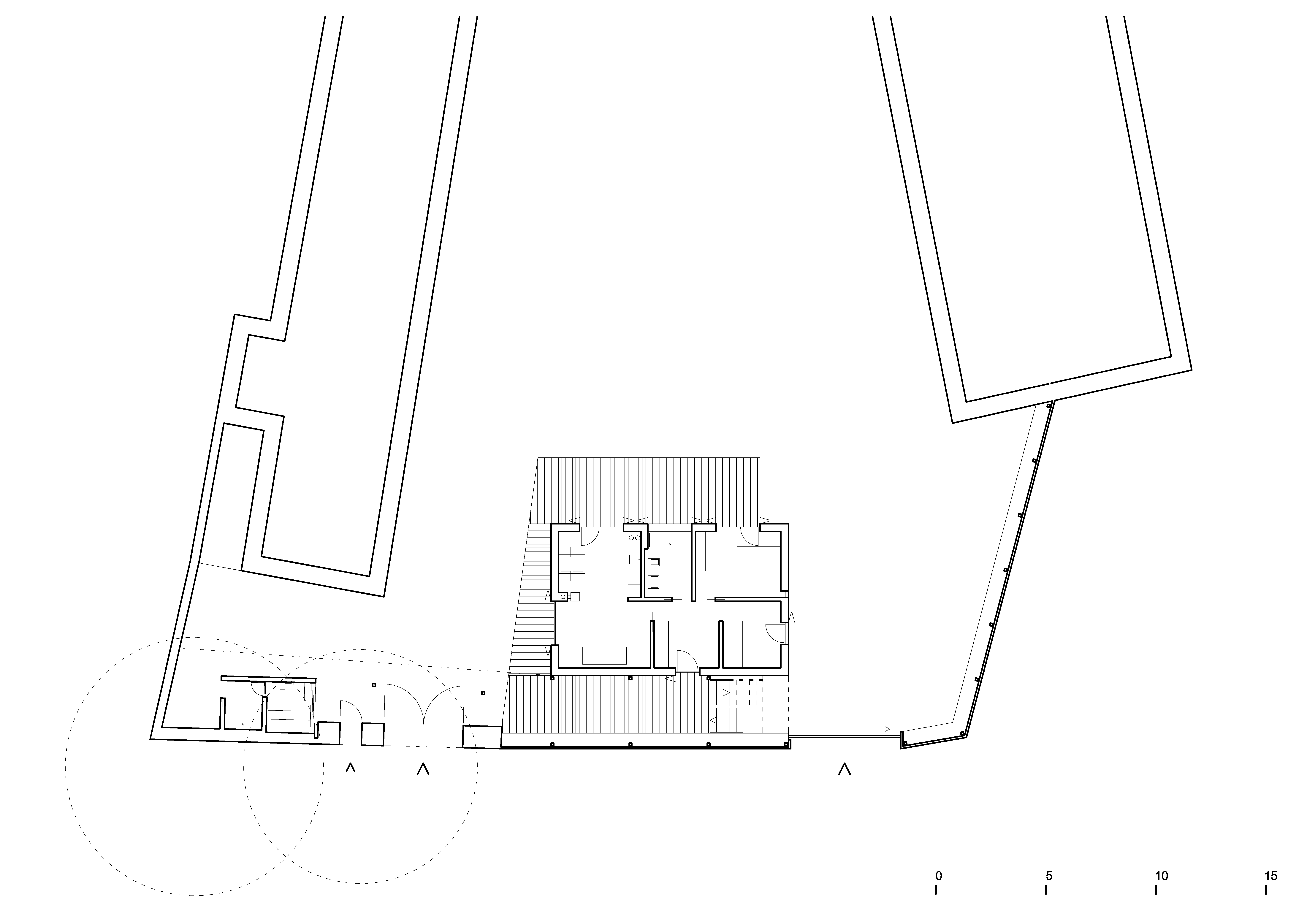
Pôdorys 1. NP
Pôdorys 1. NPAutor: Modulora
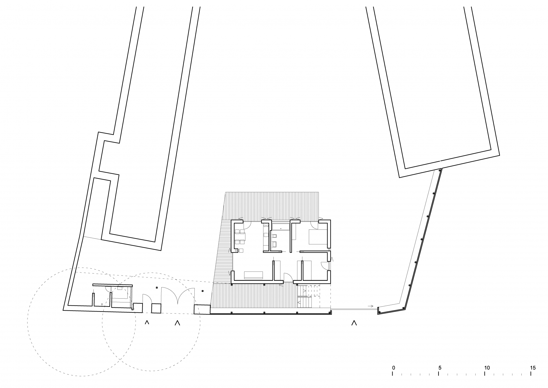
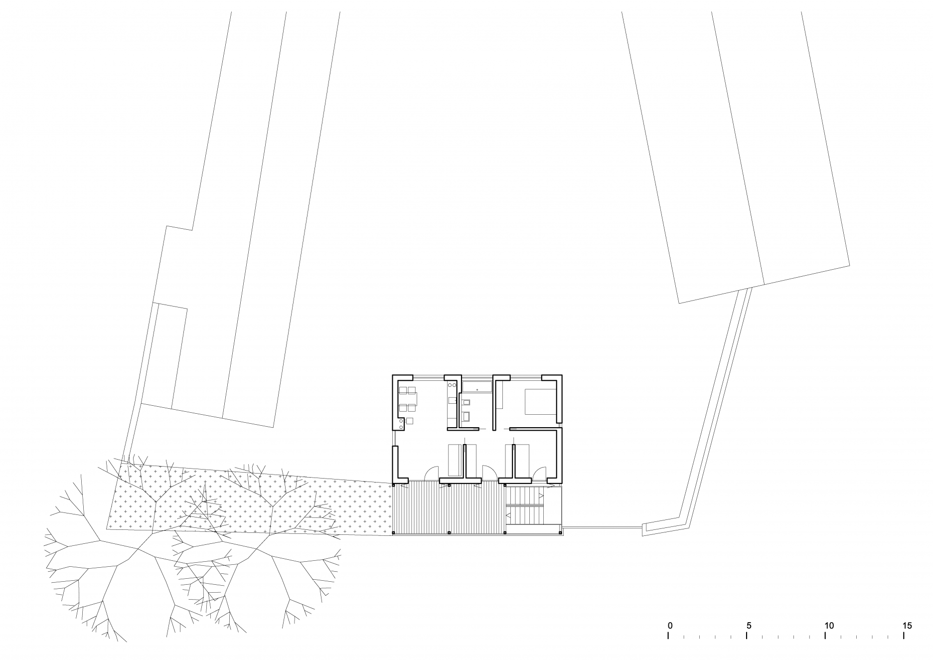
Pôdorys 2. NP
Pôdorys 2. NPAutor: Modulora
Priečny rez
Priečny rezAutor: Modulora
Pozdĺžny rez
Pozdĺžny rezAutor: Modulora

Konštrukcia a materiály:

Vzhľadom na požiadavku rýchlej výstavby bola zvolená technológia montovanej drevostavby s difúzne otvorenou konštrukciou z prírodných materiálov (skladba neobsahuje PVC fólie).

Pri stavbe sa obe strany snažili čo najviac využiť prácu miestnych remeselníkov, materiály z miestnych zdrojov, a minimalizovať tak náklady na transport a energiu. Kameň, miestna rula použitá k výstavbe oporných múrov pochádza priamo z pozemku, ktorý je čiastočne na zvetranej skale. Kamenná dlažba v interiéri - tepelský trachyt pochádza z lomu vzdialeného 30 km od stavby. Neohobľované smrekovcové dosky použité na fasáde sú z miestnej píly v obci Nynkov vzdialenej 5 km. Dubová podlaha v obytných miestnostiach - priemyslová kantovka je taktiež z regiónu.

Neohobľované smrekovcové drevo použité na fasáde, pochádza z blízkej píly.
Neohobľované smrekovcové drevo použité na fasáde, pochádza z blízkej píly.Foto: Martin Kocich
Jediným farebným prvkom v exteriéri sú oranžové rámy zasklenia.
Jediným farebným prvkom v exteriéri sú oranžové rámy zasklenia.Foto: Martin Zeman
Obytný priestor na prízemí je otvorený do dvora. O vykurovanie sa stará liatinová pec.
Obytný priestor na prízemí je otvorený do dvora. O vykurovanie sa stará liatinová pec.Foto: Martin Kocich
Spálňa na prízemí je presvetlená vertikálnym zasklením.
Spálňa na prízemí je presvetlená vertikálnym zasklením. Foto: Martin Kocich
V obytných miestnostiach bola na podlahe použitá dubová kantovka, ktorá zabezpečuje trvácnosť povrchu.
V obytných miestnostiach bola na podlahe použitá dubová kantovka, ktorá zabezpečuje trvácnosť povrchu.Foto: Martin Zeman
Oranžové akcenty zárubní a okenných rámov prechádzajú aj do interiéru.
Oranžové akcenty zárubní a okenných rámov prechádzajú aj do interiéru. Foto: Martin Zeman
Kúpeľňa s dlažbou z tepelského trachytu
Kúpeľňa s dlažbou z tepelského trachytuFoto: Martin Zeman
Drevo je použité aj ako stavebný materiál pre saunu na prízemí.
Drevo je použité aj ako stavebný materiál pre saunu na prízemí.Foto: Martin Kocich

Podklady: Modulora

Poloha diela

Ing. arch. Jan Alex Řezáč

Súvisiace články

Vložené
28. august 2017
0
2271
Hlavný obsahHlavný obsah
Čakajte prosím