Na podujatí sa predstaví až 37 vystavovateľov - popredných dodávateľov stavebných materiálov a inovácií s prezentáciou...
Novotvar v prostredí alpskej obce.
Hansgrohe - prémiová značka kúpeľňových riešení, ponúka nadčasový dizajn, technickú precíznosť a udržateľné inovácie...
Využite špeciálnu akciu Internorm: okná za minuloročné ceny a hliníkový kryt úplne zadarmo. Ponuka je časovo obmedzená!
Sumarizácia najdôležitejších inovácií, ktoré redefinujúcich využitie tohto energetického zdroja.
AMPHIBIA 3000 GRIP 1.3 od spoločnosti ATRO predstavuje modernú hydroizolačnú technológiu, ktorá spája vysokú odolnosť,...
Ambiciózne plány EK narazili na ekonomické možnosti domácností v jednotlivých členských štátoch –...
IDEA DOOR od spoločnosti JAP prináša do interiéru čistý minimalistický vzhľad vďaka bezrámovému riešeniu a precíznej...
Kontinuita riešenia od vonkajšieho obkladu až po kovania a kľučky.
Nástenné nadomietkové armatúry Vitus sú mimoriadne vhodné pre rýchlu a efektívnu...
Okenné profily z kompozitného materiálu RAU-FIPRO X od spoločnosti Rehau sú v porovnaní s tradičnými plastovými profilmi mnohonásobne...
Najnovší sortiment stolov pre zariadenie interiérov...
Spojenie moderného dizajnu, funkčnosti a svetla do harmonického architektonického prvku.
Kancelárska budova Baumit v slovinskom Trzine prešla premenou na moderné a udržateľné pracovisko. Architekti kládli dôraz...
Mottom šiesteho ročníku on-line konferencie odborníkov Xella Dialóg je Efektívny návrh budov 2025+: zmeny a riešenia

Pamiatková rekonštrukcia dôsledne rešpektuje kultúrny odkaz minulosti. Odhaľuje historické vrstvy a zároveň vytvára svoje vlastné obrazy a priestory s vedomím historického konceptu v kontinuálnej línii.
Dielo sa dostalo do užšieho výberu v aktuálnom ročníku Českej ceny za architektúru.
Architektúru a tvorivý proces najlepšie na úvod priblížia slová Jana Hájka:
"Díky rekonstrukci severního křídla jezuitské koleje v Kutné Hoře se nám dostalo cti dotknout se Mistra. Stejně jako on vidíme svět skrze architekturu, architektuře věnujeme své srdce a tak jako on do architektury přetavujeme svou životní energii. Smysl rekonstrukce severního krídla kutnohorské koleje více určila potřeba obrany kulturní tradice než my samotní. Koncept obnovy nutně spočíva ve snaze o udržení kulturní linie, v pokusu o udržení a rozvíjení toho, co ješte zbylo. Ve víře že přes všechno lze v lidech vyvolat kulturní zážitek. V presvědčení, že architektura má stále ještě schopnost proniknout přímo k srdci.
Spolupráce architekta a památkáře vyvřela v krystalicky čistou diskusi, vedenou soustředěně a na odborné rovině. Společným nepřítelem nám byla pouze vlastní neschopnost objektivně hodnotit historii a příkaz normy umisťovat do kleneb klášterních místností požární hlásiče.
Dalším nevšedním činitelem byl vliv uživatele, Galerie Středočeského kraje (GASK), která z principu své odbornosti podporovala výtvarnou polohu navrhování.
Jezuitská kolej byla nejdříve sídlem mužského řádu, pak kasárnami rakouské a rakousko-uherské armády, poté kasárnami Československé armády a nakonec kasárnami Československé lidové armády. Až dnes, po třech stovkách let, mohou do tohoto prostoru vstoupit i ženy.
Úvodní dojem po první prohlídce vnitřků jezuitské koleje spočíval v chladu odosobněné řádové architektury. Pod nánosy krycích výmaleb jsme však nalezli vřelost. Naopak v temné a rozpříčkované stavbě Staré koleje na zahradě se ukrývala vznešenost.
Budova jezuitské koleje je monumentální. Je tak rozměrná, že se stavěla celé století. Stavěla se tak dlouho, že se během výstavby změnil stavební sloh. Orsi během prvních let výstavby zemřel. Také jezuitští zakladatelé během výstavby zemřeli. Stavba započala severním křídlem v raném baroku a skončila křídlem středním ve stylu baroka vrcholného, ač stále podle Orsiho konceptu. Lidskou touhu nic nezastavilo. Lidé přetavili energii svých dočasných životů do trvalého díla.
Autorem severního křídla je bezpochyby Giovanni Domenico Orsi, autory Staré koleje jsou gotičtí, renesanční, barokní, klasicistní a nebarokní anonymové. Na površích architektur jsou navrstveny jemné výjevy vytvořené zvolna mizející polychromií, fragmenty původních geometrií a časem zerodované malované figury. Tyto obrazy vytvořily generace jejich obyvatel pro svoji potřebu. My na ně navazujeme. Odhalujeme staré a zároveň vytváříme své obrazy a prostory s vědomím historie a kontinuity. Režisérským aranžováním spojujeme fragmenty, které zbyly k dispozici, do nového smysluplného celku. Pro zdárný výsledek je však nutné zaujmout autorský postoj.
Naše práce stojí na práci historika. Historický průzkum Mojmíra Horyny je úctyhodné dílo sepsané téměř na literární úrovni, slovník odborného názvosloví, učebnice češtiny. Je to přesný souhrn dosažitelného poznání,. Horyna viděl podstatu obnovy Jezuitské koleje v návratu k baroknímu stavu neboť podstata budovy je barokní. Naší zkušeností nabytou rekonstrukcí je, že takový návrat není možný".
Komplex leží mimo mestských hradieb, na plató situovanom nad údolím Vrchlice. Areál sa nachádza v blízkosti chrámu sv. Barbory. Pred príchodom jezuitov bolo územie zastavané desiatkami meštianskych domov, ktoré medzi sebou vytvárali ulice a námestia. Kláštor jezuitov bol založený na pôdoryse tejto štvrti. Jedinou zachovanou stavbou pôvodnej zástavby je objekt Starého kolégia. Po zrušení jezuitského rádu bol kláštor využitý vojskom a to až do roku 1989. Vojenský areál bol postupom času dopĺňaný stavbami jazdiarne, bastiónu a hospodárskych objektov. V deväťdesiatych rokoch boli spevnené vonkajšie plochy areálu vzhľadom k blízkosti chrámu sv. Barbory využité ako parkovisko.
Stav územia pred rekonštrukciou zodpovedal dlhodobému využívaniu vojskom. Vonkajšie plochy boli vybetónované, zeleň na pozemku bola prakticky zničená, horná časť bývalého kláštorného areálu bola zastavaná objektami priemyselného výrazu a mierky. V roku 2007 bola podľa projektu ateliéru ARN (arch. Krejčík) skolaudovaná prvá časť rekonštrukcie, ktorá zahŕňala hlavné a stredné krídlo budovy Jezuitského kolégia a severného nádvoria s prístavbou. Na túto časť nadviazal Ateliér M1 návrhom podľa ktorého bola realizovaná rekonštrukciav rokoch 2010 - 2012. Rekonštrukcia vonkajších plôch hornej záhrady, bastiónu, predpolia severného vstupu a objektu E bola realizovaná v časovom súbehu podľa projektu ARN.
V rokoch 2009 a 2010 Ateliér M1 spracoval celkovú štúdiu, ktorá priniesla myšlienku poňatia areálu vo forme záhrady bez akýchkoľvek dopravných stavieb. Na základe toho bola otvorená diskusia o konceptoch dopravy a organizácie turistického ruchu mesta. Parkovacie plochy boli následne zo zadania rekonštrukcie vypustené a naďalej sa akcia odvíjala v koncepte záhradných a parkových úprav.
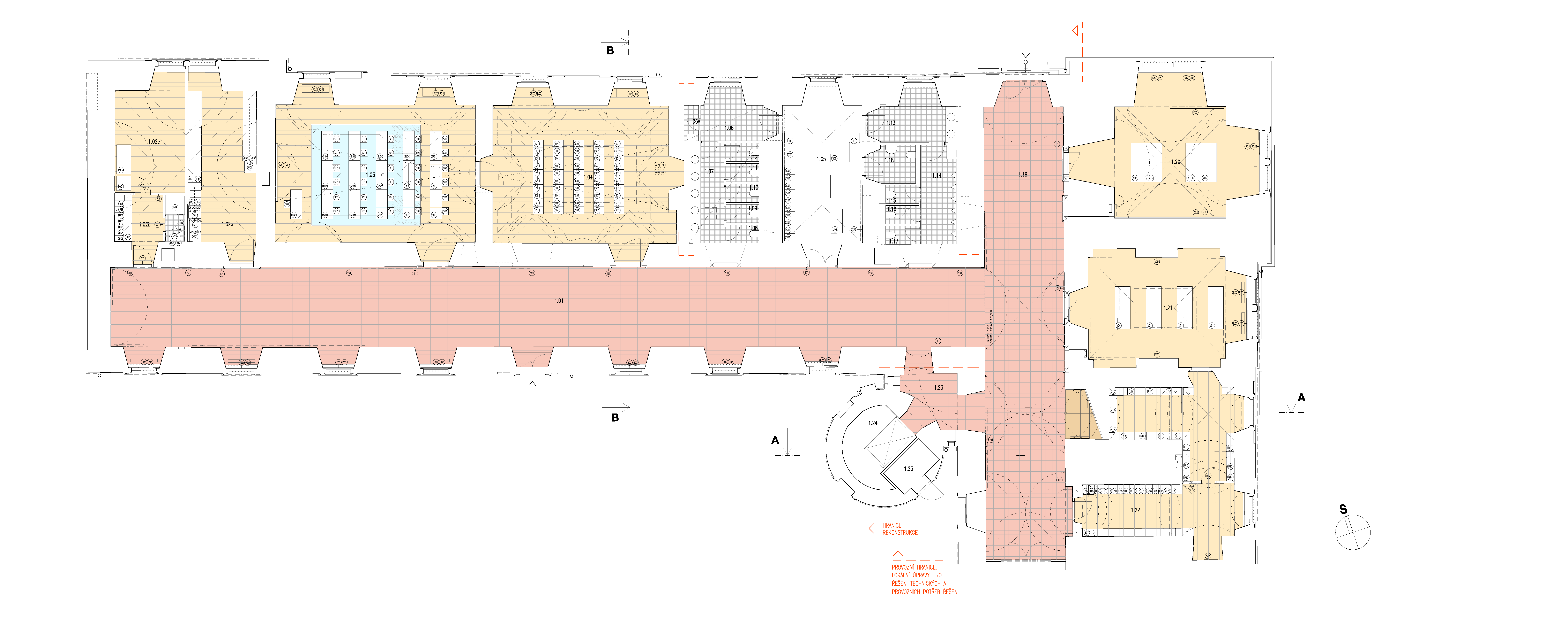
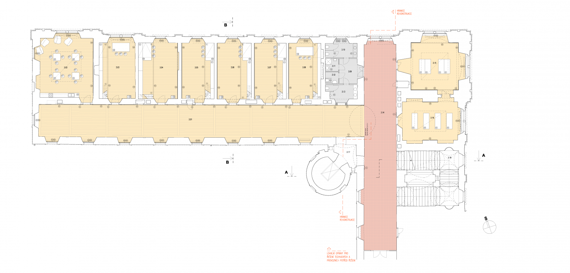
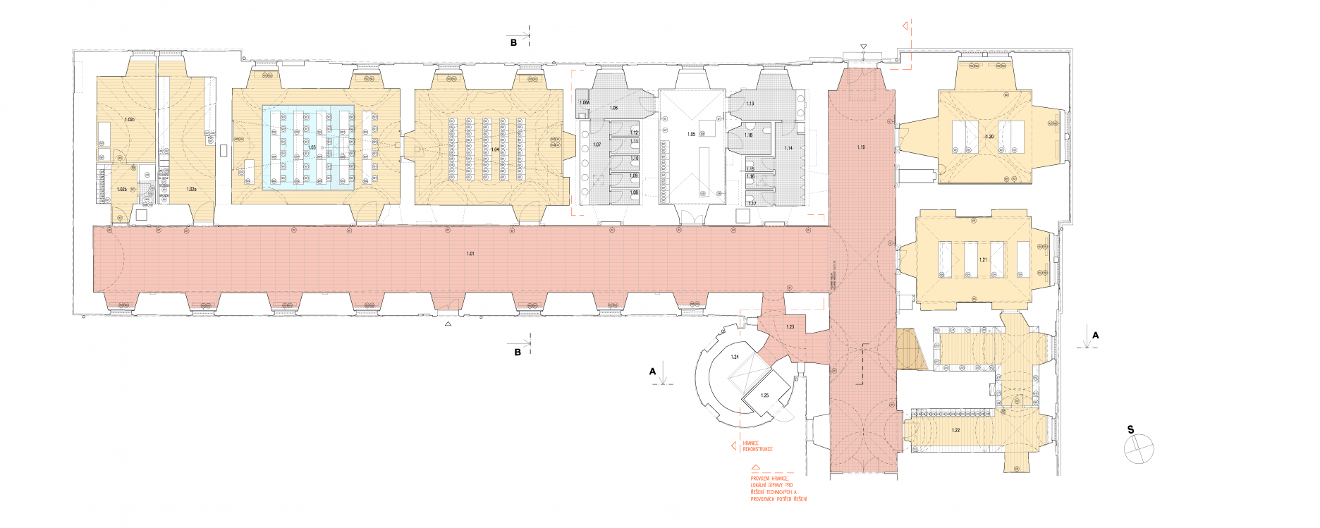
Objekt kláštora je najvýznamnejšou jezuitskou stavbou tohto typu na území Českej republiky. Je dokladom ranno-barokovej architektúry a vplyvu talianskych majstrov na stavebný vývoj v republike. Z tohto titulu je budova národnou kultúrnou pamiatkou. Celá budova pozostáva z troch krídel (hlavné - východné, stredné a severné). Severné krídlo ostávalo poslednou nezrekonštruovanou časťou budovy. Ide o nepodpivničený trojpodlažný objekt s podkrovím, sedlovou strechou s valbami a na západnej strane s vežou. Konštrukčne je severné krídlo dvojtraktové. Priestory kláštora po rekonštrukcii zastrešujú zázemie pre potreby cestovného ruchu, predovšetkým výstavné a konferenčné kapacity.
Na vstupnom podlaží sa nachádza priestor bývalej barokovej lekárne a na ňu nadväzujúca miestnosť bývalých kúpeľní. Tieto priestory slúžia ako úvod do expozície. Na prízemí sa zároveň nachádza občerstvenie pre návštevníkov.
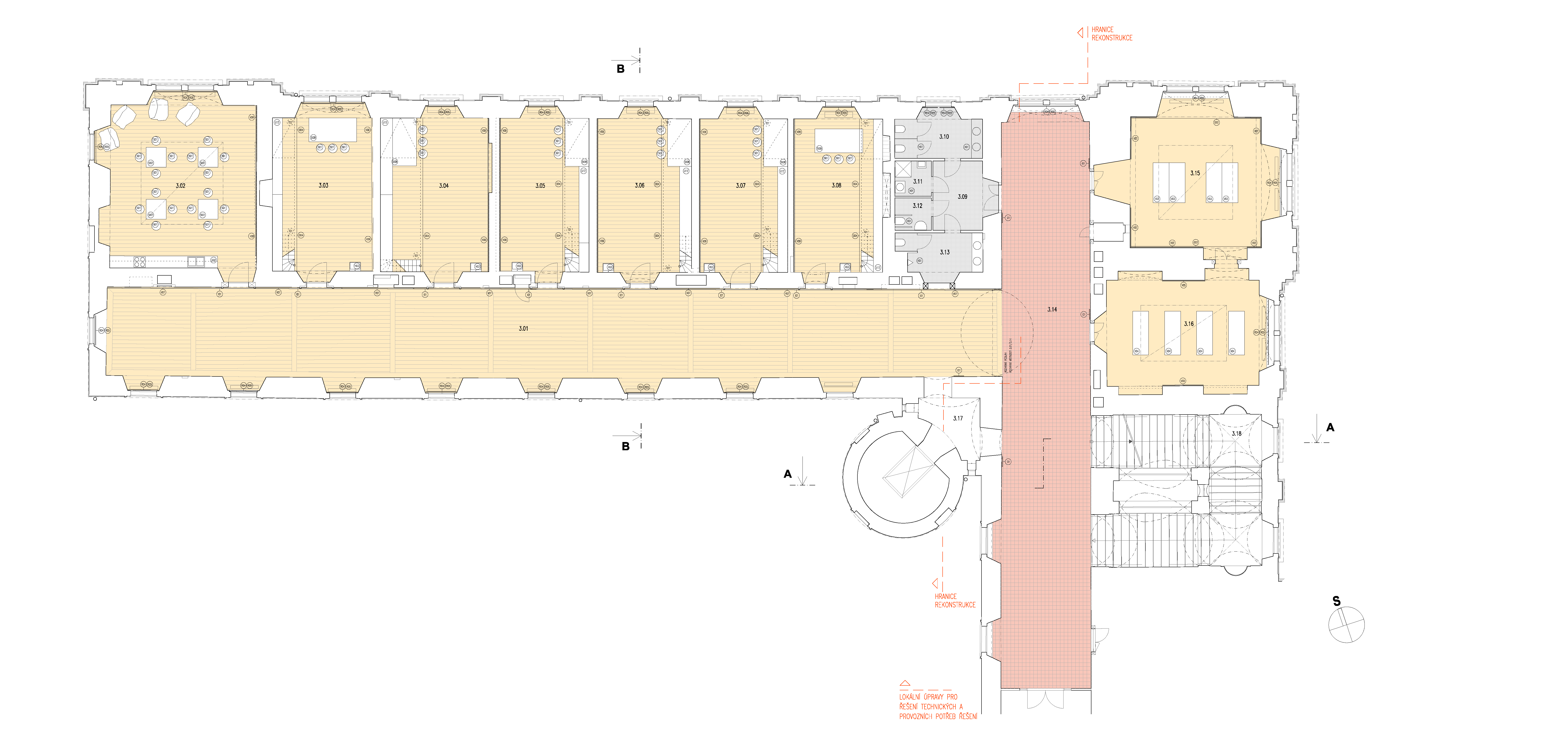
Náplňou druhého nadzemného podlažia sú výstavné priestory oboznamujúce návštevníka s históriou jezuitov. Výstavné plochy sú doplnené niekoľkými zhromažďovacími miestnosťami (konferenčnými sálami s kapacitou 20 osôb).
Tretie podlažie je administratívne. Slúži jednak pre zamestnancov zaisťujúcich chod expozície v severnom krídle a zároveň aj pre personál zaštiťující prevádzku budovy Rovnako ako na druhom poschodí sú tu navrhnuté konferenčné sály.
Obnovené boli aj podkrovné priestory, ktorých súčasťou je aj nárožná veža. Tu sa nachádza voľný multifunkčný priestor využiteľný pre doplnkové výstavy, workshopy, rôzne sprievodné podujatia a konferencie.
Súčasťou projektu bolo aj riešenie exteriérového priestoru bývalej dolnej záhrady nadväzujúcjej na hlavnú budovu. V ťažisku záhrady bola objavená vápenná pec z obdobia výstavby severného krídla. Tento archeologický nález bol zdokumentovaný a zakonzervovaný zasypaním zeminou z dôvodu zachovania konštantnej teploty a vlhkosti. Terén je mieste nálezu pre reminiscenciu vykopávky kompozične umelo upravený a doplnený vonkajšou expozíciou s informáciami o náleze.
Podklady: M1 architekti