Advertorial

Hotel Hirschen Spa House, Rakúsko

Novotvar v prostredí alpskej obce.

Vytvorte si kúpeľňu snov: dizajnové riešenie od značky hansgrohe

Hansgrohe - prémiová značka kúpeľňových riešení, ponúka nadčasový dizajn, technickú precíznosť a udržateľné inovácie...

Okná Internorm za minuloročné ceny + hliníkový kryt zdarma!

Využite špeciálnu akciu Internorm: okná za minuloročné ceny a hliníkový kryt úplne zadarmo. Ponuka je časovo obmedzená!

Pozvánka na 2. ročník stavebného veľtrhu BigMarket na Slovensku

Na podujatí sa predstaví až 37 vystavovateľov - popredných dodávateľov stavebných materiálov a inovácií s prezentáciou...

Moderné plynové technológie: Efektivita a inovácie pre 21. storočie

Sumarizácia najdôležitejších inovácií, ktoré redefinujúcich využitie tohto energetického zdroja.

Utesňovanie spodných stavieb pomocou hydro-aktívnej fólie AMPHIBIA.

AMPHIBIA 3000 GRIP 1.3 od spoločnosti ATRO predstavuje modernú hydroizolačnú technológiu, ktorá spája vysokú odolnosť,...

Dekarbonizácia individuálneho vykurovania domácností – Green Deal evolučne a nie revolučne

Ambiciózne plány EK narazili na ekonomické možnosti domácností v jednotlivých členských štátoch –...

Minimalistické dvere IDEA – technická precíznosť a čistota prevedenia

IDEA DOOR od spoločnosti JAP prináša do interiéru čistý minimalistický vzhľad vďaka bezrámovému riešeniu a precíznej...

Dom s výhľadom na údolie, Dlouhý Most (ČR)

Kontinuita riešenia od vonkajšieho obkladu až po kovania a kľučky.

Schell Vitus – osvedčené riešenie pre sprchy a umývadlá vo verejnom sektore s viac ako desaťročnou tradíciou

Nástenné nadomietkové armatúry Vitus sú mimoriadne vhodné pre rýchlu a efektívnu...

Kompozitné okná predstavujú súčasnosť a budúcnosť

Okenné profily z kompozitného materiálu RAU-FIPRO X od spoločnosti Rehau sú v porovnaní s tradičnými plastovými profilmi mnohonásobne...

Myotis - stoly 2025

Najnovší sortiment stolov pre zariadenie interiérov...

Priemyselné sklenené priečky Dorsis Digero: svetelné rozhranie pre moderné interiéry

Spojenie moderného dizajnu, funkčnosti a svetla do harmonického architektonického prvku.

Význam prirodzeného svetla pre moderné a flexibilné pracovné prostredie

Kancelárska budova Baumit v slovinskom Trzine prešla premenou na moderné a udržateľné pracovisko. Architekti kládli dôraz...

Konferencia Xella Dialóg predstaví novinky a trendy v stavebníctve

Mottom šiesteho ročníku on-line konferencie odborníkov Xella Dialóg je Efektívny návrh budov 2025+: zmeny a riešenia

Bytový dom Koněvová, Praha - Žižkov

Bývanie v pôvodnej zástavbe pražského Žižkova. Zaujímavý príklad dialógu medzi novými budovami v tesnej väzbe na okolitú kompaktnú historickú mestskú štruktúru.
Diela
Red 302.09.2017
17650+13
Bytový dom Koněvová, Praha - Žižkov
Autori: Ing. arch. Peter Lacko, Ing. arch. Filip Tittelbach, MgA. Ing. Adam Kekula, Ing. arch. Lenka DvořákováInvestor: IP IZOLACE POLNÁ, s.r.o.Zastavaná plocha: 1387m2Návrh: 2013 - 2015Realizácia: 2015 - 2016Adresa: Koněvova 2894, Praha 3, Česká republikaPublikované: 2. september 2017

Dielo sa dostalo do užšieho výberu poroty v tohtoročnej Českej cene za architektúru. (Nezaujímavé nemusia byť ani slovenské korene časti členov autorského tímu).

Bytový dom sa snaží prirodzene zaradiť medzi priečelia ulice Koněvova. Má ambíciu nenásilne splynúť s okolím. Vizuálny charakter domu komunikuje so zanikajúcim duchom žižkovskej atmosféry s ľahko uvoľnenou bohémsku náladou, s géniom loci starej periférie. Je trochu retro, ale napriek tomu chce byť súčasný.

Foto: Tomáš Balej
Foto: Tomáš Balej

Veľkosť zastavanej parcely zodpovedá dvom až trom typickým žižkovským činžiakom. Návrh preto rozdeľuje nový objem na 2 domy, ktoré sú takmer identické. Opticky sa líšia farebnosťou fasád.

Autor: A.LT

Hlavná južná a a zadná severná fasáda majú tmavší odtieň. Vnútorné fasády sú s ohľadom na obmedzené presvetlenie bytov biele. Čelo domov je členené rastrom, ktorý odzrkadľuje vnútornú dispozícu. Proporcie stavebných otvorov sa prispôsobujú tradičným rozmerom okien, ktoré sú typické pre pôvodnú zástavbu v okolí. Vodorovné členenie fasády naznačujú horizontálne subtílne rímsy z plechu vloženého do zatepľovacieho systému fasády.

Výrazným prvkom na čelnej fasáde je dlhý, vysunutý balkón na piatom poschodí. Navodzuje dojem horizontálnej rímsy. Vzor zábradlia má ambíciu evokovať tradičné motívy inšpirované ručne kovanými prvkami pražského staviteľstva na prelome 19. a 20. storočia.

Foto: Tomáš Balej

Domy stoja na pomerne frekventovanej mestskej ulici. Kvalita miesta spočíva v tesnej blízkosti parku Vítkov na sever od objektov. V susedstve bytových domov bol vybudovaný aj cyklistický chodník, ktorý nahradil bývalú železničnú trať. Do prízemia domov bol preto situovaný nový priechod, ako jasné gesto prepojenia s touto trasou. Priechod zároveň plní funkciu priestranného vstupu do oboch častí domu a cloní tak vstupné pasáže domu od frekventovanej ulice. Je rozšírením spoločných priestorov rezidentov.

Foto: Tomáš Balej
Foto: Tomáš Balej
Foto: Tomáš Balej
Foto: Tomáš Balej
Foto: Tomáš Balej
Foto: Tomáš Balej
Foto: Tomáš Balej
Foto: Tomáš Balej
Foto: Tomáš Balej
Foto: Tomáš Balej
Foto: Tomáš Balej
Foto: Tomáš Balej
Foto: Tomáš Balej
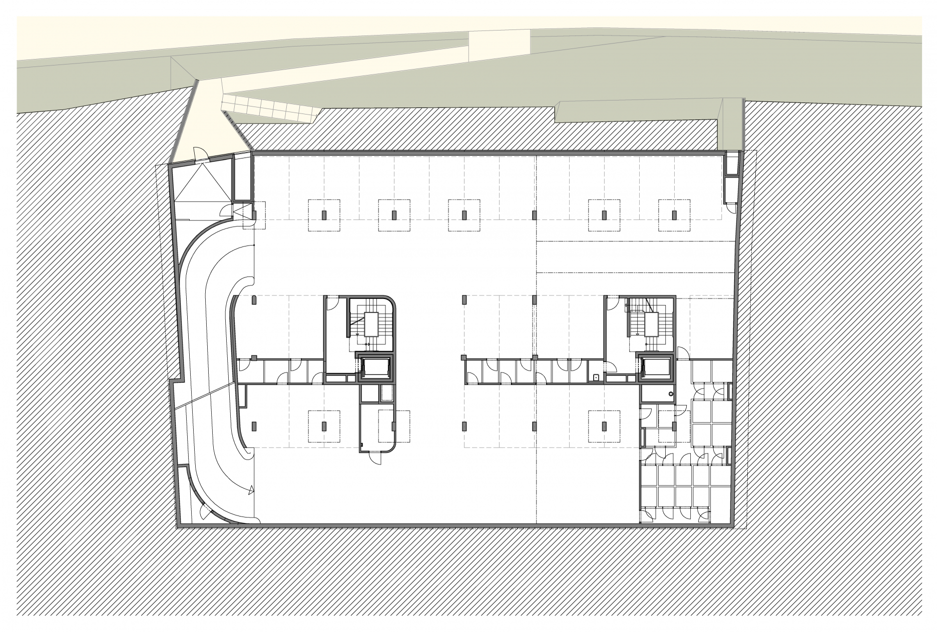
Pôdorys 2. PP
Pôdorys 2. PPAutor: A.LT
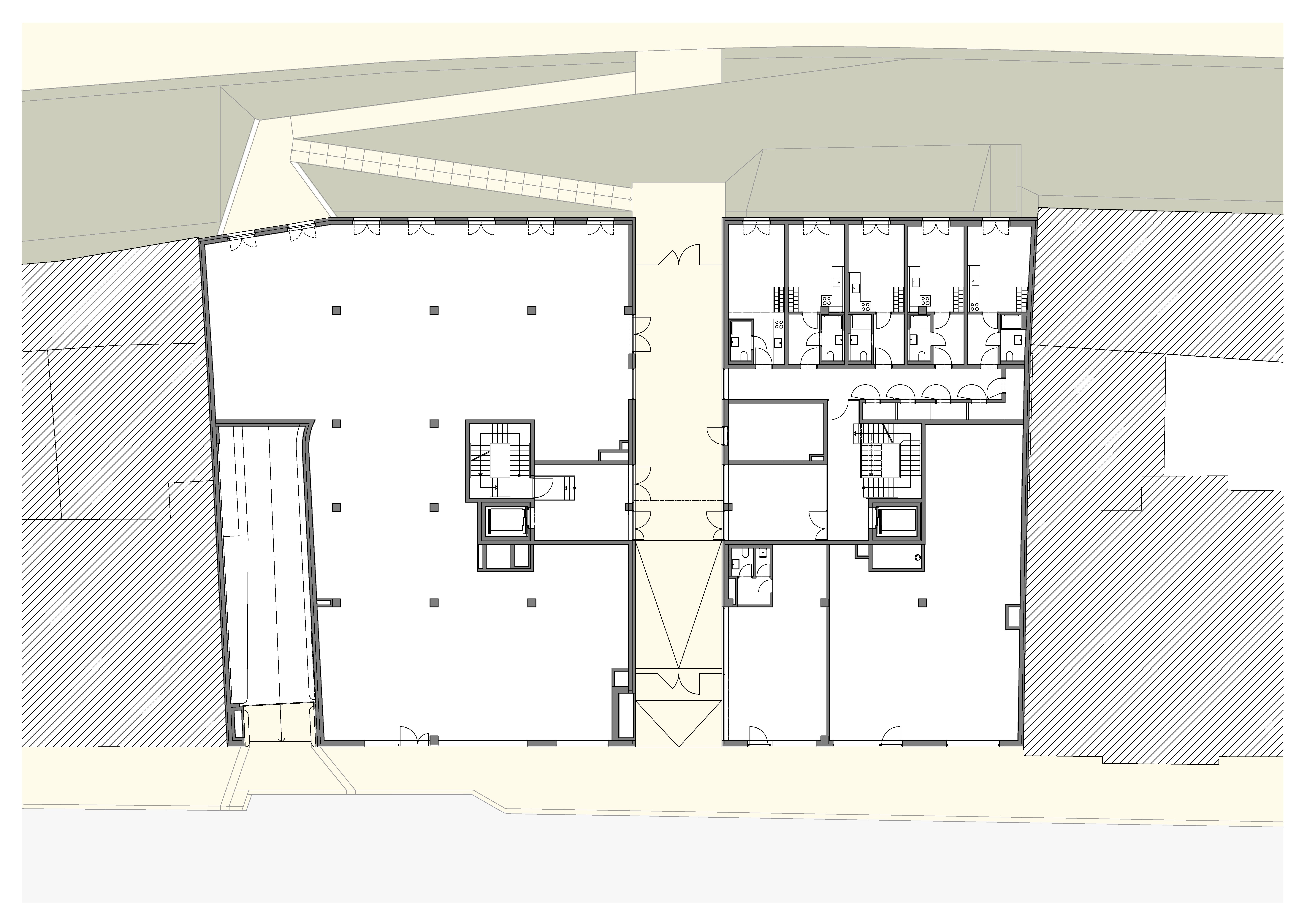
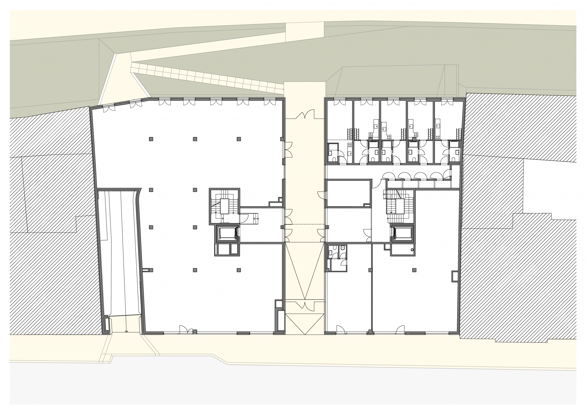
Pôdorys 1. PP
Pôdorys 1. PPAutor: A.LT
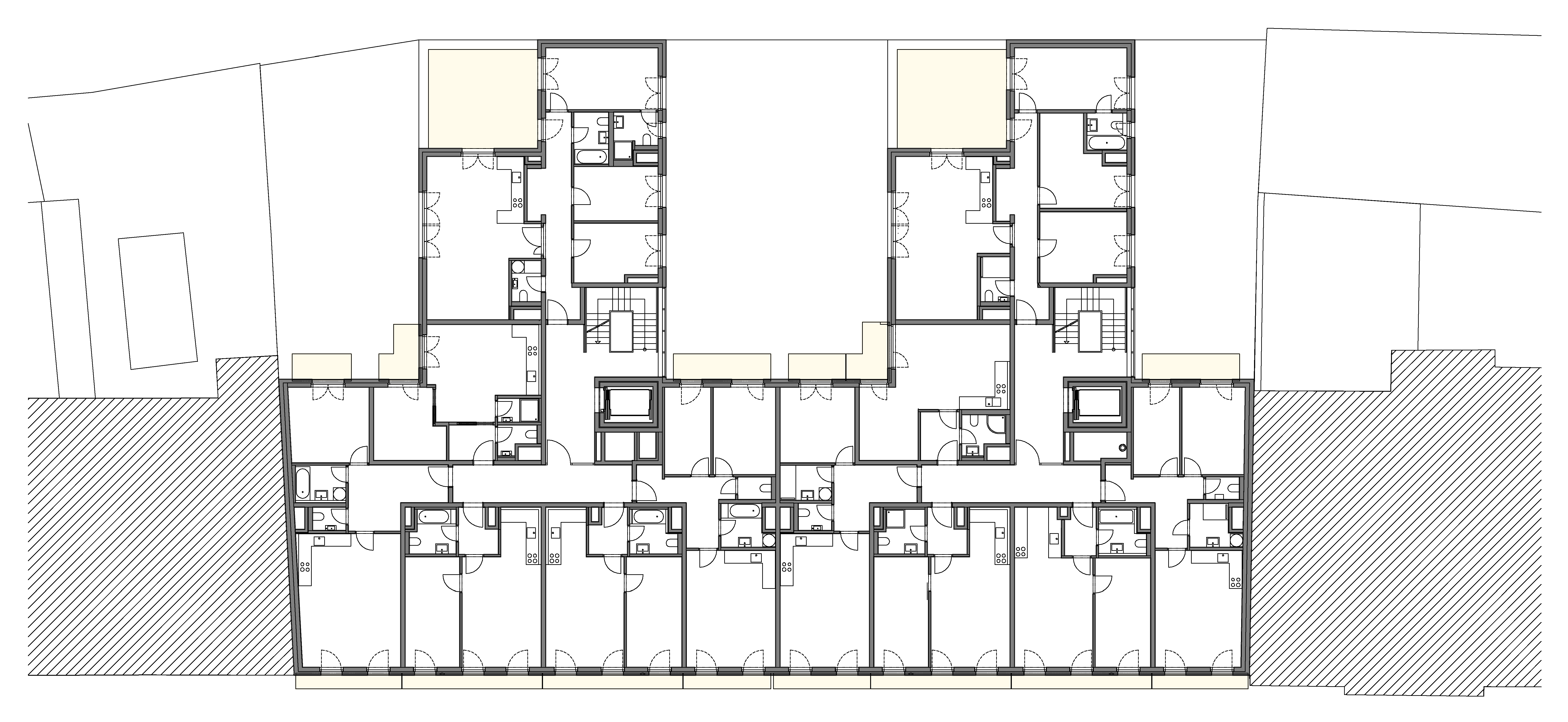
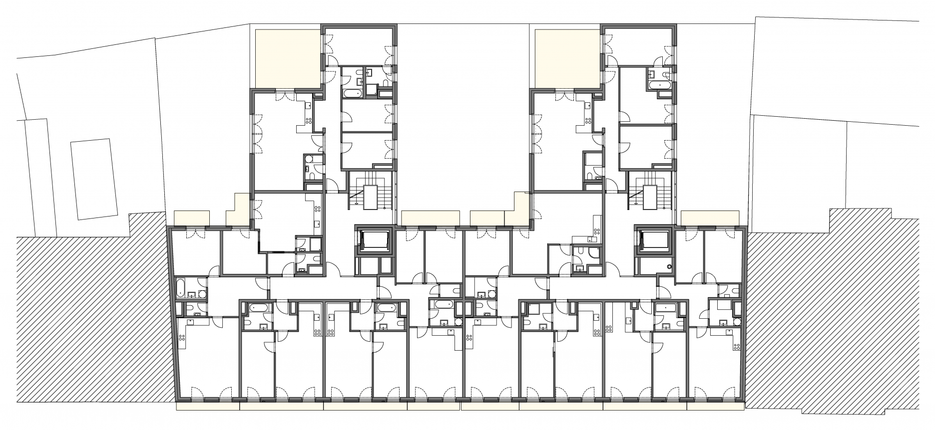
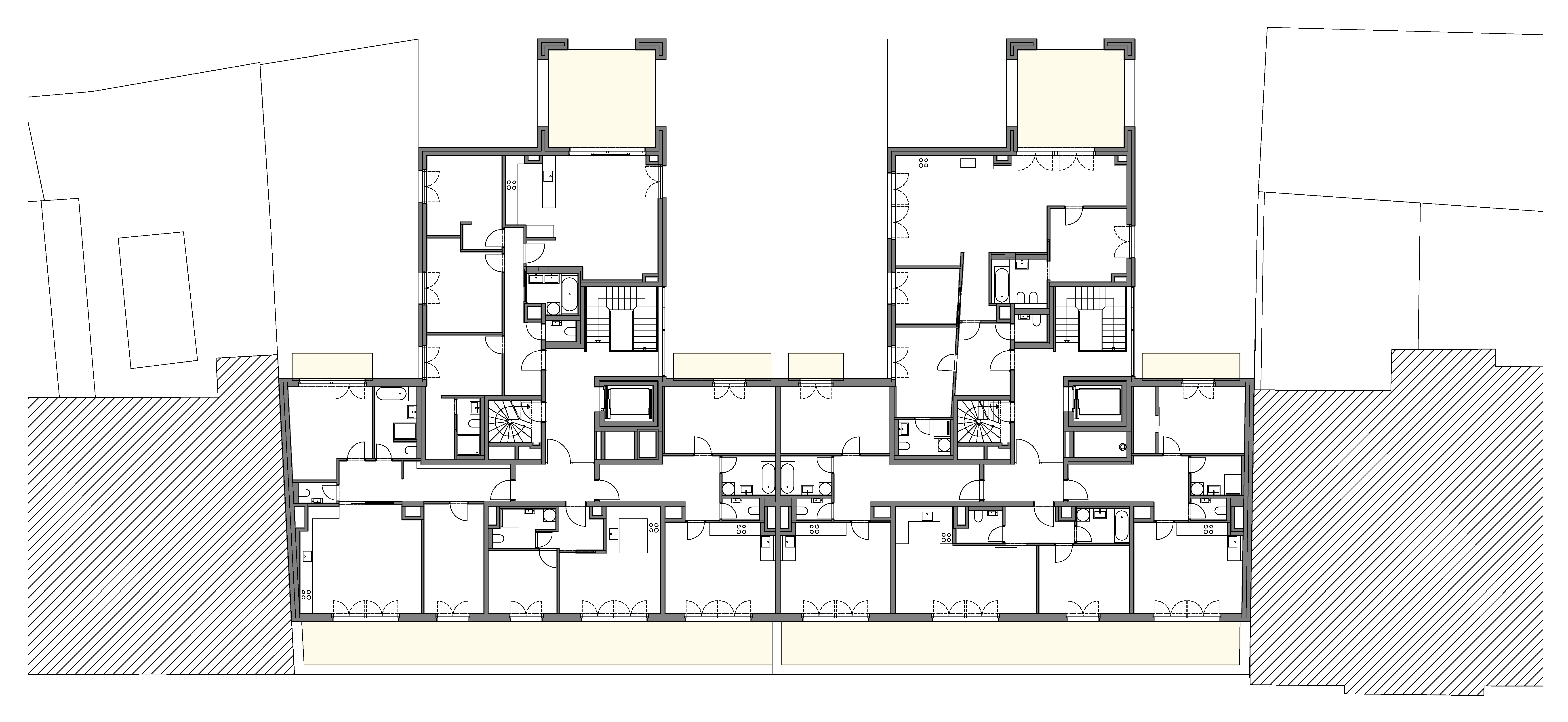
Pôdorys 1. NP
Pôdorys 1. NPAutor: A.LT
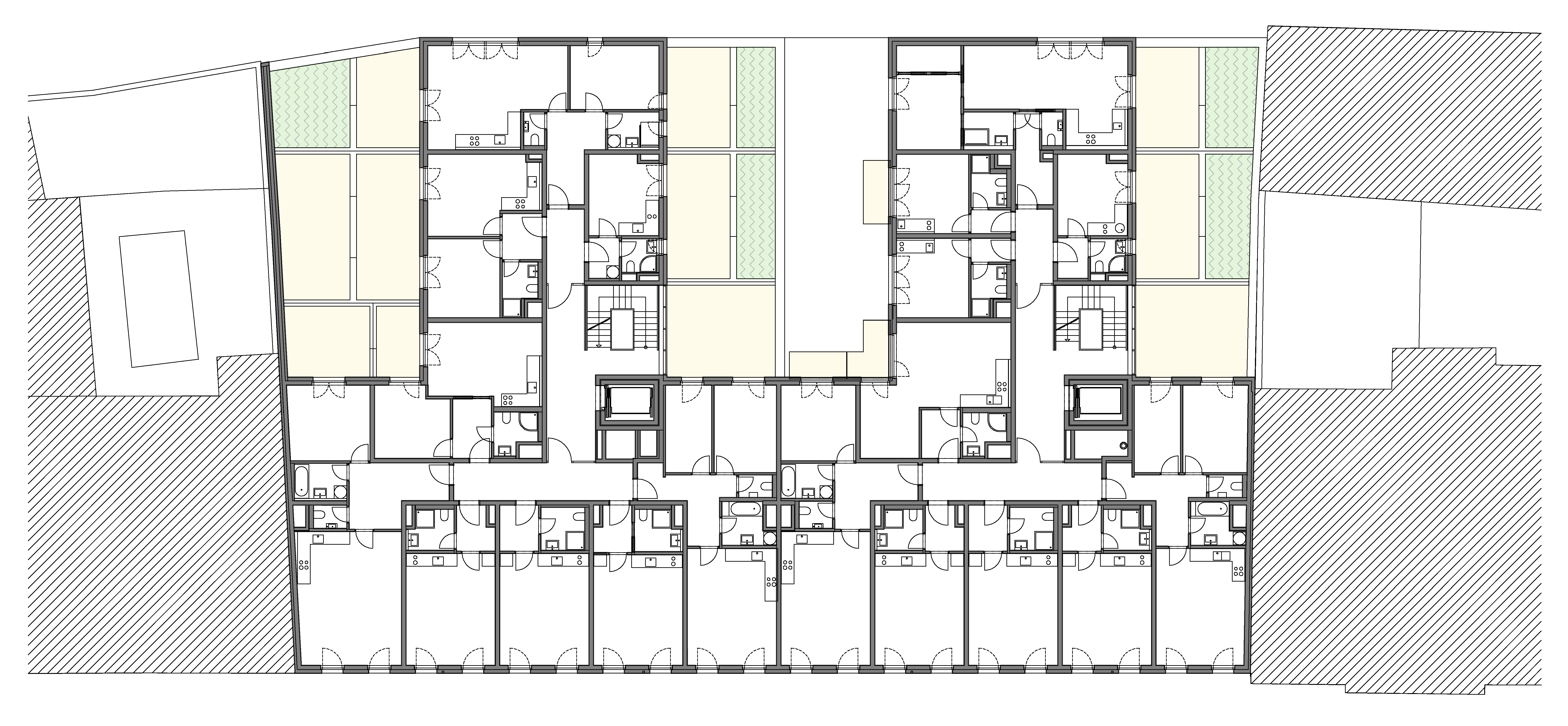
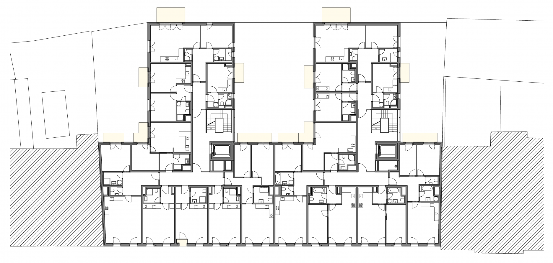
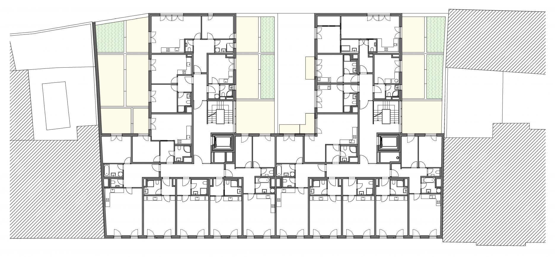
Pôdorys 2. NP
Pôdorys 2. NPAutor: A.LT
Pôdorys 3. NP
Pôdorys 3. NPAutor: A.LT
Pôdorys 4. NP
Pôdorys 4. NPAutor: A.LT
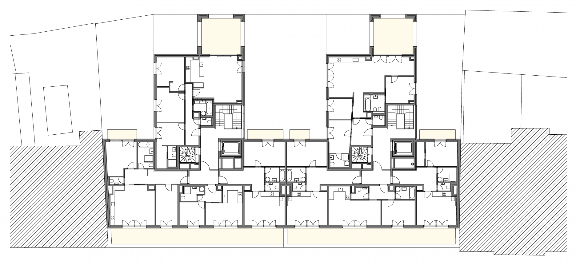
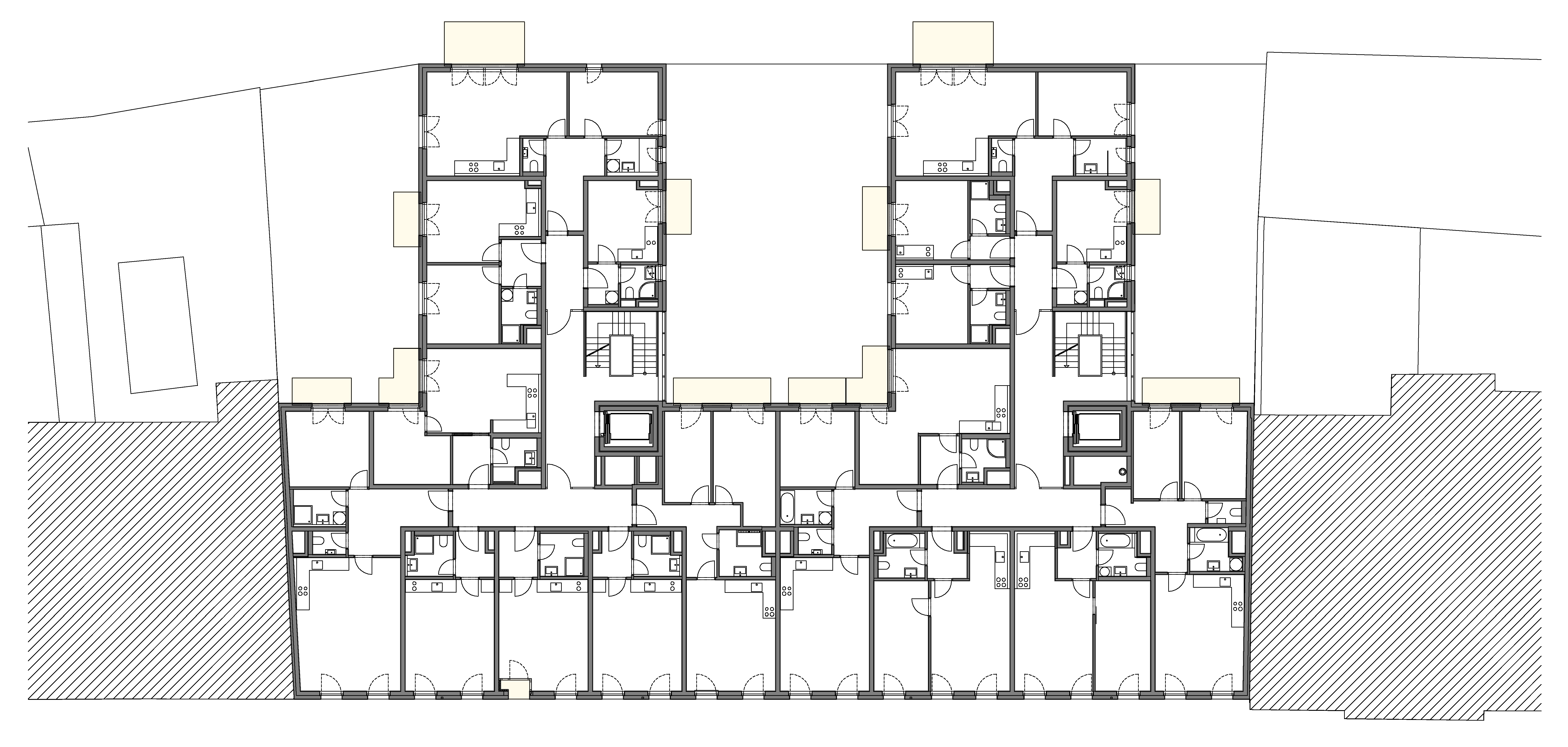
Pôdorys 5. NP
Pôdorys 5. NPAutor: A.LT
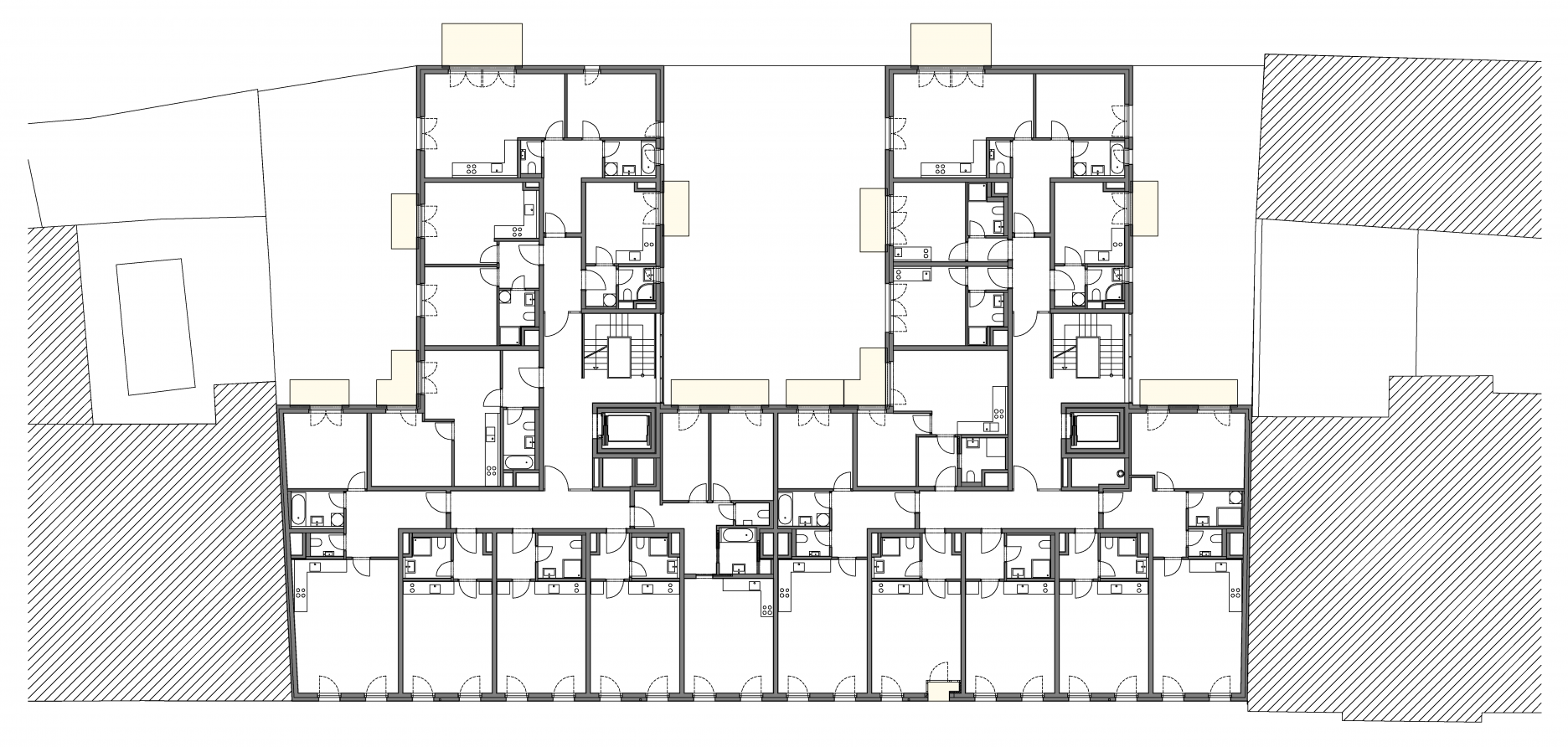
Pôdorys 6. NP
Pôdorys 6. NPAutor: A.LT
Pôdorys 7. NP
Pôdorys 7. NPAutor: A.LT
Rez priečny
Rez priečnyAutor: A.LT
Pohľad južný
Pohľad južnýAutor: A.LT
Pohľad severný
Pohľad severnýAutor: A.LT

Podklady: A.LT architekti

Poloha diela

Ing. arch. Peter Lacko
Ing. arch. Filip Tittelbach
MgA. Ing. Adam Kekula
Ing. arch. Lenka Dvořáková

Súvisiace články

Vložené
28. august 2017
0
1765
Hlavný obsahHlavný obsah
Čakajte prosím