Advertorial

95 rokov Internorm: 30 miliónov okien a dverí z Rakúska

Európska značka okien oslavuje jubileum: za 95 rokov sa vyvinula na najväčšiu medzinárodne pôsobiacu okennú značku a inovačného...

Pozvánka na 2. ročník stavebného veľtrhu BigMarket na Slovensku

Na podujatí sa predstaví až 37 vystavovateľov - popredných dodávateľov stavebných materiálov a inovácií s prezentáciou...

Hotel Hirschen Spa House, Rakúsko

Novotvar v prostredí alpskej obce.

Vytvorte si kúpeľňu snov: dizajnové riešenie od značky hansgrohe

Hansgrohe - prémiová značka kúpeľňových riešení, ponúka nadčasový dizajn, technickú precíznosť a udržateľné inovácie...

Okná Internorm za minuloročné ceny + hliníkový kryt zdarma!

Využite špeciálnu akciu Internorm: okná za minuloročné ceny a hliníkový kryt úplne zadarmo. Ponuka je časovo obmedzená!

Moderné plynové technológie: Efektivita a inovácie pre 21. storočie

Sumarizácia najdôležitejších inovácií, ktoré redefinujúcich využitie tohto energetického zdroja.

Utesňovanie spodných stavieb pomocou hydro-aktívnej fólie AMPHIBIA.

AMPHIBIA 3000 GRIP 1.3 od spoločnosti ATRO predstavuje modernú hydroizolačnú technológiu, ktorá spája vysokú odolnosť,...

Dekarbonizácia individuálneho vykurovania domácností – Green Deal evolučne a nie revolučne

Ambiciózne plány EK narazili na ekonomické možnosti domácností v jednotlivých členských štátoch –...

Minimalistické dvere IDEA – technická precíznosť a čistota prevedenia

IDEA DOOR od spoločnosti JAP prináša do interiéru čistý minimalistický vzhľad vďaka bezrámovému riešeniu a precíznej...

Dom s výhľadom na údolie, Dlouhý Most (ČR)

Kontinuita riešenia od vonkajšieho obkladu až po kovania a kľučky.

Schell Vitus – osvedčené riešenie pre sprchy a umývadlá vo verejnom sektore s viac ako desaťročnou tradíciou

Nástenné nadomietkové armatúry Vitus sú mimoriadne vhodné pre rýchlu a efektívnu...

Kompozitné okná predstavujú súčasnosť a budúcnosť

Okenné profily z kompozitného materiálu RAU-FIPRO X od spoločnosti Rehau sú v porovnaní s tradičnými plastovými profilmi mnohonásobne...

Myotis - stoly 2025

Najnovší sortiment stolov pre zariadenie interiérov...

Priemyselné sklenené priečky Dorsis Digero: svetelné rozhranie pre moderné interiéry

Spojenie moderného dizajnu, funkčnosti a svetla do harmonického architektonického prvku.

Význam prirodzeného svetla pre moderné a flexibilné pracovné prostredie

Kancelárska budova Baumit v slovinskom Trzine prešla premenou na moderné a udržateľné pracovisko. Architekti kládli dôraz...

Prestavba rodinného domu, Kraví hora, Brno

Čo je adekvátnay zásah a čo je už priveľa? S touto otázkou sa priebežne stretáva každý architekt pri rekonštrukciách objektov. Cieľom architektov i majiteľa bolo prispôsobiť dom požiadavkám na komfortné bývanie tak, aby aj naďalej ostal súčasťou historického rámca okolitých stavieb.
Diela
Red 420.10.2017
16890+25
Prestavba rodinného domu, Kraví hora, Brno
Autori: Ing. arch. Lukáš Urban, Ing. arch. Martin ČelikovskýInvestor: rodina SklenářovcovNávrh: 2012 - 2013Realizácia: 2014 - 2016Adresa: Wurmova 1, Brno, Česká republikaPublikované: 20. október 2017

Rekonštrukcia a prestavba vily v kompaktnej uličnej zástavbe Brna. Dielo sa dostalo do užšieho výberu poroty v tohtoročnej Českej cene za architektúru.

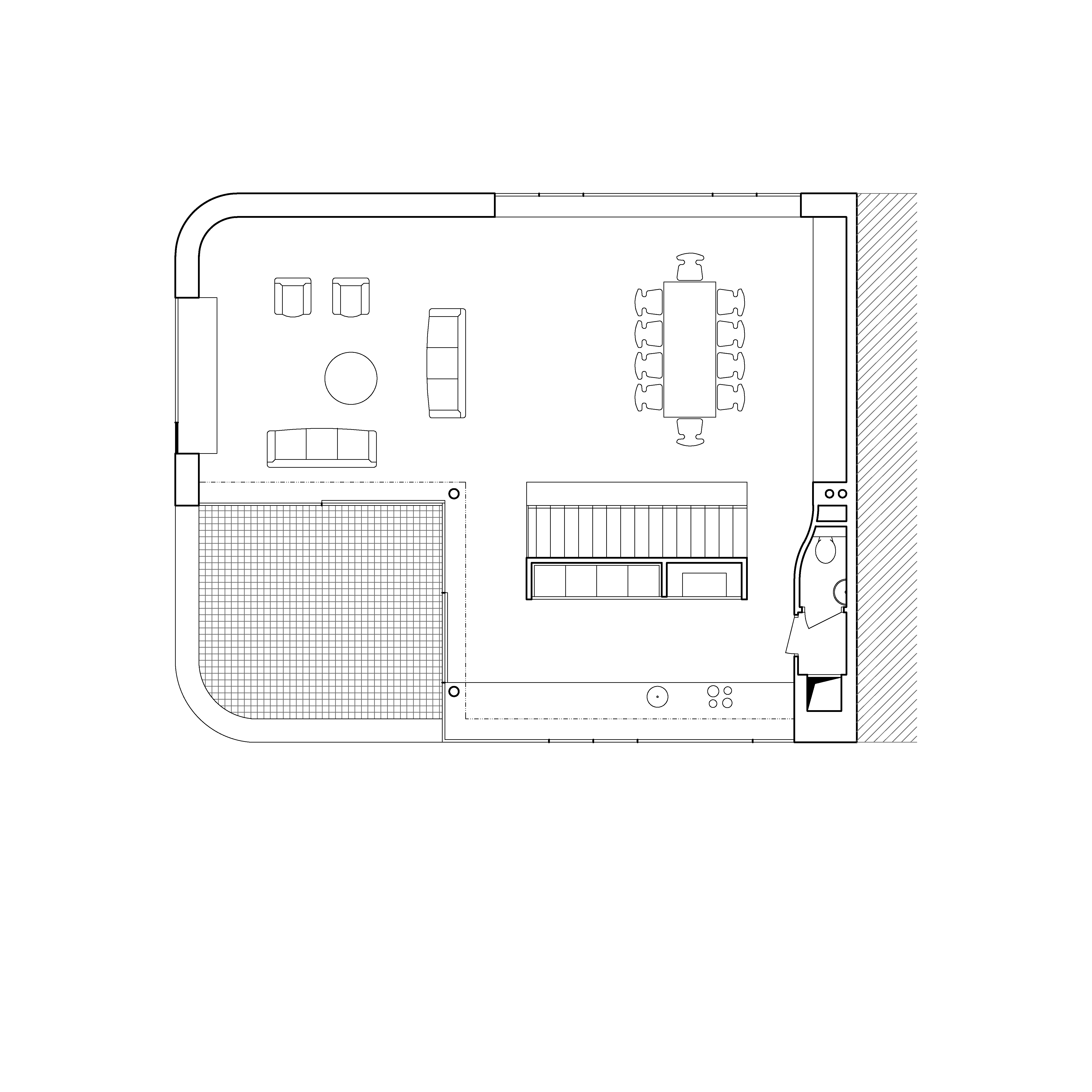
Rozšírený obytný priestor sa prejavil na hmotovej skladbe objektu. Krivka balkónu pôvodného domu určuje pôdorys novej prístavby. Podkrovie bolo prestavané na novú obytnú časť s kuchyňou a terasou na severovýchodnej strane. Tearsa profituje z diaľkových výhľadov a súčasne je chránená proti prehrievaniu v letných mesiacoch.

Po novo vybudovanom schodisku sa schádza na poschodie so spálňami a zázemím. Vrchný byt je spojený so vstupom pôvodným veľkorysým schodiskom, ktoré osvetľujú originálne lustre. Nástupné podlažie s menším bytom a podzemné podlažie s pivnicou a garážou zachováva pôvodné pôdorysné členenie. Garáž bola pre nedostatočnú hĺbku vysunutá z hmoty domu konštrukciou z vodostavebného betónu. Najnižšie podlažie je prepojené potravinovým výťahom s kuchyňou na treťom poschodí.

Pri rekonštrukcii boli použité trvácne materiály ako štuková omietka, terrazzo, žula, pohľadový betón a profilové sklo copilit. Monochromatická fasáda a konštrukčné detaily odkazujú na kontext okolitej zástavby.

Dom pred rekonštrukciou
Dom pred rekonštrukciou
Foto: Jiří Navrátil
Foto: Jiří Navrátil
Foto: Jiří Navrátil
Foto: Jiří Navrátil
Foto: Jiří Navrátil
Foto: Jiří Navrátil
Situácia
Situácia
Pôdorys 1. PP
Pôdorys 1. PPAutor: Urban Čelikovský Architekti
Pôdorys 1. NP
Pôdorys 1. NPAutor: Urban Čelikovský Architekti
Pôdorys 2. NP
Pôdorys 2. NPAutor: Urban Čelikovský Architekti
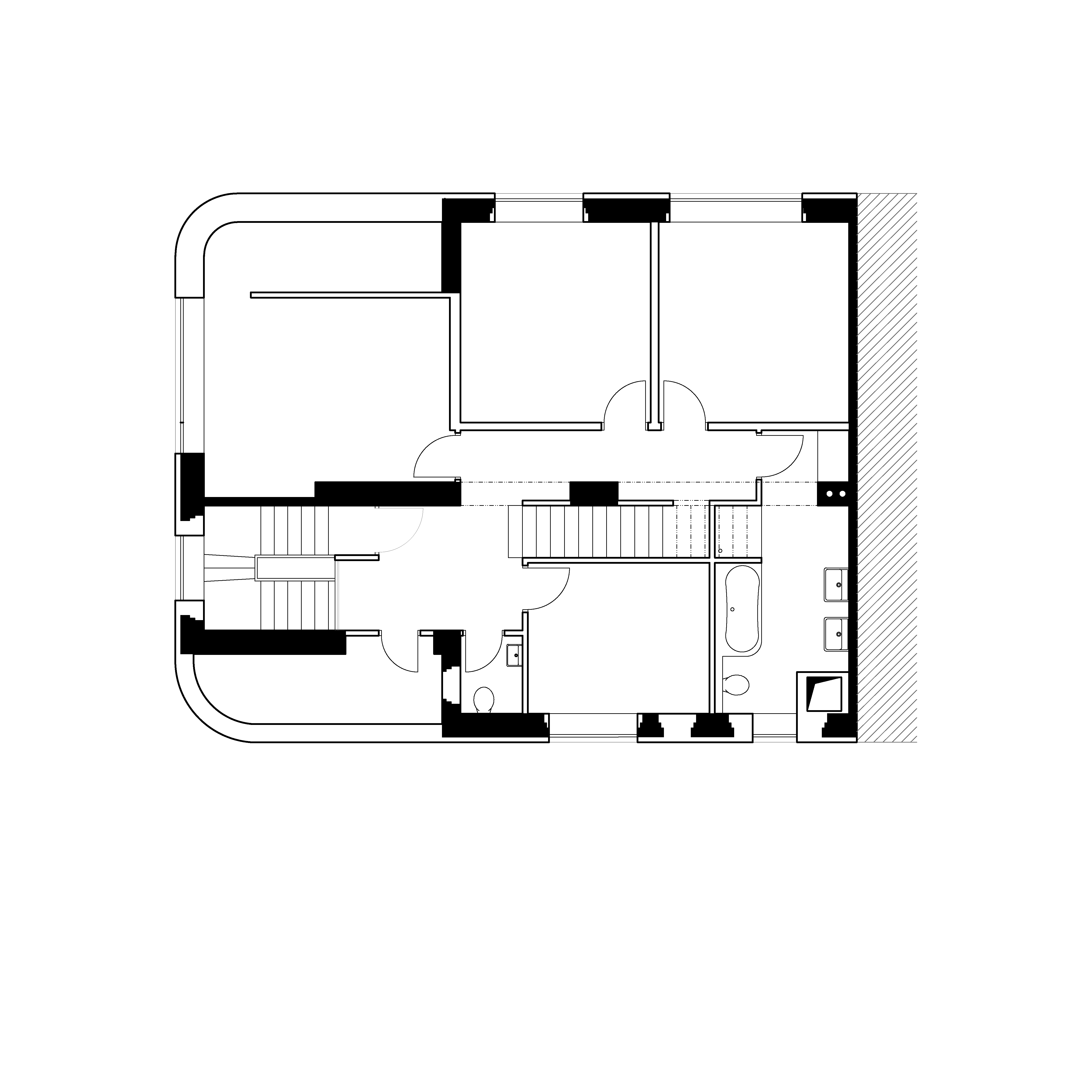
Pôdorys 3. NP
Pôdorys 3. NPAutor: Urban Čelikovský Architekti
Rez
RezAutor: Urban Čelikovský Architekti
Pohľad južný
Pohľad južnýAutor: Urban Čelikovský Architekti
Pohľad severný
Pohľad severnýAutor: Urban Čelikovský Architekti
Pohľad východný
Pohľad východnýAutor: Urban Čelikovský Architekti

V interiéri prevláda biela farba. Monochromatické farebné riešenie dopĺňajú drevené podlahy a nábytok. 

Vstupný priestor
Vstupný priestorFoto: Jiří Navrátil
Nové schodisko, ktoré vedie na najvyššie podlažie
Nové schodisko, ktoré vedie na najvyššie podlažieFoto: Jiří Navrátil

Otvorený priestor bytu na najvyššom podlaží priniesol novú kvalitu bývania. Benefitom je aj terasa s nerušeným výhľadom na panorámu Brna.

Obytný priestor na najvyššom podlaží spája funkciu obývacej izby, jedálne a kuchyne
Obytný priestor na najvyššom podlaží spája funkciu obývacej izby, jedálne a kuchyneFoto: Jiří Navrátil
Výhľad z obytnej časti
Výhľad z obytnej častiFoto: Jiří Navrátil
Priame prepojenie s terasou
Priame prepojenie s terasouFoto: Jiří Navrátil
Diaľkový priehľad z kuchyne
Diaľkový priehľad z kuchyneFoto: Jiří Navrátil
Kuchyňa je od obytnej časti oddelená nábytkovou stenou
Kuchyňa je od obytnej časti oddelená nábytkovou stenouFoto: Jiří Navrátil
Ćistá pracovná plocha a integrované odkladacie priestory
Ćistá pracovná plocha a integrované odkladacie priestoryFoto: Jiří Navrátil

Poloha diela

Ing. arch. Lukáš Urban
Ing. arch. Martin Čelikovský

Súvisiace články

Vložené
18. október 2017
0
1689
Hlavný obsahHlavný obsah
Čakajte prosím