Advertorial

Pozvánka na 2. ročník stavebného veľtrhu BigMarket na Slovensku

Na podujatí sa predstaví až 37 vystavovateľov - popredných dodávateľov stavebných materiálov a inovácií s prezentáciou...

Hotel Hirschen Spa House, Rakúsko

Novotvar v prostredí alpskej obce.

Vytvorte si kúpeľňu snov: dizajnové riešenie od značky hansgrohe

Hansgrohe - prémiová značka kúpeľňových riešení, ponúka nadčasový dizajn, technickú precíznosť a udržateľné inovácie...

Okná Internorm za minuloročné ceny + hliníkový kryt zdarma!

Využite špeciálnu akciu Internorm: okná za minuloročné ceny a hliníkový kryt úplne zadarmo. Ponuka je časovo obmedzená!

Moderné plynové technológie: Efektivita a inovácie pre 21. storočie

Sumarizácia najdôležitejších inovácií, ktoré redefinujúcich využitie tohto energetického zdroja.

Utesňovanie spodných stavieb pomocou hydro-aktívnej fólie AMPHIBIA.

AMPHIBIA 3000 GRIP 1.3 od spoločnosti ATRO predstavuje modernú hydroizolačnú technológiu, ktorá spája vysokú odolnosť,...

Dekarbonizácia individuálneho vykurovania domácností – Green Deal evolučne a nie revolučne

Ambiciózne plány EK narazili na ekonomické možnosti domácností v jednotlivých členských štátoch –...

Minimalistické dvere IDEA – technická precíznosť a čistota prevedenia

IDEA DOOR od spoločnosti JAP prináša do interiéru čistý minimalistický vzhľad vďaka bezrámovému riešeniu a precíznej...

Dom s výhľadom na údolie, Dlouhý Most (ČR)

Kontinuita riešenia od vonkajšieho obkladu až po kovania a kľučky.

Schell Vitus – osvedčené riešenie pre sprchy a umývadlá vo verejnom sektore s viac ako desaťročnou tradíciou

Nástenné nadomietkové armatúry Vitus sú mimoriadne vhodné pre rýchlu a efektívnu...

Kompozitné okná predstavujú súčasnosť a budúcnosť

Okenné profily z kompozitného materiálu RAU-FIPRO X od spoločnosti Rehau sú v porovnaní s tradičnými plastovými profilmi mnohonásobne...

Myotis - stoly 2025

Najnovší sortiment stolov pre zariadenie interiérov...

Priemyselné sklenené priečky Dorsis Digero: svetelné rozhranie pre moderné interiéry

Spojenie moderného dizajnu, funkčnosti a svetla do harmonického architektonického prvku.

Význam prirodzeného svetla pre moderné a flexibilné pracovné prostredie

Kancelárska budova Baumit v slovinskom Trzine prešla premenou na moderné a udržateľné pracovisko. Architekti kládli dôraz...

Konferencia Xella Dialóg predstaví novinky a trendy v stavebníctve

Mottom šiesteho ročníku on-line konferencie odborníkov Xella Dialóg je Efektívny návrh budov 2025+: zmeny a riešenia

Dom pre spisovateľku, Hoštka (ČR)

Pekná práca s denným svetlom v historickom hospodárskom objekte.
Diela
Red 326.11.2017
15500+14
Dom pre spisovateľku, Hoštka (ČR)
Autori: Dipl. arch Elan Neuman FesslerPodlažná plocha: 112 m2Investičný náklad: 1000 €/m2Návrh: 2012 - 2013Realizácia: 2013 - 2015Adresa: Hoštka, Česká republikaPublikované: 26. november 2017

Päťdesiat kilometrov od Prahy, v obci Hoštka vyrástol s rešpektom k remeslu staršej generácie moderný obytný priestor. Prístavba stojí na jednopodlažnej hospodárskej budove, a je rozšírením statku z 18. storočia, ktorý je v blízkosti námestia. V hustej vidieckej zástavbe autorka reinterpretuje tradičný drevený dom do modernej podoby. Stavbu s parametrami pasívneho domu stavali miestni remeselníci s použitím tradičných tesárskych techník. To všetko pri nákladoch ktoré dosiahli 1000 € na meter štvorcový obytnej plochy.

Foto: Petr Machan

“Negativní objemy uvnitř i vně navrženého domu definují prostor - artikulují rozdílnost od sousední budovy a řeší vnitřek jako spojitý prostor mezi úrovněmi,” približuje architektka filozofiu formovania objektu. Tri poschodia sú prepojené otvorenou galériou, “Ťažké” kamenné konštrukcie prízemia plynulo prechádzajú do ľahkej strešnej nadstavby.

Murivo pôvodnej hospodárskej budovy (pieskovec a tehla) ostalo zachované. Nové materiály boli zvolené tak, aby zanechávali čo najnižšiu uhlíkovú stopu a zároveň mali dlhú životnosť (miestne drevo, bambus a hliník).

V kontexte dediny dom nadväzuje na tradíciu murovaných a drevených utilitárnych hospodárskych objektov. Výhľady z domu do záhrady podčiarkujú úzku spätosť s vidieckym prostredím.

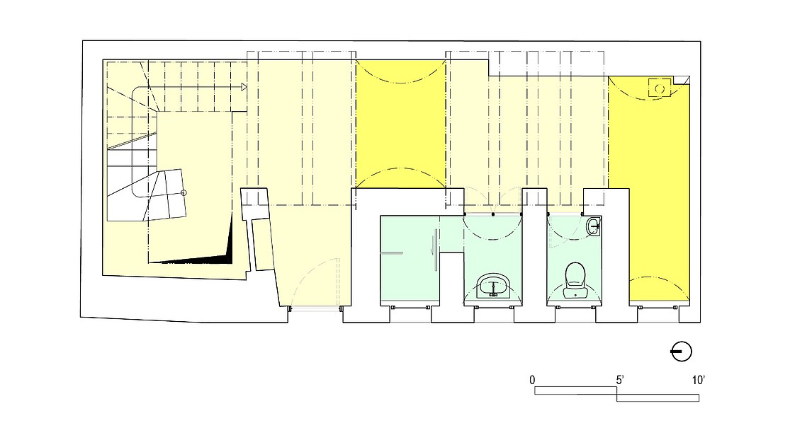
Pôdorys 1. NP
Pôdorys 1. NPAutor: Emergenative Architecture

Dom je orientovaný na juhozápad, kvôli dennému osvetleniu a prirodzenému vetraniu. Výmenu vzduchu zabezpečuje vetranie s rekuperáciou.  Dažďová voda je zvedená do záhrady. V zime je severná strana domu ohrievaná slnkom a funguje ako pasívna akumulačná stena. Tepelné straty domu sú menej ako 15W / m2K, tepelnú pohodu zabezpečujú aj okná s izolačným trojsklom. Nové steny tvoria montované sendvičové konštrukcie, ktoré sú izolované proti vlhkosti. Prirodzená a nútená cirkulácia vzduchu na oboch stranách minimalizuje vlhkosť v konštrukciách. Kombinácia pôvodného a nového je cenovo efektívnym a energeticky úsporným riešením. Odráža sa to na kvalite života obyvateľov domu.

Rezoperspektíva
RezoperspektívaAutor: Emergenative Architecture

V interiéri pôsobí ako zjednocujúci prvok biela farba. Pôvodné kamenné murivo, aj precízny remeselný detail nových drevených konštrukcií je hrdo priznaný. Doplňujúcim prvkom sú malé farebné akcenty.

Foto: Petr Machan
Foto: Petr Machan
Foto: Petr Machan
Foto: Petr Machan
Foto: Petr Machan
Foto: Petr Machan
Foto: Petr Machan
Foto: Petr Machan
Foto: Petr Machan
Foto: Petr Machan

Poloha diela

Dipl. arch Elan Neuman Fessler
Vložené
26. november 2017
0
1550
Hlavný obsahHlavný obsah
Čakajte prosím