Okenné profily z kompozitného materiálu RAU-FIPRO X od spoločnosti Rehau sú v porovnaní s tradičnými plastovými profilmi mnohonásobne...
Najnovší sortiment stolov pre zariadenie interiérov...
Spojenie moderného dizajnu, funkčnosti a svetla do harmonického architektonického prvku.
Kancelárska budova Baumit v slovinskom Trzine prešla premenou na moderné a udržateľné pracovisko. Architekti kládli dôraz...
Mottom šiesteho ročníku on-line konferencie odborníkov Xella Dialóg je Efektívny návrh budov 2025+: zmeny a riešenia
Robot WLTR predstavuje moderný prístup k murovaným konštrukciám. Vďaka automatizácii dokáže rýchlo, presne a bezpečne realizovať...
Okrem bezpečnosti majú okná aj elegantný vzhľad, pretože nie sú viditeľné žiadne uzamykacie časti kovania.
Dvere MASTER v skrytej zárubni AKTIVE je možné vyrobiť až do výšky 3 700 mm
Internorm stavia na energetickú efektívnosť a inteligentné tieniace riešenia.
Pohľad na moderné prístupy k výrobe s dôrazom na udržateľnosť.
Slovensko vo výbere zastupuje šesť realizácií.
Spoločnosť Internorm odteraz stavia na novej variante tepelnoizolačného skla od AGC, ktorá v produkcii ročne ušetrí 10...
Jubilejný 20. ročník prestížnej medzinárodnej súťaže pre študentov architektúry priniesol...
Otočné a posuvné dvere MASTER od podlahy až po strop, ponúkajú mimoriadnu variabilitu výšky, materiálu a zladenia so skrytými...
Predstavené produkty, spájajú premyslený dizajn, funkčnosť a udržateľnosť. Nábytok Materia vzniká s cieľom podporiť inšpiratívne stretnutia...

V tomto roku sa o Českú cenu za architektúru uchádzalo 249 diel. Víťaz i finalisti sa etablovali z radov 42 nominovaných projektov, ktoré sme predstavili v júni. Do finále postúpilo 6 diel, z ktorých porota vyberala víťaza.
Medzinárodná porota na čele s predsedníčkou Marianne Loof (Holandsko) pracovala v nasledovnom zložení: Matija Bevk (Slovinsko), Eelco Hooftman (Holandsko/Škótsko), Jiří Oplatek (Česká republika/Švajčiarsko), Jakub Szczęsny (Poľsko), Doris Wälchli (Švajčiarsko) a Ľubomír Závodný (Slovensko).
Porotcovia sa zišli na obhliadke diel začiatkom septembra. Zhodli sa na troch kritériách identifikácie vynikajúcej architektúry. Sledovali architektonickú kvalitu projektu, zvážili sociálne aspekty a prínos návrhu, nakoniec sa zamerali na pridanú hodnotu stavby vzhľadom na zadanie a záujmy klienta.
Hlavnú cenu porotcovia udelili projektu brnenského ateliéru Radka Květa Archeopark Pavlov.
Autori Radko Květ a Pavol Pijáček riešili umiestnenie múzea priamo v lokalite významného archeologického náleziska, v mieste sídla z obdobia skorého paleolitu. Areál je pritom od roku 2010 národnou kultúrnou pamiatkou. Objekt múzea je z veľkej časti zapustený štyri metre pod povrchom v terénnej vlne, zasahuje iba do oblasti, kde už prebehol komplexný archeologický výskum. V mieste stavby našli v minulosti bádatelia napríklad sošku venuše z Pavlova. Autori vychádzali z predpokladu, že prípadné ďalšie archeologické nálezy by boli v hĺbke štyri až päť metrov pod povrchom. Do exteriéru vystupujú iba presvetľovacie veže a lievikovitý vstup s výhľadmi na scenériu Pavlovských vrchov a vodnú nádrž Nové Mlýny. Stavba má evokovať plasticky tvarované jaskynné priestory. Priamo do expozície zakomponovali autori náleziská mamutích kostí.
Porota sa zhodla na víťazovi jednohlasne. Archeopark Pavlov je podľa nej „významný v mezinárodním měřítku a přitom silně rezonuje i v lokálním prostředí. Návrh vystihuje zároveň krajinu i historii místa. Budova doslova ponechává prostor krajině tím, že se schovává pod zem, a současně ji obohacuje artefakty, které navazují dialog se širším okolím.“ Porotcovia ocenili aj kvalitu realizácie a voľbu materiálov. „Tento projekt je působivý svým bezvadným provedením a s péčí vybranými a použitými materiály, jako je pohledový beton litý do bednění z přírodního dřeva použitý v podzemí a naopak probarvený litý beton s vápencovým kamenivem uplatněný v nadzemní části,“ zdôraznili.
Dielo sme predstavili tu.
Čestné ocenenie Finalista Českej ceny za architektúru 2017 získalo okrem víťaznej realizácie päť ďalších rôznorodých prác. Okrem hlavnej ceny sú ďaľšie dve diela z južnej Moravy:
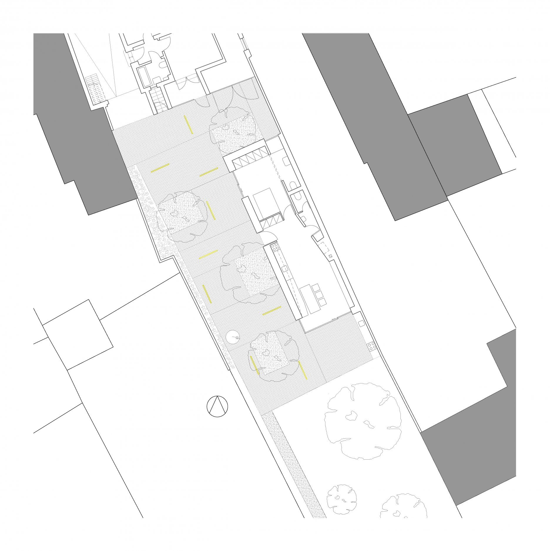
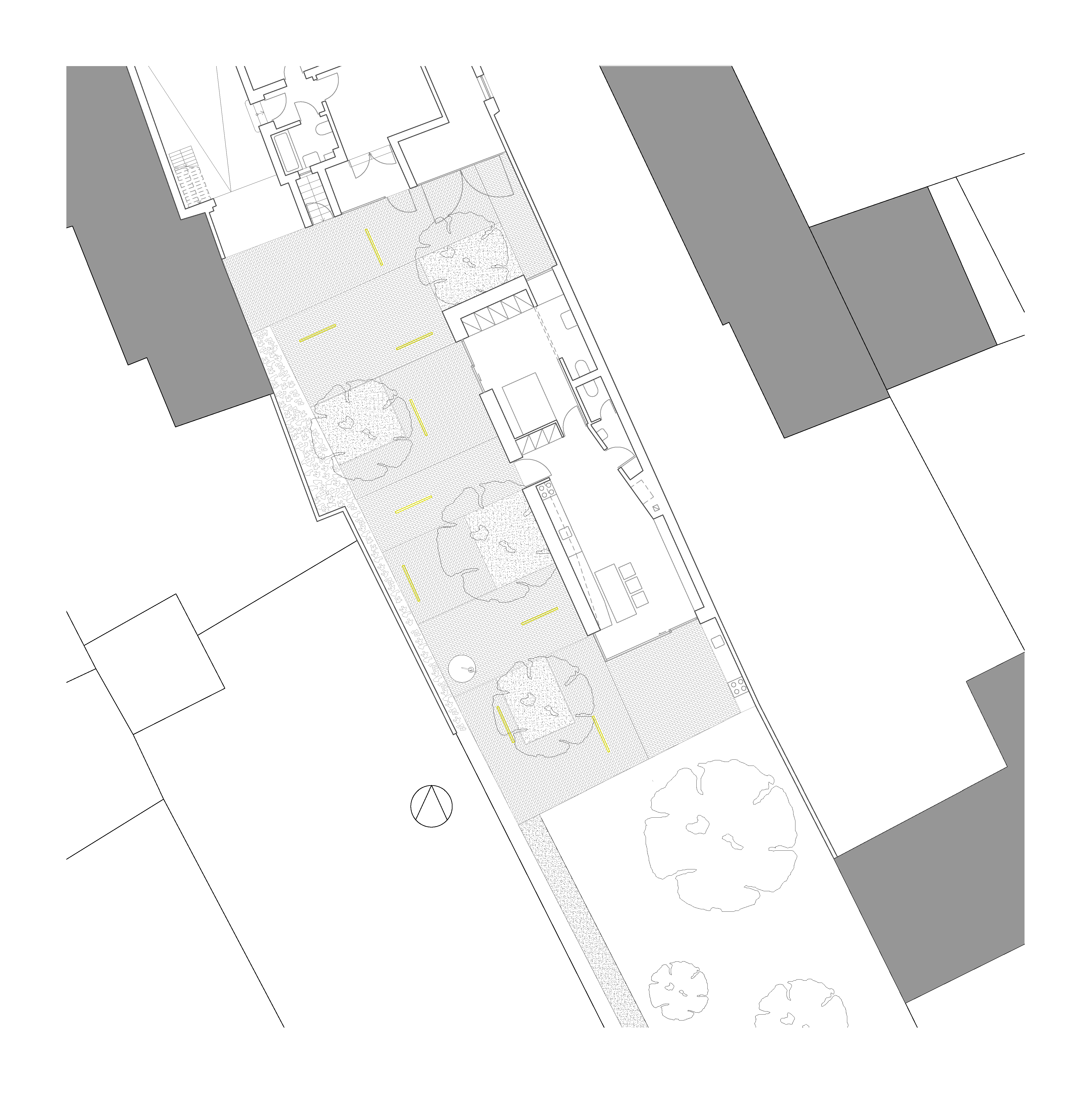
Dom v tehlovej záhrade - vlastný dom architekta Ján Proksu je tehlová novostavba citlivo a elegantne zasadená do tradičnej zástavby obce Prušánky.
Hodnotenie poroty:
Cihlový dům a zahrada, založené na tradiční urbánní struktuře jihomoravské vesnice, navrhují novou verzi typického vícegeneračního rodinného domu. Stávající omítnutý dům v čele vůbec nedává tušit, co se děje vzadu za ním. Když porota prošla bránou a verandou, okamžitě ji překvapila harmonie nově uspořádaného místa. Dům v zadní části dvora je tradičně budován z prostých materiálů. Cihly nejsou použity jen jako obklad stavby, ale i jako dlažba v zahradě, propojující tímto způsobem vnitřní prostor s vnějším. Letní kuchyně vytváří přechod do sadu a zeleninové zahrady. Přes svoji krásu a preciznost kompozice se přesnost celého návrhu jeví téměř v konfliktu s očekávanou skromností atmosféry dvorku.
Dielo sme predstavili tu.
Ďaľšou ocenenou realizáciou z južnej Moravy je Galéria nábytku ateliéru CHYBIK+KRISTOF Architects & Urban Designers na brnenských Vinohradoch. Jednopodlažný objekt nevalnej estetickej kvality získal novú, ľahko zapamätateľnú tvár vytvorenú z deviatich stoviek čiernych plastových sedákov. Interiér funguje na princípe galérie.
Hodnotenie poroty:
Jak je možné - v soutěži o nejlepší architektonický projekt - posuzovat krabici pokrytou plastovými židlemi „ztracenou“ v obecném kontextu mezi předměstskou výstavbou a silnicí? Ve své podstatě není Galerie nábytku v Brně vlastně nic než jen předměstská krabice programově podobná svým sousedům - a přesto se zdá být víc než jen to - lehoučká interpretace svého programu, s jasným vztahem k nejbližšímu okolí a ke kovovému „světu“, ve kterém se snaží zabydlet: využitím stávající budovy, odstraněním všech jejích zbytečností, obalením polykarbonátem a oblečením do „šatů“ skládajících se z toho, co se v ní vyrábí - plastových skořepinových židlí. Židle vytvářejí zároveň značku, obraz i povrch. Člověk musí tento projekt ocenit za jeho odvahu a úspěšný výsledek, za důkaz toho, že žádný program či místo není tak špatné, aby nestálo za (pečlivé) architektonické ztvárnění.
Dielo sme predstavili tu.
Medzi finalistami bolo tento rok aj jedno dielo, ktoré vzišlo z architektonickej súťaže - Komunitné centrum Máj ateliéru SLLA. Ide o novostavbu centra pre služby sociálnej starostlivosti zamerané na deti a mládež na rovnomennom českobudejovickom sídlisku.
Hodnotenie poroty:
Nové komunitní centrum je součástí regenerace celého sídliště. Spolu s poštou, spořitelnou a plánovanými multifunkčními budovami tvoří místní centrum s tržištěm. Salesiánské komunitní centrum nabízí řadu sociálních a poradenských služeb zaměřených na děti a mládež a zahrnuje i mateřské centrum, centrum primární preventivní péče, péči o seniory a služebnu městské policie. Poloveřejné prostory lemující okraj nového náměstí mají sloužit jako místo společenského setkávání dětí a teenagerů. Schody a ostatní společné plochy na všech úrovních obvodu budovy umožňují propojit její různé části, jako třeba střechu s hřištěm. Otevřená transparentní architektura, galerie se schodišti, popínavá zeleň, hřiště na střeše - to vše pomáhá docílit otevřenosti. Svým neotřelým výrazem je budova schopná přijmout a zvládat všechny své uživatele, ale porota si též všimla, že budova zároveň postrádá prostorovou kvalitu a vypracování interiérů. Silný výraz budovy a transparentní architektura jsou pozitivním přínosem k nedostatečné sociální soudržnosti mezi lidmi s různým zázemím. Porota si nicméně myslí, že výrazná architektura s galeriemi, které budovu obklopují, není v dostatečné rovnováze s vnitřním využitím. Přesto je návrh Komunitního centra Máj přesvědčivým přínosem k urgentním společenským problémům okrajových částí měst.
Dielo sme predstavili tu.
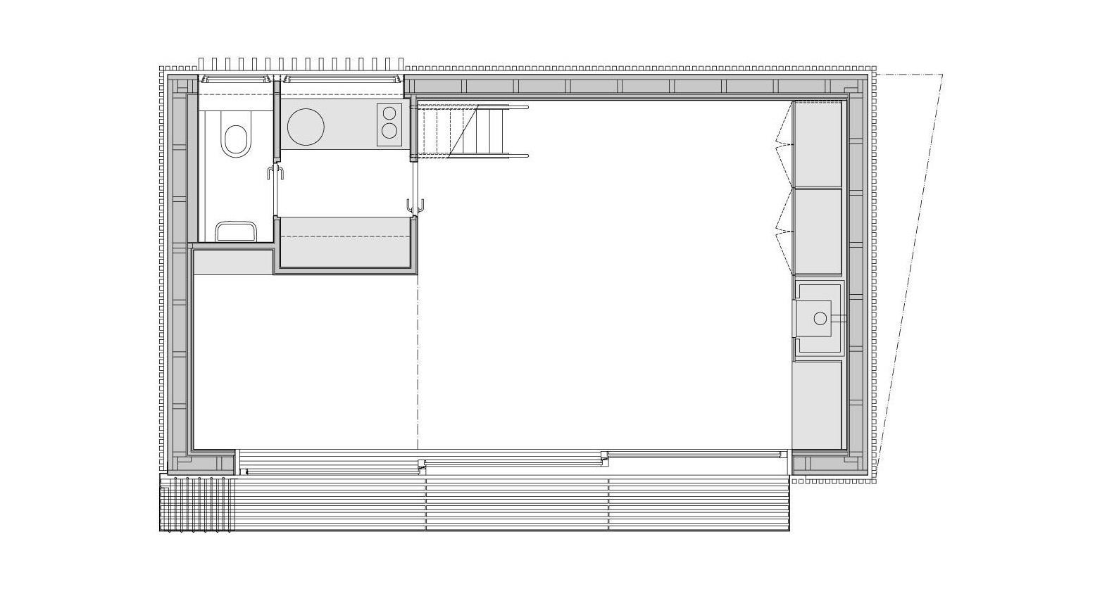
Medezi najlepšie diela porota zaradila aj realizáciu pražského ateliéru FAM - Chatu pri jazere. Objekt určený pre celoročnú rekreáciu sa nachádza pri Máchovom jazere v Severných Čechách.
Hodnotenie poroty:
Chata u jezera je hezkým příkladem architektonického epitomu. Je to jasná forma nabízející ikonografickou jednoduchost i přiměřenou bohatost detailu, avšak bez prchavého luxusního nadbytku nebo nestřídmosti. Pultová střecha s chytrým nápadem, jak odvádět přebytečnou vodu od příčné fasády, skládací panely zakrývající velké posuvné dveře a okno v mezaninu zakryté vertikální žaluzií, která je součástí dřevěné fasády, přispívají k efektu architektonické bohatosti. Díky širokému otvoru pro trojdílné posuvné dveře, které rámují výhled na jezero, bez ohledu na jeho masivní formu, je projekt jasným důkazem toho, jak důležitý je kontext. Při posuzování v kategorii „lifestyle/livability“ (životní styl/možnost obývání) projekt dostal vysoké hodnocení, protože řada porotců byla uchvácena architektonickými kvalitami vnější formy a interiéry, ale také kvůli pocitu harmonie s okolím, která z chaty vyzařovala. Není příliš běžné, aby se zážitek z místa a budovy stával silným smyslovým potěšením doprovázeným kladným hodnocením čistě analytické povahy.
Dielo sme predstavili tu.
Zástupcom rekonštrukcie je aj Javornická pálenica, dielo ateliéru ADR. Nový areál ovocného liehovaru vznikol čiastočnou rekonštrukciou juhočeskej hospodárskej usadlosti z konca 19. storočia.
Hodnotenie poroty:
Porota oceňuje velmi precizní uspořádání rekonstruované bývalé hospodářské usedlosti. Stávající a nové hmoty vytvářejí nový soubor přirozeně, s atraktivními a dobře proporčně formovanými vnějšími prostory. Nová bílá kostka u silnice jasně definuje hranici usedlosti vůči otevřené krajině, pracuje s mohutným stromem a kapličkou na druhé straně v klasické vstupní situaci. Renovace starých částí, stejně jako materiály, vypadají nevzrušivě, přirozeně a bez jakýchkoliv rádoby moderních atributů. Lehký materiálový posun mezi starým a novým přesto umožňuje nové části rozeznat. Vysoce kultivovaný přístup architekta i klienta představuje nepochybně modelový zásah do struktury ustáleného charakteru typické české vesnice.
Dielo sme predstavili tu.
Štyri mimoriadne ceny
V rámci Českej ceny za architektúru sa udeľujú aj mimoriadne ceny partnerov. Cenu VELUX za najlepšiu prácu s denným svetlom v interiéri získal Dom pre spisovateľku v obci Hošťka - realizácia ateliéru Emergenative Architecture. Porota ocenila, že autori pristupujú s pokorou k práci predchádzajúcich generácií. Na týchto základoch vyrastá moderný obytný celok. Trojpodlažný otvorený vnútorný priestor cielene pracuje s denným svetlom a efektívne ho distribuuje do všetkých podlaží.
Dielo sme predstavili tu.
Cena Karlín Group za angažovaný prístup k záchrane a tvorbe výnimočného verejného priestoru putuje do Centra pre stredoeurópsku architektúru MOBA za projekt Leto pod viaduktom . Porota ocenila angažovaný prístup k záchrane a tvorbe verejného priestoru, ktorý svojou podobou a náplňou zásadne ovplyvní západnú časť Karlína.
Dielo sme predstavili tu.
Cenu Agentúry ochrany prírody a krajiny Českej republiky získal výherca hlanej ceny Archeopark Pavlov. Agentúra vyzdvihla architektonické kvality diela citlivo vsadeného do krajiny a hlbokú väzbou na prírodné, kultúrne i historické dedičstvo Pálavy a jej okolia. Náplňou má stavba podľa hodnotiteľov nadregionálny význam.
Dielo sme predstavili tu.
Cenou Ministerstva priemyslu a obchodu za revitalizáciu priemyselného objektu vyznamenali hodnotitelia opavské centrum Breda & Weinstein, dielo ateliéru Šafer Hájek. Ocenili citlivú konverziou bývalého pivovaru, kde autori pristupovali s úctou k architektonickým kvalitám pôvodnej industriálnej stavby a podarilo sa im zachovať pivovarský komín aj historický ráz fasád a tehlových múrov.
Dielo sme predstavili tu.
Výnimočné počiny z oblasti architektúry
V rámci Českej ceny za architektúru sú tiež oceňované výnimočné aktivity na poli architektúry. Nomináciu vykonávajú členovia Akadémie a Grémia Českej ceny za architektúru. Akademici o výnimočnom počine hlasovali na webovom portáli Ceny. V tomto roku boli udelené celkovo tri ceny za Výnimočný počin.
Ocenenie sa dostalo Domu umenia v Českých Budějoviciach za kurátorskú činnosť Michala Škodu. Ten podľa akademikov robí z pôvodne malej regionálnej galérie jedno z významných centier domácej umeleckej a v posledných rokoch predovšetkým architektonickej scény, s významnými medzinárodnými presahmi. Prepája súčasné umenie, architektúru a verejný priestor, čím prináša inšpiratívne podnety pre premýšľanie o podstate architektonickej a umeleckej tvorby vôbec.
Ďalšií Výnimočný počin Českej ceny za architektúru za rok 2017 putuje starostom mesta Litomyšl - Miroslavovi Brýdlovi, Janovi Janečkovi, Michalovi Kortyšovi a Radomilovi Kašparovi. Starostovia mesta Litomyšl, ktorí stáli na jeho čele po roku 1989, si zaslúžia podľa názoru akademikov uznanie a ocenenie za svoju sústavnú prácu pre mesto, ktorá viedla k vzniku mimoriadneho fenoménu mesta Litomyšl, kde sa darí koncepčnému uvažovaniu o meste a dobrej architektúre. Zvláštne ocenenie si potom v tejto súvislosti zaslúži ich schopnosť spolu komunikovať aj potom, čo odišli z funkcie starostu, čo vedie ku kontinuite tejto práce, keď zmena starostu neznamená zmenu v prístupe k rozvoju mesta.
Tretím Výnimočným počinom Českej ceny za architektúru za rok 2017 je rozhlasový program Českého rozhlasu Radia Wave a Adama Gebriana - Bourání. Predstavuje výnimočne kvalitný a aktuálny prehľad všetkého dôležitého, čo sa v Českej architektúre odohráva, formou osobných výpovedí pozvaných hostí.
Ocenené diela Česká komora architektov vystaví od 29. novembra v Galérii Jaroslava Fragnera v Prahe a od 13. februára 2018 v Galérii architektúry Brno.
Pre slovenského čitateľa je zaujímavé aj priame porovnanie z našou cenou CE∙ZA∙AR.