Advertorial

Okná Internorm za minuloročné ceny + hliníkový kryt zdarma!

Využite špeciálnu akciu Internorm: okná za minuloročné ceny a hliníkový kryt úplne zadarmo. Ponuka je časovo obmedzená!

Pozvánka na 2. ročník stavebného veľtrhu BigMarket na Slovensku

Na podujatí sa predstaví až 37 vystavovateľov - popredných dodávateľov stavebných materiálov a inovácií s prezentáciou...

Moderné plynové technológie: Efektivita a inovácie pre 21. storočie

Sumarizácia najdôležitejších inovácií, ktoré redefinujúcich využitie tohto energetického zdroja.

Utesňovanie spodných stavieb pomocou hydro-aktívnej fólie AMPHIBIA.

AMPHIBIA 3000 GRIP 1.3 od spoločnosti ATRO predstavuje modernú hydroizolačnú technológiu, ktorá spája vysokú odolnosť,...

Dekarbonizácia individuálneho vykurovania domácností – Green Deal evolučne a nie revolučne

Ambiciózne plány EK narazili na ekonomické možnosti domácností v jednotlivých členských štátoch –...

Minimalistické dvere IDEA – technická precíznosť a čistota prevedenia

IDEA DOOR od spoločnosti JAP prináša do interiéru čistý minimalistický vzhľad vďaka bezrámovému riešeniu a precíznej...

Dom s výhľadom na údolie, Dlouhý Most (ČR)

Kontinuita riešenia od vonkajšieho obkladu až po kovania a kľučky.

Schell Vitus – osvedčené riešenie pre sprchy a umývadlá vo verejnom sektore s viac ako desaťročnou tradíciou

Nástenné nadomietkové armatúry Vitus sú mimoriadne vhodné pre rýchlu a efektívnu...

Kompozitné okná predstavujú súčasnosť a budúcnosť

Okenné profily z kompozitného materiálu RAU-FIPRO X od spoločnosti Rehau sú v porovnaní s tradičnými plastovými profilmi mnohonásobne...

Myotis - stoly 2025

Najnovší sortiment stolov pre zariadenie interiérov...

Priemyselné sklenené priečky Dorsis Digero: svetelné rozhranie pre moderné interiéry

Spojenie moderného dizajnu, funkčnosti a svetla do harmonického architektonického prvku.

Význam prirodzeného svetla pre moderné a flexibilné pracovné prostredie

Kancelárska budova Baumit v slovinskom Trzine prešla premenou na moderné a udržateľné pracovisko. Architekti kládli dôraz...

Konferencia Xella Dialóg predstaví novinky a trendy v stavebníctve

Mottom šiesteho ročníku on-line konferencie odborníkov Xella Dialóg je Efektívny návrh budov 2025+: zmeny a riešenia

Murovací robot WLTR stavia svoj prvý dom na Slovensku

Robot WLTR predstavuje moderný prístup k murovaným konštrukciám. Vďaka automatizácii dokáže rýchlo, presne a bezpečne realizovať...

Nová éra bezpečnosti s I-tec Secure od Internorm

Okrem bezpečnosti majú okná aj elegantný vzhľad, pretože nie sú viditeľné žiadne uzamykacie časti kovania.

Filozofická fakulta Masarykovej univerzity, Brno

Cieľom prestavby univerzitného areálu bolo premeniť heterogénnu skladbu stavieb na ucelený univerzitný kampus.
Diela
Red 419.09.2017
12850+12
Filozofická fakulta Masarykovej univerzity, Brno
Autori: prof. Ing. arch. Petr Pelčák, Ing. Rastislav Balog, Ing. Petr Eliáš, Ing. Kateřina Eiermannová, Ing. arch. Pavel Dvořák, Ing. arch. Tomáš Machovský, Ing. arch. Lenka Musilová, Ing. Petr Uhrín, Ing. arch. David VahalaInvestor: Masarykova univerzitaInvestičný náklad: 222,5 mil. KčNávrh: 2010 - 2010Realizácia: 2010 - 2015Adresa: Arne Nováka , 1, Brno-střed, Česká republikaPublikované: 19. september 2017

Architektúra nie je len tvorba objektov. Je to najmä tvorba priestorov a vzťahov medzi nimi. Či už vovnútri budov, alebo v usporiadaní vzájomných vonkajších súvislostí. Dnešné dielo je peknou ukážkou tvorby rešpektujúcej kontext. Stavba sa dostala do užšieho výberu v tohtoročnej Českej cene za architektúru.

Fakulta bola pri svojom vzniku umiestnená do budovy sirotinca. Ten bol ďaľej dostavovaný, až blok domov obostaval pôvodnú záhradu. Projekt ateliéru Pelčák a partner sa snaží do nesúrodej štruktúry vniesť poriadok, tak aby vznikol fungujúci celok. Novostavba a prestavaná budova, ktorá tvorí čelo súboru majú analogicky navrhnuté tehlové fasády s jednotným členením, organizujú areál fakulty a prinášajú spoločný motív. Prehľadnosť skladby areálu podporujú omietané historické fasády oboch budov.

“Během posledních sto padesáti let vzniklé směsici budov, tvořící dnes areál filozofické fakulty, jsme chtěli dát téma tak, aby vzniklo skutečné univerzitní prostředí, universitní kampus. Jeho středem, stmelujícím prvkem i výjimečným, volným prostorem je vnitřní dvůr, který kdysi býval částí zahrady městského sirotčince, do něhož byla fakulta v době svého vzniku roku 1920 umístěna,” hovoria o hlavnom motíve návrhu autori.

Foto: Filip Šlapal
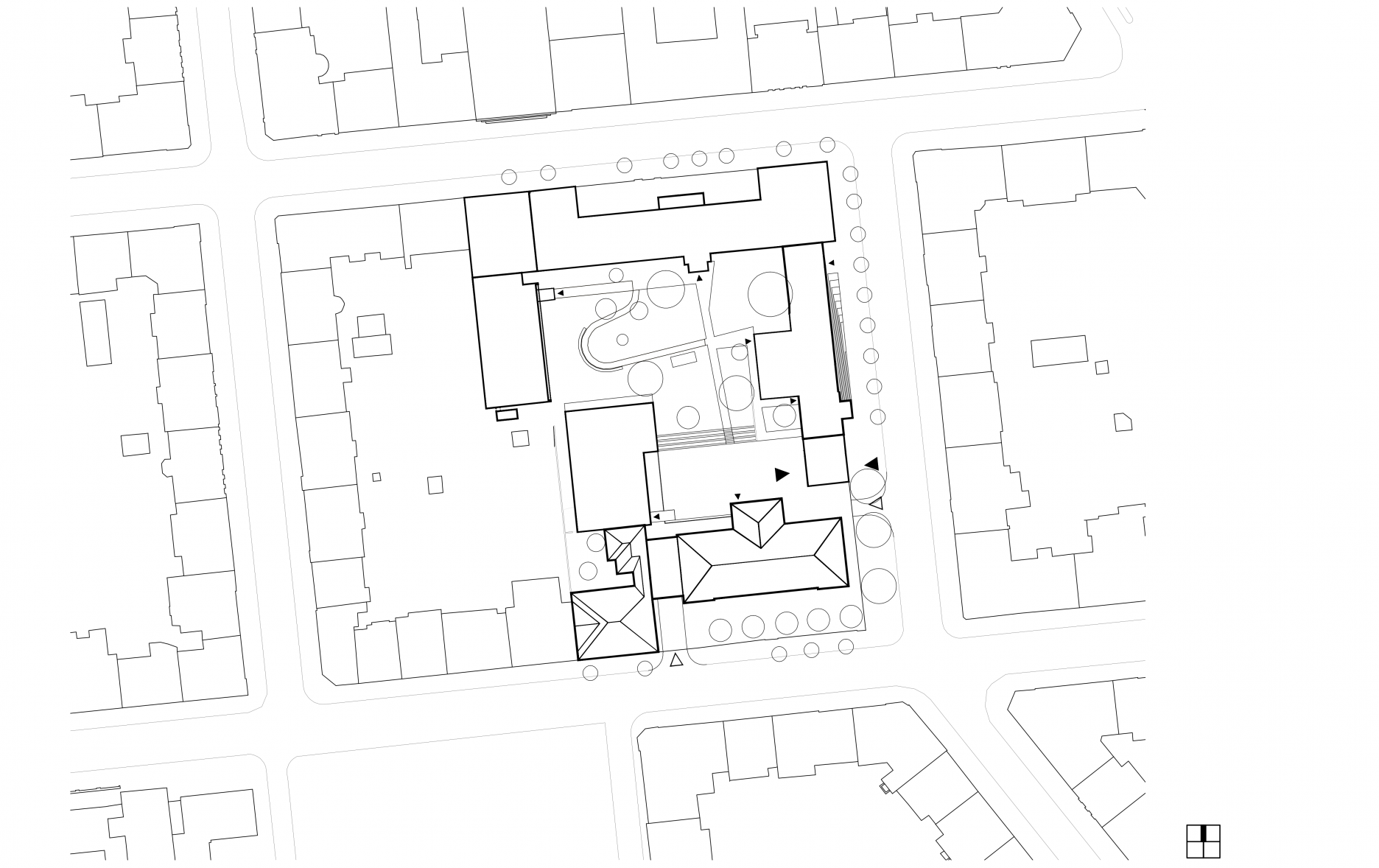
Situácia
Situácia

Z utilitárneho dvora sa stalo univerzitné nádvorie. Z prevádzkových dôvodov je aj naďalej rozdelené na dláždenú časť - piazettu, do ktorej je orientovaný nový hlavný vstup a na park. Ich rozhranie je artikulované terénnymi stupňami. Vzniká tak prírodný amfiteáter, ktorý môže byť využitý na výučbu pod holým nebom (cez prázdniny na fakulte prebieha letná škola slovanských jazykov), či ako skutočné hľadisko smerujúce na vydláždenú plochu. Tá je na západnej strane ukončená vodnou plochou. Zvuk tečúcej vody odrážaný fasádami obohacuje atmosféru priestoru. “Na charakter a užitnost venkovních ploch jsme kladli velký důraz. Nádvoří se stává středem kampusu také proto, že do něj směruje nově navržený vstup do areálu. Ten již tedy není veden skrze jednu z řady budov, nýbrž do prostoru mezi nimi, do jejich těžiště, ze kterého se vstupuje do každé ze staveb,” približujú riešenie Petr Pelčák.

Foto: Filip Šlapal

V rámci rekonštrukcie boli riešené dve budovy, ktoré uzatvárajú univerzitný blok a dodávajú kampusu prehľadnosť a formálnu jednotu. Sú to budovy rovnobežné s ulicou Arne Nováka (z tejto ulice sa do kampusu vstupuje). Prvá z budov je kompletne prestavaná a tvorí vstupné čelo súboru. Druhou je novostavba, ktorá uzatvára areál zo západu. Obe majú tehlové fasády s rovnakým členením a zhodnými oknami. Vytvárajú tak spolu stavebnú substanciu vymedzujúcu a organizujúcu areál - prinášajú jednotný motív a charakter. Prehľadnosť a zrozumiteľnosť jeho skladby podporujú omietnuté, klasicky členené fasády oboch kolmých budov vymedzujúcich areál od ulíc Gorkého a Grohova.

Foto: Filip Šlapal
Foto: Filip Šlapal

Novostavba stojí na mieste provizórnej budovy z roku 1922, ktorá bola asanovaná. Tažiskom nového objektu je cez všetky podlažia otvorená komunikačná hala. Priestor s priamym schodiskom v dvoch nožnicovo usporiadaných ramenách je presvetlený skleneným stropom. Okolo centrálnej haly sú pozdĺž východnej a severnej fasády situované učebne. K západnej fasáde sú orientované pracovne doktorandov a výskumných pracovníkov. Na prízemí je auditórium. Na zvýšenom poslednom podlaží sídli knižnica historického ústavu s vysokým otvoreným priestorom čitárne. O tepelnú pohodu v budove sa stará technológia aktivácie betónového jadra. Na exponovanej západnej fasáde boli tiež výrazne zredukované presklené plochy. 

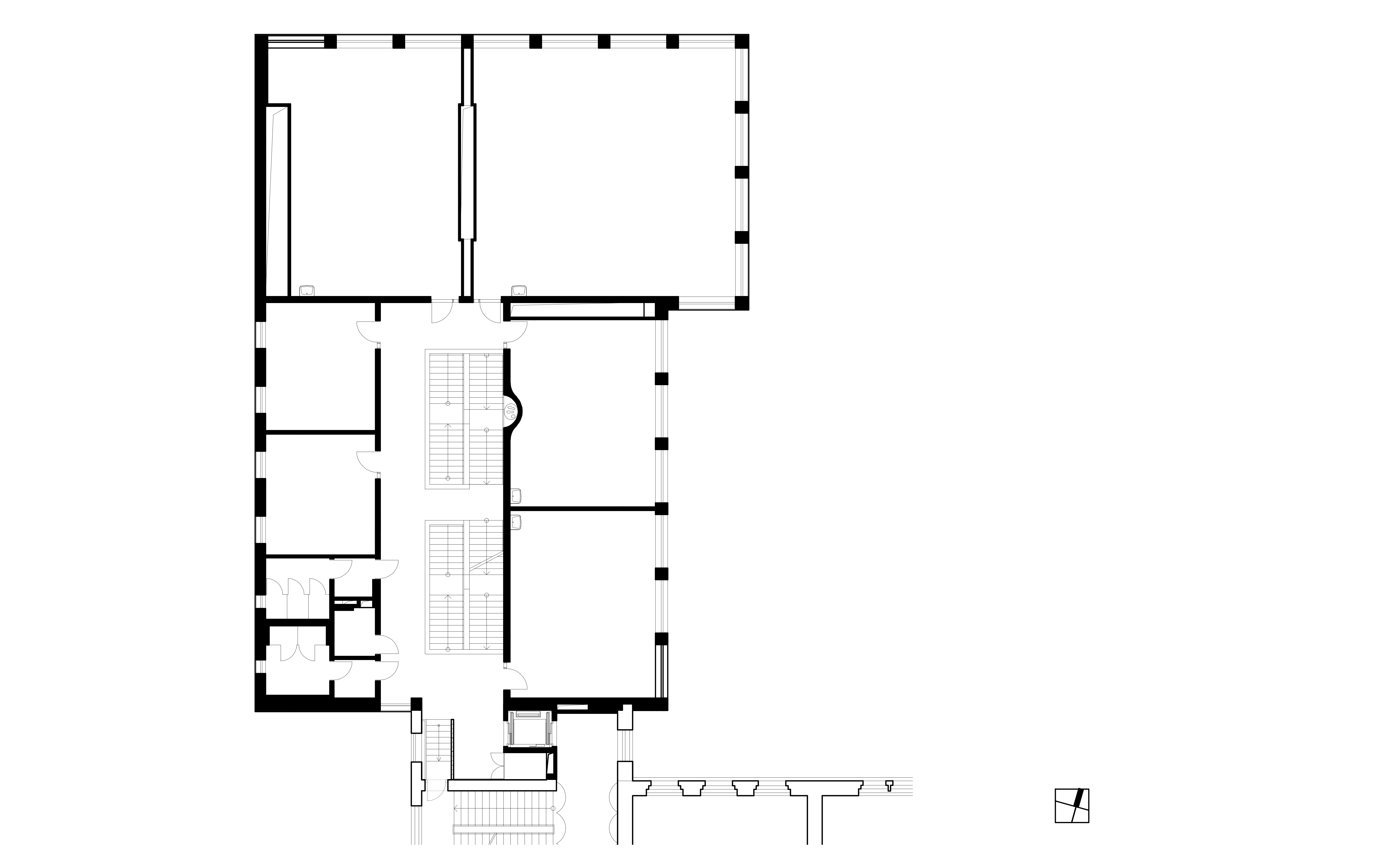
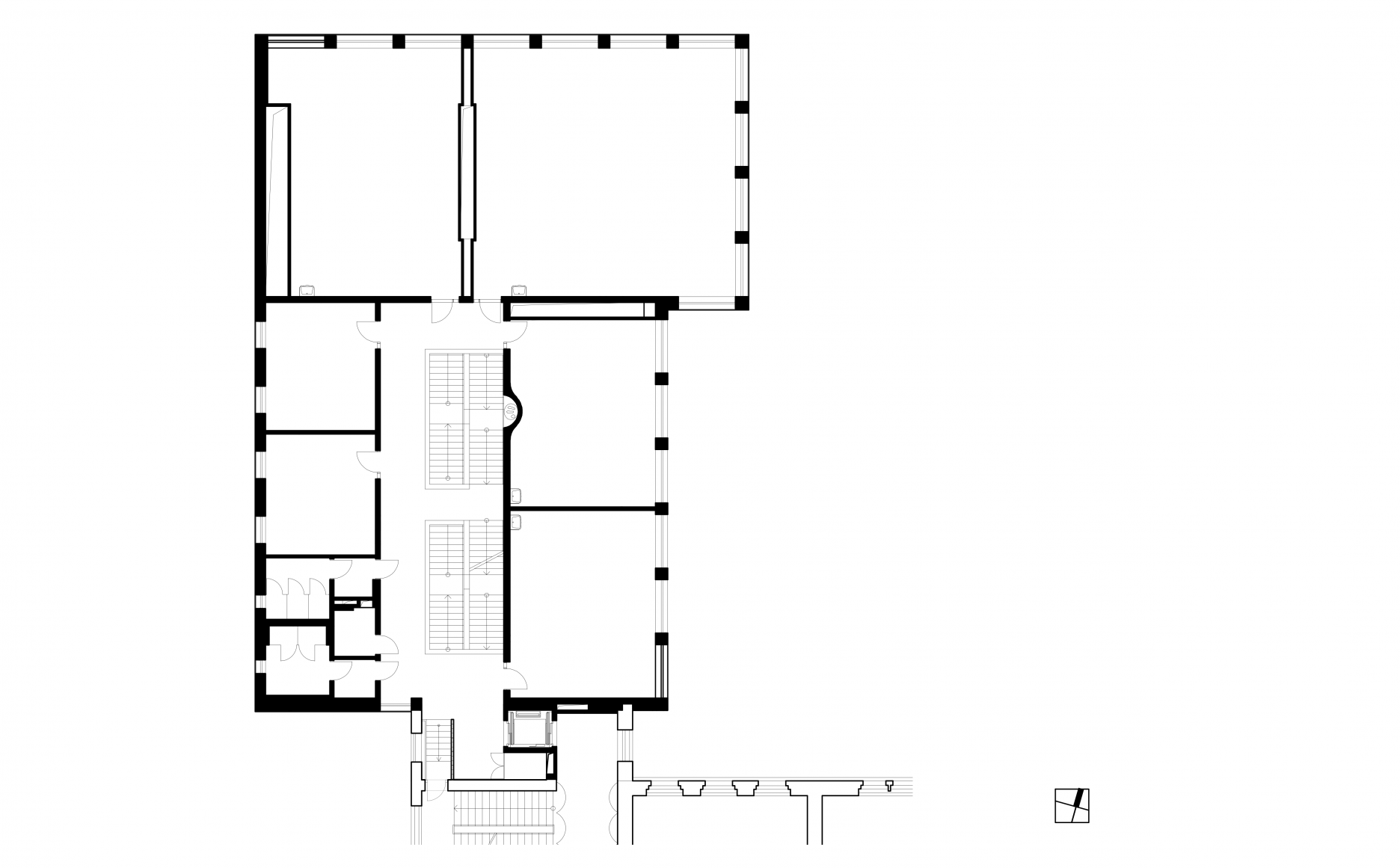
Pôdorys typického podlažia
Pôdorys typického podlažia
Rez
Rez
Foto: Filip Šlapal
Foto: Filip Šlapal
Foto: Filip Šlapal
Foto: Filip Šlapal
Foto: Filip Šlapal
Foto: Filip Šlapal
Foto: Filip Šlapal
Foto: Filip Šlapal
Foto: Filip Šlapal
Foto: Filip Šlapal
Foto: Filip Šlapal
Foto: Filip Šlapal
Foto: Filip Šlapal

Vizualizácia:

Autor: Pelčák a partner

Fotografia modelu:

Foto: David Židlický

Pôvodná podoba nádvoria pred rekonštrukciou:

Foto: Pelčák a partner

“Náš cíl proměnit heterogenní srostlici staveb v celek a vytvořit silné místo v topografii města se nakonec nenaplnil, neboť univerzita získala jenom část dotací a zrealizována byla pouze polovina návrhu. Zbylá část se nyní staví dle naší studie, kterou však dále zpracoval jiný projektant,” dodávajú na záver autori.

Podklady: Pelčák a partner architekti, s.r.o.

Poloha diela

prof. Ing. arch. Petr Pelčák
Ing. Rastislav Balog
Ing. Petr Eliáš
Ing. Kateřina Eiermannová
Ing. arch. Pavel Dvořák
Ing. arch. Tomáš Machovský
Ing. arch. Lenka Musilová
Ing. Petr Uhrín
Ing. arch. David Vahala

Súvisiace články

Vložené
13. september 2017
0
1285
Hlavný obsahHlavný obsah
Čakajte prosím