Advertorial

Vytvorte si kúpeľňu snov: dizajnové riešenie od značky hansgrohe

Hansgrohe - prémiová značka kúpeľňových riešení, ponúka nadčasový dizajn, technickú precíznosť a udržateľné inovácie...

Okná Internorm za minuloročné ceny + hliníkový kryt zdarma!

Využite špeciálnu akciu Internorm: okná za minuloročné ceny a hliníkový kryt úplne zadarmo. Ponuka je časovo obmedzená!

Pozvánka na 2. ročník stavebného veľtrhu BigMarket na Slovensku

Na podujatí sa predstaví až 37 vystavovateľov - popredných dodávateľov stavebných materiálov a inovácií s prezentáciou...

Moderné plynové technológie: Efektivita a inovácie pre 21. storočie

Sumarizácia najdôležitejších inovácií, ktoré redefinujúcich využitie tohto energetického zdroja.

Utesňovanie spodných stavieb pomocou hydro-aktívnej fólie AMPHIBIA.

AMPHIBIA 3000 GRIP 1.3 od spoločnosti ATRO predstavuje modernú hydroizolačnú technológiu, ktorá spája vysokú odolnosť,...

Dekarbonizácia individuálneho vykurovania domácností – Green Deal evolučne a nie revolučne

Ambiciózne plány EK narazili na ekonomické možnosti domácností v jednotlivých členských štátoch –...

Minimalistické dvere IDEA – technická precíznosť a čistota prevedenia

IDEA DOOR od spoločnosti JAP prináša do interiéru čistý minimalistický vzhľad vďaka bezrámovému riešeniu a precíznej...

Dom s výhľadom na údolie, Dlouhý Most (ČR)

Kontinuita riešenia od vonkajšieho obkladu až po kovania a kľučky.

Schell Vitus – osvedčené riešenie pre sprchy a umývadlá vo verejnom sektore s viac ako desaťročnou tradíciou

Nástenné nadomietkové armatúry Vitus sú mimoriadne vhodné pre rýchlu a efektívnu...

Kompozitné okná predstavujú súčasnosť a budúcnosť

Okenné profily z kompozitného materiálu RAU-FIPRO X od spoločnosti Rehau sú v porovnaní s tradičnými plastovými profilmi mnohonásobne...

Myotis - stoly 2025

Najnovší sortiment stolov pre zariadenie interiérov...

Priemyselné sklenené priečky Dorsis Digero: svetelné rozhranie pre moderné interiéry

Spojenie moderného dizajnu, funkčnosti a svetla do harmonického architektonického prvku.

Význam prirodzeného svetla pre moderné a flexibilné pracovné prostredie

Kancelárska budova Baumit v slovinskom Trzine prešla premenou na moderné a udržateľné pracovisko. Architekti kládli dôraz...

Konferencia Xella Dialóg predstaví novinky a trendy v stavebníctve

Mottom šiesteho ročníku on-line konferencie odborníkov Xella Dialóg je Efektívny návrh budov 2025+: zmeny a riešenia

Murovací robot WLTR stavia svoj prvý dom na Slovensku

Robot WLTR predstavuje moderný prístup k murovaným konštrukciám. Vďaka automatizácii dokáže rýchlo, presne a bezpečne realizovať...

Archeologická základňa Mikulčice

Terénne výzkumné pracovisko v architektonickej lokalite Mikulčice-Kopčany sa dostalo do výberu poroty v tohtoročnej Českej cene za architektúru. Stavba neďaľeko slovenskej hranice získala v minulosti nomináciu na Mies van der Rohe Award a Piranesi Award, či čestné uznanie v Grand Prix Obce architektů.
Diela
Red 331.07.2017
11150+10
Archeologická základňa Mikulčice
Autori: prof. Ing. arch. Petr PelčákInvestor: Archeologický ústav AV ČR, BrnoZastavaná plocha: 1390 m2Obostavaný objem: 10 935 m3Investičný náklad: 75 mil. KčNávrh: 2009 - 2010Realizácia: 2010 - 2013Adresa: Trapíkov , Mikulčice, Česká republikaPublikované: 31. júl 2017

Podoba stavby stojacej na piesočnej dune, ktorá bola osídlená ako predpolie veľkomoravského sídla už v 9. stor. n. l., vzišla z architektonickej súťaže. Návrh ateliéru Pelčák a partner obsadil v roku 2009 v súťaži štvrté miesto, avšak nakoniec to bol práve on, ktorý sa realizoval.

Foto: Filip Šlapal
Foto: Filip Šlapal

Základňa je postavená na mieste starého ovčína. Tri hrebene striech vyčnievajú z krajiny, nijako však nenarušujú autenticitu územia, ktoré je súčasťou pamiatkovej zóny. “Aby stavba v krajině obstála, má velké měřítko vytvořené kompaktním, abstraktním tělem, které postrádá charakteristické prvky domů, jako jsou dveře, okna či střecha. Do krajiny je zapojena svým tvarováním: výřezem vstupního čestného dvora se otevírá průzorem mezi stromy k louce, na níž se nachází velkomoravské hradiště,” približujú koncept autori.

Foto: Filip Šlapal
Situácia
Situácia

Hrubšia materialita stavby a textúra materiálov, ako napríklad gletovaná omietka a drevo rizalitov, pomáhajú stavbu nenásilne začleniť do prostredia. Vysunuté telesá slnolamov a dynamická figúra shedových striech reflektujú pozíciu stavby vystupujúcu z hradby lužného lesa do otvorených polí. V hmote budovy je "vyrezané" átrium a vstupné nádvorie. Objem je vnútorným a vstupným nádvorím organizovaný do troch krídel.

Foto: Filip Šlapal
Foto: Filip Šlapal
Foto: Filip Šlapal

Archeologická základňa zastrešuje nielen bádateľskú činnosť, ale poskytuje aj zázemie pre terénne výskumy a depozitár nálezového fondu z okolia. Je súčasne miestom pre stretávanie odborných pracovníkov, konajú sa tu medzinárodné konferencie aj iné pracovné zhromaždenia.

Stavbu tvoria tri krídla, do ktorých sa vchádza cez vstupnú halu, ktorá spája jednotlivé pracoviská a slúži zároveň ako rokovacia miestnosť a konferenčná sála. Každé z krídel má svoju špecifickú funkciu. V kratšom, priečne orientovanom trakte sídli vedenie a sekretariát, nachádza sa tu aj knižnica s archívom. V druhom, pozdĺžne orientovanom krídle sú izby pre zamestnancov a apartmánové ubytovanie pre výskumných pracovníkov a externých zamestnancov.

V treťom krídle sa nachádzajú pracovne a dielne archeológov, u ktorých je dôležitá praktická stránka výskumnej činnosti. Všetky dielne sú orientované na sever, čím získavajú optimálne denné svetlo, bez potreby dodatočného tienenia. Pracovne sú naopak orientované na juh, ale dovnútra do átria, ktoré zatieňuje protiľahlé obytné krídlo. V budove sa nachádza aj potrebné praktické zázemie ako dvor, sklad a garáže. Návrh exteriéru a vonkajších úprav zohľadnil v maximálnej miere zachovanie prirodzeného rázu krajiny.

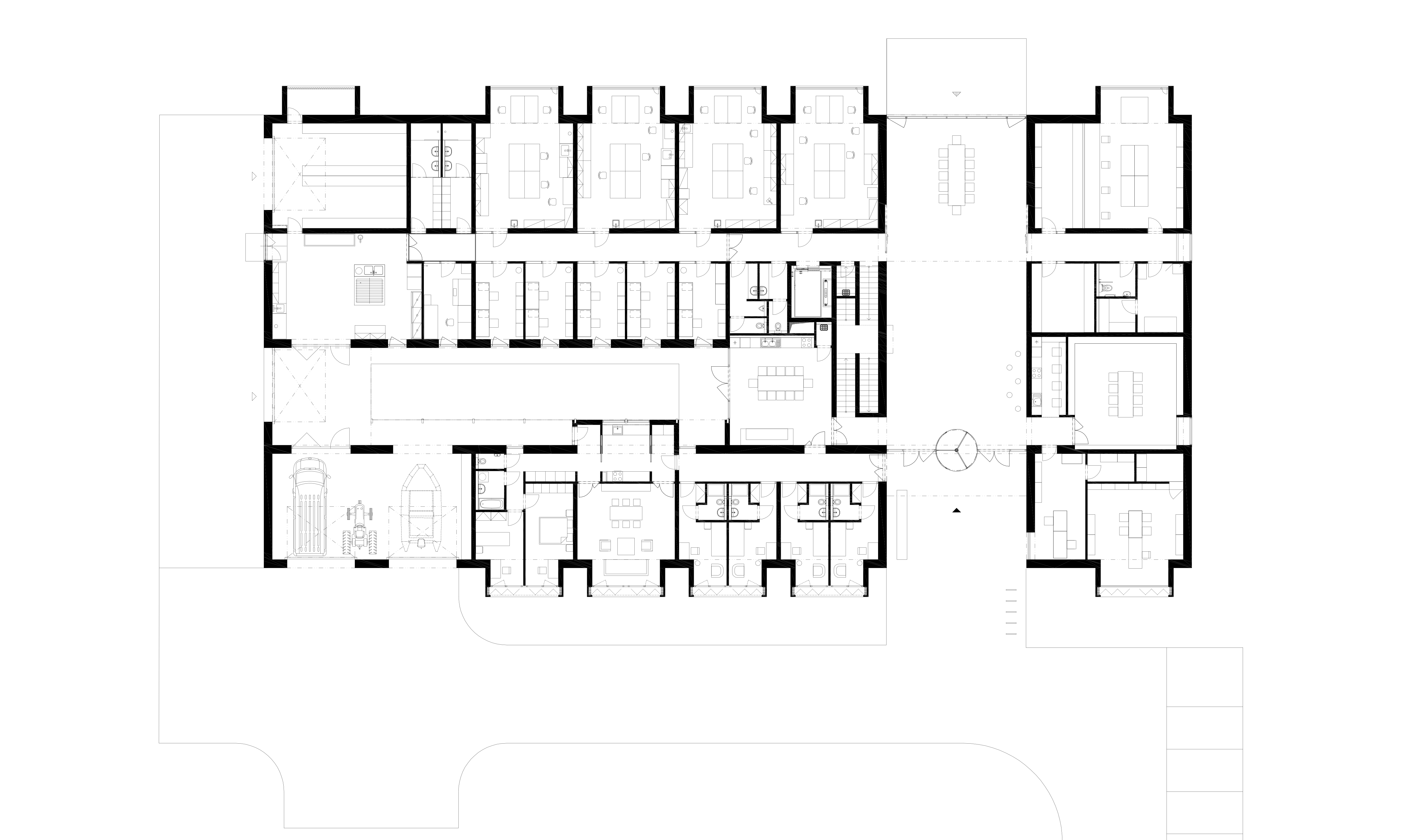
Pôdorys 1. NP
Pôdorys 1. NPAutor: Pelčák a partner

“Lidé užívají přízemí, zatímco patro je určeno věcem. Depozitáře tepelně izolují přízemí určené k pobytu zaměstnanců,” popisuje Petr Pelčák prevádzku budovy.

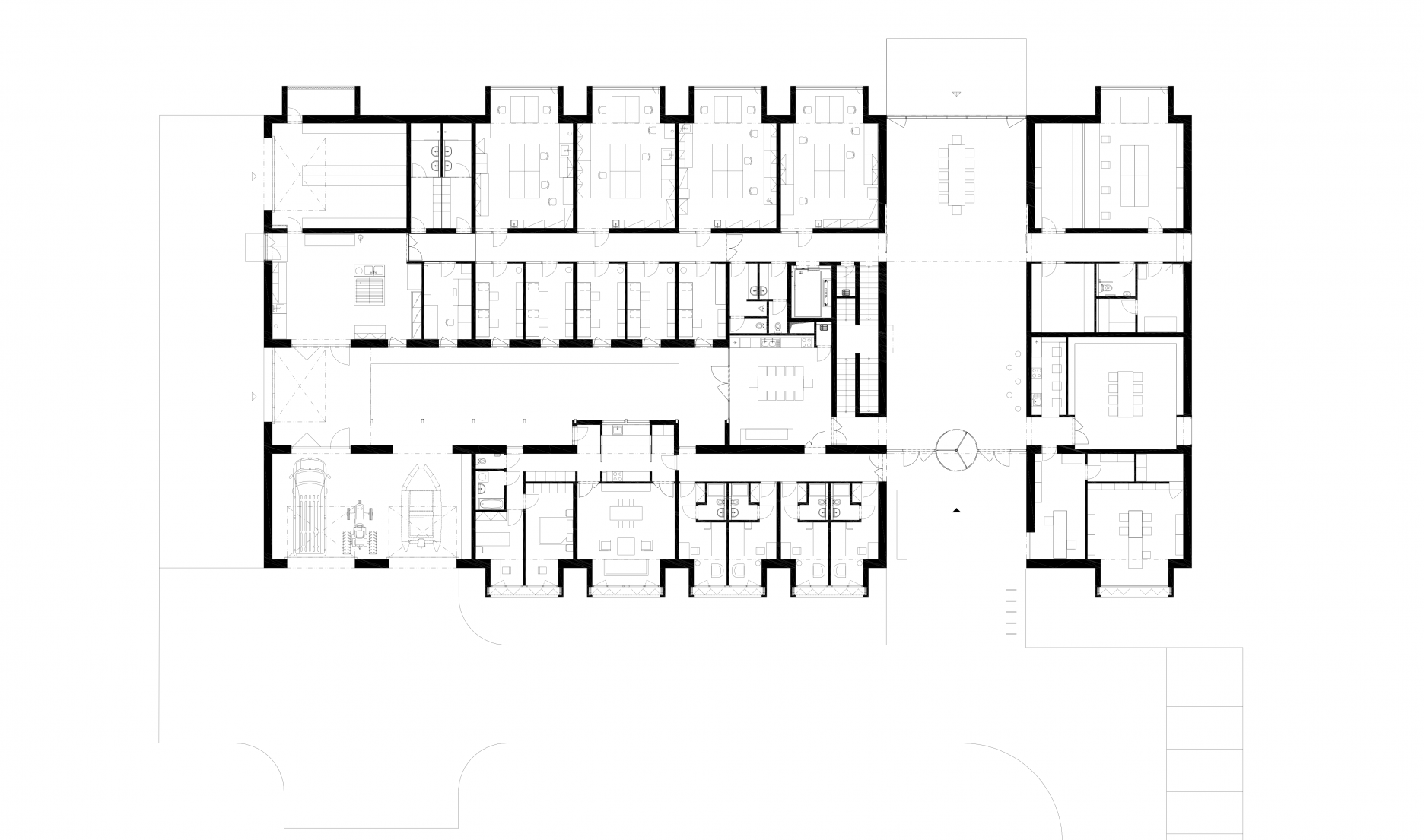
Pôdorys 2. NP
Pôdorys 2. NPAutor: Pelčák a partner
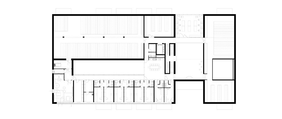
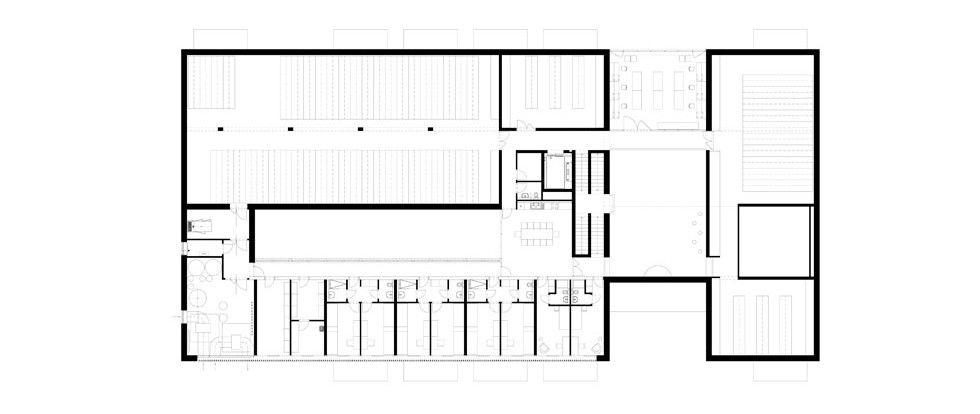
Priečne rezy
Priečne rezyAutor: Pelčák a partner
Foto: Filip Šlapal
Foto: Filip Šlapal
Foto: Filip Šlapal
Foto: Filip Šlapal
Foto: Filip Šlapal
Foto: Filip Šlapal
Model
ModelFoto: David Židlický

Poloha diela

prof. Ing. arch. Petr Pelčák

Súvisiace články

Vložené
12. júl 2017
0
1115
Hlavný obsahHlavný obsah
Čakajte prosím