Advertorial

Okná Internorm za minuloročné ceny + hliníkový kryt zdarma!

Využite špeciálnu akciu Internorm: okná za minuloročné ceny a hliníkový kryt úplne zadarmo. Ponuka je časovo obmedzená!

Pozvánka na 2. ročník stavebného veľtrhu BigMarket na Slovensku

Na podujatí sa predstaví až 37 vystavovateľov - popredných dodávateľov stavebných materiálov a inovácií s prezentáciou...

Moderné plynové technológie: Efektivita a inovácie pre 21. storočie

Sumarizácia najdôležitejších inovácií, ktoré redefinujúcich využitie tohto energetického zdroja.

Utesňovanie spodných stavieb pomocou hydro-aktívnej fólie AMPHIBIA.

AMPHIBIA 3000 GRIP 1.3 od spoločnosti ATRO predstavuje modernú hydroizolačnú technológiu, ktorá spája vysokú odolnosť,...

Dekarbonizácia individuálneho vykurovania domácností – Green Deal evolučne a nie revolučne

Ambiciózne plány EK narazili na ekonomické možnosti domácností v jednotlivých členských štátoch –...

Minimalistické dvere IDEA – technická precíznosť a čistota prevedenia

IDEA DOOR od spoločnosti JAP prináša do interiéru čistý minimalistický vzhľad vďaka bezrámovému riešeniu a precíznej...

Dom s výhľadom na údolie, Dlouhý Most (ČR)

Kontinuita riešenia od vonkajšieho obkladu až po kovania a kľučky.

Schell Vitus – osvedčené riešenie pre sprchy a umývadlá vo verejnom sektore s viac ako desaťročnou tradíciou

Nástenné nadomietkové armatúry Vitus sú mimoriadne vhodné pre rýchlu a efektívnu...

Kompozitné okná predstavujú súčasnosť a budúcnosť

Okenné profily z kompozitného materiálu RAU-FIPRO X od spoločnosti Rehau sú v porovnaní s tradičnými plastovými profilmi mnohonásobne...

Myotis - stoly 2025

Najnovší sortiment stolov pre zariadenie interiérov...

Priemyselné sklenené priečky Dorsis Digero: svetelné rozhranie pre moderné interiéry

Spojenie moderného dizajnu, funkčnosti a svetla do harmonického architektonického prvku.

Význam prirodzeného svetla pre moderné a flexibilné pracovné prostredie

Kancelárska budova Baumit v slovinskom Trzine prešla premenou na moderné a udržateľné pracovisko. Architekti kládli dôraz...

Konferencia Xella Dialóg predstaví novinky a trendy v stavebníctve

Mottom šiesteho ročníku on-line konferencie odborníkov Xella Dialóg je Efektívny návrh budov 2025+: zmeny a riešenia

Murovací robot WLTR stavia svoj prvý dom na Slovensku

Robot WLTR predstavuje moderný prístup k murovaným konštrukciám. Vďaka automatizácii dokáže rýchlo, presne a bezpečne realizovať...

Nová éra bezpečnosti s I-tec Secure od Internorm

Okrem bezpečnosti majú okná aj elegantný vzhľad, pretože nie sú viditeľné žiadne uzamykacie časti kovania.

Enviromentálne centrum, Krsy

Cezhraničná spolupráca. Spoločný projekt občianskeho združenia Aktivity Pro a bavorského Naturparku.
Diela
Red 407.12.2017
10330+11
Enviromentálne centrum, Krsy
Ateliér: Projectstudio8Autori: Ing. arch. Bohuslav Strejc, Ing. Jan Běl, Ing. Ondřej Janout, Ing. Jiří KorelusInvestičný náklad: 21 mil. KčNávrh: 2013 - 2014Realizácia: 2015 - 2015Adresa: Krsy 69, Krsy, Česká republikaPublikované: 7. december 2017

Enviromentálne centrum sa nachádza v severnej okrajovej časti obce Krsy. Urbanisticky nadväzuje na rozvoľnenú štruktúru obce formou solitéru. Nízkoenergetická stavba poskytuje priestor pre vzdelanie v oblasti ekológie a udržateľného hospodárstva pre školy, rodiny a ďalších záujemcov. Súčasťou Enviromentálneho centra Krsy je tiež rozsiahla záhrada, ktorá je využívaná na praktickú časť výučby.

Foto: Kompost.works
Situácia
Situáciaprojectstudio8

Architektúra je založené na krížení dvoch objemov. Prvý slúži ako vstupná časť s vyhliadkou a vertikálnou komunikáciou, druhý ako multifunkčný priestor určený pre výstavy a školenia. Súčasťou expozície je aj prezentácia prírody plzeňského kraja. Transparentná časť fasády je orientovaná na juh.  Presklená stena na poschodí umožňuje výhľad na panorámu krajiny, pohľadovou dominantou je kostol sv. Vavrinca v centre obce.

Foto: Kompost.works
Foto: Kompost.works
Foto: Kompost.works
Foto: Kompost.works
Foto: Kompost.works
Foto: Kompost.works
Foto: Kompost.works
Foto: Kompost.works

V budove sa nachádza recepcia, administratívne zázemie, priestory pre výstavy, projekcie a prednáškové miestnosti. Na prízemí je multifunkčná hala. Priestor plynie cez dve podlažia v podobe otvorenej galérie. Príslušné hygienické zázemie sa nachádza na oboch úrovniach. Drevostavba bola navrhnutá s dôrazom na životné prostredie a využitie obnoviteľných zdrojov energie a materiálov. Ako zdroj tepla na vykurovanie objektu slúžia solárne panely a tepelné čerpadlo.

Foto: Kompost.works
Foto: Kompost.works
Foto: Kompost.works
Foto: Kompost.works
Foto: Kompost.works
Foto: Kompost.works
Foto: Kompost.works
Foto: Kompost.works
Foto: Kompost.works

Výkresová časť:

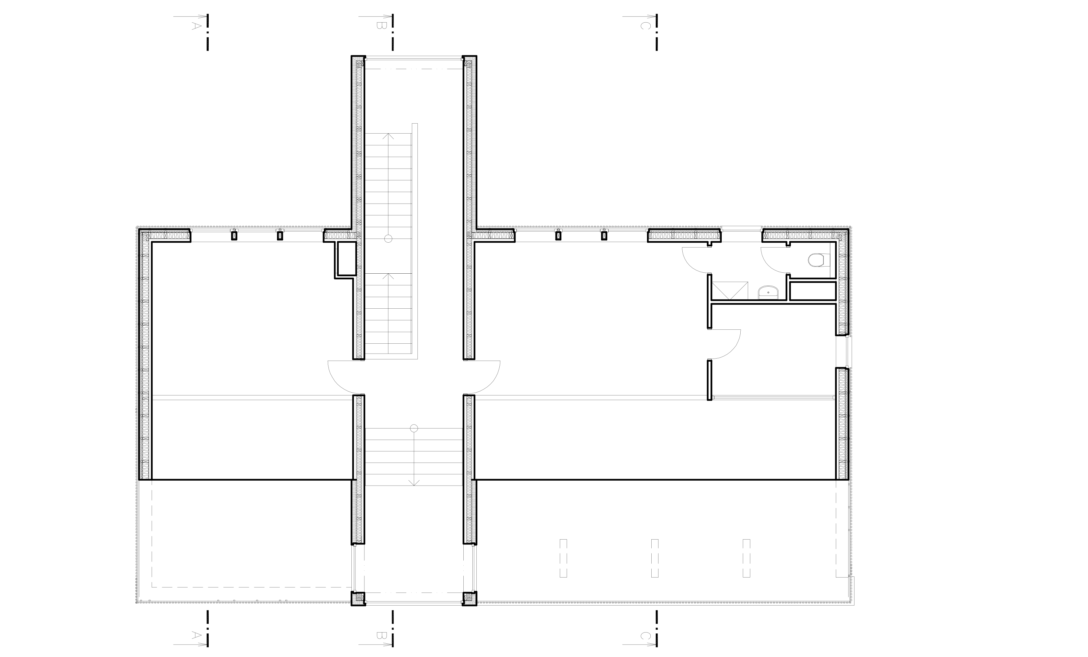
Pôdorys 1. NP
Pôdorys 1. NPAutor: projectstudio8
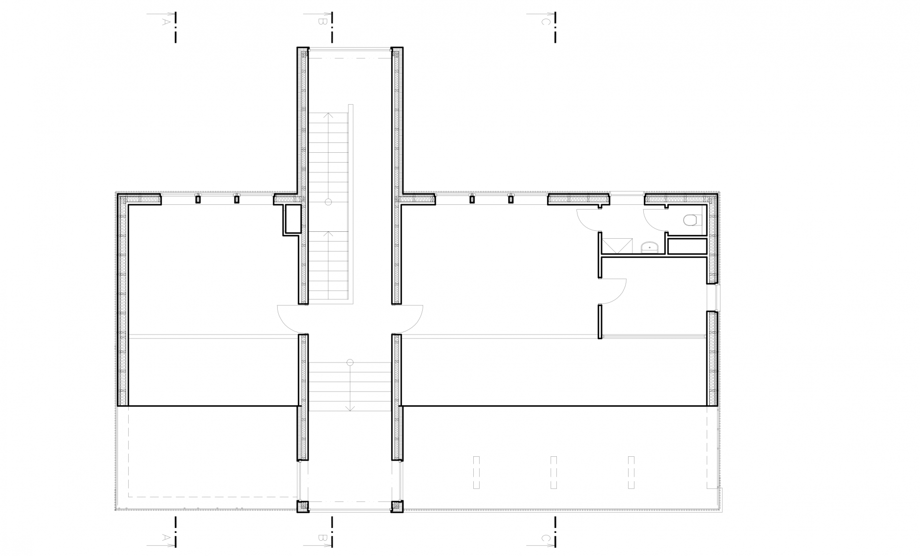
Pôdorys 2. NP
Pôdorys 2. NPAutor: projectstudio8
Rez A
Rez AAutor: projectstudio8
Rez B
Rez BAutor: projectstudio8
Rez C
Rez CAutor: projectstudio8
Južný pohľad
Južný pohľadAutor: projectstudio8
Severný pohľad
Severný pohľadAutor: projectstudio8
Východný pohľad
Východný pohľadAutor: projectstudio8
Západný pohľad
Západný pohľadAutor: projectstudio8

Podklady: projectstudio8

Poloha diela

Ing. arch. Bohuslav Strejc
Ing. Jan Běl
Ing. Ondřej Janout
Ing. Jiří Korelus
Vložené
7. december 2017
0
1033
Hlavný obsahHlavný obsah
Čakajte prosím