Advertorial

Pozvánka na 2. ročník stavebného veľtrhu BigMarket na Slovensku

Na podujatí sa predstaví až 37 vystavovateľov - popredných dodávateľov stavebných materiálov a inovácií s prezentáciou...

Hotel Hirschen Spa House, Rakúsko

Novotvar v prostredí alpskej obce.

Vytvorte si kúpeľňu snov: dizajnové riešenie od značky hansgrohe

Hansgrohe - prémiová značka kúpeľňových riešení, ponúka nadčasový dizajn, technickú precíznosť a udržateľné inovácie...

Okná Internorm za minuloročné ceny + hliníkový kryt zdarma!

Využite špeciálnu akciu Internorm: okná za minuloročné ceny a hliníkový kryt úplne zadarmo. Ponuka je časovo obmedzená!

Moderné plynové technológie: Efektivita a inovácie pre 21. storočie

Sumarizácia najdôležitejších inovácií, ktoré redefinujúcich využitie tohto energetického zdroja.

Utesňovanie spodných stavieb pomocou hydro-aktívnej fólie AMPHIBIA.

AMPHIBIA 3000 GRIP 1.3 od spoločnosti ATRO predstavuje modernú hydroizolačnú technológiu, ktorá spája vysokú odolnosť,...

Dekarbonizácia individuálneho vykurovania domácností – Green Deal evolučne a nie revolučne

Ambiciózne plány EK narazili na ekonomické možnosti domácností v jednotlivých členských štátoch –...

Minimalistické dvere IDEA – technická precíznosť a čistota prevedenia

IDEA DOOR od spoločnosti JAP prináša do interiéru čistý minimalistický vzhľad vďaka bezrámovému riešeniu a precíznej...

Dom s výhľadom na údolie, Dlouhý Most (ČR)

Kontinuita riešenia od vonkajšieho obkladu až po kovania a kľučky.

Schell Vitus – osvedčené riešenie pre sprchy a umývadlá vo verejnom sektore s viac ako desaťročnou tradíciou

Nástenné nadomietkové armatúry Vitus sú mimoriadne vhodné pre rýchlu a efektívnu...

Kompozitné okná predstavujú súčasnosť a budúcnosť

Okenné profily z kompozitného materiálu RAU-FIPRO X od spoločnosti Rehau sú v porovnaní s tradičnými plastovými profilmi mnohonásobne...

Myotis - stoly 2025

Najnovší sortiment stolov pre zariadenie interiérov...

Priemyselné sklenené priečky Dorsis Digero: svetelné rozhranie pre moderné interiéry

Spojenie moderného dizajnu, funkčnosti a svetla do harmonického architektonického prvku.

Význam prirodzeného svetla pre moderné a flexibilné pracovné prostredie

Kancelárska budova Baumit v slovinskom Trzine prešla premenou na moderné a udržateľné pracovisko. Architekti kládli dôraz...

Konferencia Xella Dialóg predstaví novinky a trendy v stavebníctve

Mottom šiesteho ročníku on-line konferencie odborníkov Xella Dialóg je Efektívny návrh budov 2025+: zmeny a riešenia

Rekonštrukcia a dostavba areálu Obecný dvor v Prahe

Bývanie orientované do zeleného vnútrobloku v husto zastavanom historickom centre Prahy. K historickým budovám Obecného dvora bol v prieluke dostavný nový bytový dom podľa konceptu Ricarda Bofilla. Jednoliaty výraz novému objektu dodáva predsadený plášť z perforovaného hliníkového plechu. Zaujímavým technickým riešením sú aj dvojpodlažné garážové zakladače.
Diela
Red 313.09.2017
13030+13
Rekonštrukcia a dostavba areálu Obecný dvor v Prahe
Autori: Ricardo Bofill, Ing. arch. Marek Tichý, Ing. arch. Pavla Brůžová, Ing. arch. Markéta ŠtěpánkováSpolupráca: Ing Zbyněk Ransdorf, Ing. Petr Vinklar, Ing. Zbyněk RansdorfInvestor: Dvůr JosefovPodlažná plocha: 5700 m2Návrh: 2010 - 2011Realizácia: 2011 - 2016Adresa: U Obecního dvora , Praha, Česká republikaPublikované: 13. september 2017

Obecný dvor je architektonicky cenný areál pôvodne hospodárskych budov v pražskom Jozefove. Najstaršie stavby Obecného dvora obsahujú pozostatky stredovekých konštrukcií. Areál zjednotila neskoro baroková pestavba v 18. storočí. Práve táto fáza, doplnená neskoršími prestavbami predstavuje jedinečný celok a urbanistický doklad stredovekej parcelácie. Projekt obnovy zahŕňal rekonštrukciu a dostavbu troch historických objektov s vnútorným dvorom. Novostavba bytového domu stojí v mieste prieluky a uzatvára mestský blok.

Foto: MgA. Aleš Jungmann QEP
Situácia
Situácia

Investičným zámerom bolo vytvorenie obytného areálu. Pamiatkovo chránené stavby prešli kompletnou rekonštrukciou. Dispozícia bytov sa snaží zohľadniť stavebný vývoj areálu tak, že stavebné úpravy nezasahujú do pôvodného muriva. Autori očistili priestory od novodobých úprav a nechali tak vyniknúť veľkorysé klenuté priestory. Novostavba v severnej časti areálu nadväzuje na niekoľko storočí neprerušený stavebný vývoj celku. Kubická hmota domu je rozčlenená pravidelným rastrom okenných otvorov.

Foto: MgA. Aleš Jungmann QEP
Foto: MgA. Aleš Jungmann QEP

Historické budovy prešli kompletnou rekonštrukciou vrátane reštaurovania historicky cenných prvkov. Vo všetkých objektoch sa teraz nachádzajú byty. Objekty boli očistené od novodobých úprav, čím vynikli veľkorysé priestory. Dispozície bytov pritom nezasahujú do historického muriva.

Foto: MgA. Aleš Jungmann QEP

Nová budova má šesť regulérnych nadzemných podlaží, ustupujúce siedme a jedno podzemné podlažie. Prízemie a podzemné podlažie fungujú z velkej časti ako dvojpodlažné garážové zakladače. Na časti pôdorysu sú obe úrovne otvorené, vodorovnú monolitickú konštrukciu nahradzuje technológia automobilových dopravníkov. V dome sú tri byty: mezonetový umiestnený na 2. a 3. NP, byt na štvrtom podlaží a obytný priestor na dvoch najvyšších poschodiach, ku ktorému patrí aj strešná terasa. Na prízemí sa nachádza centrálny vstupný priestor s recepciou, ktorý slúži zároveň pre celý areál.

Pôdorysy 1.PP - 7.NP
Pôdorysy 1.PP - 7.NP
Rez H-H
Rez H-H
Rez I-I
Rez I-I
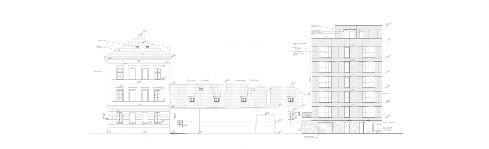
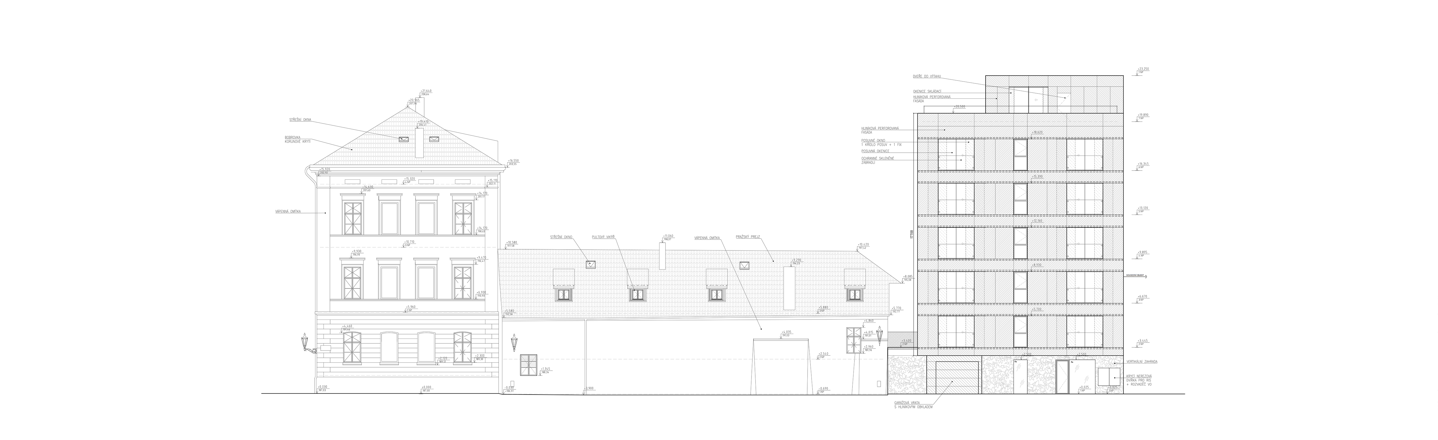
Pohľad dvorný južný - na objekty
Pohľad dvorný južný - na objekty
Pohľad uličný severný - na objekty
Pohľad uličný severný - na objekty

Obvodový plášť budovy je dvojvrstvový. Kontaktný zatepľovací systém, ktorý je omietnutý hladkou omietkou dopĺňa z exteriérovej strany predsadený plášť z galvanicky pokoveného a lakovaného hliníkového plechu hrúbky 3 mm. Rastlinný motív bol do plechu vyrazený formou rastru kruhových otvorov s premenlivou veľkosťou. Do pravidelného členenia fasády zapadajú posuvné panely z rovnakého materiálu, ktoré slúžia ako tienenie a zároveň v zavretom stave dotvárajú nadväzujúci motív. Z výtvarného hľadiska bola zásadná presná nadväznosť vzoru na jednotlivých paneloch. Bolo vyrobených viac ako 300 atypických častí. Podmienkou bola minimalizácia špár medzi panelmi a perforácia vzoru až po okraj jednotlivých prvkov. Realizácia bola náročná najmä z hľadiska výberu materiálu a dodávateľa (nároky na tuhosť panelov, dilatáciu, precízna montáž). Veľkoformátové posuvné zasklenie používa systém Hi-Finity od firmy Reynaers. Na prízemí je na fasáde technickej časti domu zo severnej a východnej strany použitý systém “vertikálnej záhrady”

Detaily nárožia a ostenia
Detaily nárožia a ostenia
Foto: MgA. Aleš Jungmann QEP
Foto: MgA. Aleš Jungmann QEP
Foto: MgA. Aleš Jungmann QEP

Pri exteriérových úpravách dvora sa autori inšpirovali Langweilovým modelom Prahy (papierový model z 19. storočia, dnes sa nachádza v Múzeu hlavného mesta Prahy), ktorý dokladá že tu stál solitérny strom, malá vodná nádrž a okrasná záhradka. Po revitalizácii sa v areáli nachádzajú tri vzrastlé stromy, ktoré boli zachované počas výstavby, zpevnené plochy s centrálnym eliptickým chodníkom sú vydláždené repasovanými žulovými kockami. Prístup k jednotlivým domom je vyukladaný mramorovými blokmi, ktoré pochádzajú z podlahy jedného z domov. Hľadanie autenticity historických domov a snaha o obnovu pôvodných proporcií historických fasád si vyžiadala výškové úpravy dvora. Nové drevené terasy pred pred presklenými arkádovými dverami objektov A a B ukazujú ako bol dvor v minulosti zavážaný a terén navyšovaný. Rozdielne výškové usporiadanie častí dvora a oddelenie predzáhradiek bolo vyriešené kamennými múrikmi. V areáli sa nachádza aj vodná plocha.

Foto: MgA. Aleš Jungmann QEP
Foto: MgA. Aleš Jungmann QEP

Zaujímavosti: Obecný dvor sa údajne stal predlohou pre romány o rýchlych šípoch od Jaroslava Foglara. Na tomto mieste strávil časť svojho života rakúsky matematik a fyzik Christian Doppler.

 

Podklady: TaK Architects

Poloha diela

Ricardo Bofill
Ing. arch. Marek Tichý
Ing. arch. Pavla Brůžová
Ing. arch. Markéta Štěpánková
Vložené
31. august 2017
0
1303
Hlavný obsahHlavný obsah
Čakajte prosím