Advertorial

Pozvánka na 2. ročník stavebného veľtrhu BigMarket na Slovensku

Na podujatí sa predstaví až 37 vystavovateľov - popredných dodávateľov stavebných materiálov a inovácií s prezentáciou...

Hotel Hirschen Spa House, Rakúsko

Novotvar v prostredí alpskej obce.

Vytvorte si kúpeľňu snov: dizajnové riešenie od značky hansgrohe

Hansgrohe - prémiová značka kúpeľňových riešení, ponúka nadčasový dizajn, technickú precíznosť a udržateľné inovácie...

Okná Internorm za minuloročné ceny + hliníkový kryt zdarma!

Využite špeciálnu akciu Internorm: okná za minuloročné ceny a hliníkový kryt úplne zadarmo. Ponuka je časovo obmedzená!

Moderné plynové technológie: Efektivita a inovácie pre 21. storočie

Sumarizácia najdôležitejších inovácií, ktoré redefinujúcich využitie tohto energetického zdroja.

Utesňovanie spodných stavieb pomocou hydro-aktívnej fólie AMPHIBIA.

AMPHIBIA 3000 GRIP 1.3 od spoločnosti ATRO predstavuje modernú hydroizolačnú technológiu, ktorá spája vysokú odolnosť,...

Dekarbonizácia individuálneho vykurovania domácností – Green Deal evolučne a nie revolučne

Ambiciózne plány EK narazili na ekonomické možnosti domácností v jednotlivých členských štátoch –...

Minimalistické dvere IDEA – technická precíznosť a čistota prevedenia

IDEA DOOR od spoločnosti JAP prináša do interiéru čistý minimalistický vzhľad vďaka bezrámovému riešeniu a precíznej...

Dom s výhľadom na údolie, Dlouhý Most (ČR)

Kontinuita riešenia od vonkajšieho obkladu až po kovania a kľučky.

Schell Vitus – osvedčené riešenie pre sprchy a umývadlá vo verejnom sektore s viac ako desaťročnou tradíciou

Nástenné nadomietkové armatúry Vitus sú mimoriadne vhodné pre rýchlu a efektívnu...

Kompozitné okná predstavujú súčasnosť a budúcnosť

Okenné profily z kompozitného materiálu RAU-FIPRO X od spoločnosti Rehau sú v porovnaní s tradičnými plastovými profilmi mnohonásobne...

Myotis - stoly 2025

Najnovší sortiment stolov pre zariadenie interiérov...

Priemyselné sklenené priečky Dorsis Digero: svetelné rozhranie pre moderné interiéry

Spojenie moderného dizajnu, funkčnosti a svetla do harmonického architektonického prvku.

Význam prirodzeného svetla pre moderné a flexibilné pracovné prostredie

Kancelárska budova Baumit v slovinskom Trzine prešla premenou na moderné a udržateľné pracovisko. Architekti kládli dôraz...

Konferencia Xella Dialóg predstaví novinky a trendy v stavebníctve

Mottom šiesteho ročníku on-line konferencie odborníkov Xella Dialóg je Efektívny návrh budov 2025+: zmeny a riešenia

Dom so stodolou na Vysočine (ČR)

Priestor pre bývanie a prácu.
Diela
Red 416.06.2018
107450+38
Dom so stodolou na Vysočine (ČR)
Autori: Ing. arch. Pavel Machar, Ing. arch. Radek TeichmanSpolupráca: Ing. Štěpán SvačinaNávrh: 2014 - 2014Realizácia: 2017 - 2017Adresa: Staré Bříště, Česká republikaPublikované: 16. jún 2018

Dielo sa dostalo do užšieho výberu poroty v aktuálnom ročníku Českej ceny za architektúru.

Architekti doslovne nekopírujú typológiu, tvaroslovie či dekor miestnej "ľudovej" architektúry. Voľne však pokračujú v duchu overených princípov. Stavby z prírodných materiálov sú z veľkej časti postavené "svojpomocne". Napriek tomu však precízne a účelne. V dispozícii je možné vyčítať tradičnú "trojpriestorovú" schému (v tomto prípade spálňa, vstup, obývacia izba) doplnenú o gánok na juhozápadnej fasáde.

Dom a stodola vznikli na pôdorysnej stope staršej usadlosti v malej obci Staré Bříště na Vysočine. Objekty stoja na hrane svahu zvažujúceho sa k rybníkom. 

Domy vznikli na pôdorysnej stope starších objektov. V pozadí centrum obce.
Domy vznikli na pôdorysnej stope starších objektov. V pozadí centrum obce.Foto: Peter Fabo
Celkový pohľad na pozemok. "Stodola" stojí na hranici svahu zvažujúceho sa k rybníkom.
Celkový pohľad na pozemok. "Stodola" stojí na hranici svahu zvažujúceho sa k rybníkom.Foto: Peter Fabo
Situácia
SituáciaMACHAR & TEICHMAN

Stavby realizoval miestny majster podľa jednoduchej projektovej dokumentácie. Keramické murivo bez dodatočného zateplenia je omietnuté ručne ťahanou štukovou omietkou. Sklá sú vsadené do rámov zo smrekovcového dreva. Drevený krov je opláštený titánzinkovým plechom.

V dome majiteľ býva aj pracuje.

Juhozápadná fasáda
Juhozápadná fasádaFoto: Peter Fabo
Pohľad od vjazdu
Pohľad od vjazduFoto: Peter Fabo
Stodola
StodolaFoto: Peter Fabo

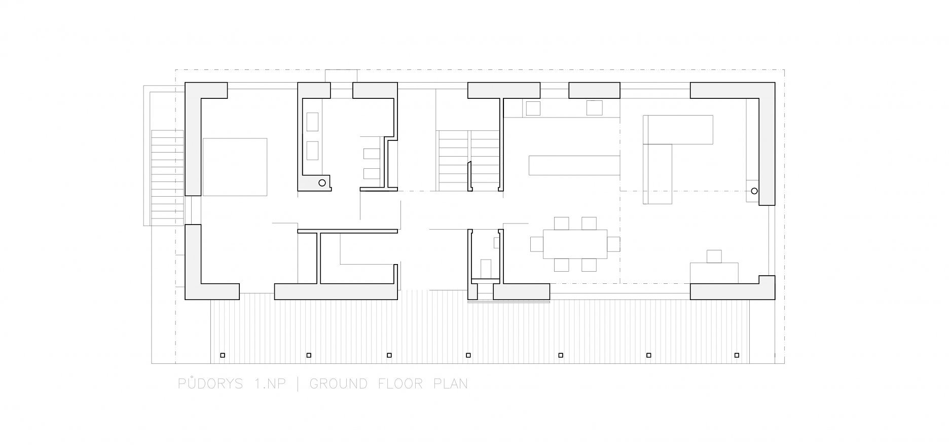
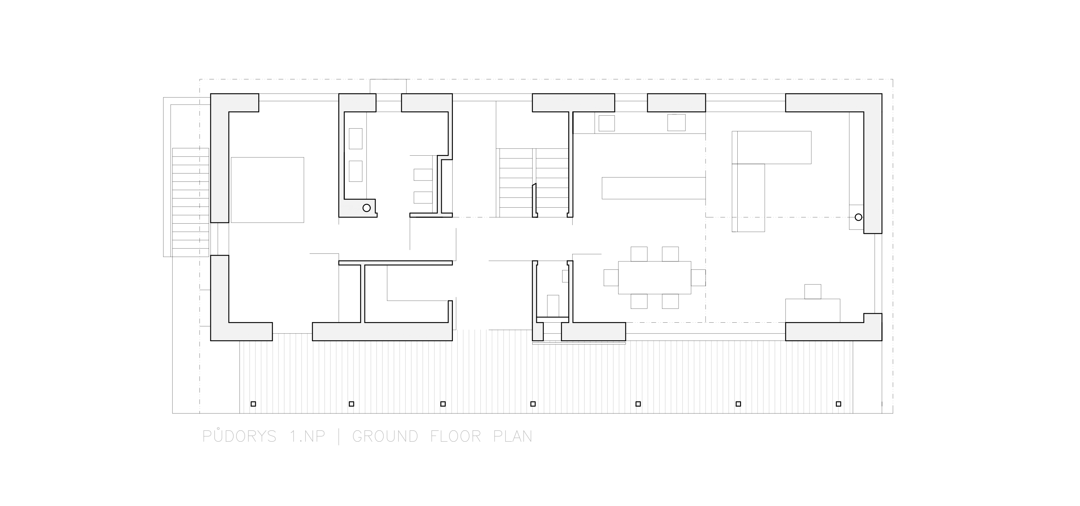
Jednoduchý murovaný dom má pozdĺž juhozápadnej fasády kryté priedomie. Presah strechy chráni vstup situovaný približne v strede dispozície. Presklený vstupný trakt, s priehľadom na rybník, rozdeľuje prízemie na dennú a nočnú časť. Hlavný obytný priestor s kuchyňou je čiastočne otvorený do krovu. Dominantným prvkom v obývačke je rozmerný krb. Veľkými nedelenými oknami "vstupujú" do interiéru výseky okolitej krajiny.

Z chodby na prízemí je prístupná hygiena a spálňa rodičov. Ťažiskovým priestorom domu je schodisková hala, ktorá prepája prízemie s galériou na poschodí. Ochodza sprístupňuje ďalšie dve izby.

Pôdorys prízemia
Pôdorys prízemiaMACHAR & TEICHMAN
Pôdorys podkrovia
Pôdorys podkroviaMACHAR & TEICHMAN

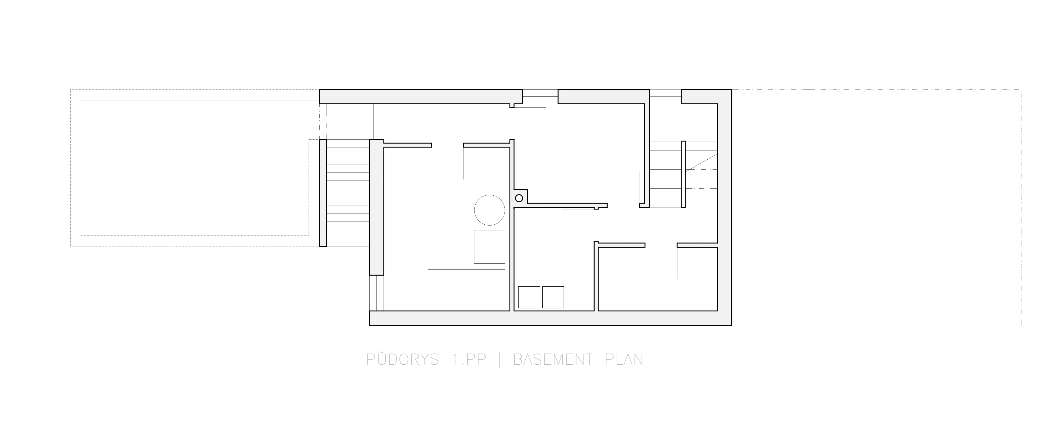
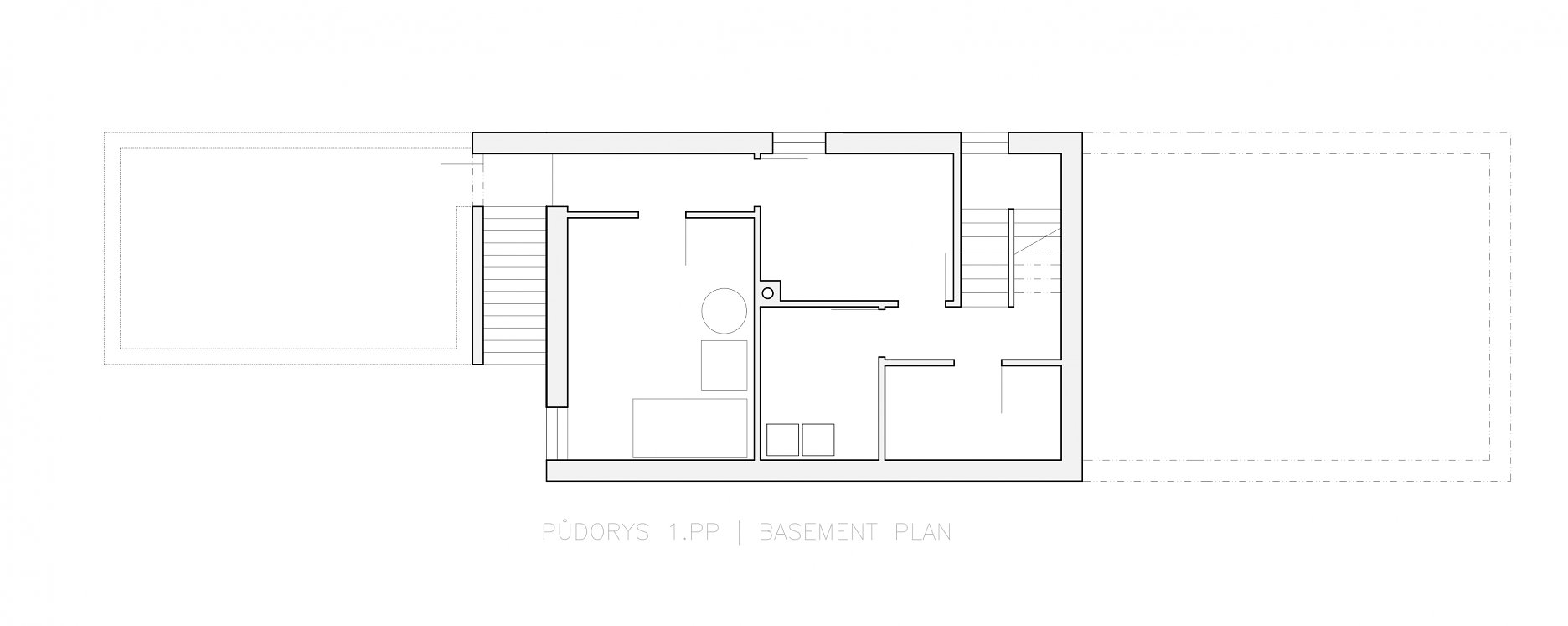
Technické miestnosti sa nachádzajú v pivnici, kúrenie zabezpečujú kotle na pelety. Na pivnicu nadväzuje klenutá miestnosť, ktorú navrhol sám majiteľ.

Pôdorys pivnice
Pôdorys pivniceMACHAR & TEICHMAN

"Skromnejší" hospodársky objekt slúži ako prístrešok pre parkovanie a príručný sklad.

Pôdorys "stodoly"
Pôdorys "stodoly"MACHAR & TEICHMAN
Priečny rez
Priečny rezMACHAR & TEICHMAN
Južný pohľad
Južný pohľadMACHAR & TEICHMAN

Zariadenie na mieru realizoval príbuzný majiteľa. V interiéri, takisto ako v exteriéri, architekti kombinujú biele omietky so smrekovcovým a dubovým drevom. "Vizuální klid nekonkuruje krajině," vysvetľujú.

Priehľad z haly do obývacej izby
Priehľad z haly do obývacej izbyFoto: Peter Fabo
Výhľad na juhovýchod
Výhľad na juhovýchodFoto: Peter Fabo
Hlavný obytný priestor
Hlavný obytný priestorFoto: Peter Fabo
Výhľad na rybníky
Výhľad na rybníkyFoto: Peter Fabo
Priehľad do spálne
Priehľad do spálneFoto: Peter Fabo
Kúpeľňa na prízemí
Kúpeľňa na prízemíFoto: Peter Fabo
Pohľad z galérie na poschodí
Pohľad z galérie na poschodíFoto: Peter Fabo
Kúpeľňa v podkroví
Kúpeľňa v podkrovíFoto: Peter Fabo
Ochodza
Ochodza Foto: Peter Fabo
Kúpeľňa na poschodí
Kúpeľňa na poschodíFoto: Peter Fabo

Poloha diela

Ing. arch. Pavel Machar
Ing. arch. Radek Teichman

Súvisiace články

Vložené
12. jún 2018
0
10745
Hlavný obsahHlavný obsah
Čakajte prosím