Advertorial

Vytvorte si kúpeľňu snov: dizajnové riešenie od značky hansgrohe

Hansgrohe - prémiová značka kúpeľňových riešení, ponúka nadčasový dizajn, technickú precíznosť a udržateľné inovácie...

Okná Internorm za minuloročné ceny + hliníkový kryt zdarma!

Využite špeciálnu akciu Internorm: okná za minuloročné ceny a hliníkový kryt úplne zadarmo. Ponuka je časovo obmedzená!

Pozvánka na 2. ročník stavebného veľtrhu BigMarket na Slovensku

Na podujatí sa predstaví až 37 vystavovateľov - popredných dodávateľov stavebných materiálov a inovácií s prezentáciou...

Moderné plynové technológie: Efektivita a inovácie pre 21. storočie

Sumarizácia najdôležitejších inovácií, ktoré redefinujúcich využitie tohto energetického zdroja.

Utesňovanie spodných stavieb pomocou hydro-aktívnej fólie AMPHIBIA.

AMPHIBIA 3000 GRIP 1.3 od spoločnosti ATRO predstavuje modernú hydroizolačnú technológiu, ktorá spája vysokú odolnosť,...

Dekarbonizácia individuálneho vykurovania domácností – Green Deal evolučne a nie revolučne

Ambiciózne plány EK narazili na ekonomické možnosti domácností v jednotlivých členských štátoch –...

Minimalistické dvere IDEA – technická precíznosť a čistota prevedenia

IDEA DOOR od spoločnosti JAP prináša do interiéru čistý minimalistický vzhľad vďaka bezrámovému riešeniu a precíznej...

Dom s výhľadom na údolie, Dlouhý Most (ČR)

Kontinuita riešenia od vonkajšieho obkladu až po kovania a kľučky.

Schell Vitus – osvedčené riešenie pre sprchy a umývadlá vo verejnom sektore s viac ako desaťročnou tradíciou

Nástenné nadomietkové armatúry Vitus sú mimoriadne vhodné pre rýchlu a efektívnu...

Kompozitné okná predstavujú súčasnosť a budúcnosť

Okenné profily z kompozitného materiálu RAU-FIPRO X od spoločnosti Rehau sú v porovnaní s tradičnými plastovými profilmi mnohonásobne...

Myotis - stoly 2025

Najnovší sortiment stolov pre zariadenie interiérov...

Priemyselné sklenené priečky Dorsis Digero: svetelné rozhranie pre moderné interiéry

Spojenie moderného dizajnu, funkčnosti a svetla do harmonického architektonického prvku.

Význam prirodzeného svetla pre moderné a flexibilné pracovné prostredie

Kancelárska budova Baumit v slovinskom Trzine prešla premenou na moderné a udržateľné pracovisko. Architekti kládli dôraz...

Konferencia Xella Dialóg predstaví novinky a trendy v stavebníctve

Mottom šiesteho ročníku on-line konferencie odborníkov Xella Dialóg je Efektívny návrh budov 2025+: zmeny a riešenia

Murovací robot WLTR stavia svoj prvý dom na Slovensku

Robot WLTR predstavuje moderný prístup k murovaným konštrukciám. Vďaka automatizácii dokáže rýchlo, presne a bezpečne realizovať...

Dom pre Vysočinu, Plačkov (ČR)

Víkendové bývanie. Osvedčené stavebné princípy a miestne materiály použité na novostavbe.
Diela
Red 406.06.2018
46740+26
Dom pre Vysočinu, Plačkov (ČR)
Autori: Ing. Radek HadrbolecNávrh: 2013 - 2014Realizácia: 2015 - 2018Adresa: Humpolec - Plačkov, Česká republikaPublikované: 6. jún 2018

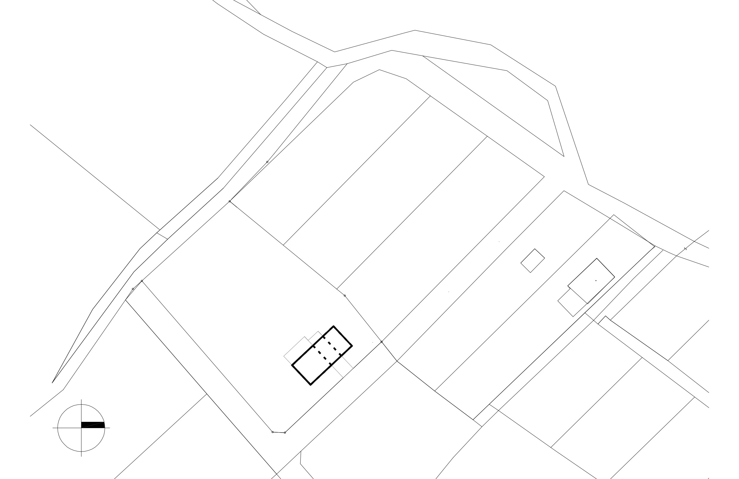
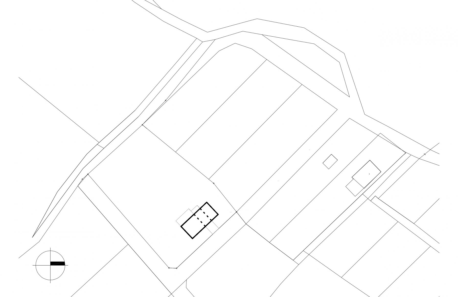
Pozemok sa nachádza na okraji dediny. Dookola sa rozprestiera krajina Vysočiny. Polia, lesy, rybník a kopce. Dom, ktorý "je normálny". Bude sa páčiť väčšine "bežných" ľudí. Škoda, že táto väčšina si neberie pri budovaní svojich obydlí vzor z takýchto jednoduchých vecí, ale práve tie väčšinové riešenia vyzerajú zväčša úplne inak.

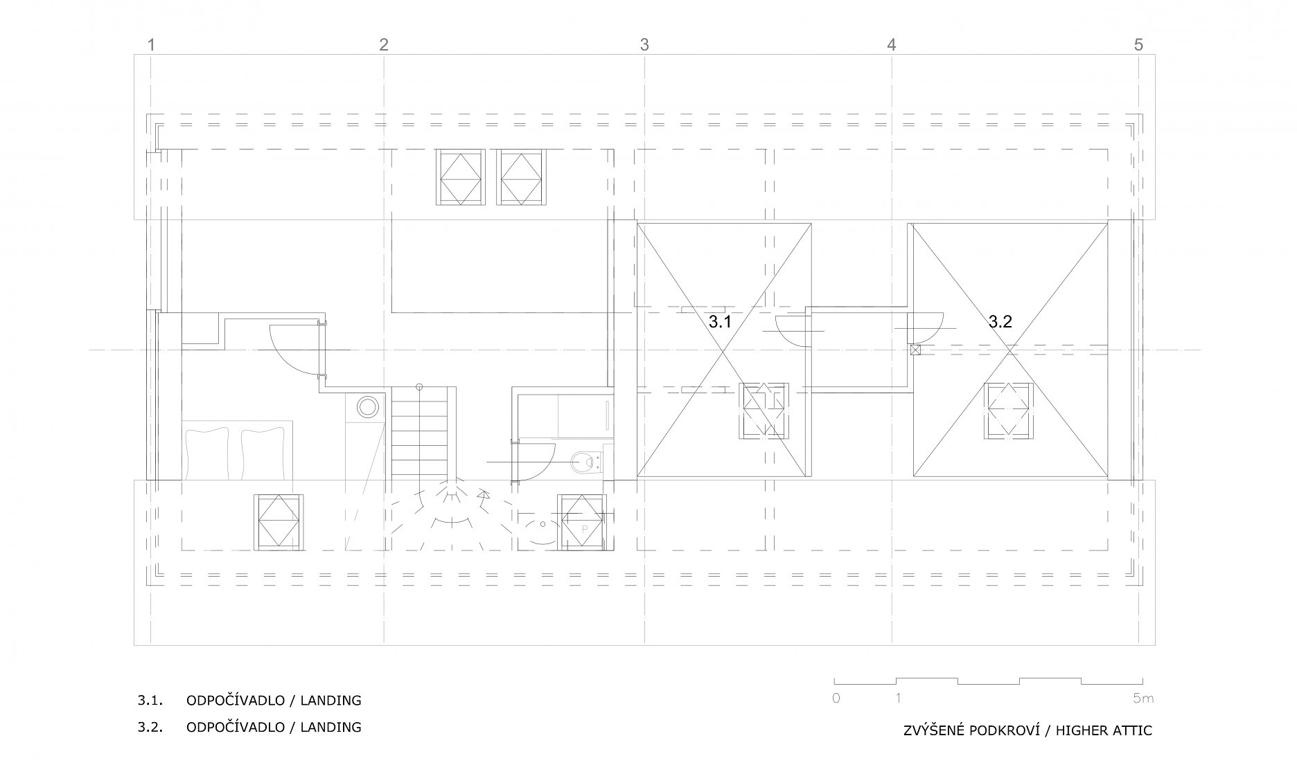
Tvar domu vychádza z tradičnej stodoly. "Kváder so sedlovou strechou" je pre kraj Vysočiny časom overené riešenie. Umiestnením stavby pozdĺž severovýchodnej hranice pozemku nedošlo k rozdeleniu záhrady, celok zostáva zachovaný. Pri pohľade na juh je z domu vidieť na väčšinu pozemku.

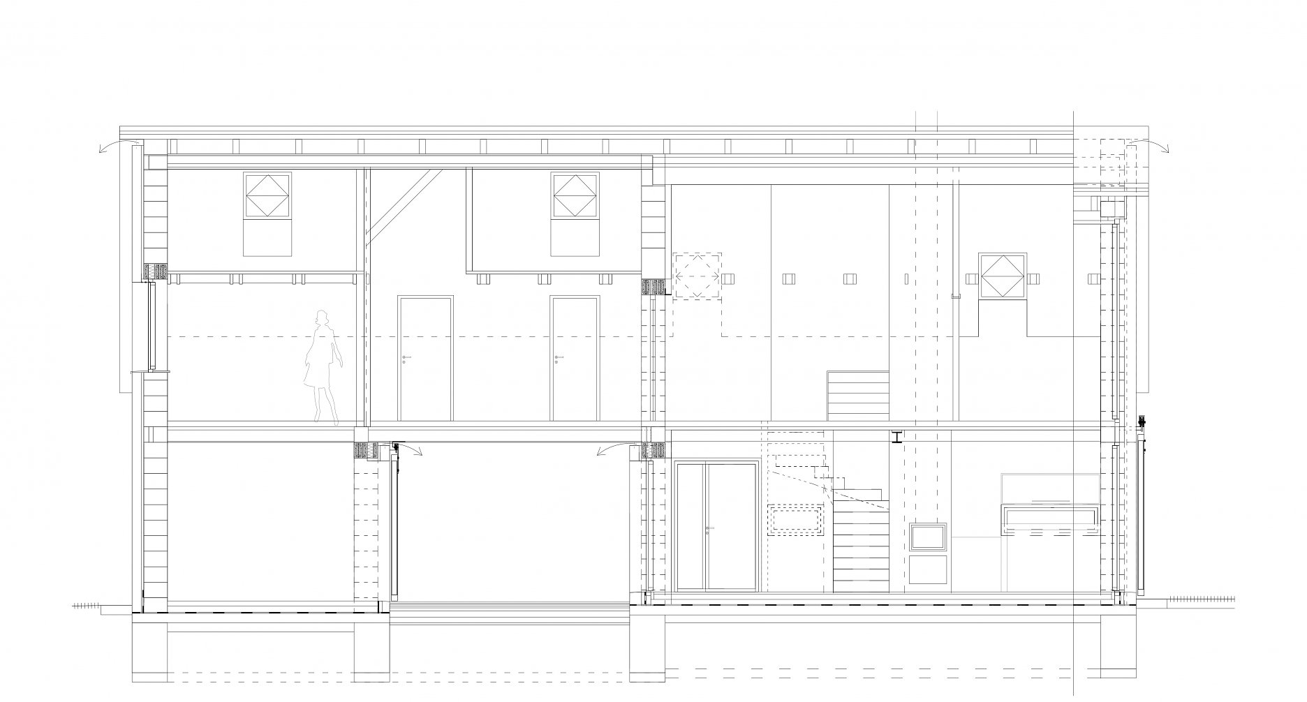
Architekt sa rozhodol použiť klasické miestne stavebné materiály - kameň, drevo... ktoré priznáva v ich surovej podobe. Pred nosné múry z keramických tvaroviek  je predsadená kamenná prímurovka šírky 180 mm. Kamene boli zozbierané z okolitých polí. Vrstvy sú vzájomne oddelené 40 milimetrovou vzduchovou medzerou. Oplechované ostenia však odkazujú na štandardné súčasné materiály.

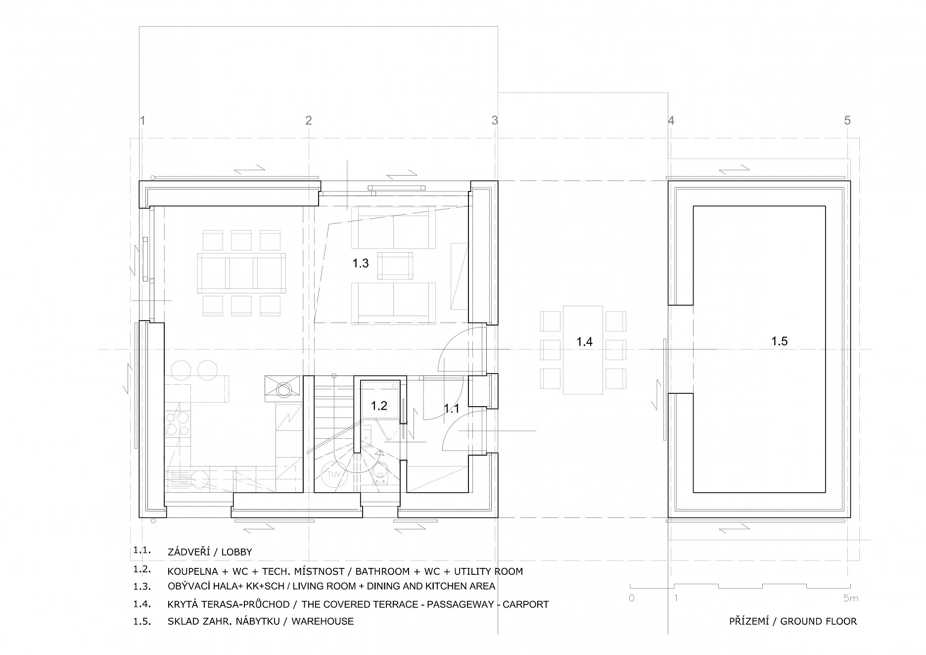
Prízemie priečne pretína krytá terasa / priechod / prejazd. Prístrešok pre auto slúži zároveň ako vstup do domu, vstup do skladu a tiež ako východ na terasu. Z oboch strán je možné priestor uzatvoriť posuvnými latovanými vrátami a prispôsobiť tak jeho využitie. Vďaka tomuto prvku sa minimalizuje aj počet stavebných otvorov na fasáde. Krytá terasa primurovaná kameňom je počas leta využívaná na posedenie v tieni. Materiál cez deň akumuluje teplo, večer ho následne sála.

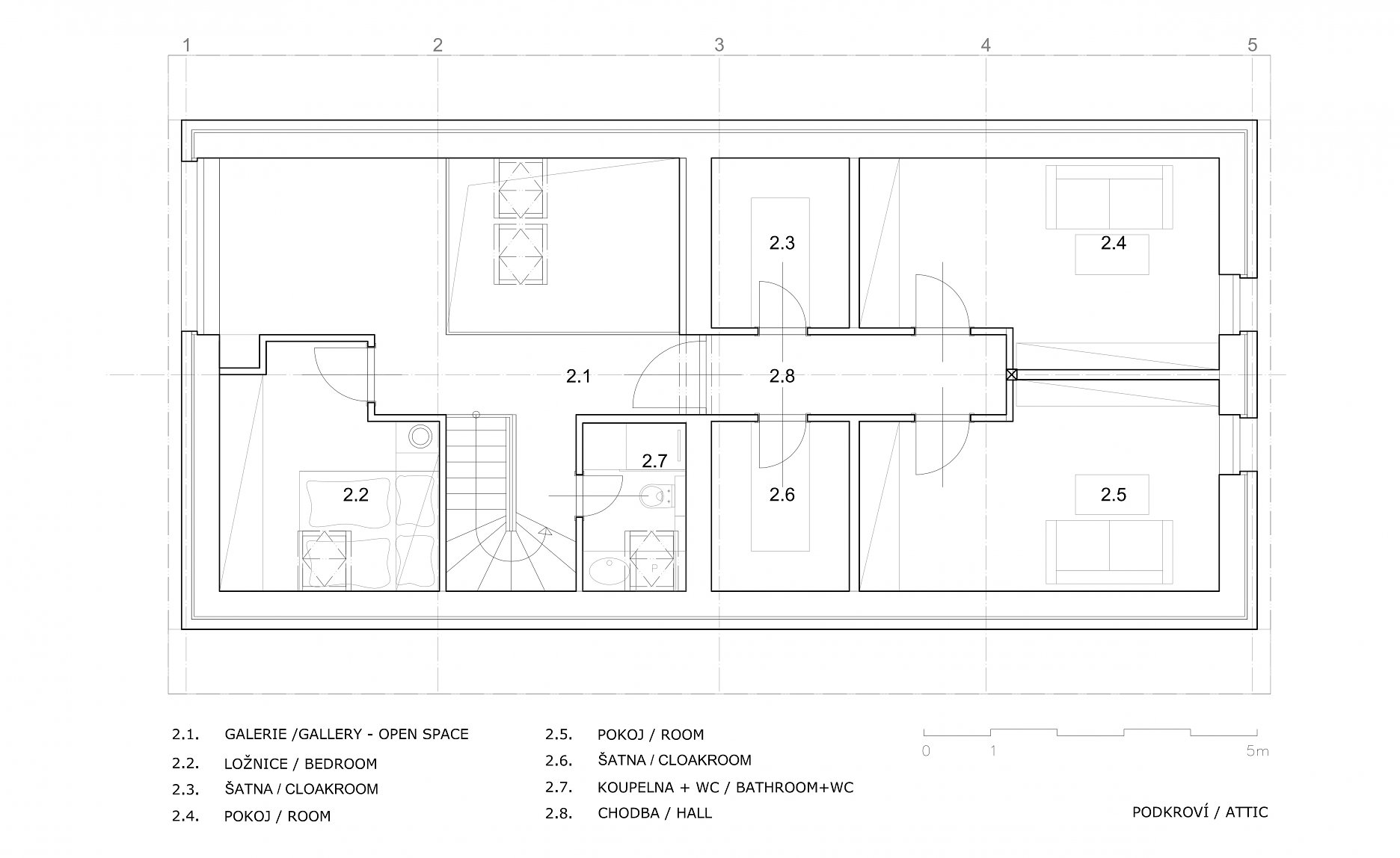
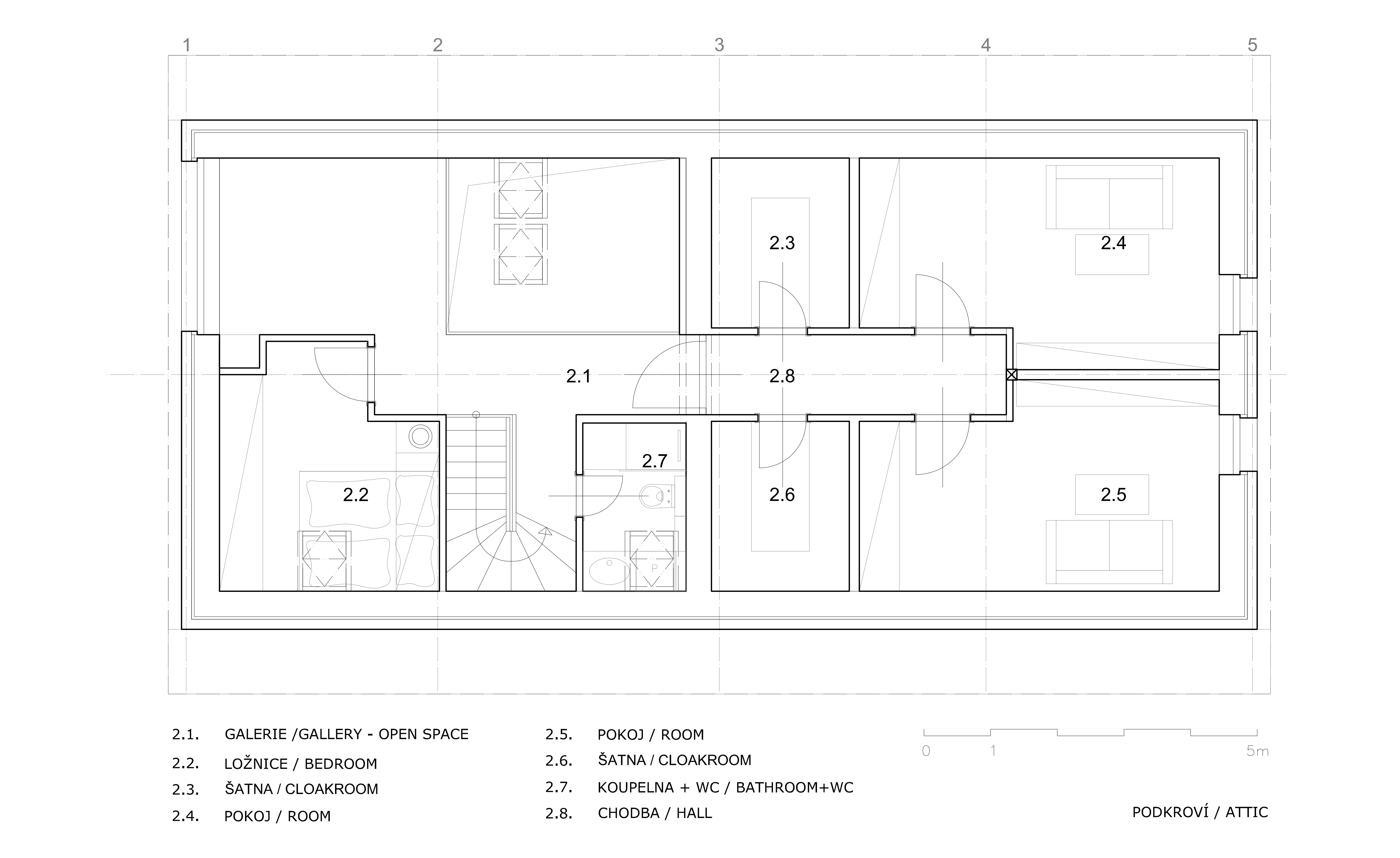
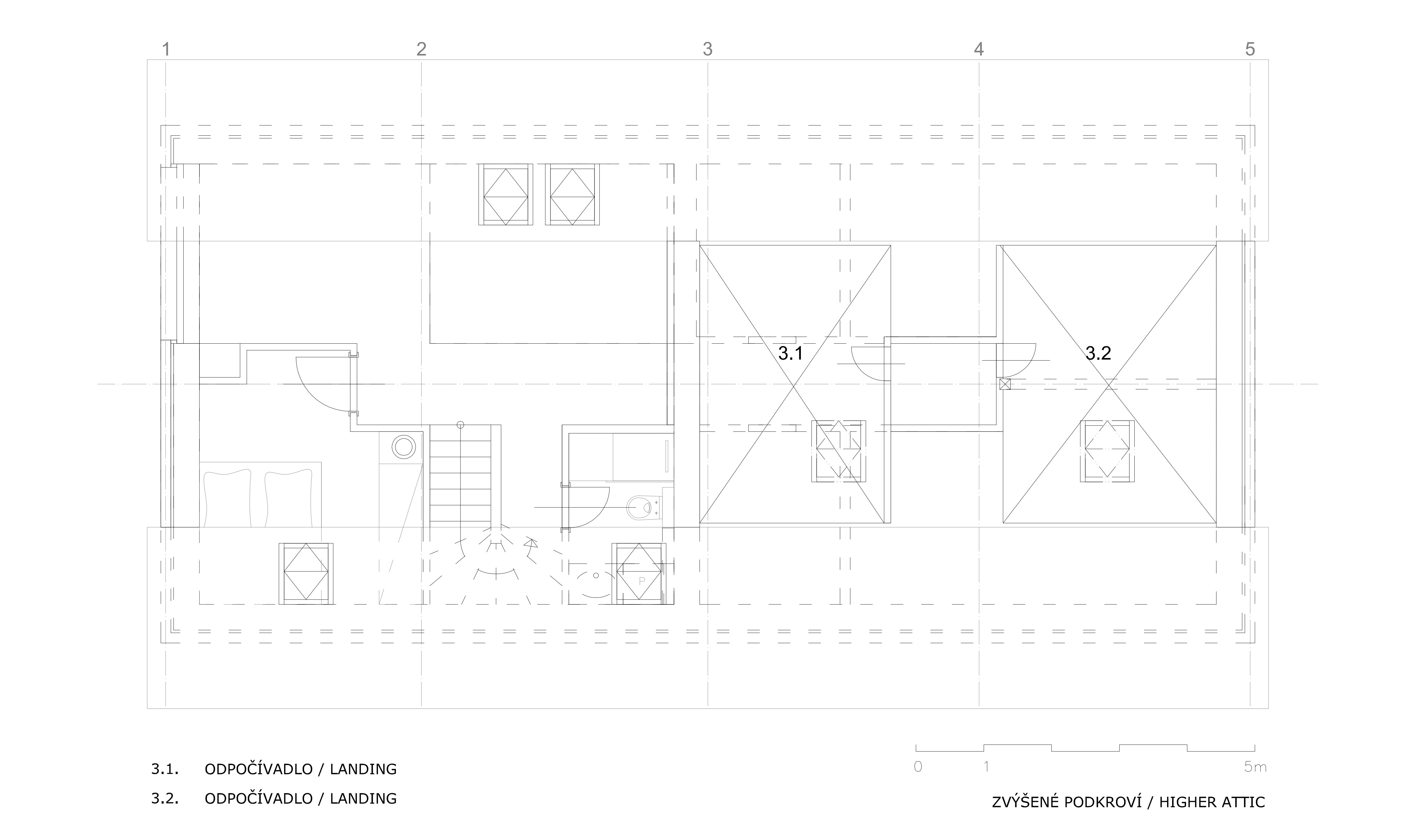
Presklené plochy orientované smerom na juh prepájajú obývačku so záhradou. Hala je otvorená cez dve podlažia, až do priestoru podkrovia. Interiéru dominuje kamenná štítová stena. Rovnaký kameň je použitý aj na vonkajších spevnených plochách. Stropy sú drevené trámové. Dispozícia je úsporná, odpady sú napojené na jedinú stúpačku. 

Foto: Tomáš Augusta
Foto: Tomáš Augusta
Foto: Tomáš Augusta
Foto: Martin Jaroš
Foto: Tomáš Augusta
Foto: Tomáš Augusta
Foto: Tomáš Augusta
Foto: Tomáš Augusta
Foto: Tomáš Augusta
Pôdorys 1. NP
Pôdorys 1. NP
Pôdorys 2. NP
Pôdorys 2. NP
Pôdorys 3. NP
Pôdorys 3. NP
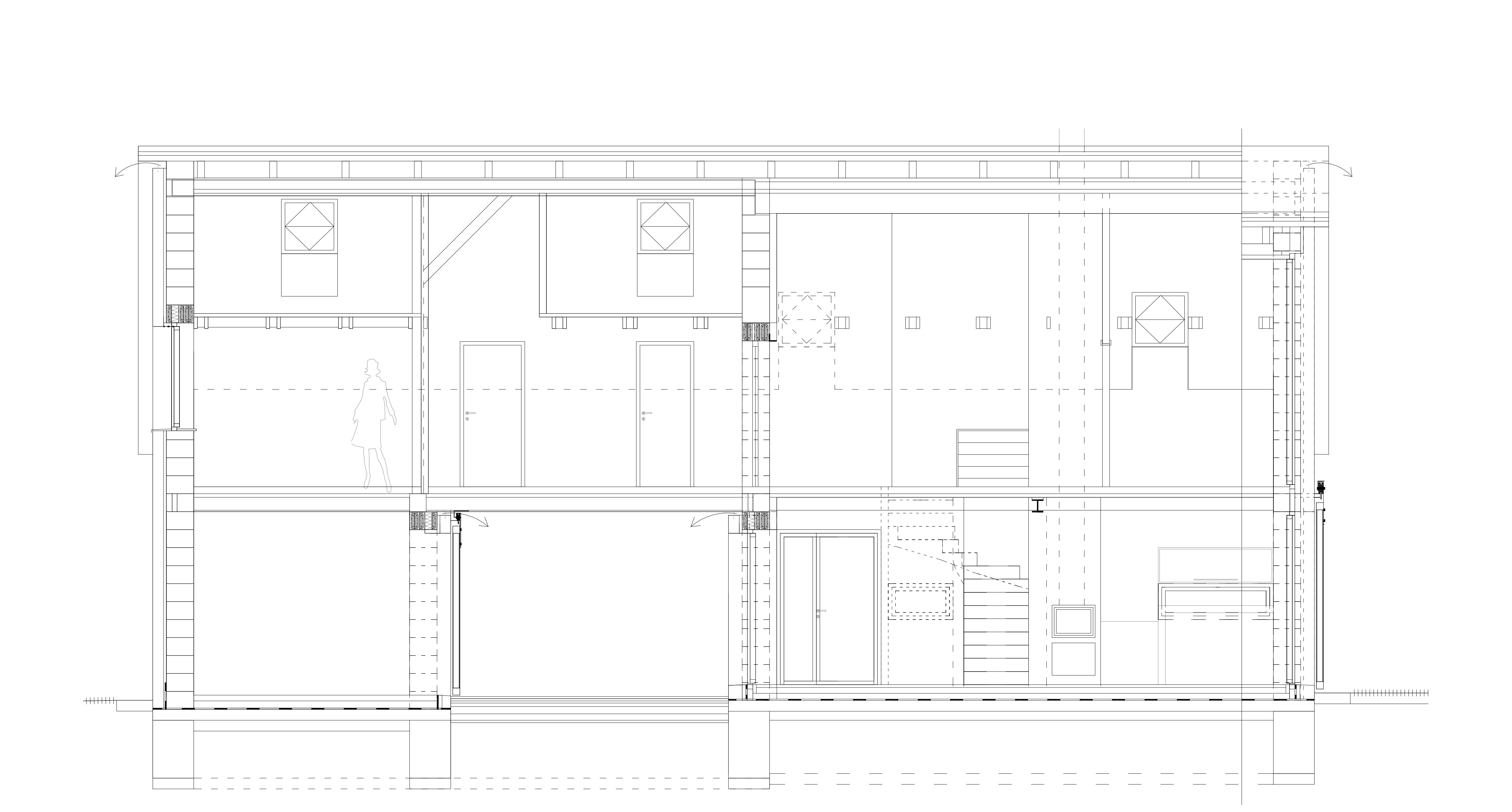
Priečny rez A-A
Priečny rez A-A
Priečny rez B-B
Priečny rez B-B
Priečny rez C-C
Priečny rez C-C
Pozdĺžny rez E-E
Pozdĺžny rez E-E
Foto: Martin Jaroš
Foto: Martin Jaroš
Foto: Martin Jaroš
Foto: Martin Jaroš
Foto: Martin Jaroš

Poloha diela

Ing. Radek Hadrbolec

Súvisiace články

Vložené
23. máj 2018
0
4674
Hlavný obsahHlavný obsah
Čakajte prosím