Advertorial

Pozvánka na 2. ročník stavebného veľtrhu BigMarket na Slovensku

Na podujatí sa predstaví až 37 vystavovateľov - popredných dodávateľov stavebných materiálov a inovácií s prezentáciou...

Hotel Hirschen Spa House, Rakúsko

Novotvar v prostredí alpskej obce.

Vytvorte si kúpeľňu snov: dizajnové riešenie od značky hansgrohe

Hansgrohe - prémiová značka kúpeľňových riešení, ponúka nadčasový dizajn, technickú precíznosť a udržateľné inovácie...

Okná Internorm za minuloročné ceny + hliníkový kryt zdarma!

Využite špeciálnu akciu Internorm: okná za minuloročné ceny a hliníkový kryt úplne zadarmo. Ponuka je časovo obmedzená!

Moderné plynové technológie: Efektivita a inovácie pre 21. storočie

Sumarizácia najdôležitejších inovácií, ktoré redefinujúcich využitie tohto energetického zdroja.

Utesňovanie spodných stavieb pomocou hydro-aktívnej fólie AMPHIBIA.

AMPHIBIA 3000 GRIP 1.3 od spoločnosti ATRO predstavuje modernú hydroizolačnú technológiu, ktorá spája vysokú odolnosť,...

Dekarbonizácia individuálneho vykurovania domácností – Green Deal evolučne a nie revolučne

Ambiciózne plány EK narazili na ekonomické možnosti domácností v jednotlivých členských štátoch –...

Minimalistické dvere IDEA – technická precíznosť a čistota prevedenia

IDEA DOOR od spoločnosti JAP prináša do interiéru čistý minimalistický vzhľad vďaka bezrámovému riešeniu a precíznej...

Dom s výhľadom na údolie, Dlouhý Most (ČR)

Kontinuita riešenia od vonkajšieho obkladu až po kovania a kľučky.

Schell Vitus – osvedčené riešenie pre sprchy a umývadlá vo verejnom sektore s viac ako desaťročnou tradíciou

Nástenné nadomietkové armatúry Vitus sú mimoriadne vhodné pre rýchlu a efektívnu...

Kompozitné okná predstavujú súčasnosť a budúcnosť

Okenné profily z kompozitného materiálu RAU-FIPRO X od spoločnosti Rehau sú v porovnaní s tradičnými plastovými profilmi mnohonásobne...

Myotis - stoly 2025

Najnovší sortiment stolov pre zariadenie interiérov...

Priemyselné sklenené priečky Dorsis Digero: svetelné rozhranie pre moderné interiéry

Spojenie moderného dizajnu, funkčnosti a svetla do harmonického architektonického prvku.

Význam prirodzeného svetla pre moderné a flexibilné pracovné prostredie

Kancelárska budova Baumit v slovinskom Trzine prešla premenou na moderné a udržateľné pracovisko. Architekti kládli dôraz...

Konferencia Xella Dialóg predstaví novinky a trendy v stavebníctve

Mottom šiesteho ročníku on-line konferencie odborníkov Xella Dialóg je Efektívny návrh budov 2025+: zmeny a riešenia

Víkendový dom v Žiari

Jednoduché tvaroslovie, tradičné materiály.
Diela
Red 312.12.2017
69880+28
Víkendový dom v Žiari
Autori: Ing. arch. Martin BobákPlocha pozemku: 500 m2Zastavaná plocha: 255 m2Podlažná plocha: 178 m2Obostavaný objem: 920 m3 Návrh: 2014 - 2015Realizácia: 2015 - 2017Adresa: 032 05, Žiar, SlovenskoPublikované: 12. december 2017

Príjemné bývanie pre majiteľov i priateľský kontext a ohľaduplnosť k okoliu. 

Nízkoenergetický dom, ktorý stojí v ústí Žiarskej doliny slúži ako víkendové sídlo pre bratislavského investora. Novostavba sa nachádza v centre obce Žiar, uprostred typickej riadkovej zástavby, v blízkosti obecného úradu. Na dlhej a úzkej parcele bol pôvodne starší dom s humnom. Dom ostal zachovaný, humno bolo zbúrané, čím vznikol priestor pre nový objekt. Nový dom rešpektuje líniu vytýčenú pôvodnou stavbou. Medzi domy je vložená garáž, ktorá objekty hmotovo prepája. Prístup k novostavbe je cez spoločný dvor z hlavnej obecnej cesty. Do domu sa vstupuje cez kryté závetrie zo záhrady.

Foto: Martin Bobák
Situácia s vyznačenou parcelou
Situácia s vyznačenou parcelouAutor: Martin Bobák

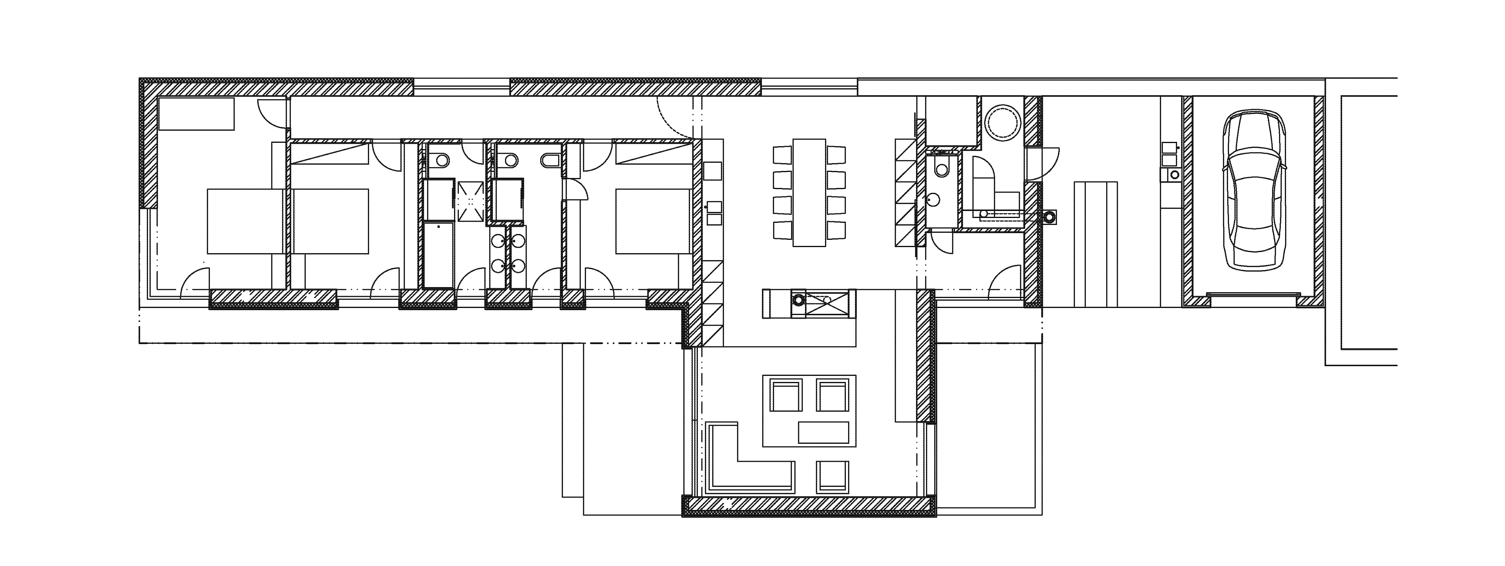
Prízemný dom s pôdorysom tvaru “T” tvoria tri hlavné objemy. Nočná časť domu sa nachádza v lineárnom trakte orientovanom paralerne s osou pozemku. Denná časť “pretína” pozdĺžnu hmotu domu, je situovaná kolmo na hlavnú os. Oba segmenty majú sedlové strechy. Závetrie domu, ktoré na východnej strane nadväzuje na garáž je prestrešené plochou strechou.

Foto: Martin Bobák

Obytná časť domu je orientovaná na juhozápad, do záhrady. Chodba, ktorá sprístupňuje izby a hygienu v nočnej časti prebieha pozdĺž severnej fasády. Hlavný obytný priestor s kuchyňou je prístupný cez zapustené závetrie a následne zádverie. V centre priestoru je umiestnené krbové teleso s akumulačnou stenou. Tento prvok oddeľuje jedáleň a kuchyňu od sedenia v obývačke. “Vystúpená” obývačka sa otvára do privátnej časti záhrady. Strešná konštrukcia je v časti obytnej haly priznaná a otvorená na celú svetlú výšku.

Pôdorys
PôdorysAutor: Martin Bobák
Rezy
RezyAutor: Martin Bobák
Pohľady
PohľadyAutor: Martin Bobák

Zateplené obvodové steny aj deliace priečky sú murované z keramických tvaroviek. Pohľadovú vrstvu v exteriéri tvorí drevený obklad zo smrekovcových lát a biela omietka. Na sedlovej streche je použitá keramická škridla. Oplotenie na južnej strane tvoria priznané betónové tvárnice s predsadenou konštrukciou pre popínavé rastliny.

Foto: Martin Bobák
Foto: Martin Bobák

V interiéri opať nájdeme rovnakú materiálovú skladbu - biele omietky, tmavé oceľové prvky a vstavaný nábytok, v obývačke drevené podlahy a podhľady.

Foto: Martin Bobák
Foto: Martin Bobák

O vykurovanie sa stará primárne podlahové kúrenie. Zdroj tepla je kombinovaný - kotol na drevo a pelety s akumulačou nádržou + krb.

Normálne bývanie pre normálnych ľudí. Nasledovaniahodný príklad a alternatíva k tomu, čo sa bežne na vidieku stavia.

Podklady: Martin Bobák, B.STUDIO

Poloha diela

Ing. arch. Martin Bobák

Súvisiace články

Vložené
11. december 2017
0
6988
Hlavný obsahHlavný obsah
Čakajte prosím