Advertorial

Pozvánka na 2. ročník stavebného veľtrhu BigMarket na Slovensku

Na podujatí sa predstaví až 37 vystavovateľov - popredných dodávateľov stavebných materiálov a inovácií s prezentáciou...

Hotel Hirschen Spa House, Rakúsko

Novotvar v prostredí alpskej obce.

Vytvorte si kúpeľňu snov: dizajnové riešenie od značky hansgrohe

Hansgrohe - prémiová značka kúpeľňových riešení, ponúka nadčasový dizajn, technickú precíznosť a udržateľné inovácie...

Okná Internorm za minuloročné ceny + hliníkový kryt zdarma!

Využite špeciálnu akciu Internorm: okná za minuloročné ceny a hliníkový kryt úplne zadarmo. Ponuka je časovo obmedzená!

Moderné plynové technológie: Efektivita a inovácie pre 21. storočie

Sumarizácia najdôležitejších inovácií, ktoré redefinujúcich využitie tohto energetického zdroja.

Utesňovanie spodných stavieb pomocou hydro-aktívnej fólie AMPHIBIA.

AMPHIBIA 3000 GRIP 1.3 od spoločnosti ATRO predstavuje modernú hydroizolačnú technológiu, ktorá spája vysokú odolnosť,...

Dekarbonizácia individuálneho vykurovania domácností – Green Deal evolučne a nie revolučne

Ambiciózne plány EK narazili na ekonomické možnosti domácností v jednotlivých členských štátoch –...

Minimalistické dvere IDEA – technická precíznosť a čistota prevedenia

IDEA DOOR od spoločnosti JAP prináša do interiéru čistý minimalistický vzhľad vďaka bezrámovému riešeniu a precíznej...

Dom s výhľadom na údolie, Dlouhý Most (ČR)

Kontinuita riešenia od vonkajšieho obkladu až po kovania a kľučky.

Schell Vitus – osvedčené riešenie pre sprchy a umývadlá vo verejnom sektore s viac ako desaťročnou tradíciou

Nástenné nadomietkové armatúry Vitus sú mimoriadne vhodné pre rýchlu a efektívnu...

Kompozitné okná predstavujú súčasnosť a budúcnosť

Okenné profily z kompozitného materiálu RAU-FIPRO X od spoločnosti Rehau sú v porovnaní s tradičnými plastovými profilmi mnohonásobne...

Myotis - stoly 2025

Najnovší sortiment stolov pre zariadenie interiérov...

Priemyselné sklenené priečky Dorsis Digero: svetelné rozhranie pre moderné interiéry

Spojenie moderného dizajnu, funkčnosti a svetla do harmonického architektonického prvku.

Význam prirodzeného svetla pre moderné a flexibilné pracovné prostredie

Kancelárska budova Baumit v slovinskom Trzine prešla premenou na moderné a udržateľné pracovisko. Architekti kládli dôraz...

Konferencia Xella Dialóg predstaví novinky a trendy v stavebníctve

Mottom šiesteho ročníku on-line konferencie odborníkov Xella Dialóg je Efektívny návrh budov 2025+: zmeny a riešenia

Drevený dom v lese, Bratislava

Bývanie na okraji hlavného mesta. Svahovitý pozemok so vzrastlými stromami na hranici chatovej oblasti a lesa poskytuje otvorený výhľad do krajiny, to všetko neďaľeko od panelákovej zástavby v Lamači.
Diela
Red 323.06.2017
57780+14
Drevený dom v lese, Bratislava
Autori: Ing. arch. Michal Tačovský, Ing. arch. Adrian MóroczPlocha pozemku: 496 m²Zastavaná plocha: 99,2 m²Podlažná plocha: 198,4 m²Investičný náklad: 250 000 € Návrh: 2015 - 2016Realizácia: 2016 - 2017Adresa: Plánky , Záhorská Bystrica, SlovenskoPublikované: 23. jún 2017

Na úpätí Malých Karpát sa prelína les a urbanizované prostredie. Parcela s výhľadom je orientovaná na juhozápad. Architektonické riešenie a osadenie domu do značnej miery ovplyvnili vzrastlé stromy na pozemku.

Foto: Pavel Kudiváni
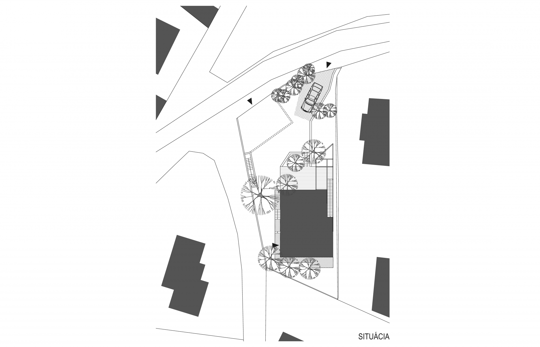
Situácia
SituáciaAutor: MOROCZ_TACOVSKY

Na mieste novostavby stála staršia neobývaná chata, kde kedysi trávil čas karikaturista Milan Vavro s jeho susedom  Viktorom Kubalom. Pozemok bol na predaj dva roky a nikto ho nechcel kúpiť vzhľadom na zložitý terén s prevýšením až 7 metrov a komplikované osadenie domu.

Foto: Miroslav Mahdalík
Foto: Miroslav Mahdalík

Architekti sa rozhodli situáciu vyriešiť  vyrovnaním úrovne záhrady. Do najstrmšej časti svahu osadili dvojgaráž lichobežníkového tvaru so zelenou strechou, kde sa okrem dvoch áut zmestili aj bicykle, skladové police, či motorka.

Foto: Michal Tačovský
Foto: Michal Tačovský

Pod terasou zostal priestor na pivnicu. Zadná časť patrí samotnému domu, ktorý je v dvoch úrovniach. Na spodnom podlaží sa nachádza vstupná chodba s príslušenstvom, kuchyňa s komorou, jedáleň a hosťovská izba - pri malých deťoch preberá funkciu herne a pri posuvných dverách sa stáva súčasťou vedľajšej obývacej izby.

Odtiaľ sa priamo vchádza na terasu a do záhrady. Krb je srdcom priestoru a nasáva vzduch z exteriéru cez komoru, ktorá sa súčasne vetrá. Kuchyňa má okno do priestoru medzi plotom, kde sa podarilo vytvoriť malú japonskú záhradku.

Ponad jedálenský stôl prechádza schodisko galériou na poschodie do nočnej časti. Tu sa nachádzajú tri spálne a dve kúpeľne. Dom disponuje exteriérovým schodiskom vedúcim na strechu, odkiaľ sa dá sledovať výhľad priamo zo saunového domčeka s vonkajšou sprchou alebo z vírivej vane. Rozkladacie plátno slúži ako letné kino.

Pôdorysy
PôdorysyAutor: MOROCZ_TACOVSKY
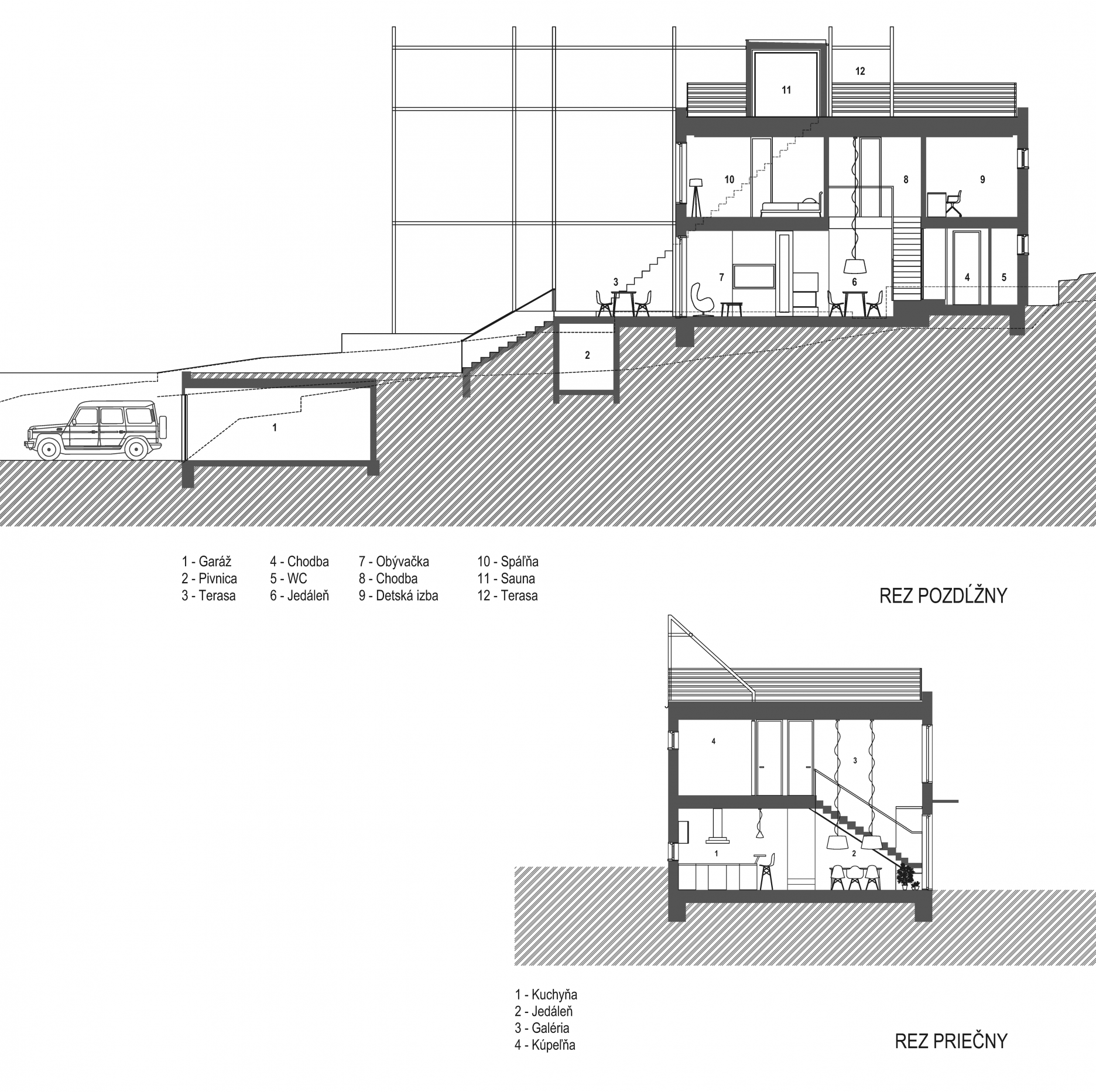
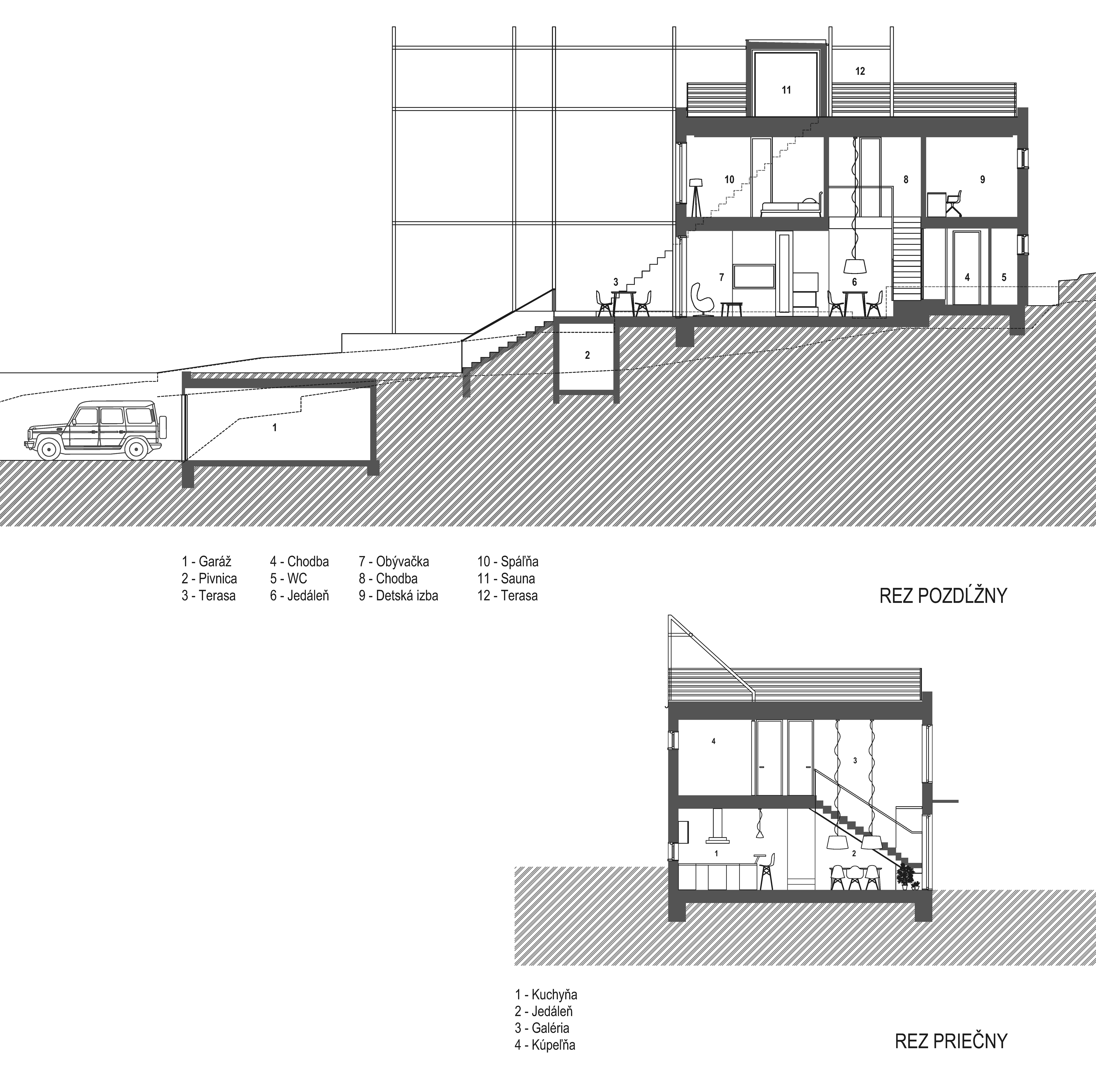
Rezy
Rezy Autor: MOROCZ_TACOVSKY
Pohľady
PohľadyAutor: MOROCZ_TACOVSKY

Mohutná drevená konštrukcia, postavená bez žeriavu, nesie exteriérové schodisko, tvorí rastúcu zelenú stenu ako bariéru od susedného domu, slúži na uchytenie hojdačiek a hlavne dotvára architektúru domu. Svojím vzhľadom umocňuje materialitu a návrat k prírode.

Foto: Miroslav Mahdalík

Výškou a zošikmením sa chceli architekti priblížiť okolitým ihličnanom. Logisticky aj fyzicky bolo náročné v tomto teréne manipulovať s drevenými panelmi a nezničiť pritom žiadny strom. Tu sa ukázala výhoda, keď je architekt investorom, stavebným dozorom a stavbyvedúcim zároveň.

Foto: Michal Tačovský
Foto: Michal Tačovský
Foto: Michal Tačovský
Foto: Michal Tačovský
Foto: Miroslav Mahdalík
Foto: Michal Tačovský
Foto: Michal Tačovský
Foto: Michal Tačovský
Foto: Miroslav Mahdalík
Foto: Miroslav Mahdalík
Foto: Michal Tačovský
Foto: Michal Tačovský
Pohľady - autorská skica
Pohľady - autorská skicaAutor: MOROCZ_TACOVSKY
Konštrukcia - autorská skica
Konštrukcia - autorská skicaAutor: MOROCZ_TACOVSKY
Detaily - autorská skica
Detaily - autorská skicaAutor: MOROCZ_TACOVSKY
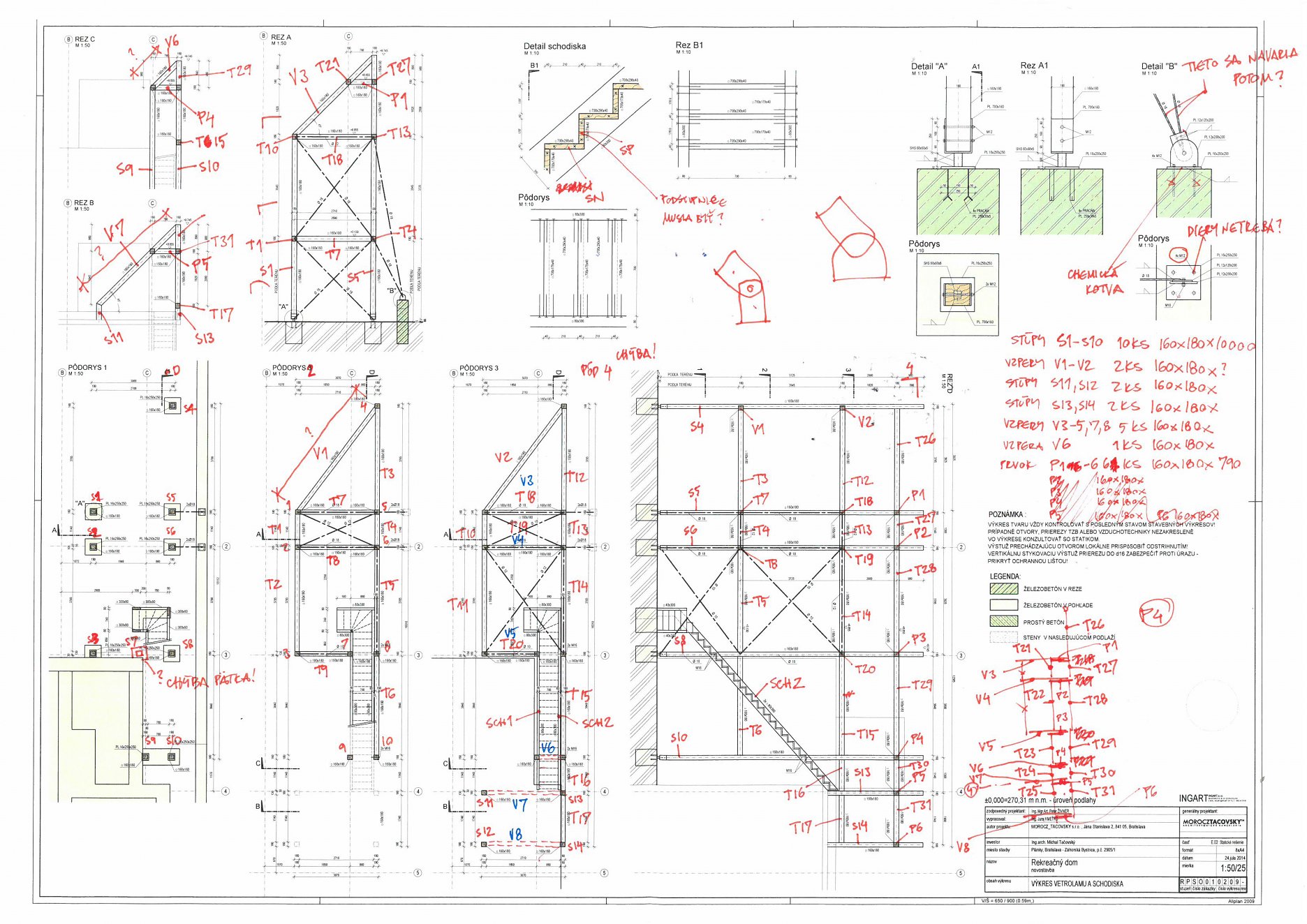
Realizačná dokumentácia s poznámkami
Realizačná dokumentácia s poznámkamiAutor: MOROCZ_TACOVSKY
Oceľové prvky - autorská skica
Oceľové prvky - autorská skicaAutor: MOROCZ_TACOVSKY

Podklady: MOROCZ_TACOVSKY

Poloha diela

Ing. arch. Michal Tačovský
Ing. arch. Adrian Mórocz

Súvisiace články

Vložené
21. jún 2017
0
5778
Hlavný obsahHlavný obsah
Čakajte prosím