Advertorial

Minimalistické dvere IDEA – technická precíznosť a čistota prevedenia

IDEA DOOR od spoločnosti JAP prináša do interiéru čistý minimalistický vzhľad vďaka bezrámovému riešeniu a precíznej...

Schell Vitus – osvedčené riešenie pre sprchy a umývadlá vo verejnom sektore s viac ako desaťročnou tradíciou

Nástenné nadomietkové armatúry Vitus sú mimoriadne vhodné pre rýchlu a efektívnu...

Kompozitné okná predstavujú súčasnosť a budúcnosť

Okenné profily z kompozitného materiálu RAU-FIPRO X od spoločnosti Rehau sú v porovnaní s tradičnými plastovými profilmi mnohonásobne...

Myotis - stoly 2025

Najnovší sortiment stolov pre zariadenie interiérov...

Priemyselné sklenené priečky Dorsis Digero: svetelné rozhranie pre moderné interiéry

Spojenie moderného dizajnu, funkčnosti a svetla do harmonického architektonického prvku.

Význam prirodzeného svetla pre moderné a flexibilné pracovné prostredie

Kancelárska budova Baumit v slovinskom Trzine prešla premenou na moderné a udržateľné pracovisko. Architekti kládli dôraz...

Konferencia Xella Dialóg predstaví novinky a trendy v stavebníctve

Mottom šiesteho ročníku on-line konferencie odborníkov Xella Dialóg je Efektívny návrh budov 2025+: zmeny a riešenia

Murovací robot WLTR stavia svoj prvý dom na Slovensku

Robot WLTR predstavuje moderný prístup k murovaným konštrukciám. Vďaka automatizácii dokáže rýchlo, presne a bezpečne realizovať...

Nová éra bezpečnosti s I-tec Secure od Internorm

Okrem bezpečnosti majú okná aj elegantný vzhľad, pretože nie sú viditeľné žiadne uzamykacie časti kovania.

Skryté zárubne JAP – intenzívny zážitok z bývania

Dvere MASTER v skrytej zárubni AKTIVE je možné vyrobiť až do výšky 3 700 mm

Tienenie namiesto klimatizácie

Internorm stavia na energetickú efektívnosť a inteligentné tieniace riešenia.

BigMat International Architecture Award 2025 - vybrané diela

Slovensko vo výbere zastupuje šesť realizácií.

Milník udržateľnej výroby okien: Internorm zavádza Low-Carbon-Glas iplus

Spoločnosť Internorm odteraz stavia na novej variante tepelnoizolačného skla od AGC, ktorá v produkcii ročne ušetrí 10...

Výsledky 20. ročníka medzinárodnej študentskej súťaže Saint-Gobain Architecture Student Contest 2025

Jubilejný 20. ročník prestížnej medzinárodnej súťaže pre študentov architektúry priniesol...

Dvere MASTER - pre interiéry navrhnuté s rozumom aj vášňou!

Otočné a posuvné dvere MASTER od podlahy až po strop, ponúkajú mimoriadnu variabilitu výšky, materiálu a zladenia so skrytými...

Villa 3 - rodinný dom pod Tatrami

Triangulácia štvorcového pozemku. Netypický pôdorys, komfortné priestory.
Diela
Red 429.11.2017
27910+21
Villa 3 - rodinný dom pod Tatrami
Autori: Ing. arch. Branislav RzymanSpolupráca: Ing. arch. Miloslav DulíkPlocha pozemku: 2075 m2Zastavaná plocha: 430 m2Podlažná plocha: 428,90 m2Obostavaný objem: 1 870 m3Návrh: 2016 - 2016Realizácia: 2017 - 2017Adresa: Pod Tatrami, SlovenskoPublikované: 29. november 2017

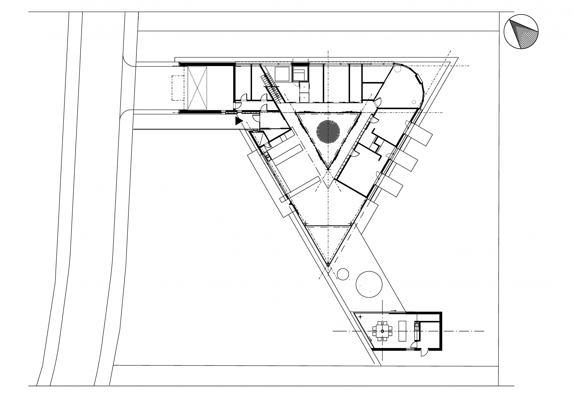
Dom postavený na ústrednom motíve átria, okolo ktorého sa na trojuholníkovom pôdoryse odvíja obytný priestor. Hranica interiéru a exteriéru má rôzne formy a intenzitu otvorenosti. Dôležitejší, ako samotná architektonická figúra, je kontakt vnútorného obytného prostredia s exteriérom. Buď s ďalším "vonkajším interiérom" v átriu, alebo s voľným otvoreným priestorom chráneného dvora okolo domu.

Dielo predstavujú autori:

Zákazku sme získali vďaka štúdii, ktorá oslovila investora - asi najmä kvôli tomu, že ho príjemne prekvapil koncept s uzavretým átriom a celková otvorenosť domu. Dom sme navrhovali od štúdie, cez projekt pre stavebné povolenie (v podrobnosti realizačného projektu) až po návrh interiéru, kde boli riešené okrem „klasického“ vstavaného nábytku mnohé atypické prvky.

Spolupráca s investorom bola výborná. Počas projektovania aj realizácie nám prejavoval jednoznačnú dôveru a svojou náročnosťou prispel k mnohým zaujímavým detailom.

Foto: Robo Kočan
Foto: Branislav Rzyman

Architektúra

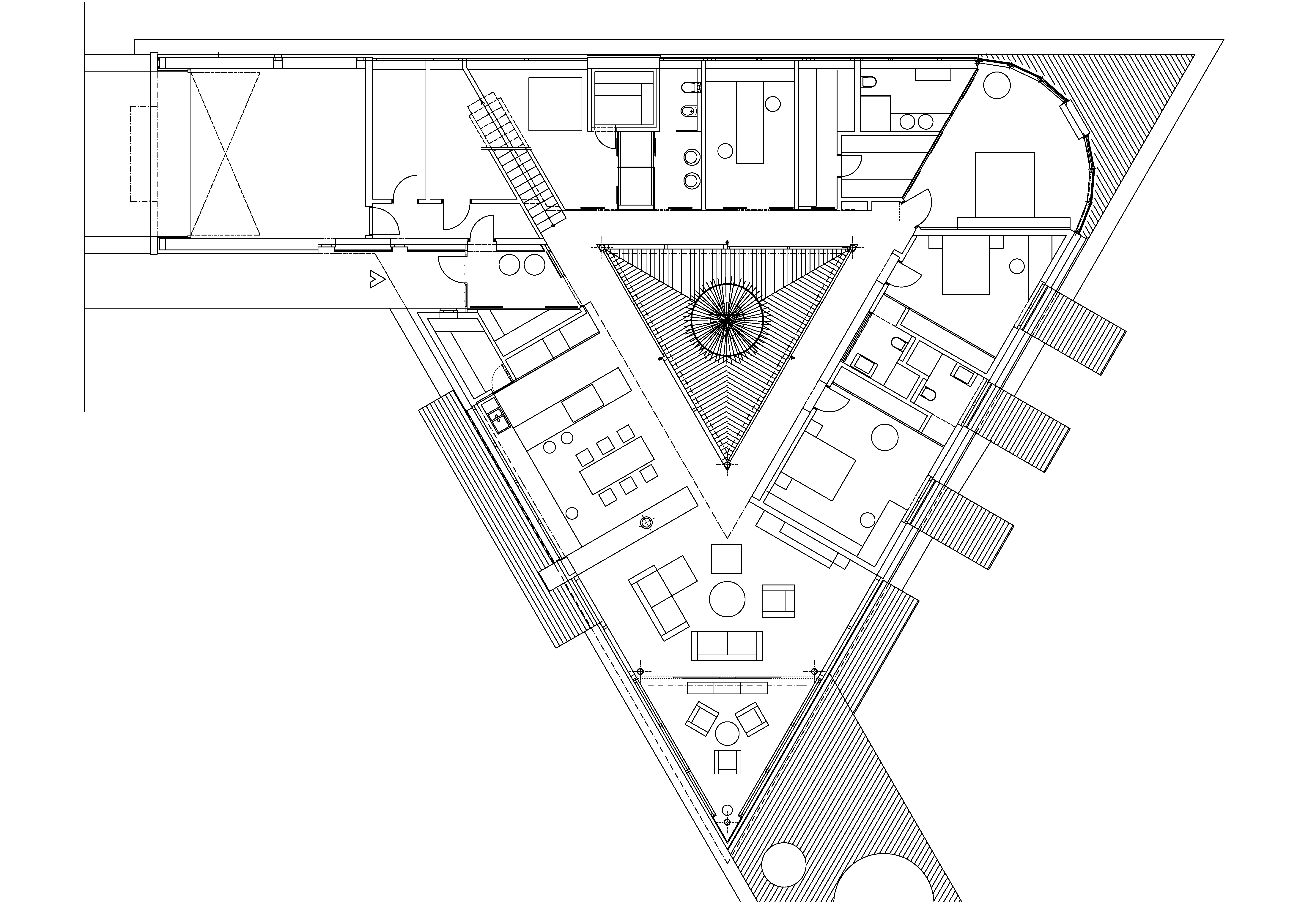
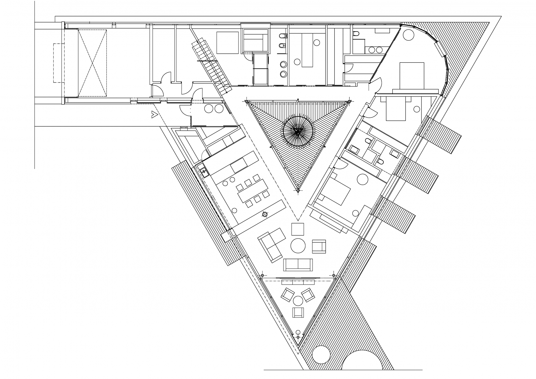
Srdcom domu je trojuholníkové átrium, okolo ktorého je radená celá dispozícia. Obytný trakt so šírkou 6m sa vinie okolo átria, následne vo východnom ramene stúpa do druhého nadzemného podlažia. Počas dňa sa vďaka átriu menia v dome scény - ráno je cez átrium presvetlená jedáleň, podvečer pracovňa.

Átrium zabezpečuje efektné priečne priehľady cez priestory domu (kuchyňa - chodba, pracovňa - kuchyňa, pracovňa - obývačka), vždy so živým prvkom farebného stromu v centre pohľadu. Dispozícia je otvorená, ale zároveň diskrétne delená na zóny.

Menší, ale farebne a tvarovo výrazný kultivar javora, “farbí” dom podľa aktuálneho ročného obdobia. Farebnosť zvýrazňuje podsvietenie, ktoré sa premieta na bielu stenu vrchného podlažia a je viditeľné aj z diaľkových pohľadov.

Prítomnosť átria ako "bezpečného exteriéru" je možné naplno vychutnať otvorením veľkých presklených plôch zo strany jedálne a pracovne. Každá miestnosť v dome má priame prepojenie s exteriérom a adresne priradenú spevnenú plochu. Obývačka so zimnou záhradou, na západnej hrane domu je prepojená s viacerými terasami. Užívateľ má vždy možnosť vyjsť na preslnenú alebo zatienenú stranu. Juhovýchodné nárožie s oblúkovým zasklením (spálňa rodičov) je ustúpené pod presah strechy, čím vzniká intímna terasa ohraničená žalúziami.

Dominantný výhľad na Vysoké Tatry (jedna z požiadaviek klienta) je zabezpečený pootočením severozápadného ramena domu. Pochôdzne plochy na plochej streche sú situované okolo átria, z terasy sa otvára panoramatický výhľad do krajiny.

Situácia
Situácia
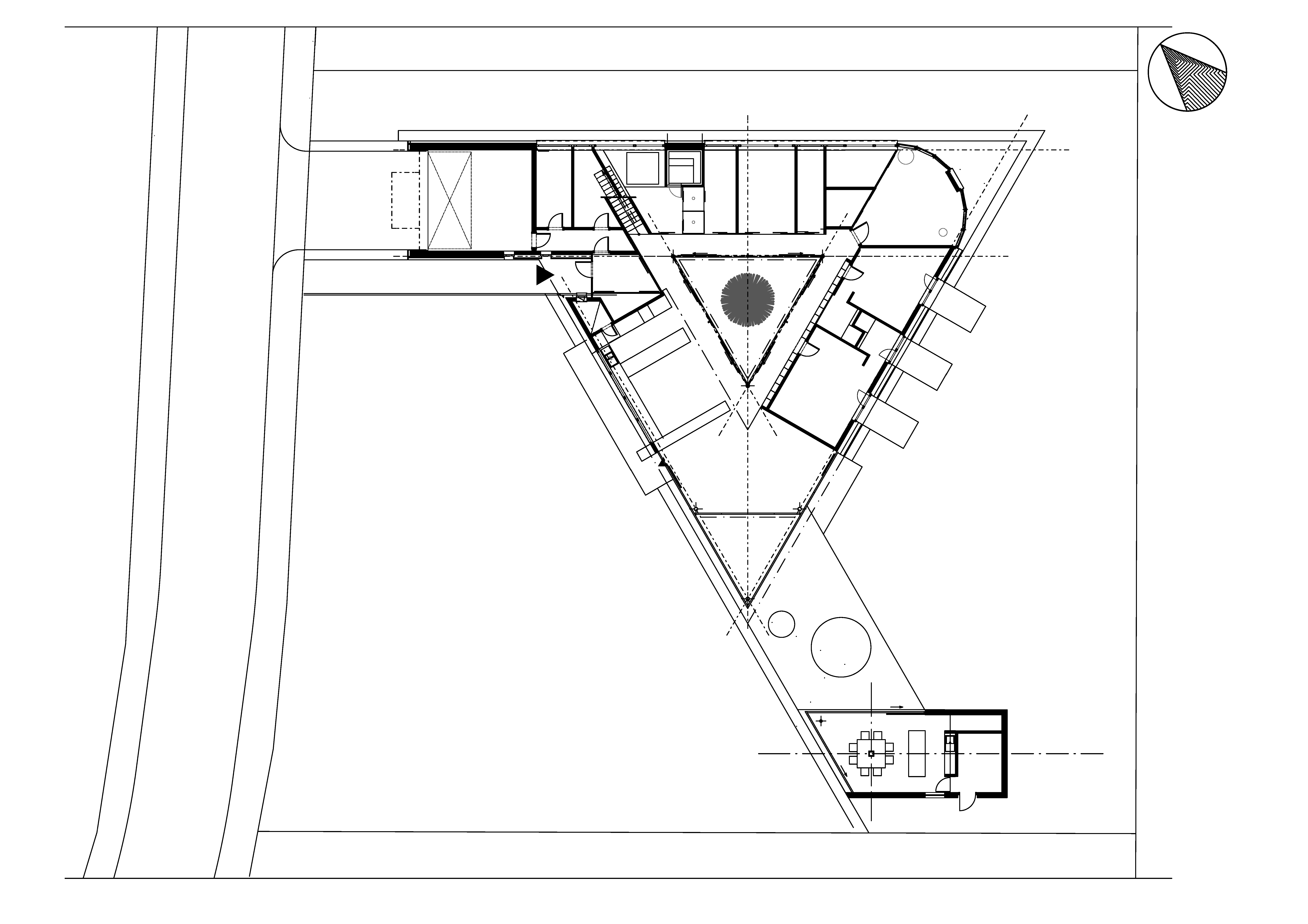
Pôdorys 1. NP
Pôdorys 1. NP
Pôdorys 2. NP
Pôdorys 2. NP
Foto: Branislav Rzyman
Foto: Branislav Rzyman
Foto: Branislav Rzyman

K objektu patrí aj "záhradný domček", vedie k nemu väčšia terasová plocha s ďalším dôležitým stromom - exteriérovou obdobou stromu v átriu. Záhradný domček je architektonicky a tvarovo zosúladený s veľkým domom, pôsobí ako odkrojená časť veľkého celku.

Foto: Robo Kočan
Foto: Robo Kočan
Foto: Robo Kočan
Foto: Robo Kočan
Foto: Branislav Rzyman

Technické riešenie

Stavba je založená na pásových základoch. Nosný systém je vysadený na okraj traktu vinúceho sa okolo átria - tvoria ho nosné murované a železobetónové steny. Monolitický strop pokrývajú vrstvy extenzívnej zelenej strechy. Na poschodí sú murované obvodové steny zastrešené drevenou konštrukciou pultovej strechy. Ako strešná krytina je použitý titánzinok. Tento materiál sa objavuje aj na fasáde orientovanej do ulice. Okná sú drevohliníkové.

Vykurovanie zabezpečujú tepelné čerpadlá typu zem-voda s výstupom do vykurovania (podlaha) a chladenia (strop).

Podklady: OSA atelier

Ing. arch. Branislav Rzyman
Vložené
23. november 2017
0
2791
Hlavný obsahHlavný obsah
Čakajte prosím