Advertorial

Pozvánka na 2. ročník stavebného veľtrhu BigMarket na Slovensku

Na podujatí sa predstaví až 37 vystavovateľov - popredných dodávateľov stavebných materiálov a inovácií s prezentáciou...

Hotel Hirschen Spa House, Rakúsko

Novotvar v prostredí alpskej obce.

Vytvorte si kúpeľňu snov: dizajnové riešenie od značky hansgrohe

Hansgrohe - prémiová značka kúpeľňových riešení, ponúka nadčasový dizajn, technickú precíznosť a udržateľné inovácie...

Okná Internorm za minuloročné ceny + hliníkový kryt zdarma!

Využite špeciálnu akciu Internorm: okná za minuloročné ceny a hliníkový kryt úplne zadarmo. Ponuka je časovo obmedzená!

Moderné plynové technológie: Efektivita a inovácie pre 21. storočie

Sumarizácia najdôležitejších inovácií, ktoré redefinujúcich využitie tohto energetického zdroja.

Utesňovanie spodných stavieb pomocou hydro-aktívnej fólie AMPHIBIA.

AMPHIBIA 3000 GRIP 1.3 od spoločnosti ATRO predstavuje modernú hydroizolačnú technológiu, ktorá spája vysokú odolnosť,...

Dekarbonizácia individuálneho vykurovania domácností – Green Deal evolučne a nie revolučne

Ambiciózne plány EK narazili na ekonomické možnosti domácností v jednotlivých členských štátoch –...

Minimalistické dvere IDEA – technická precíznosť a čistota prevedenia

IDEA DOOR od spoločnosti JAP prináša do interiéru čistý minimalistický vzhľad vďaka bezrámovému riešeniu a precíznej...

Dom s výhľadom na údolie, Dlouhý Most (ČR)

Kontinuita riešenia od vonkajšieho obkladu až po kovania a kľučky.

Schell Vitus – osvedčené riešenie pre sprchy a umývadlá vo verejnom sektore s viac ako desaťročnou tradíciou

Nástenné nadomietkové armatúry Vitus sú mimoriadne vhodné pre rýchlu a efektívnu...

Kompozitné okná predstavujú súčasnosť a budúcnosť

Okenné profily z kompozitného materiálu RAU-FIPRO X od spoločnosti Rehau sú v porovnaní s tradičnými plastovými profilmi mnohonásobne...

Myotis - stoly 2025

Najnovší sortiment stolov pre zariadenie interiérov...

Priemyselné sklenené priečky Dorsis Digero: svetelné rozhranie pre moderné interiéry

Spojenie moderného dizajnu, funkčnosti a svetla do harmonického architektonického prvku.

Význam prirodzeného svetla pre moderné a flexibilné pracovné prostredie

Kancelárska budova Baumit v slovinskom Trzine prešla premenou na moderné a udržateľné pracovisko. Architekti kládli dôraz...

Konferencia Xella Dialóg predstaví novinky a trendy v stavebníctve

Mottom šiesteho ročníku on-line konferencie odborníkov Xella Dialóg je Efektívny návrh budov 2025+: zmeny a riešenia

Dom Moser, Rakúsko

"Recyklácia" v praxi. Mladá rodina, obmedzený rozpočet, bývanie v alpskej dedine. Ako základ nového domu je použitá konštrukcia hospodárskej stavby, ktorá bola na pozemok premiestnená a zachránená pred zbúraním. Tento počin bol ocenený aj rakúskou nomináciou na tohtoročnú Európsku cenu za architektúru - Mies Van Der Rohe Award.
Diela
Red 309.02.2017
45660+26
Dom Moser, Rakúsko
Autori: Robert PfurtschellerPlocha pozemku: 614 m2 Podlažná plocha: 106.8 m2Investičný náklad: 216 000€Návrh: 2015 - 2015Realizácia: 2015 - 2016Adresa: Stackler , Neustift im Stubaital, RakúskoPublikované: 9. február 2017

Projekt vznikol pre mladú rodinu Moserovcov, ktorí sa rozhodli stavať v malej alpskej dedine Neustift im Stubaital. Na pozemku na okraji zástavby však nevznikla novostavba alebo napodobenina alpskej hrazdenej architektúry. 

Situácia
Situácia

Na pozemok bola premiestnená 150 rokov stará stodola, ktorá sa predtým nachádzala na statku vzdialenom asi kilometer. Stavba už neplnila svoju funkciu a mala byť zbúraná. Podarilo sa zachovať nielen kus histórie, ale aj ušetriť náklady a životné prostredie.

Stodola na pôvodnom mieste
Stodola na pôvodnom mieste

Drevené časti hospodárskej budovy boli citlivo rozobrané a premiestnené na nový pozemok. 

Rozoberanie konštrukcie
Rozoberanie konštrukcie

Trámy a dosky s historickou patinou boli ošetrené a znovu zložené. Zachované časti tvoria kostru a vonkajší plášť nového domu. 

Montáž na novom pozemku
Montáž na novom pozemku

Navonok takmer nezmenená forma ožila novým životom. Do historického rámca boli vložené nové - jasne identifikovateľné konštrukcie. Dôraz bol kladený na funkčné a energeticky efektívne riešenie.

Foto: Wolfgang Retter
Foto: Wolfgang Retter
Foto: Wolfgang Retter

Jestvujúca kostra, ktorú tvoria ručne tesané stĺpy, nosníky, väznice a krokvy zo smrekového dreva je ukotvená na nový betónový základ. Pôvodné drevené prvky sa zaobišli bez výrazného zásahu alebo opravy. Nové konštrukcie neplnia statickú funkciu, ale zabezpečujú stavebno - fyzikálne parametre domu. Sendvičová konštrukcia stien a stropov (preglejka - minerálna vlna - preglejka) plní z vnútornej strany aj pohľadovú funkciu. Smreková preglejka je použitá aj ako podlahová krytina. Zasklenie je vzhľadom na snahu o nízke tepelné straty domu v maximálnej miery fixné.

Pôdorys 1. NP
Pôdorys 1. NP
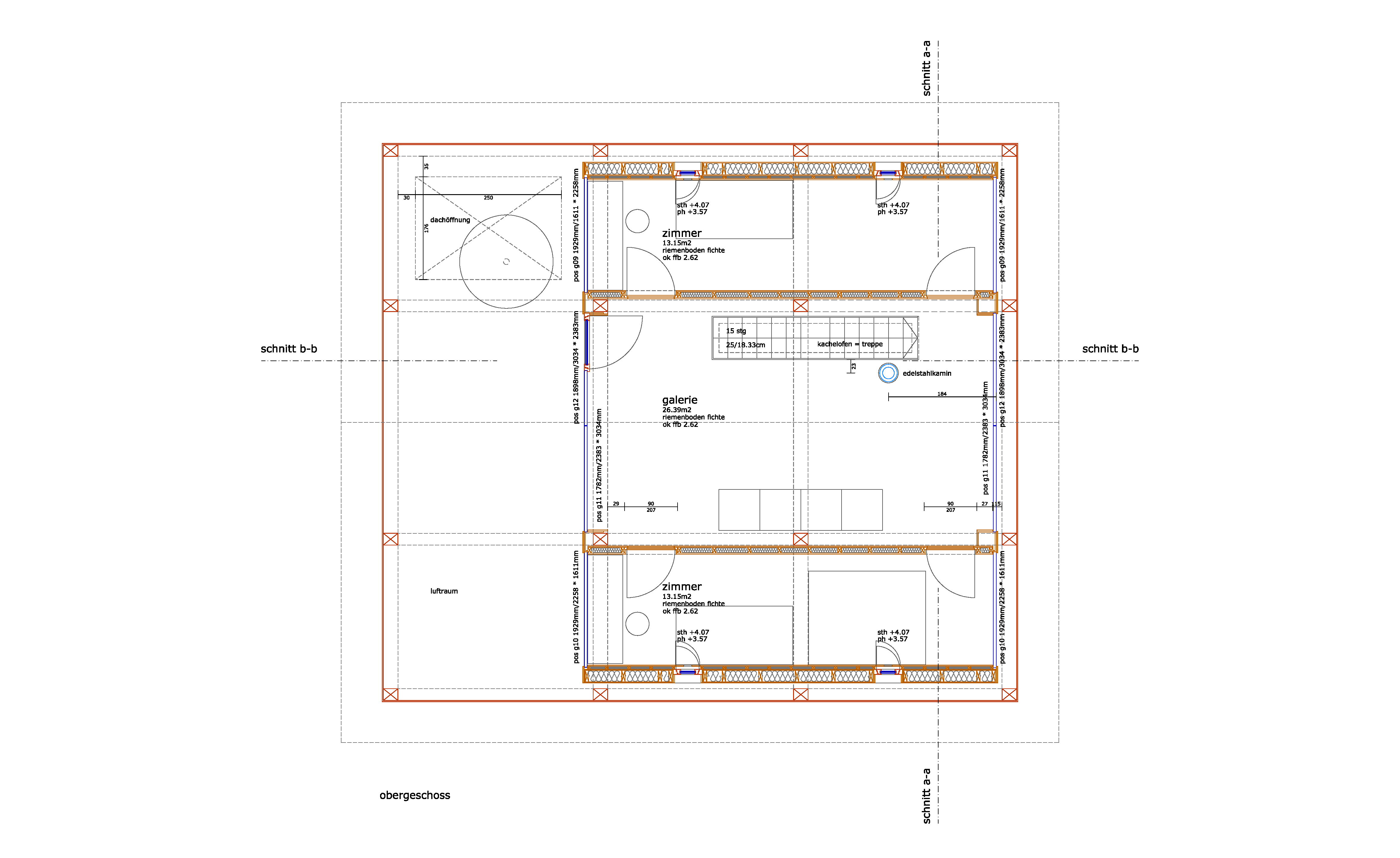
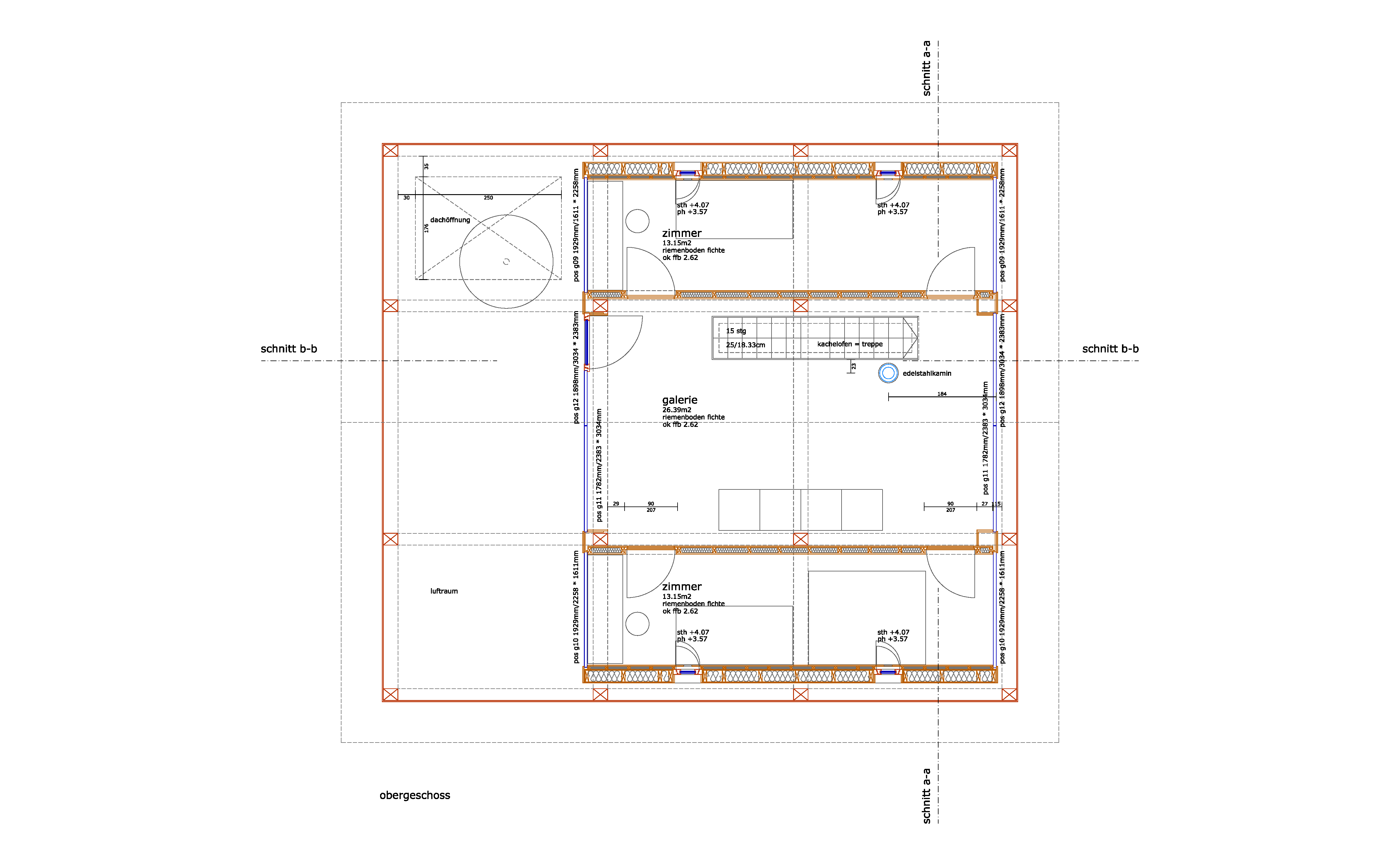
Pôdorys 2. NP
Pôdorys 2. NP
Rez priečny
Rez priečny
Rez pozdĺžny
Rez pozdĺžny
Pohľad juhovýchodný
Pohľad juhovýchodný
Foto: Wolfgang Retter
Foto: Wolfgang Retter

Na zabezpečenie vykurovania malého domu stačia keramické krbové kachle, ktoré slúžia aj ako schodisko na poschodie. Prípravu teplej vody zabezpečuje bojler napojený na tepelné čerpadlo typu vzduch - voda.

Foto: Wolfgang Retter
Foto: Wolfgang Retter
Foto: Wolfgang Retter

Celkové náklady na realizáciu boli vyčíslené na 230.000.- € vrátane projektovej časti a vedľajších výdavkov. Mladej rodine sa podarilo “zrecyklovať” objekt odsúdený na zánik a vytvoriť autentické vidiecke sídlo.

Podklady: Madritsch Pfurtscheller

Poloha diela

Robert Pfurtscheller
Vložené
8. február 2017
0
4566
Hlavný obsahHlavný obsah
Čakajte prosím