Advertorial

Pozvánka na 2. ročník stavebného veľtrhu BigMarket na Slovensku

Na podujatí sa predstaví až 37 vystavovateľov - popredných dodávateľov stavebných materiálov a inovácií s prezentáciou...

Hotel Hirschen Spa House, Rakúsko

Novotvar v prostredí alpskej obce.

Vytvorte si kúpeľňu snov: dizajnové riešenie od značky hansgrohe

Hansgrohe - prémiová značka kúpeľňových riešení, ponúka nadčasový dizajn, technickú precíznosť a udržateľné inovácie...

Okná Internorm za minuloročné ceny + hliníkový kryt zdarma!

Využite špeciálnu akciu Internorm: okná za minuloročné ceny a hliníkový kryt úplne zadarmo. Ponuka je časovo obmedzená!

Moderné plynové technológie: Efektivita a inovácie pre 21. storočie

Sumarizácia najdôležitejších inovácií, ktoré redefinujúcich využitie tohto energetického zdroja.

Utesňovanie spodných stavieb pomocou hydro-aktívnej fólie AMPHIBIA.

AMPHIBIA 3000 GRIP 1.3 od spoločnosti ATRO predstavuje modernú hydroizolačnú technológiu, ktorá spája vysokú odolnosť,...

Dekarbonizácia individuálneho vykurovania domácností – Green Deal evolučne a nie revolučne

Ambiciózne plány EK narazili na ekonomické možnosti domácností v jednotlivých členských štátoch –...

Minimalistické dvere IDEA – technická precíznosť a čistota prevedenia

IDEA DOOR od spoločnosti JAP prináša do interiéru čistý minimalistický vzhľad vďaka bezrámovému riešeniu a precíznej...

Dom s výhľadom na údolie, Dlouhý Most (ČR)

Kontinuita riešenia od vonkajšieho obkladu až po kovania a kľučky.

Schell Vitus – osvedčené riešenie pre sprchy a umývadlá vo verejnom sektore s viac ako desaťročnou tradíciou

Nástenné nadomietkové armatúry Vitus sú mimoriadne vhodné pre rýchlu a efektívnu...

Kompozitné okná predstavujú súčasnosť a budúcnosť

Okenné profily z kompozitného materiálu RAU-FIPRO X od spoločnosti Rehau sú v porovnaní s tradičnými plastovými profilmi mnohonásobne...

Myotis - stoly 2025

Najnovší sortiment stolov pre zariadenie interiérov...

Priemyselné sklenené priečky Dorsis Digero: svetelné rozhranie pre moderné interiéry

Spojenie moderného dizajnu, funkčnosti a svetla do harmonického architektonického prvku.

Význam prirodzeného svetla pre moderné a flexibilné pracovné prostredie

Kancelárska budova Baumit v slovinskom Trzine prešla premenou na moderné a udržateľné pracovisko. Architekti kládli dôraz...

Konferencia Xella Dialóg predstaví novinky a trendy v stavebníctve

Mottom šiesteho ročníku on-line konferencie odborníkov Xella Dialóg je Efektívny návrh budov 2025+: zmeny a riešenia

Rodinný dom Neveklov, ČR

Bývanie v bývalom ovocnom sade. Kontext a vzťah k okoliu je dôležitejší ako samotná forma. Projekt pracuje s nedokonalosťou a starnutím materiálu. Opaľované smrekovcové drevo sa postupne stáva organickou súčasťou prírodného prostredia. Precízny interiér je protikladom k surovej vonkajšej podobe.
Diela
Red 405.05.2018
85950+34
Rodinný dom Neveklov, ČR
Ateliér: Atelier Kunc ArchitectsAutori: MgA. Michal KuncSpolupráca: Ing. arch. Alžběta VrabcováPlocha pozemku: 4575 m2Zastavaná plocha: 440 m2Podlažná plocha: 380 m2Návrh: 2012 - 2015Realizácia: 2016 - 2017Adresa: Neveklov , Česká republikaPublikované: 5. máj 2018

Dom v Neveklove pracuje so základným, archetypálnym tvaroslovím rodinného domu so sedlovou strechou. Možstvo presklenených a otváravých plôch zabezpečuje dostatok svetla v interiéri a priamy kontakt obyvateľov s rozsiahlou záhradou. Lineárna stavba je zložená z dvoch objemov s rovnakým sklonom strechy, ale s rozdielnou výškou. Segmenty sú navzájom posunuté a prepojené preskleným krčkom.

Vnútorné priestory sú v obývacej izbe a v koncovom segmente spálne otvorené až do krovu. Takéto riešenie umožnilo, aby sa forma domu so sedlovou strechou premietla aj do preskleného čela spálne.

Foto: Jan Vrabec
Foto: Jan Vrabec

Dom je komponovaný tak, aby sa časom sa stal časom neoddeliteľnou súčasťou záhrady. Pri navrhovaní architekti hľadali krásu v nedokonalosti. Počítajú s prirodzeným starnutím materiálov. Čierna fasáda časom dostane patinu, oprší, drevené terasy zvetrajú… Už teraz “hrubé” povrchy postupne splývajú s prírodným prostredím.

Foto: Jan Vrabec
Situácia
SituáciaAteliér Kunc Architects

Konštrukciu drevostavby tvorí skelet s s predsadenou inštalačnou stenou. Fasády vrátane šikmej strechy sú ošetrené starou japonskou technikou. Smrekovcové dosky sú ručne hĺbkovo opalované. Plynulý prechod medzi fasádou a strechou zabezpečuje skrytý zaatikový žľab. V interiéri sú obvodové konštrukcie obložené doskami natretými na bielo. Vnútorné priečky sú sadrokartónové. Na podlahe je použitá liata cementová stierka, jedna z kúpeľní má čiernobiele obklady.

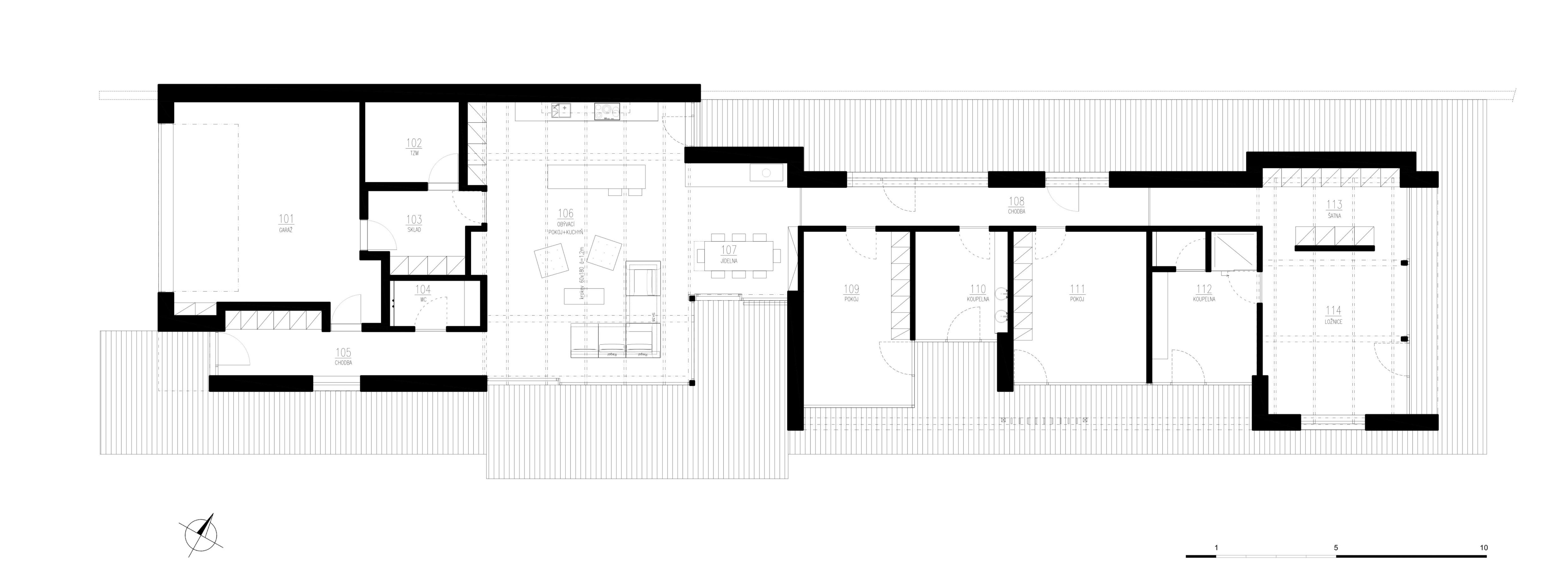
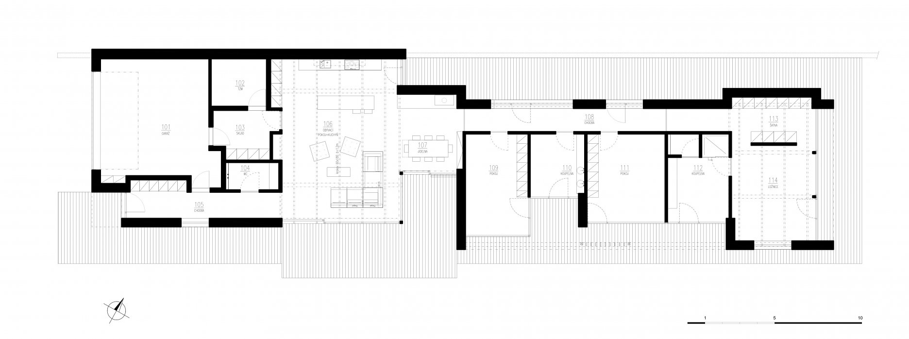
Pôdorys
Pôdorys Ateliér Kunc Architects
Pohľady
PohľadyAteliér Kunc Architects
Pohľad
PohľadAteliér Kunc Architects
Priečny rez
Priečny rezAteliér Kunc Architects
Foto: Jan Vrabec
Foto: Jan Vrabec
Foto: Jan Vrabec
Foto: Jan Vrabec
Foto: Jan Vrabec
Foto: Jan Vrabec
Foto: Jan Vrabec
Foto: Jan Vrabec

Farebný koncept je založený na kontraste tmavej fasády a svetlého interiéru. Drsnú textúru fasády vyvažuje precízny detail v interiéri. Rozsiahle biele plochy oživuje drevený obklad a nábytok, tmavé oceľové prvky a výrazný geometrický vzor v kúpeľni.

Vstavaný nábytok je navrhnutý na mieru. Ide o kombináciu bielych lakovaných MDF dosiek a prírodného olejovaného duba. Drobné, kontrastné detaily sú čierne. Priestor delia subtílne posuvné dvere v skrytej zárubni Dorsis FORTIUS 52. Zaujímavosťou sú matné čierne zariaďovacie predmety v kúpeľniach.

Foto: Jan Vrabec
Foto: Jan Vrabec
Foto: Jan Vrabec
Foto: Jan Vrabec
Foto: Jan Vrabec
Foto: Jan Vrabec
Foto: Jan Vrabec
Foto: Jan Vrabec
Foto: Jan Vrabec
Foto: Jan Vrabec
Foto: Jan Vrabec
Foto: Jan Vrabec
Foto: Jan Vrabec
Foto: Jan Vrabec

Podklady: Ateliér Kunc Architects
Použité materiály a riešenia: posuvné dvere v skrytej zárubni Dorsis FORTIUS 52

Poloha diela

MgA. Michal Kunc

Súvisiace články

DORSISSKSTYL & DESIGN
Vložené
11. apríl 2018
0
8595
Hlavný obsahHlavný obsah
Čakajte prosím